Property
Account |
| Property ID: | 24025 | Abbreviated Legal Description: | 10-6-35 TRACT B SHORT PLAT 2/78 1985-06691 (PTN TAX 10B) |
| Parcel Number: | 350610440024 | Agent Code: | |
| Type: | Real | | |
| Tax Area: | 311 - 250-4 | Land Use Code | 11 |
| Open Space: | N | DFL | N |
| Historic Property: | N | Remodel Property: | N |
| Multi-Family Redevelopment: | N | | |
| Township: | 6 | Section: | 10 |
| Range: | 35 |
Location |
| Address: | 1281 BEET RD WA 99324 | Mapsco: | |
| Neighborhood: | VG SFR RURAL | Map ID: | |
| Neighborhood CD: | 215013 |
Owner |
| Name: | OATS FAMILY LIVING TRUST | Owner ID: | 68430 |
| Mailing Address: | 1281 BEET RD WALLA WALLA, WA 99362 | % Ownership: | 100.0000000000% |
| | | Exemptions: | |
Taxes and Assessment Details
Values
| (+) Improvement Homesite Value: | + | $0 | |
| (+) Improvement Non-Homesite Value: | + | $659,130 | |
| (+) Land Homesite Value: | + | $0 | |
| (+) Land Non-Homesite Value: | + | $152,190 | |
| (+) Curr Use (HS): | + | $0 | $0 |
| (+) Curr Use (NHS): | + | $0 | $0 |
| | | -------------------------- | |
| (=) Market Value: | = | $811,320 | |
| (–) Productivity Loss: | – | $0 | |
| | | -------------------------- | |
| (=) Subtotal: | = | $811,320 | |
| (+) Senior Appraised Value: | + | $0 | |
| (+) Non-Senior Appraised Value: | + | $811,320 | |
| | | -------------------------- | |
| (=) Total Appraised Value: | = | $811,320 | |
| (–) Senior Exemption Loss: | – | $0 | |
| (–) Exemption Loss: | – | $0 | |
| | | -------------------------- | |
| (=) Taxable Value: | = | $811,320 | |
Taxing Jurisdiction
| Owner: | OATS FAMILY LIVING TRUST | | |
| % Ownership: | 100.0000000000% | | |
| Total Value: | $811,320 | | |
| Tax Area: | 311 - 250-4 |
| CERFD | CURRENT EXPENSE REFUND 010 | 0.0000000000 | $811,320 | $811,320 | $0.00 | | |
| CURREXP | CURRENT EXPENSE 010 | 1.0175366760 | $811,320 | $811,320 | $825.55 | | |
| HUMNSERV | HUMAN SERVICES 119 | 0.0250000000 | $811,320 | $811,320 | $20.28 | | |
| SLDREL | SOLDIERS RELIEF 121 | 0.0155990005 | $811,320 | $811,320 | $12.66 | | |
| EMERGSER | EMS 147 | 0.3792580840 | $811,320 | $811,320 | $307.70 | | |
| EMSRFD | EMS REFUND 147 | 0.0000000000 | $811,320 | $811,320 | $0.00 | | |
| FD4EXP | FD #4 EXPENSE 686 | 0.8836993059 | $811,320 | $811,320 | $716.96 | | |
| RLBRFD | RURAL LIBRARY REFUND 623 | 0.0000000000 | $811,320 | $811,320 | $0.00 | | |
| RURALLIB | RURAL LIBRARY 623 | 0.3710609029 | $811,320 | $811,320 | $301.05 | | |
| PORTRFD | PORT REFUND 640 | 0.0000000000 | $811,320 | $811,320 | $0.00 | | |
| PORTWWGEN | PORT OF WW 640 | 0.2460186015 | $811,320 | $811,320 | $199.60 | | |
| SD250BOND | SD #250 BOND 773 | 1.4560608159 | $811,320 | $811,320 | $1,181.33 | | |
| SD250GEN | SD #250 GENERAL 770 | 2.3880724087 | $811,320 | $811,320 | $1,937.49 | | |
| ST2 | STATE SCHOOL PART 2 600 | 0.8131451643 | $811,320 | $811,320 | $659.72 | | |
| STATESCHL | STATE SCHOOL 600 | 1.5158548041 | $811,320 | $811,320 | $1,229.84 | | |
| STREFUND | STATE REFUND LEVY 603 | 0.0000000000 | $811,320 | $811,320 | $0.00 | | |
| COROAD | COUNTY ROAD 115 | 1.6549953990 | $811,320 | $811,320 | $1,342.73 | | |
| CRPRD | COUNTY ROAD REFUND 115 | 0.0000000000 | $811,320 | $811,320 | $0.00 | | |
| | Total Tax Rate: | 10.7663011628 | | | | | |
| | | | | Taxes w/Current Exemptions: | $8,734.91 | | |
| | | | | Taxes w/o Exemptions: | $8,734.91 | | |
Improvement / Building
| Improvement #1: | RESIDENTIAL | State Code: | 11 | 2509.0 sqft | Value: | $659,130 |
| Exterior Wall: | STUCCO | Heating/Cooling: | HEAT PUMP | | Number of Bathrooms: | 3 | Number of Bedrooms: | 4 | | Plumbing: | 15 | Roof Covering: | COMP SHINGLE |
|
| | Type | Description | Class CD | Sub Class CD | Year Built | Area |
| | MA | Main Area | 1 | 45 | 2019 | 2509.0 |
| | POL3 | POLE BUILDING-CON,ELEC,INSU | 1 | 30 | 1997 | 1200.0 |
| | ATG | Attached Garage | 1 | 45 | 2019 | 702.0 |
| | RPC | OPEN PORCH W/ROOF , CEILED | 1 | 45 | 2019 | 45.0 |
| | RPC | OPEN PORCH W/ROOF , CEILED | 1 | 45 | 2019 | 242.0 |
| | GFP | GAS FIREPLACE | 1 | 45 | 2019 | 1.0 |
| | SI1 | SITE IMPROVEMENT | 1 | 45 | 2019 | 8.0 |
Sketch
Property Image
Land
| 1 | RES 1 | Converted: Residential | 1.0800 | 0.00 | 0.00 | 0.00 | 1.00 | $152,190 | $0 |
Roll Value History
| 2025 | N/A | N/A | N/A | N/A | N/A |
| 2024 | $758,000 | $152,190 | $0 | $910,190 | $910,190 |
| 2023 | $659,130 | $152,190 | $0 | $811,320 | $811,320 |
| 2022 | $627,740 | $152,190 | $0 | $779,930 | $779,930 |
| 2021 | $545,860 | $152,190 | $0 | $698,050 | $698,050 |
| 2020 | $440,590 | $75,400 | $0 | $515,990 | $515,990 |
| 2019 | $34,790 | $75,400 | $0 | $110,190 | $110,190 |
| 2018 | $136,370 | $75,400 | $0 | $211,770 | $211,770 |
| 2017 | $129,880 | $75,400 | $0 | $205,280 | $205,280 |
| 2016 | $123,690 | $75,400 | $0 | $199,090 | $199,090 |
| 2015 | $117,800 | $75,400 | $0 | $193,200 | $193,200 |
| 2014 | $117,800 | $75,400 | $0 | $193,200 | $193,200 |
| 2013 | $117,800 | $75,400 | $0 | $193,200 | $193,200 |
| 2012 | $117,800 | $75,400 | $0 | $0 | $0 |
| 2011 | $117,800 | $75,400 | $0 | $0 | $0 |
| 2010 | $117,800 | $75,400 | $0 | $0 | $0 |
| 2009 | $167,200 | $45,300 | $0 | $0 | $0 |
| 2008 | $91,800 | $45,300 | $0 | $0 | $0 |
| 2007 | $91,800 | $45,300 | $0 | $0 | $0 |
| 2006 | $91,800 | $45,300 | $0 | $0 | $0 |
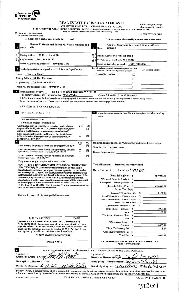
Deed and Sales History
| 1 | 11/23/2020 | SWD | STATUTORY WARRANTY DEED | PREMIER ENTERPRISES LLC | OATS FAMILY LIVING TRUST | | | $780,000.00 | 140406 | 2020-12358 |
| 2 | 09/04/2018 | SWD | STATUTORY WARRANTY DEED | DAUDT ROBERT D | PREMIER ENTERPRISES LLC | | | $105,000.00 | 135481 | 2018-07380 |
| 3 | 05/18/2015 | DPR | DEED OF PERSONAL REPRESENTATIVE | DAUDT R JUNE | DAUDT ROBERT D | | | $0.00 | 127996 | 2015-04200 |
| 4 | 06/02/2011 | QCD | QUIT CLAIM DEED | DAUDT, DALE C & R JUNE | DAUDT, R JUNE | | | | 120227 | 2011-04280 |
Payout Agreement
| No payout information available.. |