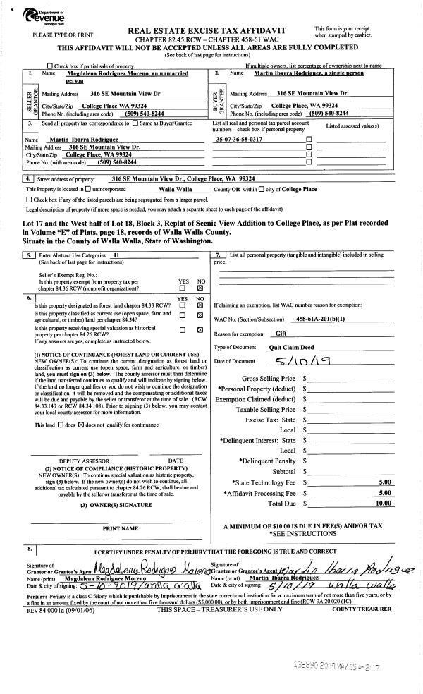
Property
Account |
| Property ID: | 23455 | Abbreviated Legal Description: | SEC 18-6-36 PARCEL D-2 OF SHORT PLAT (FORMER TRACT D OF SHORT PLATPLUS STRIP TO THE E ALL IN SLY PT N1/2) |
| Parcel Number: | 360618210012 | Agent Code: | |
| Type: | Real | | |
| Tax Area: | 101 - 140-4 | Land Use Code | 11 |
| Open Space: | N | DFL | N |
| Historic Property: | N | Remodel Property: | N |
| Multi-Family Redevelopment: | N | | |
| Township: | 6 | Section: | 18 |
| Range: | 36 |
Location |
| Address: | 2120 STATELINE RD WA 99362 | Mapsco: | |
| Neighborhood: | CYCLE 4 EXCELLENT (A) | Map ID: | |
| Neighborhood CD: | 416012 |
Owner |
| Name: | MARIA STARK REVOCABLE TRUST | Owner ID: | 66414 |
| Mailing Address: | 2120 STATELINE RD WALLA WALLA, WA 99362 | % Ownership: | 100.0000000000% |
| | | Exemptions: | |
Taxes and Assessment Details
Values
| (+) Improvement Homesite Value: | + | $0 | |
| (+) Improvement Non-Homesite Value: | + | $496,080 | |
| (+) Land Homesite Value: | + | $0 | |
| (+) Land Non-Homesite Value: | + | $281,380 | |
| (+) Curr Use (HS): | + | $0 | $0 |
| (+) Curr Use (NHS): | + | $0 | $0 |
| | | -------------------------- | |
| (=) Market Value: | = | $777,460 | |
| (–) Productivity Loss: | – | $0 | |
| | | -------------------------- | |
| (=) Subtotal: | = | $777,460 | |
| (+) Senior Appraised Value: | + | $0 | |
| (+) Non-Senior Appraised Value: | + | $777,460 | |
| | | -------------------------- | |
| (=) Total Appraised Value: | = | $777,460 | |
| (–) Senior Exemption Loss: | – | $0 | |
| (–) Exemption Loss: | – | $0 | |
| | | -------------------------- | |
| (=) Taxable Value: | = | $777,460 | |
Taxing Jurisdiction
| Owner: | MARIA STARK REVOCABLE TRUST | | |
| % Ownership: | 100.0000000000% | | |
| Total Value: | $777,460 | | |
| Tax Area: | 101 - 140-4 |
| CERFD | CURRENT EXPENSE REFUND 010 | 0.0000000000 | $777,460 | $777,460 | $0.00 | | |
| CURREXP | CURRENT EXPENSE 010 | 1.0175366760 | $777,460 | $777,460 | $791.09 | | |
| HUMNSERV | HUMAN SERVICES 119 | 0.0250000000 | $777,460 | $777,460 | $19.44 | | |
| SLDREL | SOLDIERS RELIEF 121 | 0.0155990005 | $777,460 | $777,460 | $12.13 | | |
| EMERGSER | EMS 147 | 0.3792580840 | $777,460 | $777,460 | $294.86 | | |
| EMSRFD | EMS REFUND 147 | 0.0000000000 | $777,460 | $777,460 | $0.00 | | |
| FD4EXP | FD #4 EXPENSE 686 | 0.8836993059 | $777,460 | $777,460 | $687.04 | | |
| RLBRFD | RURAL LIBRARY REFUND 623 | 0.0000000000 | $777,460 | $777,460 | $0.00 | | |
| RURALLIB | RURAL LIBRARY 623 | 0.3710609029 | $777,460 | $777,460 | $288.49 | | |
| PORTRFD | PORT REFUND 640 | 0.0000000000 | $777,460 | $777,460 | $0.00 | | |
| PORTWWGEN | PORT OF WW 640 | 0.2460186015 | $777,460 | $777,460 | $191.27 | | |
| SD140BOND | SD #140 BOND 764 | 0.8342371393 | $777,460 | $777,460 | $648.59 | | |
| SD140GEN | SD #140 GENERAL 760 | 2.0646500647 | $777,460 | $777,460 | $1,605.18 | | |
| ST2 | STATE SCHOOL PART 2 600 | 0.8131451643 | $777,460 | $777,460 | $632.19 | | |
| STATESCHL | STATE SCHOOL 600 | 1.5158548041 | $777,460 | $777,460 | $1,178.52 | | |
| STREFUND | STATE REFUND LEVY 603 | 0.0000000000 | $777,460 | $777,460 | $0.00 | | |
| COROAD | COUNTY ROAD 115 | 1.6549953990 | $777,460 | $777,460 | $1,286.69 | | |
| CRPRD | COUNTY ROAD REFUND 115 | 0.0000000000 | $777,460 | $777,460 | $0.00 | | |
| | Total Tax Rate: | 9.8210551422 | | | | | |
| | | | | Taxes w/Current Exemptions: | $7,635.49 | | |
| | | | | Taxes w/o Exemptions: | $7,635.49 | | |
Improvement / Building
| Improvement #1: | RESIDENTIAL | State Code: | 11 | 3656.0 sqft | Value: | $496,080 |
| Exterior Wall: | CEMENT FIBER | Heating/Cooling: | HEAT PUMP | | Number of Bathrooms: | 3 | Number of Bedrooms: | 3 | | Plumbing: | 13 | Roof Covering: | COMP SHINGLE |
|
| | Type | Description | Class CD | Sub Class CD | Year Built | Area |
| | MA | Main Area | 4 | 60 | 1999 | 3656.0 |
| | UPFL | Upper Floor (included in main area) | 4 | 60 | 1999 | 399.0 |
| | SI1 | SITE IMPROVEMENT | 4 | 60 | 1999 | 5.0 |
| | BASE | BASEMENT | 4 | 60 | 1999 | 1215.0 |
| | BPF | BASEMENT -PARTITIONED FINISH | 4 | 60 | 1999 | 1215.0 |
| | RPO | OPEN PORCH W/ROOF | 4 | 60 | 1999 | 90.0 |
| | RPO | OPEN PORCH W/ROOF | 4 | 60 | 1999 | 128.0 |
| | ATG | Attached Garage | 4 | 60 | 1999 | 1192.0 |
| | DTG | Detached Garage | 4 | 60 | 1999 | 2700.0 |
| | POL2 | POLE BUILDING-CONCRETE | 1 | 30 | 1999 | 896.0 |
| | LEAN TO | LEAN TO | 1 | 30 | 1999 | 1800.0 |
Sketch
Property Image
Land
| 1 | RES 1 | Converted: Residential | 12.3400 | 537530.40 | 0.00 | 0.00 | 1.00 | $281,380 | $0 |
Roll Value History
| 2025 | N/A | N/A | N/A | N/A | N/A |
| 2024 | $793,730 | $281,380 | $0 | $1,075,110 | $1,075,110 |
| 2023 | $496,080 | $281,380 | $0 | $777,460 | $777,460 |
| 2022 | $551,200 | $175,720 | $0 | $726,920 | $726,920 |
| 2021 | $551,200 | $175,720 | $0 | $726,920 | $726,920 |
| 2020 | $551,200 | $175,720 | $0 | $726,920 | $726,920 |
| 2019 | $551,200 | $175,720 | $0 | $726,920 | $726,920 |
| 2018 | $551,200 | $175,720 | $15,070 | $651,270 | $651,270 |
| 2017 | $551,200 | $175,720 | $15,550 | $651,750 | $651,750 |
| 2016 | $551,200 | $175,720 | $15,600 | $651,800 | $651,800 |
| 2015 | $551,200 | $175,720 | $14,210 | $650,410 | $650,410 |
| 2014 | $551,200 | $175,720 | $14,210 | $650,410 | $650,410 |
| 2013 | $551,200 | $175,700 | $12,214 | $648,400 | $648,400 |
| 2012 | $0 | $143,040 | $61,281 | $136,281 | $136,281 |
| 2011 | $0 | $143,040 | $61,644 | $136,644 | $136,644 |
| 2010 | $526,100 | $80,800 | $0 | $0 | $0 |
| 2009 | $526,700 | $80,900 | $0 | $0 | $0 |
| 2008 | $526,700 | $78,500 | $0 | $0 | $0 |
| 2007 | $384,000 | $49,900 | $0 | $0 | $0 |
| 2006 | $384,000 | $49,900 | $0 | $0 | $0 |
Deed and Sales History
| 1 | 12/13/2019 | SWD | STATUTORY WARRANTY DEED | WATTS GERALD A & SHARON L | MARIA STARK REVOCABLE TRUST | | | $1,125,000.00 | 138248 | 2019-10344 |
| 2 | 12/05/2003 | QCD | QUIT CLAIM DEED | WATTS, GERALD A | WATTS, GERALD A & SHARON L | | | | 103660 | 2003-18519 |
Payout Agreement
| No payout information available.. |