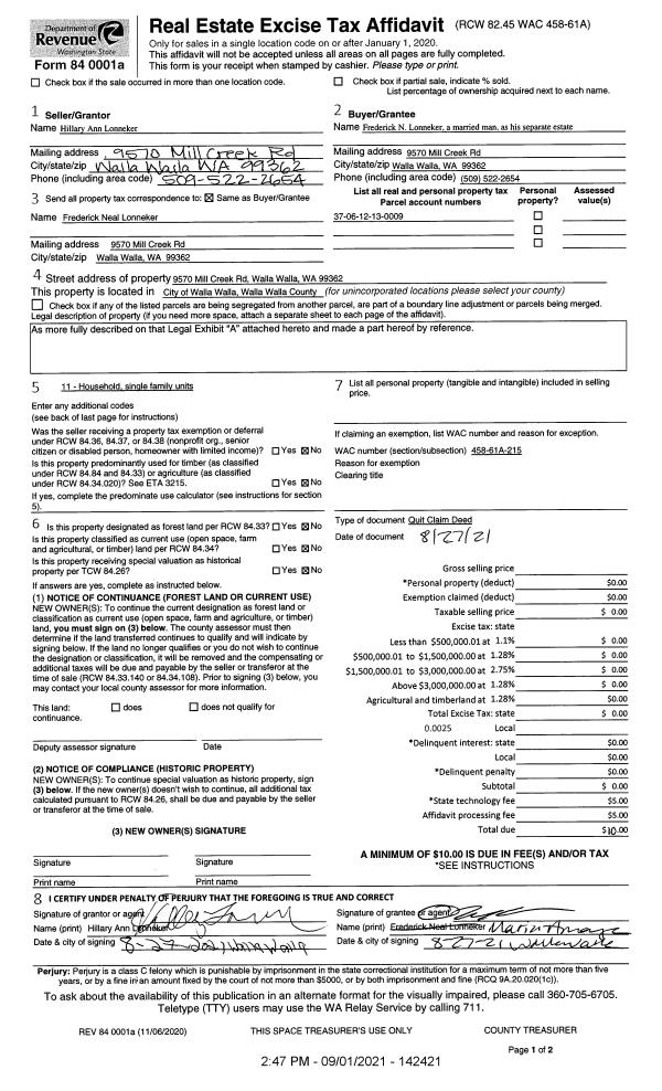
Property
Account |
| Property ID: | 23327 | Abbreviated Legal Description: | PROSPECT TERRACE LOT 40 |
| Parcel Number: | 360732810040 | Agent Code: | |
| Type: | Real | | |
| Tax Area: | 6 - OL-140-F-FB | Land Use Code | 11 |
| Open Space: | N | DFL | N |
| Historic Property: | N | Remodel Property: | N |
| Multi-Family Redevelopment: | N | | |
| Township: | 7 | Section: | 32 |
| Range: | 36 |
Location |
| Address: | 968 OUTLOOK LOOP WA 99362 | Mapsco: | |
| Neighborhood: | G Res Rural/City Inf | Map ID: | |
| Neighborhood CD: | 614012 |
Owner |
| Name: | NUNEZ FRANCISCO J | Owner ID: | 70447 |
| Mailing Address: | 968 OUTLOOK LOOP WALLA WALLA, WA 99362 | % Ownership: | 100.0000000000% |
| | | Exemptions: | |
Taxes and Assessment Details
Values
| (+) Improvement Homesite Value: | + | $0 | |
| (+) Improvement Non-Homesite Value: | + | $333,420 | |
| (+) Land Homesite Value: | + | $0 | |
| (+) Land Non-Homesite Value: | + | $85,000 | |
| (+) Curr Use (HS): | + | $0 | $0 |
| (+) Curr Use (NHS): | + | $0 | $0 |
| | | -------------------------- | |
| (=) Market Value: | = | $418,420 | |
| (–) Productivity Loss: | – | $0 | |
| | | -------------------------- | |
| (=) Subtotal: | = | $418,420 | |
| (+) Senior Appraised Value: | + | $0 | |
| (+) Non-Senior Appraised Value: | + | $418,420 | |
| | | -------------------------- | |
| (=) Total Appraised Value: | = | $418,420 | |
| (–) Senior Exemption Loss: | – | $0 | |
| (–) Exemption Loss: | – | $0 | |
| | | -------------------------- | |
| (=) Taxable Value: | = | $418,420 | |
Taxing Jurisdiction
| Owner: | NUNEZ FRANCISCO J | | |
| % Ownership: | 100.0000000000% | | |
| Total Value: | $418,420 | | |
| Tax Area: | 6 - OL-140-F-FB |
| CERFD | CURRENT EXPENSE REFUND 010 | 0.0000000000 | $418,420 | $418,420 | $0.00 | | |
| CURREXP | CURRENT EXPENSE 010 | 1.0175366760 | $418,420 | $418,420 | $425.76 | | |
| HUMNSERV | HUMAN SERVICES 119 | 0.0250000000 | $418,420 | $418,420 | $10.46 | | |
| SLDREL | SOLDIERS RELIEF 121 | 0.0155990005 | $418,420 | $418,420 | $6.53 | | |
| EMERGSER | EMS 147 | 0.3792580840 | $418,420 | $418,420 | $158.69 | | |
| EMSRFD | EMS REFUND 147 | 0.0000000000 | $418,420 | $418,420 | $0.00 | | |
| PORTRFD | PORT REFUND 640 | 0.0000000000 | $418,420 | $418,420 | $0.00 | | |
| PORTWWGEN | PORT OF WW 640 | 0.2460186015 | $418,420 | $418,420 | $102.94 | | |
| SD140BOND | SD #140 BOND 764 | 0.8342371393 | $418,420 | $418,420 | $349.06 | | |
| SD140GEN | SD #140 GENERAL 760 | 2.0646500647 | $418,420 | $418,420 | $863.89 | | |
| ST2 | STATE SCHOOL PART 2 600 | 0.8131451643 | $418,420 | $418,420 | $340.24 | | |
| STATESCHL | STATE SCHOOL 600 | 1.5158548041 | $418,420 | $418,420 | $634.26 | | |
| STREFUND | STATE REFUND LEVY 603 | 0.0000000000 | $418,420 | $418,420 | $0.00 | | |
| CWWBOND | C OF WW BOND 643 | 0.2760494372 | $418,420 | $418,420 | $115.50 | | |
| CWWGEN | CITY OF WW 631 | 1.6100204973 | $418,420 | $418,420 | $673.66 | | |
| CWWRFD | CITY OF WALLA WALLA REFUND 631 | 0.0000000000 | $418,420 | $418,420 | $0.00 | | |
| | Total Tax Rate: | 8.7973694689 | | | | | |
| | | | | Taxes w/Current Exemptions: | $3,680.99 | | |
| | | | | Taxes w/o Exemptions: | $3,680.99 | | |
Improvement / Building
| Improvement #1: | RESIDENTIAL | State Code: | 11 | 1826.0 sqft | Value: | $333,420 |
| Exterior Wall: | PLYWOOD | Heating/Cooling: | WARM & COOLED AIR | | Number of Bathrooms: | 2 | Number of Bedrooms: | 3 | | Plumbing: | 9 | Roof Covering: | COMP SHINGLE |
|
| | Type | Description | Class CD | Sub Class CD | Year Built | Area |
| | MA | Main Area | 1 | 30 | 2008 | 1826.0 |
| | SI1 | SITE IMPROVEMENT | 1 | 30 | 2008 | 2.5 |
| | ATG | Attached Garage | 1 | 30 | 2008 | 400.0 |
| | RPO | OPEN PORCH W/ROOF | 1 | 30 | 2008 | 30.0 |
| | GFP | GAS FIREPLACE | 1 | 30 | 2008 | 1.0 |
Sketch
Property Image
Land
| 1 | RES 1 | Converted: Residential | 0.2185 | 9519.00 | 0.00 | 0.00 | 1.00 | $85,000 | $0 |
Roll Value History
| 2025 | N/A | N/A | N/A | N/A | N/A |
| 2024 | $350,090 | $85,000 | $0 | $435,090 | $435,090 |
| 2023 | $333,420 | $85,000 | $0 | $418,420 | $418,420 |
| 2022 | $317,540 | $70,000 | $0 | $387,540 | $387,540 |
| 2021 | $260,280 | $70,000 | $0 | $330,280 | $330,280 |
| 2020 | $192,800 | $70,000 | $0 | $262,800 | $262,800 |
| 2019 | $192,800 | $70,000 | $0 | $262,800 | $262,800 |
| 2018 | $183,110 | $60,000 | $0 | $243,110 | $243,110 |
| 2017 | $177,780 | $60,000 | $0 | $237,780 | $237,780 |
| 2016 | $174,290 | $60,000 | $0 | $234,290 | $234,290 |
| 2015 | $165,990 | $60,000 | $0 | $225,990 | $225,990 |
| 2014 | $150,900 | $60,000 | $0 | $210,900 | $210,900 |
| 2013 | $150,900 | $60,000 | $0 | $210,900 | $210,900 |
| 2012 | $154,100 | $60,000 | $0 | $0 | $0 |
| 2011 | $154,100 | $60,000 | $0 | $0 | $0 |
| 2010 | $147,300 | $60,000 | $0 | $0 | $0 |
| 2009 | $170,300 | $60,000 | $0 | $0 | $0 |
| 2008 | $0 | $3,800 | $0 | $0 | $0 |
| 2007 | $150,900 | $60,000 | $0 | $0 | $0 |
Deed and Sales History
| 1 | 10/13/2021 | QCD | QUIT CLAIM DEED | NUNEZ FRANCISCO J | NUNEZ FRANCISCO J | | | $0.00 | 142659 | 2021-12438 |
| 2 | 07/31/2008 | WARRANTY D | WARRANTY DEED | HAYDEN HOMES LLC | NUNEZ, FRANCISCO J | | | $240,000.00 | 115427 | 2008-07941 |
| 3 | 12/05/2007 | WARRANTY D | WARRANTY DEED | HAYDEN ENTERPRISES INC | | | | | 114183 | 2007-13846 |
Payout Agreement
| No payout information available.. |