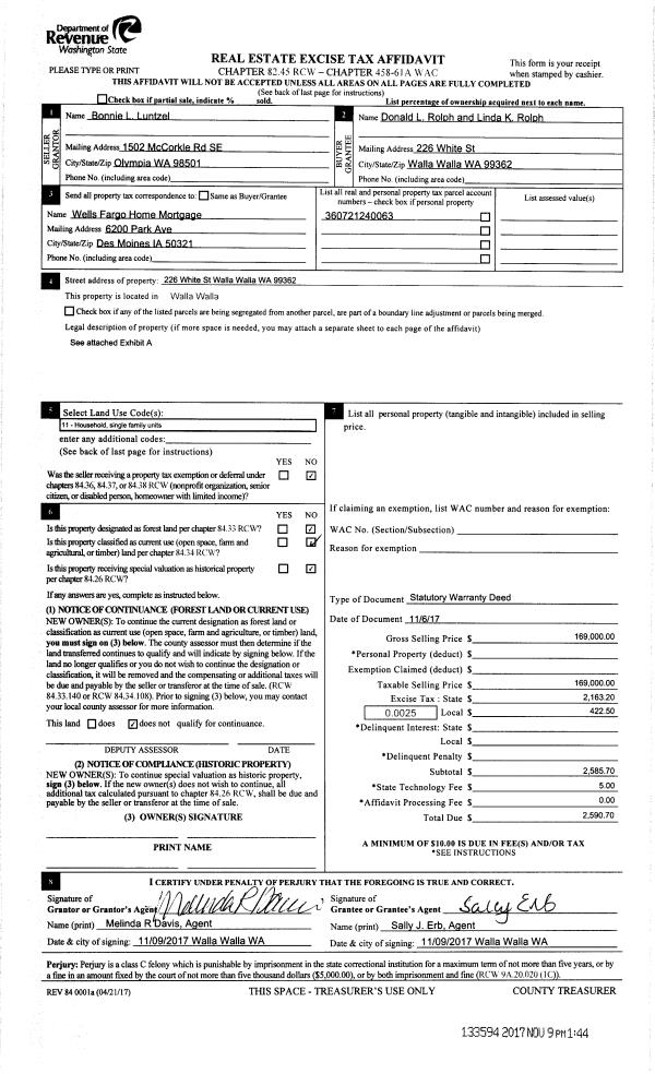
Property
Account |
| Property ID: | 23314 | Abbreviated Legal Description: | 26-8-36 (SURVEY 2018-09428) SE1/4SW1/4 |
| Parcel Number: | 360826340005 | Agent Code: | |
| Type: | Real | | |
| Tax Area: | 100 - 140-8 | Land Use Code | 83 |
| Open Space: | Y | DFL | N |
| Historic Property: | N | Remodel Property: | N |
| Multi-Family Redevelopment: | N | | |
| Township: | 8 | Section: | 26 |
| Range: | 36 |
Location |
| Address: | 5353 VALLEY GROVE RD WA 99362 | Mapsco: | |
| Neighborhood: | 0 Farm | Map ID: | |
| Neighborhood CD: | 3230 |
Owner |
| Name: | NEHER SARAH L | Owner ID: | 63563 |
| Mailing Address: | 5353 VALLEY GROVE RD WALLA WALLA, WA 99362 | % Ownership: | 100.0000000000% |
| | | Exemptions: | |
Taxes and Assessment Details
Values
| (+) Improvement Homesite Value: | + | $0 | |
| (+) Improvement Non-Homesite Value: | + | $374,570 | |
| (+) Land Homesite Value: | + | $150,000 | |
| (+) Land Non-Homesite Value: | + | $0 | |
| (+) Curr Use (HS): | + | $0 | $0 |
| (+) Curr Use (NHS): | + | $96,740 | $27,240 |
| | | -------------------------- | |
| (=) Market Value: | = | $621,310 | |
| (–) Productivity Loss: | – | $69,500 | |
| | | -------------------------- | |
| (=) Subtotal: | = | $551,810 | |
| (+) Senior Appraised Value: | + | $0 | |
| (+) Non-Senior Appraised Value: | + | $551,810 | |
| | | -------------------------- | |
| (=) Total Appraised Value: | = | $551,810 | |
| (–) Senior Exemption Loss: | – | $0 | |
| (–) Exemption Loss: | – | $0 | |
| | | -------------------------- | |
| (=) Taxable Value: | = | $551,810 | |
Taxing Jurisdiction
| Owner: | NEHER SARAH L | | |
| % Ownership: | 100.0000000000% | | |
| Total Value: | $621,310 | | |
| Tax Area: | 100 - 140-8 |
| CERFD | CURRENT EXPENSE REFUND 010 | 0.0000000000 | $551,810 | $551,810 | $0.00 | | |
| CURREXP | CURRENT EXPENSE 010 | 1.0175366760 | $551,810 | $551,810 | $561.49 | | |
| HUMNSERV | HUMAN SERVICES 119 | 0.0250000000 | $551,810 | $551,810 | $13.80 | | |
| SLDREL | SOLDIERS RELIEF 121 | 0.0155990005 | $551,810 | $551,810 | $8.61 | | |
| EMERGSER | EMS 147 | 0.3792580840 | $551,810 | $551,810 | $209.28 | | |
| EMSRFD | EMS REFUND 147 | 0.0000000000 | $551,810 | $551,810 | $0.00 | | |
| FD8EXP | FD #8 EXPENSE 697 | 0.6647992540 | $551,810 | $551,810 | $366.84 | | |
| RLBRFD | RURAL LIBRARY REFUND 623 | 0.0000000000 | $551,810 | $551,810 | $0.00 | | |
| RURALLIB | RURAL LIBRARY 623 | 0.3710609029 | $551,810 | $551,810 | $204.76 | | |
| PORTRFD | PORT REFUND 640 | 0.0000000000 | $551,810 | $551,810 | $0.00 | | |
| PORTWWGEN | PORT OF WW 640 | 0.2460186015 | $551,810 | $551,810 | $135.76 | | |
| SD140BOND | SD #140 BOND 764 | 0.8342371393 | $551,810 | $551,810 | $460.34 | | |
| SD140GEN | SD #140 GENERAL 760 | 2.0646500647 | $551,810 | $551,810 | $1,139.29 | | |
| ST2 | STATE SCHOOL PART 2 600 | 0.8131451643 | $551,810 | $551,810 | $448.70 | | |
| STATESCHL | STATE SCHOOL 600 | 1.5158548041 | $551,810 | $551,810 | $836.46 | | |
| STREFUND | STATE REFUND LEVY 603 | 0.0000000000 | $551,810 | $551,810 | $0.00 | | |
| COROAD | COUNTY ROAD 115 | 1.6549953990 | $551,810 | $551,810 | $913.24 | | |
| CRPRD | COUNTY ROAD REFUND 115 | 0.0000000000 | $551,810 | $551,810 | $0.00 | | |
| | Total Tax Rate: | 9.6021550903 | | | | | |
| | | | | Taxes w/Current Exemptions: | $5,298.57 | | |
| | | | | Taxes w/o Exemptions: | $5,298.57 | | |
Improvement / Building
| Improvement #1: | RESIDENTIAL | State Code: | 83 | 2518.0 sqft | Value: | $318,250 |
| Exterior Wall: | HARDBOARD | Heating/Cooling: | MINI-SPLIT HP SYSTEM | | Number of Bathrooms: | 2.5 | Number of Bedrooms: | 4 | | Plumbing: | 13 | Roof Covering: | GALVANIZED METAL |
|
| | Type | Description | Class CD | Sub Class CD | Year Built | Area |
| | MA | Main Area | 4 | 40 | 2019 | 2518.0 |
| | UPFL | Upper Floor (included in main area) | 4 | 40 | 2019 | 994.0 |
| | SI1 | SITE IMPROVEMENT | 4 | 40 | 2019 | 3.0 |
| | RPC | OPEN PORCH W/ROOF , CEILED | 4 | 40 | 2019 | 304.0 |
| | RPC | OPEN PORCH W/ROOF , CEILED | 4 | 40 | 2019 | 224.0 |
| | GFP | GAS FIREPLACE | 4 | 40 | 2019 | 1.0 |
| Improvement #2: | FARM BUILDINGS | State Code: | 83 | 0.0 sqft | Value: | $56,320 |
| | Type | Description | Class CD | Sub Class CD | Year Built | Area |
| | POL3 | POLE BUILDING-CON,ELEC,INSU | 1 | 30 | 2019 | 1728.0 |
| | ATIC | ATTIC ROOM | 1 | 30 | 2019 | 480.0 |
| | LNTD | LEAN TO DIRT FLOOR | 1 | 30 | 2019 | 576.0 |
Sketch
Property Image
Land
| 1 | WASTE | Waste | 4.6100 | 200811.60 | 0.00 | 0.00 | 1.00 | $0 | $0 |
| 2 | 70-4000 | Class 4 65 BU | 9.0000 | 392040.00 | 0.00 | 0.00 | 1.00 | $45,000 | $6,340 |
| 3 | HS-150,000 | Homesite 150,000 | 1.0000 | 0.00 | 0.00 | 0.00 | 1.00 | $150,000 | $0 |
| 4 | 75-C1 | Class 1 75 BU | 26.0000 | 1132560.00 | 0.00 | 0.00 | 1.00 | $51,740 | $20,900 |
Roll Value History
| 2025 | N/A | N/A | N/A | N/A | N/A |
| 2024 | $374,570 | $248,010 | $26,250 | $550,820 | $550,820 |
| 2023 | $374,570 | $246,740 | $27,240 | $551,810 | $551,810 |
| 2022 | $374,570 | $243,360 | $26,120 | $550,690 | $550,690 |
| 2021 | $374,570 | $134,850 | $26,880 | $476,450 | $476,450 |
| 2020 | $374,570 | $130,790 | $27,650 | $477,220 | $477,220 |
| 2019 | $66,320 | $128,410 | $28,350 | $169,670 | $169,670 |
| 2018 | $0 | $54,680 | $33,010 | $33,010 | $33,010 |
| 2017 | $0 | $52,380 | $33,520 | $33,520 | $33,520 |
| 2016 | $0 | $52,380 | $33,660 | $33,660 | $33,660 |
| 2015 | $0 | $51,980 | $29,740 | $29,740 | $29,740 |
| 2014 | $0 | $51,980 | $30,240 | $30,240 | $30,240 |
| 2013 | $0 | $49,300 | $24,800 | $24,800 | $24,800 |
| 2012 | $0 | $16,800 | $0 | $0 | $0 |
| 2011 | $0 | $17,000 | $0 | $0 | $0 |
| 2010 | $0 | $15,800 | $0 | $0 | $0 |
| 2009 | $0 | $15,900 | $0 | $0 | $0 |
| 2008 | $0 | $14,000 | $0 | $0 | $0 |
| 2007 | $0 | $13,900 | $0 | $0 | $0 |
| 2006 | $0 | $13,900 | $0 | $0 | $0 |
Deed and Sales History
| 1 | 11/14/2018 | SURVEY | SURVEY | | | 13 | 113 | | 0 | 2018-09428 |
| 2 | 07/12/2018 | SWD | STATUTORY WARRANTY DEED | YOUNG STEPHEN C | NEHER SARAH L | | | $26,190.00 | 135104 | 2018-056396 |
| 3 | 04/28/2017 | DPR | DEED OF PERSONAL REPRESENTATIVE | YOUNG LAWRENCE C | YOUNG STEPHEN C | | | $0.00 | 132287 | 2017-03204 |
| 4 | 12/18/2009 | WARRANTY D | WARRANTY DEED | "NAC NAIR, GLADYS PAUNZEN~TRUS | | | | | 117840 | 2009-12175 |
| 5 | 05/04/2009 | WARRANTY D | WARRANTY DEED | PAUNZEN GLADYS I TRUSTEE/TRST | YOUNG LAWRENCE C | | | | 116704 | 2009-04472 |
| 6 | 12/04/2006 | WARRANTY D | WARRANTY DEED | "RICHMOND, FRANCES V~BYPASS TR | | | | | 0 | 2006-14463 |
| 7 | 12/04/2006 | WARRANTY D | WARRANTY DEED | "RICHMOND, FRANCES V~BYPASS TR | | | | | 0 | 2006-14462 |
Payout Agreement
| No payout information available.. |