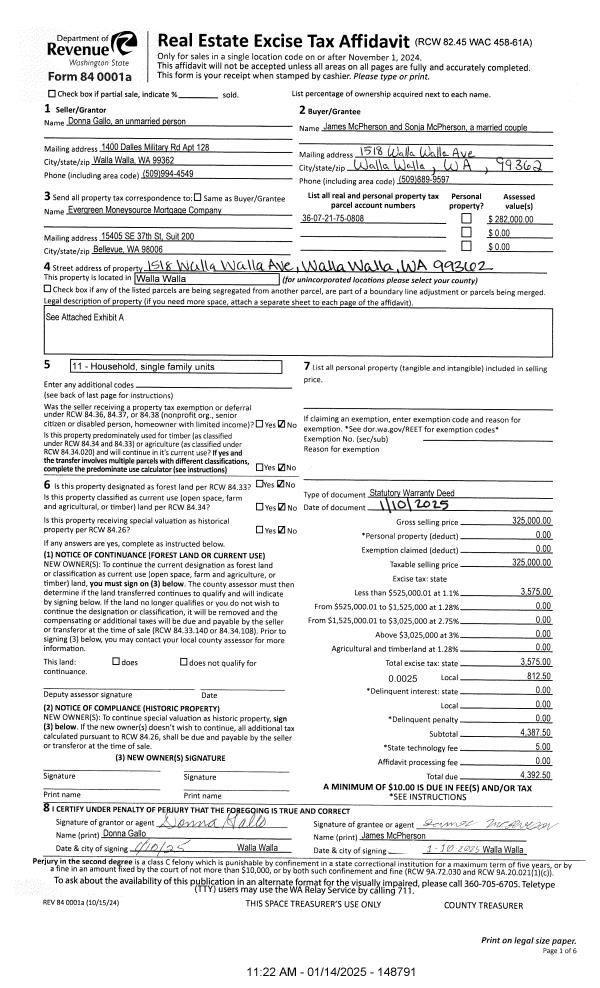
Property
Account |
| Property ID: | 23289 | Abbreviated Legal Description: | GREEN PARK LOT 16 BLK 15 LESS TAX 4 |
| Parcel Number: | 360721511516 | Agent Code: | |
| Type: | Real | | |
| Tax Area: | 1 - OL-140-F | Land Use Code | 11 |
| Open Space: | N | DFL | N |
| Historic Property: | N | Remodel Property: | N |
| Multi-Family Redevelopment: | N | | |
| Township: | 7 | Section: | 21 |
| Range: | 36 |
Location |
| Address: | 1201 FIGUEROA ST WA 99362 | Mapsco: | |
| Neighborhood: | G-SFR | Map ID: | |
| Neighborhood CD: | 514011 |
Owner |
| Name: | ALEXANDER EUGENE D | Owner ID: | 46720 |
| Mailing Address: | CARLA E HOUCHIN 1135 FIGUEROA ST WALLA WALLA, WA 99362 | % Ownership: | 100.0000000000% |
| | | Exemptions: | |
Taxes and Assessment Details
Values
| (+) Improvement Homesite Value: | + | $0 | |
| (+) Improvement Non-Homesite Value: | + | $329,910 | |
| (+) Land Homesite Value: | + | $0 | |
| (+) Land Non-Homesite Value: | + | $69,110 | |
| (+) Curr Use (HS): | + | $0 | $0 |
| (+) Curr Use (NHS): | + | $0 | $0 |
| | | -------------------------- | |
| (=) Market Value: | = | $399,020 | |
| (–) Productivity Loss: | – | $0 | |
| | | -------------------------- | |
| (=) Subtotal: | = | $399,020 | |
| (+) Senior Appraised Value: | + | $0 | |
| (+) Non-Senior Appraised Value: | + | $399,020 | |
| | | -------------------------- | |
| (=) Total Appraised Value: | = | $399,020 | |
| (–) Senior Exemption Loss: | – | $0 | |
| (–) Exemption Loss: | – | $0 | |
| | | -------------------------- | |
| (=) Taxable Value: | = | $399,020 | |
Taxing Jurisdiction
| Owner: | ALEXANDER EUGENE D | | |
| % Ownership: | 100.0000000000% | | |
| Total Value: | $399,020 | | |
| Tax Area: | 1 - OL-140-F |
| CERFD | CURRENT EXPENSE REFUND 010 | 0.0000000000 | $399,020 | $399,020 | $0.00 | | |
| CURREXP | CURRENT EXPENSE 010 | 1.0175366760 | $399,020 | $399,020 | $406.02 | | |
| HUMNSERV | HUMAN SERVICES 119 | 0.0250000000 | $399,020 | $399,020 | $9.98 | | |
| SLDREL | SOLDIERS RELIEF 121 | 0.0155990005 | $399,020 | $399,020 | $6.22 | | |
| EMERGSER | EMS 147 | 0.3792580840 | $399,020 | $399,020 | $151.33 | | |
| EMSRFD | EMS REFUND 147 | 0.0000000000 | $399,020 | $399,020 | $0.00 | | |
| PORTRFD | PORT REFUND 640 | 0.0000000000 | $399,020 | $399,020 | $0.00 | | |
| PORTWWGEN | PORT OF WW 640 | 0.2460186015 | $399,020 | $399,020 | $98.17 | | |
| SD140BOND | SD #140 BOND 764 | 0.8342371393 | $399,020 | $399,020 | $332.88 | | |
| SD140GEN | SD #140 GENERAL 760 | 2.0646500647 | $399,020 | $399,020 | $823.84 | | |
| ST2 | STATE SCHOOL PART 2 600 | 0.8131451643 | $399,020 | $399,020 | $324.46 | | |
| STATESCHL | STATE SCHOOL 600 | 1.5158548041 | $399,020 | $399,020 | $604.86 | | |
| STREFUND | STATE REFUND LEVY 603 | 0.0000000000 | $399,020 | $399,020 | $0.00 | | |
| CWWBOND | C OF WW BOND 643 | 0.2760494372 | $399,020 | $399,020 | $110.15 | | |
| CWWGEN | CITY OF WW 631 | 1.6100204973 | $399,020 | $399,020 | $642.43 | | |
| CWWRFD | CITY OF WALLA WALLA REFUND 631 | 0.0000000000 | $399,020 | $399,020 | $0.00 | | |
| | Total Tax Rate: | 8.7973694689 | | | | | |
| | | | | Taxes w/Current Exemptions: | $3,510.34 | | |
| | | | | Taxes w/o Exemptions: | $3,510.34 | | |
Improvement / Building
| Improvement #1: | RESIDENTIAL | State Code: | 11 | 912.0 sqft | Value: | $329,910 |
| Exterior Wall: | SIDING | Heating/Cooling: | WARM & COOLED AIR | | Number of Bathrooms: | 1 | Number of Bedrooms: | 2 | | Plumbing: | 7 | Roof Covering: | COMP SHINGLE |
|
| | Type | Description | Class CD | Sub Class CD | Year Built | Area |
| | MA | Main Area | 1 | 35 | 1919 | 912.0 |
| | RCD | WOOD DECK W/ROOF, CEILED | 1 | 35 | 0 | 88.0 |
| | SI1 | SITE IMPROVEMENT | 1 | 35 | 0 | 1.5 |
| | BASE | BASEMENT | 1 | 35 | 1919 | 912.0 |
| | BPF | BASEMENT -PARTITIONED FINISH | 1 | 35 | 1919 | 500.0 |
| | TOOL | TOOL SHED | 1 | 35 | 2018 | 640.0 |
Sketch
Property Image
Land
| 1 | RES 1 | Converted: Residential | 0.2188 | 9532.00 | 0.00 | 0.00 | 1.00 | $69,110 | $0 |
Roll Value History
| 2025 | N/A | N/A | N/A | N/A | N/A |
| 2024 | $305,910 | $104,850 | $0 | $410,760 | $410,760 |
| 2023 | $329,910 | $69,110 | $0 | $399,020 | $399,020 |
| 2022 | $299,920 | $69,110 | $0 | $369,030 | $369,030 |
| 2021 | $199,950 | $69,110 | $0 | $269,060 | $269,060 |
| 2020 | $142,820 | $69,110 | $0 | $211,930 | $211,930 |
| 2019 | $142,820 | $69,110 | $0 | $211,930 | $211,930 |
| 2018 | $142,820 | $69,110 | $0 | $211,930 | $211,930 |
| 2017 | $140,470 | $42,900 | $0 | $183,370 | $183,370 |
| 2016 | $127,700 | $42,900 | $0 | $170,600 | $170,600 |
| 2015 | $127,700 | $42,900 | $0 | $170,600 | $170,600 |
| 2014 | $127,700 | $42,900 | $0 | $170,600 | $170,600 |
| 2013 | $127,700 | $42,900 | $0 | $170,600 | $170,600 |
| 2012 | $126,500 | $42,900 | $0 | $0 | $0 |
| 2011 | $111,100 | $42,900 | $0 | $0 | $0 |
| 2010 | $96,800 | $42,900 | $0 | $0 | $0 |
| 2009 | $112,300 | $42,900 | $0 | $0 | $0 |
| 2008 | $112,300 | $42,900 | $0 | $0 | $0 |
| 2007 | $112,300 | $42,900 | $0 | $0 | $0 |
| 2006 | $96,100 | $19,100 | $0 | $0 | $0 |
Deed and Sales History
| 1 | 06/18/2008 | WARRANTY D | WARRANTY DEED | MORRISON ROBERT T | ALEXANDER EUGNENE D | | | $185,000.00 | 115194 | 2008-06218 |
|   | |
| 2 | 07/27/2001 | WARRANTY D | WARRANTY DEED | | | | | $117,500.00 | 97701 | 3170-108090 |
|   | |
Payout Agreement
| No payout information available.. |