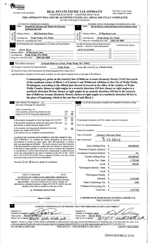
Property
Account |
| Property ID: | 23285 | Abbreviated Legal Description: | MTN VIEW TAX 1C BLK 41 |
| Parcel Number: | 360729854118 | Agent Code: | |
| Type: | Real | | |
| Tax Area: | 1 - OL-140-F | Land Use Code | 12 |
| Open Space: | N | DFL | N |
| Historic Property: | N | Remodel Property: | N |
| Multi-Family Redevelopment: | N | | |
| Township: | 7 | Section: | 29 |
| Range: | 36 |
Location |
| Address: | 1461 S 2ND AVE WA 99362 | Mapsco: | |
| Neighborhood: | A Res Duplex | Map ID: | |
| Neighborhood CD: | 613031 |
Owner |
| Name: | PROCTER STEVE ET AL | Owner ID: | 57533 |
| Mailing Address: | PO BOX 1095 WALLA WALLA, WA 99362 | % Ownership: | 100.0000000000% |
| | | Exemptions: | |
Taxes and Assessment Details
Values
| (+) Improvement Homesite Value: | + | $0 | |
| (+) Improvement Non-Homesite Value: | + | $346,400 | |
| (+) Land Homesite Value: | + | $0 | |
| (+) Land Non-Homesite Value: | + | $94,450 | |
| (+) Curr Use (HS): | + | $0 | $0 |
| (+) Curr Use (NHS): | + | $0 | $0 |
| | | -------------------------- | |
| (=) Market Value: | = | $440,850 | |
| (–) Productivity Loss: | – | $0 | |
| | | -------------------------- | |
| (=) Subtotal: | = | $440,850 | |
| (+) Senior Appraised Value: | + | $0 | |
| (+) Non-Senior Appraised Value: | + | $440,850 | |
| | | -------------------------- | |
| (=) Total Appraised Value: | = | $440,850 | |
| (–) Senior Exemption Loss: | – | $0 | |
| (–) Exemption Loss: | – | $0 | |
| | | -------------------------- | |
| (=) Taxable Value: | = | $440,850 | |
Taxing Jurisdiction
| Owner: | PROCTER STEVE ET AL | | |
| % Ownership: | 100.0000000000% | | |
| Total Value: | $440,850 | | |
| Tax Area: | 1 - OL-140-F |
| CERFD | CURRENT EXPENSE REFUND 010 | 0.0000000000 | $440,850 | $440,850 | $0.00 | | |
| CURREXP | CURRENT EXPENSE 010 | 1.0175366760 | $440,850 | $440,850 | $448.58 | | |
| HUMNSERV | HUMAN SERVICES 119 | 0.0250000000 | $440,850 | $440,850 | $11.02 | | |
| SLDREL | SOLDIERS RELIEF 121 | 0.0155990005 | $440,850 | $440,850 | $6.88 | | |
| EMERGSER | EMS 147 | 0.3792580840 | $440,850 | $440,850 | $167.20 | | |
| EMSRFD | EMS REFUND 147 | 0.0000000000 | $440,850 | $440,850 | $0.00 | | |
| PORTRFD | PORT REFUND 640 | 0.0000000000 | $440,850 | $440,850 | $0.00 | | |
| PORTWWGEN | PORT OF WW 640 | 0.2460186015 | $440,850 | $440,850 | $108.46 | | |
| SD140BOND | SD #140 BOND 764 | 0.8342371393 | $440,850 | $440,850 | $367.77 | | |
| SD140GEN | SD #140 GENERAL 760 | 2.0646500647 | $440,850 | $440,850 | $910.20 | | |
| ST2 | STATE SCHOOL PART 2 600 | 0.8131451643 | $440,850 | $440,850 | $358.48 | | |
| STATESCHL | STATE SCHOOL 600 | 1.5158548041 | $440,850 | $440,850 | $668.26 | | |
| STREFUND | STATE REFUND LEVY 603 | 0.0000000000 | $440,850 | $440,850 | $0.00 | | |
| CWWBOND | C OF WW BOND 643 | 0.2760494372 | $440,850 | $440,850 | $121.70 | | |
| CWWGEN | CITY OF WW 631 | 1.6100204973 | $440,850 | $440,850 | $709.78 | | |
| CWWRFD | CITY OF WALLA WALLA REFUND 631 | 0.0000000000 | $440,850 | $440,850 | $0.00 | | |
| | Total Tax Rate: | 8.7973694689 | | | | | |
| | | | | Taxes w/Current Exemptions: | $3,878.33 | | |
| | | | | Taxes w/o Exemptions: | $3,878.33 | | |
Improvement / Building
| Improvement #1: | RESIDENTIAL | State Code: | 12 | 2360.0 sqft | Value: | $346,400 |
| Exterior Wall: | MASONRY VENEER | Heating/Cooling: | WARM & COOLED AIR | | Number of Bathrooms: | 4 | Number of Bedrooms: | 5 | | Plumbing: | 19 | Roof Covering: | BUILT-UP ROCK |
|
| | Type | Description | Class CD | Sub Class CD | Year Built | Area |
| | MA | Main Area | 1 | 30 | 1966 | 2360.0 |
| | SI1 | SITE IMPROVEMENT | 1 | 30 | 1966 | 2.5 |
| | BASE | BASEMENT | 1 | 30 | 1966 | 1352.0 |
| | BPF | BASEMENT -PARTITIONED FINISH | 1 | 30 | 1966 | 1352.0 |
| | S1F | Single One Story Fireplace | 1 | 30 | 1966 | 1.0 |
| | TOOL | TOOL SHED | 1 | 30 | 1966 | 140.0 |
| | CPCS | CARPORT/SHED OR FLAT ROOF | 1 | 30 | 1966 | 336.0 |
| | RPO | OPEN PORCH W/ROOF | 1 | 30 | 1966 | 354.0 |
| | RPO | OPEN PORCH W/ROOF | 1 | 30 | 1966 | 378.0 |
| | CPCS | CARPORT/SHED OR FLAT ROOF | 1 | 30 | 1966 | 404.0 |
Sketch
Property Image
Land
| 1 | RES 1 | Converted: Residential | 0.3700 | 16117.00 | 0.00 | 0.00 | 1.00 | $94,450 | $0 |
Roll Value History
| 2025 | N/A | N/A | N/A | N/A | N/A |
| 2024 | $346,400 | $94,450 | $0 | $440,850 | $440,850 |
| 2023 | $346,400 | $94,450 | $0 | $440,850 | $440,850 |
| 2022 | $346,400 | $75,750 | $0 | $422,150 | $422,150 |
| 2021 | $266,460 | $75,750 | $0 | $342,210 | $342,210 |
| 2020 | $222,050 | $75,750 | $0 | $297,800 | $297,800 |
| 2019 | $222,050 | $75,750 | $0 | $297,800 | $297,800 |
| 2018 | $235,300 | $52,300 | $0 | $287,600 | $287,600 |
| 2017 | $228,350 | $52,300 | $0 | $280,650 | $280,650 |
| 2016 | $228,350 | $52,300 | $0 | $280,650 | $280,650 |
| 2015 | $228,350 | $52,300 | $0 | $280,650 | $280,650 |
| 2014 | $221,700 | $52,300 | $0 | $274,000 | $274,000 |
| 2013 | $221,700 | $52,300 | $0 | $274,000 | $274,000 |
| 2012 | $234,100 | $52,300 | $0 | $0 | $0 |
| 2011 | $234,100 | $52,300 | $0 | $0 | $0 |
| 2010 | $195,600 | $52,300 | $0 | $0 | $0 |
| 2009 | $177,200 | $52,300 | $0 | $0 | $0 |
| 2008 | $177,200 | $52,300 | $0 | $0 | $0 |
| 2007 | $116,200 | $29,800 | $0 | $0 | $0 |
| 2006 | $116,200 | $29,800 | $0 | $0 | $0 |
Deed and Sales History
| 1 | 08/26/2024 | DPR | DEED OF PERSONAL REPRESENTATIVE | MIDDLETON CHRISTINE E ESTATE OF | KING PATRICIA L | | | $280,000.00 | 148090 | 2024-04768 |
| 2 | 10/30/2023 | DPR | DEED OF PERSONAL REPRESENTATIVE | PROCTER STEVE ET AL | MIDDLETON CHRISTINE E ESTATE OF | | | | 146708 | 2023-06354 |
| 3 | 08/19/2024 | WARRANTY D | WARRANTY DEED | GLEESON TIMOTHY C & LINDA L | PROCTER STEVE ET AL | | | | 148057 | 2024-04635 |
| 4 | 09/30/2015 | SWD | STATUTORY WARRANTY DEED | GLEESON TIMOTHY C & LINDA L | PROCTER STEVE ET AL | | | $285,000.00 | 128902 | 2015-08548 |
| 5 | 06/18/2008 | WARRANTY D | WARRANTY DEED | BYERLEY, JANET | GLEESON, TIMOTHY C & LINDA L | | | $294,900.00 | 115198 | 2008-06272 |
| 6 | 04/21/2005 | WARRANTY D | WARRANTY DEED | DIXON, DALE A | BYERLEY, JANET | | | $230,000.00 | 107298 | 2005-04509 |
| 7 | 11/01/1965 | WARRANTY D | WARRANTY DEED | | | | | $2,500.00 | 0 | 3160-471469 |
Payout Agreement
| No payout information available.. |