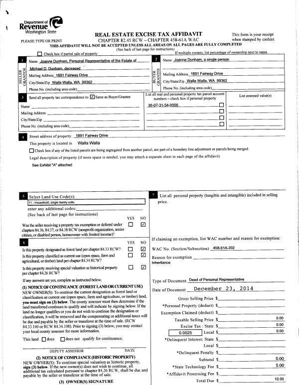
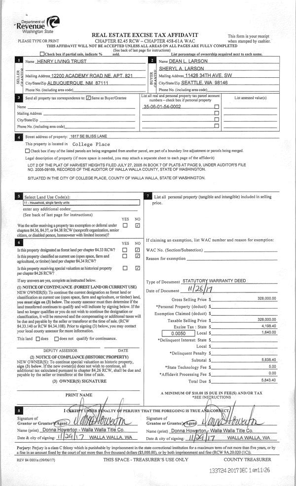
Property
Account |
| Property ID: | 23114 | Abbreviated Legal Description: | VALLEY HOMES LOT 3 OF SHORT PLAT (SELY PTN LOT 35) |
| Parcel Number: | 360722560244 | Agent Code: | |
| Type: | Real | | |
| Tax Area: | 6 - OL-140-F-FB | Land Use Code | 11 |
| Open Space: | N | DFL | N |
| Historic Property: | N | Remodel Property: | N |
| Multi-Family Redevelopment: | N | | |
| Township: | 7 | Section: | 22 |
| Range: | 36 |
Location |
| Address: | 1820 BENINA LN WA 99362 | Mapsco: | |
| Neighborhood: | A SFR | Map ID: | |
| Neighborhood CD: | 413011 |
Owner |
| Name: | KIRSHNER BRIANNA | Owner ID: | 59430 |
| Mailing Address: | 1820 BENINA DR WALLA WALLA, WA 99362 | % Ownership: | 100.0000000000% |
| | | Exemptions: | |
Taxes and Assessment Details
Values
| (+) Improvement Homesite Value: | + | $0 | |
| (+) Improvement Non-Homesite Value: | + | $261,900 | |
| (+) Land Homesite Value: | + | $0 | |
| (+) Land Non-Homesite Value: | + | $56,660 | |
| (+) Curr Use (HS): | + | $0 | $0 |
| (+) Curr Use (NHS): | + | $0 | $0 |
| | | -------------------------- | |
| (=) Market Value: | = | $318,560 | |
| (–) Productivity Loss: | – | $0 | |
| | | -------------------------- | |
| (=) Subtotal: | = | $318,560 | |
| (+) Senior Appraised Value: | + | $0 | |
| (+) Non-Senior Appraised Value: | + | $318,560 | |
| | | -------------------------- | |
| (=) Total Appraised Value: | = | $318,560 | |
| (–) Senior Exemption Loss: | – | $0 | |
| (–) Exemption Loss: | – | $0 | |
| | | -------------------------- | |
| (=) Taxable Value: | = | $318,560 | |
Taxing Jurisdiction
| Owner: | KIRSHNER BRIANNA | | |
| % Ownership: | 100.0000000000% | | |
| Total Value: | $318,560 | | |
| Tax Area: | 6 - OL-140-F-FB |
| CERFD | CURRENT EXPENSE REFUND 010 | 0.0000000000 | $318,560 | $318,560 | $0.00 | | |
| CURREXP | CURRENT EXPENSE 010 | 1.0175366760 | $318,560 | $318,560 | $324.15 | | |
| HUMNSERV | HUMAN SERVICES 119 | 0.0250000000 | $318,560 | $318,560 | $7.96 | | |
| SLDREL | SOLDIERS RELIEF 121 | 0.0155990005 | $318,560 | $318,560 | $4.97 | | |
| EMERGSER | EMS 147 | 0.3792580840 | $318,560 | $318,560 | $120.82 | | |
| EMSRFD | EMS REFUND 147 | 0.0000000000 | $318,560 | $318,560 | $0.00 | | |
| PORTRFD | PORT REFUND 640 | 0.0000000000 | $318,560 | $318,560 | $0.00 | | |
| PORTWWGEN | PORT OF WW 640 | 0.2460186015 | $318,560 | $318,560 | $78.37 | | |
| SD140BOND | SD #140 BOND 764 | 0.8342371393 | $318,560 | $318,560 | $265.75 | | |
| SD140GEN | SD #140 GENERAL 760 | 2.0646500647 | $318,560 | $318,560 | $657.71 | | |
| ST2 | STATE SCHOOL PART 2 600 | 0.8131451643 | $318,560 | $318,560 | $259.04 | | |
| STATESCHL | STATE SCHOOL 600 | 1.5158548041 | $318,560 | $318,560 | $482.89 | | |
| STREFUND | STATE REFUND LEVY 603 | 0.0000000000 | $318,560 | $318,560 | $0.00 | | |
| CWWBOND | C OF WW BOND 643 | 0.2760494372 | $318,560 | $318,560 | $87.94 | | |
| CWWGEN | CITY OF WW 631 | 1.6100204973 | $318,560 | $318,560 | $512.89 | | |
| CWWRFD | CITY OF WALLA WALLA REFUND 631 | 0.0000000000 | $318,560 | $318,560 | $0.00 | | |
| | Total Tax Rate: | 8.7973694689 | | | | | |
| | | | | Taxes w/Current Exemptions: | $2,802.49 | | |
| | | | | Taxes w/o Exemptions: | $2,802.49 | | |
Improvement / Building
| Improvement #1: | RESIDENTIAL | State Code: | 11 | 1335.0 sqft | Value: | $261,900 |
| Exterior Wall: | PLYWOOD | Heating/Cooling: | HEAT PUMP | | Number of Bathrooms: | 2 | Number of Bedrooms: | 3 | | Plumbing: | 9 | Roof Covering: | COMP SHINGLE |
|
| | Type | Description | Class CD | Sub Class CD | Year Built | Area |
| | MA | Main Area | 1 | 35 | 2008 | 1335.0 |
| | BNV | BUILDING NO VALUE | 1 | 35 | 0 | 1.0 |
| | RPC | OPEN PORCH W/ROOF , CEILED | 1 | 35 | 0 | 28.0 |
| | SI1 | SITE IMPROVEMENT | 1 | 35 | 0 | 1.5 |
| | ATG | Attached Garage | 1 | 35 | 2008 | 441.0 |
Sketch
Property Image
Land
| 1 | RES 1 | Converted: Residential | 0.1626 | 7083.00 | 0.00 | 0.00 | 1.00 | $56,660 | $0 |
Roll Value History
| 2025 | N/A | N/A | N/A | N/A | N/A |
| 2024 | $261,900 | $56,660 | $0 | $318,560 | $318,560 |
| 2023 | $261,900 | $56,660 | $0 | $318,560 | $318,560 |
| 2022 | $272,870 | $45,000 | $0 | $317,870 | $317,870 |
| 2021 | $259,870 | $45,000 | $0 | $304,870 | $304,870 |
| 2020 | $162,420 | $45,000 | $0 | $207,420 | $207,420 |
| 2019 | $162,420 | $45,000 | $0 | $207,420 | $207,420 |
| 2018 | $147,660 | $45,000 | $0 | $192,660 | $192,660 |
| 2017 | $147,660 | $45,000 | $0 | $192,660 | $192,660 |
| 2016 | $147,660 | $45,000 | $0 | $192,660 | $192,660 |
| 2015 | $135,240 | $45,000 | $0 | $180,240 | $180,240 |
| 2014 | $117,600 | $45,000 | $0 | $162,600 | $162,600 |
| 2013 | $117,600 | $45,000 | $0 | $162,600 | $162,600 |
| 2012 | $135,700 | $45,000 | $0 | $0 | $0 |
| 2011 | $140,900 | $45,000 | $0 | $0 | $0 |
| 2010 | $140,900 | $45,000 | $0 | $0 | $0 |
| 2009 | $161,600 | $45,000 | $0 | $0 | $0 |
| 2008 | $0 | $9,400 | $0 | $0 | $0 |
| 2007 | $117,600 | $45,000 | $0 | $0 | $0 |
Deed and Sales History
| 1 | 08/11/2016 | QCD | QUIT CLAIM DEED | KIRSHNER BRIANNA | KIRSHNER BRIANNA | | | $0.00 | 130840 | 2016-06551 |
| 2 | 12/30/2015 | SWD | STATUTORY WARRANTY DEED | DISSMORE MADISON MARIAH | KIRSHNER BRIANNA | | | $206,000.00 | 129432 | 2015-11152 |
| 3 | 06/30/2014 | SWD | STATUTORY WARRANTY DEED | BELL BARBARA J | DISSMORE MADISON MARIAH | | | $192,000.00 | 126165 | 2014-04515 |
| 4 | 10/28/2008 | WARRANTY D | WARRANTY DEED | DAWSON, BEN J | BELL, BARBARA J | | | $212,000.00 | 115886 | 2008-10923 |
| 5 | 10/28/2008 | QCD | QUIT CLAIM DEED | BELL, GEORGE | BELL, BARBARA J | | | $0.00 | 115887 | 2008-10924 |
Payout Agreement
| No payout information available.. |