Property
Account |
| Property ID: | 23054 | Abbreviated Legal Description: | LA MONTAGNE ESTATES LOT 4 |
| Parcel Number: | 350734510004 | Agent Code: | |
| Type: | Real | | |
| Tax Area: | 311 - 250-4 | Land Use Code | 11 |
| Open Space: | N | DFL | N |
| Historic Property: | N | Remodel Property: | N |
| Multi-Family Redevelopment: | N | | |
| Township: | 7 | Section: | 34 |
| Range: | 35 |
Location |
| Address: | 2422 PALISADES LN WA 99324 | Mapsco: | |
| Neighborhood: | La Montagne | Map ID: | |
| Neighborhood CD: | 117012 |
Owner |
| Name: | KNIGHT PAUL D | Owner ID: | 60406 |
| Mailing Address: | SUSAN T WILLIAMS 307 S 9TH AVE # 267 WALLA WALLA, WA 99362 | % Ownership: | 100.0000000000% |
| | | Exemptions: | |
Taxes and Assessment Details
Values
| (+) Improvement Homesite Value: | + | $0 | |
| (+) Improvement Non-Homesite Value: | + | $1,094,060 | |
| (+) Land Homesite Value: | + | $0 | |
| (+) Land Non-Homesite Value: | + | $200,000 | |
| (+) Curr Use (HS): | + | $0 | $0 |
| (+) Curr Use (NHS): | + | $0 | $0 |
| | | -------------------------- | |
| (=) Market Value: | = | $1,294,060 | |
| (–) Productivity Loss: | – | $0 | |
| | | -------------------------- | |
| (=) Subtotal: | = | $1,294,060 | |
| (+) Senior Appraised Value: | + | $0 | |
| (+) Non-Senior Appraised Value: | + | $1,294,060 | |
| | | -------------------------- | |
| (=) Total Appraised Value: | = | $1,294,060 | |
| (–) Senior Exemption Loss: | – | $0 | |
| (–) Exemption Loss: | – | $0 | |
| | | -------------------------- | |
| (=) Taxable Value: | = | $1,294,060 | |
Taxing Jurisdiction
| Owner: | KNIGHT PAUL D | | |
| % Ownership: | 100.0000000000% | | |
| Total Value: | $1,294,060 | | |
| Tax Area: | 311 - 250-4 |
| CERFD | CURRENT EXPENSE REFUND 010 | 0.0000000000 | $1,294,060 | $1,294,060 | $0.00 | | |
| CURREXP | CURRENT EXPENSE 010 | 1.0175366760 | $1,294,060 | $1,294,060 | $1,316.75 | | |
| HUMNSERV | HUMAN SERVICES 119 | 0.0250000000 | $1,294,060 | $1,294,060 | $32.35 | | |
| SLDREL | SOLDIERS RELIEF 121 | 0.0155990005 | $1,294,060 | $1,294,060 | $20.19 | | |
| EMERGSER | EMS 147 | 0.3792580840 | $1,294,060 | $1,294,060 | $490.78 | | |
| EMSRFD | EMS REFUND 147 | 0.0000000000 | $1,294,060 | $1,294,060 | $0.00 | | |
| FD4EXP | FD #4 EXPENSE 686 | 0.8836993059 | $1,294,060 | $1,294,060 | $1,143.56 | | |
| RLBRFD | RURAL LIBRARY REFUND 623 | 0.0000000000 | $1,294,060 | $1,294,060 | $0.00 | | |
| RURALLIB | RURAL LIBRARY 623 | 0.3710609029 | $1,294,060 | $1,294,060 | $480.18 | | |
| PORTRFD | PORT REFUND 640 | 0.0000000000 | $1,294,060 | $1,294,060 | $0.00 | | |
| PORTWWGEN | PORT OF WW 640 | 0.2460186015 | $1,294,060 | $1,294,060 | $318.36 | | |
| SD250BOND | SD #250 BOND 773 | 1.4560608159 | $1,294,060 | $1,294,060 | $1,884.23 | | |
| SD250GEN | SD #250 GENERAL 770 | 2.3880724087 | $1,294,060 | $1,294,060 | $3,090.31 | | |
| ST2 | STATE SCHOOL PART 2 600 | 0.8131451643 | $1,294,060 | $1,294,060 | $1,052.26 | | |
| STATESCHL | STATE SCHOOL 600 | 1.5158548041 | $1,294,060 | $1,294,060 | $1,961.61 | | |
| STREFUND | STATE REFUND LEVY 603 | 0.0000000000 | $1,294,060 | $1,294,060 | $0.00 | | |
| COROAD | COUNTY ROAD 115 | 1.6549953990 | $1,294,060 | $1,294,060 | $2,141.66 | | |
| CRPRD | COUNTY ROAD REFUND 115 | 0.0000000000 | $1,294,060 | $1,294,060 | $0.00 | | |
| | Total Tax Rate: | 10.7663011628 | | | | | |
| | | | | Taxes w/Current Exemptions: | $13,932.24 | | |
| | | | | Taxes w/o Exemptions: | $13,932.24 | | |
Improvement / Building
| Improvement #1: | RESIDENTIAL | State Code: | 11 | 2780.0 sqft | Value: | $1,094,060 |
| Exterior Wall: | SIDING | Heating/Cooling: | HEAT PUMP | | Number of Bathrooms: | 2 | Number of Bedrooms: | 2 | | Plumbing: | 16 | Roof Covering: | BITUMEN MEMBRANE |
|
| | Type | Description | Class CD | Sub Class CD | Year Built | Area |
| | MA | Main Area | 1 | 55 | 2019 | 2780.0 |
| | DTG | Detached Garage | 1 | 55 | 2019 | 1775.0 |
| | BRW | BREEZEWAY | 1 | 55 | 2019 | 126.0 |
| | RPC | OPEN PORCH W/ROOF , CEILED | 1 | 55 | 2019 | 48.0 |
| | RPC | OPEN PORCH W/ROOF , CEILED | 1 | 55 | 2019 | 83.0 |
| | RPC | OPEN PORCH W/ROOF , CEILED | 1 | 55 | 2019 | 856.0 |
| | LOFT | Loft Area | 1 | 55 | 2019 | 234.0 |
| | FBAT | FULL BATH | 1 | 55 | 2019 | 1.0 |
| | GFP | GAS FIREPLACE | 1 | 55 | 2019 | 2.0 |
| | SI1 | SITE IMPROVEMENT | 1 | 55 | 2019 | 7.0 |
| | SMP | SWIMMING POOL | 1 | 55 | 2019 | 1.0 |
Sketch
Property Image
Land
| 1 | RES 1 | Converted: Residential | 2.3100 | 100623.60 | 0.00 | 0.00 | 1.00 | $200,000 | $0 |
Roll Value History
| 2025 | N/A | N/A | N/A | N/A | N/A |
| 2024 | $1,367,570 | $200,000 | $0 | $1,567,570 | $1,567,570 |
| 2023 | $1,094,060 | $200,000 | $0 | $1,294,060 | $1,294,060 |
| 2022 | $575,820 | $200,000 | $0 | $775,820 | $775,820 |
| 2021 | $548,400 | $200,000 | $0 | $748,400 | $748,400 |
| 2020 | $317,910 | $200,000 | $0 | $517,910 | $517,910 |
| 2019 | $10,000 | $100,000 | $0 | $110,000 | $110,000 |
| 2018 | $0 | $100,000 | $0 | $100,000 | $100,000 |
| 2017 | $0 | $100,000 | $0 | $100,000 | $100,000 |
| 2016 | $0 | $100,000 | $0 | $100,000 | $100,000 |
| 2015 | $0 | $100,000 | $0 | $100,000 | $100,000 |
| 2014 | $0 | $100,000 | $0 | $100,000 | $100,000 |
| 2013 | $0 | $160,000 | $0 | $160,000 | $160,000 |
| 2012 | $0 | $160,000 | $0 | $0 | $0 |
| 2011 | $0 | $245,000 | $0 | $0 | $0 |
| 2010 | $0 | $245,000 | $0 | $0 | $0 |
| 2009 | $0 | $245,000 | $0 | $0 | $0 |
| 2008 | $0 | $5,300 | $0 | $0 | $0 |
| 2007 | $0 | $2,600 | $0 | $0 | $0 |
| 2006 | $0 | $2,600 | $0 | $0 | $0 |
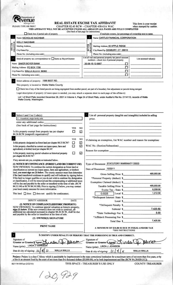
Deed and Sales History
| 1 | 02/15/2017 | SWD | STATUTORY WARRANTY DEED | MISTY ASSETS EAST LLC | KNIGHT PAUL D | | | $205,000.00 | 131900 | 2017-01248 |
| 2 | 05/14/2015 | SWD | STATUTORY WARRANTY DEED | MISTY ASSETS LLC | MISTY ASSETS EAST LLC | | 2-PARCELS | | 127964 | 2015-04061 |
| 3 | 04/24/2015 | WARRANTY D | WARRANTY DEED | DOAN CREEK LLC | MISTY ASSETS LLC | | 2-PARCELS | $233,333.00 | 127829 | 2015-03332 |
|   | |
| 4 | 09/20/2011 | WARRANTY D | WARRANTY DEED | "CENTURY PLACE LLC, MARK~FREDL | | | | | 0 | 2011-07324 |
| 5 | 09/06/2011 | WARRANTY D | WARRANTY DEED | WALLA WALLA COUNTY~SHERIFF | DOAN CREEK LLC | | | | 0 | 2011-06932 |
| 6 | 02/01/2011 | QCD | QUIT CLAIM DEED | CENTURY PLACE LLC | BANK OF WHITMAN | | | | 119679 | 2011-01014 |
| 7 | 08/28/2007 | WARRANTY D | WARRANTY DEED | RIETZ CENTURY PLACE LLC | CENTURY PLACE LLC | | | | 113602 | 2007-10126 |
Payout Agreement
| No payout information available.. |