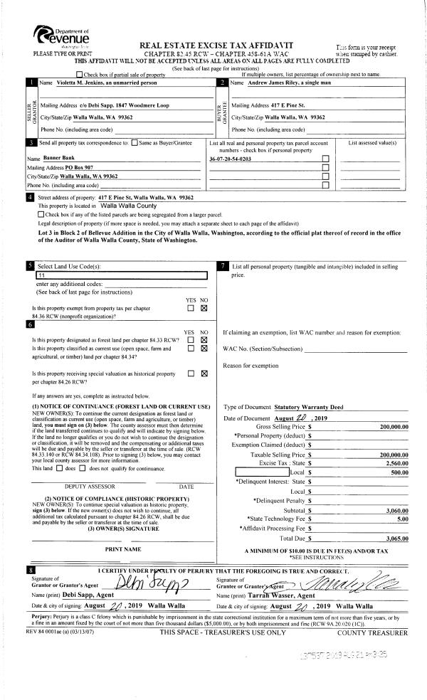
Property
Account |
| Property ID: | 22967 | Abbreviated Legal Description: | BLALOCK ORCHARDS TAX 21 LOT 2 BLK 35 |
| Parcel Number: | 350725523527 | Agent Code: | |
| Type: | Real | | |
| Tax Area: | 75 - CP 250 | Land Use Code | 11 |
| Open Space: | N | DFL | N |
| Historic Property: | N | Remodel Property: | N |
| Multi-Family Redevelopment: | N | | |
| Township: | 7 | Section: | 25 |
| Range: | 35 |
Location |
| Address: | 307 NE COTTONWOOD LN WA 99324 | Mapsco: | |
| Neighborhood: | A SFR | Map ID: | |
| Neighborhood CD: | 113011 |
Owner |
| Name: | ALVARADO SERGIO SALDANA | Owner ID: | 66057 |
| Mailing Address: | 307 NE COTTONWOOD LN COLLEGE PLACE, WA 99324 | % Ownership: | 100.0000000000% |
| | | Exemptions: | |
Taxes and Assessment Details
Values
| (+) Improvement Homesite Value: | + | $0 | |
| (+) Improvement Non-Homesite Value: | + | $157,950 | |
| (+) Land Homesite Value: | + | $0 | |
| (+) Land Non-Homesite Value: | + | $61,040 | |
| (+) Curr Use (HS): | + | $0 | $0 |
| (+) Curr Use (NHS): | + | $0 | $0 |
| | | -------------------------- | |
| (=) Market Value: | = | $218,990 | |
| (–) Productivity Loss: | – | $0 | |
| | | -------------------------- | |
| (=) Subtotal: | = | $218,990 | |
| (+) Senior Appraised Value: | + | $0 | |
| (+) Non-Senior Appraised Value: | + | $218,990 | |
| | | -------------------------- | |
| (=) Total Appraised Value: | = | $218,990 | |
| (–) Senior Exemption Loss: | – | $0 | |
| (–) Exemption Loss: | – | $0 | |
| | | -------------------------- | |
| (=) Taxable Value: | = | $218,990 | |
Taxing Jurisdiction
| Owner: | ALVARADO SERGIO SALDANA | | |
| % Ownership: | 100.0000000000% | | |
| Total Value: | $218,990 | | |
| Tax Area: | 75 - CP 250 |
| CERFD | CURRENT EXPENSE REFUND 010 | 0.0000000000 | $218,990 | $218,990 | $0.00 | | |
| CURREXP | CURRENT EXPENSE 010 | 1.0175366760 | $218,990 | $218,990 | $222.83 | | |
| HUMNSERV | HUMAN SERVICES 119 | 0.0250000000 | $218,990 | $218,990 | $5.47 | | |
| SLDREL | SOLDIERS RELIEF 121 | 0.0155990005 | $218,990 | $218,990 | $3.42 | | |
| COLLPLBOND | C OF CP BOND 644 | 0.4374241808 | $218,990 | $218,990 | $95.79 | | |
| COLLPLGEN | CITY OF CP 632 | 1.4453819216 | $218,990 | $218,990 | $316.52 | | |
| EMERGSER | EMS 147 | 0.3792580840 | $218,990 | $218,990 | $83.05 | | |
| EMSRFD | EMS REFUND 147 | 0.0000000000 | $218,990 | $218,990 | $0.00 | | |
| RURALLIB | RURAL LIBRARY 623 | 0.3710609029 | $218,990 | $218,990 | $81.26 | | |
| PORTRFD | PORT REFUND 640 | 0.0000000000 | $218,990 | $218,990 | $0.00 | | |
| PORTWWGEN | PORT OF WW 640 | 0.2460186015 | $218,990 | $218,990 | $53.88 | | |
| SD250BOND | SD #250 BOND 773 | 1.4560608159 | $218,990 | $218,990 | $318.86 | | |
| SD250GEN | SD #250 GENERAL 770 | 2.3880724087 | $218,990 | $218,990 | $522.96 | | |
| ST2 | STATE SCHOOL PART 2 600 | 0.8131451643 | $218,990 | $218,990 | $178.07 | | |
| STATESCHL | STATE SCHOOL 600 | 1.5158548041 | $218,990 | $218,990 | $331.96 | | |
| STREFUND | STATE REFUND LEVY 603 | 0.0000000000 | $218,990 | $218,990 | $0.00 | | |
| | Total Tax Rate: | 10.1104125603 | | | | | |
| | | | | Taxes w/Current Exemptions: | $2,214.07 | | |
| | | | | Taxes w/o Exemptions: | $2,214.07 | | |
Improvement / Building
| Improvement #1: | RESIDENTIAL | State Code: | 11 | 1260.0 sqft | Value: | $157,950 |
| Exterior Wall: | SIDING | Heating/Cooling: | FORCED AIR | | Number of Bathrooms: | 2 | Number of Bedrooms: | 2 | | Plumbing: | 10 | Roof Covering: | COMP SHINGLE |
|
| | Type | Description | Class CD | Sub Class CD | Year Built | Area |
| | MA | Main Area | 4 | 25 | 1946 | 1260.0 |
| | UPFL | Upper Floor (included in main area) | 4 | 25 | 1946 | 450.0 |
| | SI1 | SITE IMPROVEMENT | 4 | 25 | 1946 | 1.0 |
| | BASE | BASEMENT | 4 | 25 | 1946 | 810.0 |
| | BPF | BASEMENT -PARTITIONED FINISH | 4 | 25 | 1946 | 600.0 |
| | OPS | OPEN PORCH W/STEPS | 4 | 25 | 1946 | 25.0 |
| | CPC | COVERED CARPORT/PATIO | 4 | 25 | 1946 | 96.0 |
| | UTST | Utility Storage Shed | 4 | 25 | 1946 | 140.0 |
Sketch
Property Image
Land
| 1 | RES 1 | Converted: Residential | 0.2200 | 9583.00 | 0.00 | 0.00 | 1.00 | $61,040 | $0 |
Roll Value History
| 2025 | N/A | N/A | N/A | N/A | N/A |
| 2024 | $173,740 | $61,040 | $0 | $234,780 | $234,780 |
| 2023 | $157,950 | $61,040 | $0 | $218,990 | $218,990 |
| 2022 | $157,950 | $61,040 | $0 | $218,990 | $218,990 |
| 2021 | $117,000 | $61,040 | $0 | $178,040 | $178,040 |
| 2020 | $106,360 | $61,040 | $0 | $167,400 | $167,400 |
| 2019 | $144,600 | $22,800 | $0 | $167,400 | $167,400 |
| 2018 | $120,500 | $22,800 | $0 | $143,300 | $143,300 |
| 2017 | $120,500 | $22,800 | $0 | $143,300 | $143,300 |
| 2016 | $120,500 | $22,800 | $0 | $143,300 | $143,300 |
| 2015 | $120,500 | $22,800 | $0 | $143,300 | $143,300 |
| 2014 | $120,500 | $22,800 | $0 | $143,300 | $143,300 |
| 2013 | $120,500 | $22,800 | $0 | $143,300 | $143,300 |
| 2012 | $120,500 | $22,800 | $0 | $0 | $0 |
| 2011 | $113,700 | $22,800 | $0 | $0 | $0 |
| 2010 | $113,700 | $22,800 | $0 | $0 | $0 |
| 2009 | $104,900 | $46,800 | $0 | $0 | $0 |
| 2008 | $84,800 | $24,400 | $0 | $0 | $0 |
| 2007 | $84,800 | $24,400 | $0 | $0 | $0 |
| 2006 | $84,800 | $24,400 | $0 | $0 | $0 |
Deed and Sales History
| 1 | 09/26/2019 | QCD | QUIT CLAIM DEED | DIAZ YESENIA FLORES | ALVARADO SERGIO SALDANA | | | | 137758 | 2019-07614 |
| 2 | 09/26/2019 | SWD | STATUTORY WARRANTY DEED | BRUEGGEMAN DAVID O ESTATE OF | ALVARADO SERGIO SALDANA | | | $172,000.00 | 137757 | 2019-07613 |
| 3 | 07/19/2000 | WARRANTY D | WARRANTY DEED | | | | | $92,500.00 | 95463 | 3000-006882 |
Payout Agreement
| No payout information available.. |