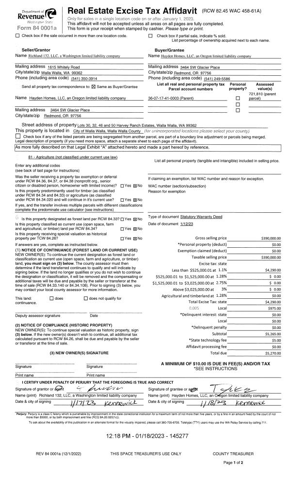
Property
Account |
| Property ID: | 22938 | Abbreviated Legal Description: | JM MOORE PLACE PARCEL 9 |
| Parcel Number: | 360721680909 | Agent Code: | |
| Type: | Real | | |
| Tax Area: | 1 - OL-140-F | Land Use Code | 58 |
| Open Space: | N | DFL | N |
| Historic Property: | N | Remodel Property: | N |
| Multi-Family Redevelopment: | N | | |
| Township: | 7 | Section: | 21 |
| Range: | 36 |
Location |
| Address: | 1815 ISAACS AVE WA 99362 | Mapsco: | |
| Neighborhood: | WW Downtown Core Area #2 | Map ID: | |
| Neighborhood CD: | 5342 |
Owner |
| Name: | GST EXEMPT BYPASS TRUST | Owner ID: | 55719 |
| Mailing Address: | UNDER THE MCCLOSKEY FAMILY TRUST AGREEMENT 1 BALDWIN AVE #703 SAN MATEO, CA 94401 | % Ownership: | 100.0000000000% |
| | | Exemptions: | |
Taxes and Assessment Details
Values
| (+) Improvement Homesite Value: | + | $0 | |
| (+) Improvement Non-Homesite Value: | + | $716,400 | |
| (+) Land Homesite Value: | + | $0 | |
| (+) Land Non-Homesite Value: | + | $315,000 | |
| (+) Curr Use (HS): | + | $0 | $0 |
| (+) Curr Use (NHS): | + | $0 | $0 |
| | | -------------------------- | |
| (=) Market Value: | = | $1,031,400 | |
| (–) Productivity Loss: | – | $0 | |
| | | -------------------------- | |
| (=) Subtotal: | = | $1,031,400 | |
| (+) Senior Appraised Value: | + | $0 | |
| (+) Non-Senior Appraised Value: | + | $1,031,400 | |
| | | -------------------------- | |
| (=) Total Appraised Value: | = | $1,031,400 | |
| (–) Senior Exemption Loss: | – | $0 | |
| (–) Exemption Loss: | – | $0 | |
| | | -------------------------- | |
| (=) Taxable Value: | = | $1,031,400 | |
Taxing Jurisdiction
| Owner: | GST EXEMPT BYPASS TRUST | | |
| % Ownership: | 100.0000000000% | | |
| Total Value: | $1,031,400 | | |
| Tax Area: | 1 - OL-140-F |
| CERFD | CURRENT EXPENSE REFUND 010 | 0.0000000000 | $1,031,400 | $1,031,400 | $0.00 | | |
| CURREXP | CURRENT EXPENSE 010 | 1.0175366760 | $1,031,400 | $1,031,400 | $1,049.49 | | |
| HUMNSERV | HUMAN SERVICES 119 | 0.0250000000 | $1,031,400 | $1,031,400 | $25.79 | | |
| SLDREL | SOLDIERS RELIEF 121 | 0.0155990005 | $1,031,400 | $1,031,400 | $16.09 | | |
| EMERGSER | EMS 147 | 0.3792580840 | $1,031,400 | $1,031,400 | $391.17 | | |
| EMSRFD | EMS REFUND 147 | 0.0000000000 | $1,031,400 | $1,031,400 | $0.00 | | |
| PORTRFD | PORT REFUND 640 | 0.0000000000 | $1,031,400 | $1,031,400 | $0.00 | | |
| PORTWWGEN | PORT OF WW 640 | 0.2460186015 | $1,031,400 | $1,031,400 | $253.74 | | |
| SD140BOND | SD #140 BOND 764 | 0.8342371393 | $1,031,400 | $1,031,400 | $860.43 | | |
| SD140GEN | SD #140 GENERAL 760 | 2.0646500647 | $1,031,400 | $1,031,400 | $2,129.48 | | |
| ST2 | STATE SCHOOL PART 2 600 | 0.8131451643 | $1,031,400 | $1,031,400 | $838.68 | | |
| STATESCHL | STATE SCHOOL 600 | 1.5158548041 | $1,031,400 | $1,031,400 | $1,563.45 | | |
| STREFUND | STATE REFUND LEVY 603 | 0.0000000000 | $1,031,400 | $1,031,400 | $0.00 | | |
| CWWBOND | C OF WW BOND 643 | 0.2760494372 | $1,031,400 | $1,031,400 | $284.72 | | |
| CWWGEN | CITY OF WW 631 | 1.6100204973 | $1,031,400 | $1,031,400 | $1,660.58 | | |
| CWWRFD | CITY OF WALLA WALLA REFUND 631 | 0.0000000000 | $1,031,400 | $1,031,400 | $0.00 | | |
| | Total Tax Rate: | 8.7973694689 | | | | | |
| | | | | Taxes w/Current Exemptions: | $9,073.62 | | |
| | | | | Taxes w/o Exemptions: | $9,073.62 | | |
Improvement / Building
| Improvement #1: | COMMERCIAL | State Code: | 58 | 2181.0 sqft | Value: | $716,400 |
| | Type | Description | Class CD | Sub Class CD | Year Built | Area |
| | MA | Main Area | D | | 1981 | 2181.0 |
| | SI1 | SITE IMPROVEMENT | D | * | 1981 | 11.0 |
| | PRKSTLA | PARK STALL AVERAGE | D | * | 1981 | 20.0 |
Sketch
Property Image
Land
| 1 | COM 1 | Converted: Commercial | 0.6026 | 26248.00 | 0.00 | 0.00 | 1.00 | $315,000 | $0 |
Roll Value History
| 2025 | N/A | N/A | N/A | N/A | N/A |
| 2024 | $722,100 | $315,000 | $0 | $1,037,100 | $1,037,100 |
| 2023 | $716,400 | $315,000 | $0 | $1,031,400 | $1,031,400 |
| 2022 | $391,400 | $262,500 | $0 | $653,900 | $653,900 |
| 2021 | $391,400 | $262,500 | $0 | $653,900 | $653,900 |
| 2020 | $391,400 | $262,500 | $0 | $653,900 | $653,900 |
| 2019 | $391,400 | $262,500 | $0 | $653,900 | $653,900 |
| 2018 | $391,400 | $262,500 | $0 | $653,900 | $653,900 |
| 2017 | $369,600 | $244,900 | $0 | $614,500 | $614,500 |
| 2016 | $369,600 | $244,900 | $0 | $614,500 | $614,500 |
| 2015 | $369,600 | $244,900 | $0 | $614,500 | $614,500 |
| 2014 | $369,600 | $291,000 | $0 | $660,600 | $660,600 |
| 2013 | $369,600 | $291,000 | $0 | $660,600 | $660,600 |
| 2012 | $471,900 | $194,600 | $0 | $0 | $0 |
| 2011 | $281,500 | $147,400 | $0 | $0 | $0 |
| 2010 | $281,500 | $147,400 | $0 | $0 | $0 |
| 2009 | $281,500 | $147,400 | $0 | $0 | $0 |
| 2008 | $281,500 | $147,400 | $0 | $0 | $0 |
| 2007 | $281,500 | $147,400 | $0 | $0 | $0 |
| 2006 | $275,000 | $103,200 | $0 | $0 | $0 |
Deed and Sales History
| 1 | 11/18/2014 | SWD | STATUTORY WARRANTY DEED | HONU WALLA WALLA LLC | GST EXEMPT BYPASS TRUST | | | $1,075,000.00 | 126959 | 2014-08374 |
| 2 | 06/18/2014 | SURVEY | SURVEY | HONU WALLA WALLA LLC | | | | | 0 | 2014-04190 |
| 3 | 12/01/2010 | WARRANTY D | WARRANTY DEED | KING, THERESA ELIZABETH | HONU WALLA WALLA LLC | | | $880,000.00 | 119395 | 2010-09853 |
| 4 | 09/17/2004 | AFFIDAVIT | AFFIDAVIT | BRIGGS DAVID J & THERESA | BRIGGS THERESA E | | | | 0 | 2004-10745 |
| 5 | 10/15/1999 | WARRANTY D | WARRANTY DEED | | | | | $426,000.00 | 93840 | 2909-911921 |
Payout Agreement
| No payout information available.. |