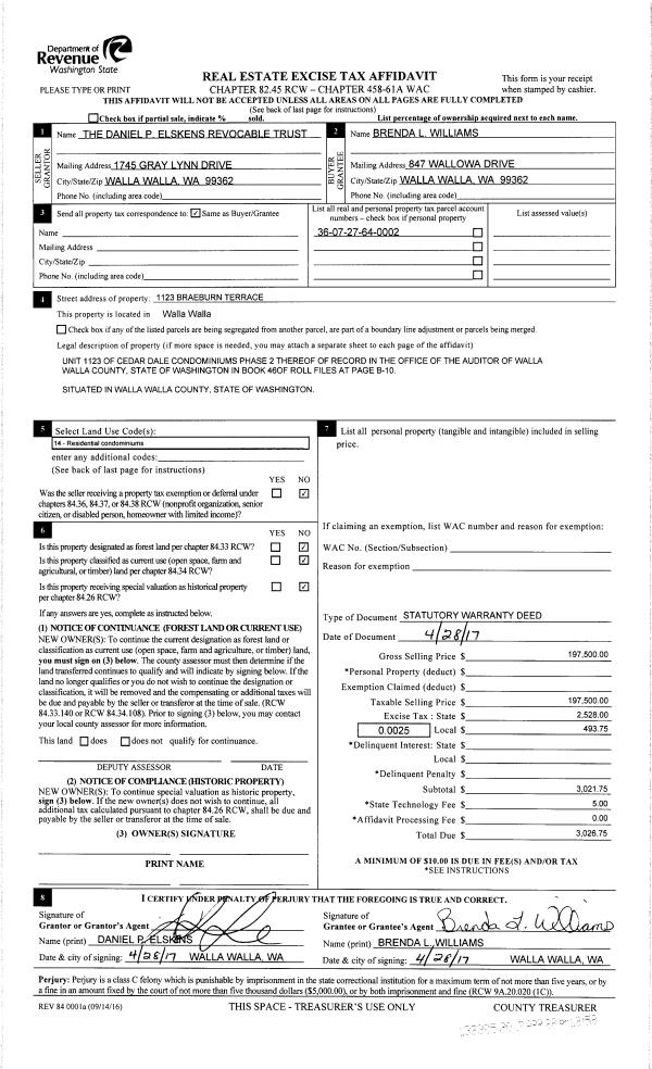
Property
Account |
| Property ID: | 22928 | Abbreviated Legal Description: | VALLEY HOMES SLY 1/2 OF LOT 8 LESS W 50' LESS SELY CORNER TO CITYOF WW |
| Parcel Number: | 360722560098 | Agent Code: | |
| Type: | Real | | |
| Tax Area: | 6 - OL-140-F-FB | Land Use Code | 11 |
| Open Space: | N | DFL | N |
| Historic Property: | N | Remodel Property: | N |
| Multi-Family Redevelopment: | N | | |
| Township: | 7 | Section: | 22 |
| Range: | 36 |
Location |
| Address: | 1831 E ALDER ST WA 99362 | Mapsco: | |
| Neighborhood: | A SFR | Map ID: | |
| Neighborhood CD: | 413011 |
Owner |
| Name: | POCK COLLEEN K | Owner ID: | 59250 |
| Mailing Address: | 1831 E ALDER ST WALLA WALLA, WA 99362 | % Ownership: | 100.0000000000% |
| | | Exemptions: | SNR/DSBL |
Taxes and Assessment Details
Values
| (+) Improvement Homesite Value: | + | $243,050 | |
| (+) Improvement Non-Homesite Value: | + | $0 | |
| (+) Land Homesite Value: | + | $80,880 | |
| (+) Land Non-Homesite Value: | + | $0 | |
| (+) Curr Use (HS): | + | $0 | $0 |
| (+) Curr Use (NHS): | + | $0 | $0 |
| | | -------------------------- | |
| (=) Market Value: | = | $323,930 | |
| (–) Productivity Loss: | – | $0 | |
| | | -------------------------- | |
| (=) Subtotal: | = | $323,930 | |
| (+) Senior Appraised Value: | + | $152,040 | |
| (+) Non-Senior Appraised Value: | + | $0 | |
| | | -------------------------- | |
| (=) Total Appraised Value: | = | $152,040 | |
| (–) Senior Exemption Loss: | – | $91,224 | |
| (–) Exemption Loss: | – | $0 | |
| | | -------------------------- | |
| (=) Taxable Value: | = | $60,816 | |
Taxing Jurisdiction
| Owner: | POCK COLLEEN K | | |
| % Ownership: | 100.0000000000% | | |
| Total Value: | $323,930 | | |
| Tax Area: | 6 - OL-140-F-FB |
| CERFD | CURRENT EXPENSE REFUND 010 | 0.0000000000 | $323,930 | $60,816 | $0.00 | | |
| CURREXP | CURRENT EXPENSE 010 | 1.0175366760 | $323,930 | $60,816 | $61.88 | | |
| HUMNSERV | HUMAN SERVICES 119 | 0.0250000000 | $323,930 | $60,816 | $1.52 | | |
| SLDREL | SOLDIERS RELIEF 121 | 0.0155990005 | $323,930 | $60,816 | $0.95 | | |
| EMERGSER | EMS 147 | 0.3792580840 | $323,930 | $60,816 | $23.06 | | |
| EMSRFD | EMS REFUND 147 | 0.0000000000 | $323,930 | $60,816 | $0.00 | | |
| PORTRFD | PORT REFUND 640 | 0.0000000000 | $323,930 | $60,816 | $0.00 | | |
| PORTWWGEN | PORT OF WW 640 | 0.2460186015 | $323,930 | $60,816 | $14.96 | | |
| SD140BOND | SD #140 BOND 764 | 0.0000000000 | $323,930 | $0 | $0.00 | | |
| SD140GEN | SD #140 GENERAL 760 | 0.0000000000 | $323,930 | $0 | $0.00 | | |
| ST2 | STATE SCHOOL PART 2 600 | 0.0000000000 | $323,930 | $0 | $0.00 | | |
| STATESCHL | STATE SCHOOL 600 | 1.5158548041 | $323,930 | $60,816 | $92.19 | | |
| STREFUND | STATE REFUND LEVY 603 | 0.0000000000 | $323,930 | $60,816 | $0.00 | | |
| CWWBOND | C OF WW BOND 643 | 0.0000000000 | $323,930 | $0 | $0.00 | | |
| CWWGEN | CITY OF WW 631 | 1.6100204973 | $323,930 | $60,816 | $97.92 | | |
| CWWRFD | CITY OF WALLA WALLA REFUND 631 | 0.0000000000 | $323,930 | $60,816 | $0.00 | | |
| | Total Tax Rate: | 4.8092876634 | | | | | |
| | | | | Taxes w/Current Exemptions: | $292.48 | | |
| | | | | Taxes w/o Exemptions: | $2,849.71 | | |
Improvement / Building
| Improvement #1: | RESIDENTIAL | State Code: | 11 | 1024.0 sqft | Value: | $243,050 |
| Exterior Wall: | VINYL | Heating/Cooling: | WARM & COOLED AIR | | Number of Bathrooms: | 1 | Number of Bedrooms: | 3 | | Plumbing: | 6 | Roof Covering: | COMP SHINGLE |
|
| | Type | Description | Class CD | Sub Class CD | Year Built | Area |
| | MA | Main Area | 1 | 30 | 1920 | 1024.0 |
| | SI1 | SITE IMPROVEMENT | 1 | 30 | 0 | 2.5 |
| | BASE | BASEMENT | 1 | 30 | 1920 | 544.0 |
| | BPF | BASEMENT -PARTITIONED FINISH | 1 | 30 | 1920 | 544.0 |
| | DTG | Detached Garage | 1 | 30 | 1920 | 330.0 |
| | OPS | OPEN PORCH W/STEPS | 1 | 30 | 1920 | 30.0 |
Sketch
Property Image
Land
| 1 | RES 1 | Converted: Residential | 0.2611 | 11375.00 | 0.00 | 0.00 | 1.00 | $80,880 | $0 |
Roll Value History
| 2025 | N/A | N/A | N/A | N/A | N/A |
| 2024 | $243,050 | $80,880 | $0 | $323,930 | $60,816 |
| 2023 | $243,050 | $80,880 | $0 | $323,930 | $60,816 |
| 2022 | $233,580 | $53,690 | $0 | $287,270 | $60,816 |
| 2021 | $186,860 | $53,690 | $0 | $240,550 | $60,816 |
| 2020 | $98,350 | $53,690 | $0 | $152,040 | $60,816 |
| 2019 | $98,350 | $53,690 | $0 | $152,040 | $60,816 |
| 2018 | $85,520 | $53,690 | $0 | $139,210 | $139,210 |
| 2017 | $85,520 | $53,690 | $0 | $139,210 | $139,210 |
| 2016 | $84,440 | $41,000 | $0 | $125,440 | $125,440 |
| 2015 | $84,440 | $41,000 | $0 | $125,440 | $125,440 |
| 2014 | $77,100 | $41,000 | $0 | $118,100 | $118,100 |
| 2013 | $77,100 | $41,000 | $0 | $118,100 | $118,100 |
| 2012 | $77,100 | $41,000 | $0 | $0 | $0 |
| 2011 | $90,200 | $41,000 | $0 | $0 | $0 |
| 2010 | $90,200 | $41,000 | $0 | $0 | $0 |
| 2009 | $104,800 | $41,000 | $0 | $0 | $0 |
| 2008 | $104,800 | $41,000 | $0 | $0 | $0 |
| 2007 | $104,800 | $41,000 | $0 | $0 | $0 |
| 2006 | $75,400 | $20,400 | $0 | $0 | $0 |
Deed and Sales History
| 1 | 01/28/2025 | TODD | TRANSFER ON DEATH DEED | POCK COLLEEN K | | | | | 0 | 2025-00150 |
| 2 | 07/11/2016 | SWD | STATUTORY WARRANTY DEED | DIMOCK ANGELICA | POCK COLLEEN K | | | $142,500.00 | 130587 | 2016-05333 |
| 3 | 06/03/2008 | WARRANTY D | WARRANTY DEED | SCHREINDL, MARK | DIMOCK, ANGELICA | | | $155,500.00 | 115125 | 2008-05599 |
| 4 | 07/29/2003 | WARRANTY D | WARRANTY DEED | FLOCH, DARYL T & MICHELLE L | SCHREINDL, MARK | | | $119,900.00 | 102662 | 2003-11238 |
| 5 | 12/11/1998 | WARRANTY D | WARRANTY DEED | | | | | $80,500.00 | 91807 | 2779-814359 |
Payout Agreement
| No payout information available.. |