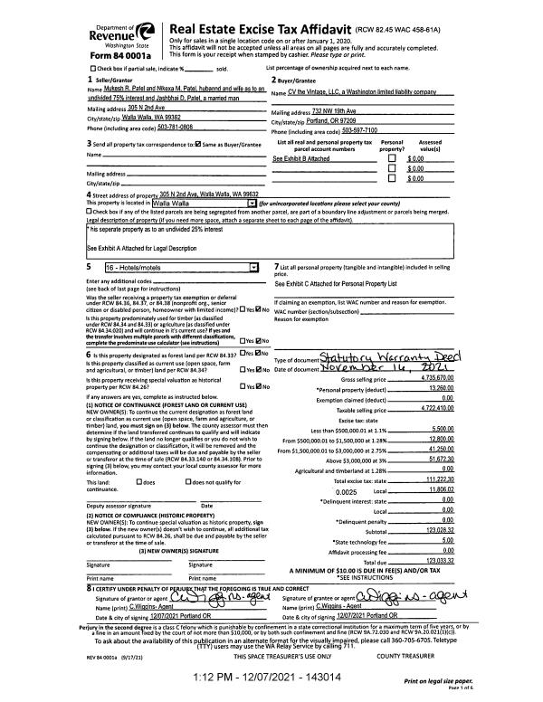
Property
Account |
| Property ID: | 22926 | Abbreviated Legal Description: | EASTLAWN LOTS 13 & 14 BLK 3 LESS ST |
| Parcel Number: | 360721530313 | Agent Code: | |
| Type: | Real | | |
| Tax Area: | 1 - OL-140-F | Land Use Code | 12 |
| Open Space: | N | DFL | N |
| Historic Property: | N | Remodel Property: | N |
| Multi-Family Redevelopment: | N | | |
| Township: | 7 | Section: | 21 |
| Range: | 36 |
Location |
| Address: | 1555 HOBSON ST WA 99362 | Mapsco: | |
| Neighborhood: | A-SFR MultiRes | Map ID: | |
| Neighborhood CD: | 513081 |
Owner |
| Name: | HAWKS IRMA KAREN | Owner ID: | 68641 |
| Mailing Address: | 1555 HOBSON ST WALLA WALLA, WA 99362 | % Ownership: | 100.0000000000% |
| | | Exemptions: | |
Taxes and Assessment Details
Values
| (+) Improvement Homesite Value: | + | $158,050 | |
| (+) Improvement Non-Homesite Value: | + | $0 | |
| (+) Land Homesite Value: | + | $62,830 | |
| (+) Land Non-Homesite Value: | + | $0 | |
| (+) Curr Use (HS): | + | $0 | $0 |
| (+) Curr Use (NHS): | + | $0 | $0 |
| | | -------------------------- | |
| (=) Market Value: | = | $220,880 | |
| (–) Productivity Loss: | – | $0 | |
| | | -------------------------- | |
| (=) Subtotal: | = | $220,880 | |
| (+) Senior Appraised Value: | + | $0 | |
| (+) Non-Senior Appraised Value: | + | $220,880 | |
| | | -------------------------- | |
| (=) Total Appraised Value: | = | $220,880 | |
| (–) Senior Exemption Loss: | – | $0 | |
| (–) Exemption Loss: | – | $0 | |
| | | -------------------------- | |
| (=) Taxable Value: | = | $220,880 | |
Taxing Jurisdiction
| Owner: | HAWKS IRMA KAREN | | |
| % Ownership: | 100.0000000000% | | |
| Total Value: | $220,880 | | |
| Tax Area: | 1 - OL-140-F |
| CERFD | CURRENT EXPENSE REFUND 010 | 0.0000000000 | $220,880 | $220,880 | $0.00 | | |
| CURREXP | CURRENT EXPENSE 010 | 1.0175366760 | $220,880 | $220,880 | $224.75 | | |
| HUMNSERV | HUMAN SERVICES 119 | 0.0250000000 | $220,880 | $220,880 | $5.52 | | |
| SLDREL | SOLDIERS RELIEF 121 | 0.0155990005 | $220,880 | $220,880 | $3.45 | | |
| EMERGSER | EMS 147 | 0.3792580840 | $220,880 | $220,880 | $83.77 | | |
| EMSRFD | EMS REFUND 147 | 0.0000000000 | $220,880 | $220,880 | $0.00 | | |
| PORTRFD | PORT REFUND 640 | 0.0000000000 | $220,880 | $220,880 | $0.00 | | |
| PORTWWGEN | PORT OF WW 640 | 0.2460186015 | $220,880 | $220,880 | $54.34 | | |
| SD140BOND | SD #140 BOND 764 | 0.8342371393 | $220,880 | $220,880 | $184.27 | | |
| SD140GEN | SD #140 GENERAL 760 | 2.0646500647 | $220,880 | $220,880 | $456.04 | | |
| ST2 | STATE SCHOOL PART 2 600 | 0.8131451643 | $220,880 | $220,880 | $179.61 | | |
| STATESCHL | STATE SCHOOL 600 | 1.5158548041 | $220,880 | $220,880 | $334.82 | | |
| STREFUND | STATE REFUND LEVY 603 | 0.0000000000 | $220,880 | $220,880 | $0.00 | | |
| CWWBOND | C OF WW BOND 643 | 0.2760494372 | $220,880 | $220,880 | $60.97 | | |
| CWWGEN | CITY OF WW 631 | 1.6100204973 | $220,880 | $220,880 | $355.62 | | |
| CWWRFD | CITY OF WALLA WALLA REFUND 631 | 0.0000000000 | $220,880 | $220,880 | $0.00 | | |
| | Total Tax Rate: | 8.7973694689 | | | | | |
| | | | | Taxes w/Current Exemptions: | $1,943.16 | | |
| | | | | Taxes w/o Exemptions: | $1,943.16 | | |
Improvement / Building
| Improvement #1: | RESIDENTIAL | State Code: | 12 | 1181.0 sqft | Value: | $107,550 |
| Exterior Wall: | HARDBOARD | Heating/Cooling: | WARM & COOLED AIR | | Number of Bathrooms: | 1 | Number of Bedrooms: | 3 | | Plumbing: | 6 | Roof Covering: | COMP SHINGLE |
|
| | Type | Description | Class CD | Sub Class CD | Year Built | Area |
| | MA | Main Area | 1 | 20 | 1947 | 1181.0 |
| | SI1 | SITE IMPROVEMENT | 1 | 20 | 1947 | 1.0 |
| | RPO | OPEN PORCH W/ROOF | 1 | 20 | 1947 | 48.0 |
| | RPO | OPEN PORCH W/ROOF | 1 | 20 | 1947 | 105.0 |
| Improvement #2: | RESIDENTIAL | State Code: | 12 | 561.0 sqft | Value: | $50,500 |
| Exterior Wall: | STUCCO | Heating/Cooling: | HEAT PUMP | | Number of Bathrooms: | 1 | Number of Bedrooms: | 1 | | Plumbing: | 6 | Roof Covering: | COMP SHINGLE |
|
| | Type | Description | Class CD | Sub Class CD | Year Built | Area |
| | MA | Main Area | 1 | 15 | 1947 | 561.0 |
| | SI1 | SITE IMPROVEMENT | 1 | 15 | 1947 | 1.0 |
| | RPS | PORCH W/STEPS,ROOF | 1 | 15 | 1947 | 39.0 |
Sketch
Property Image
Land
| 1 | RES 1 | Converted: Residential | 0.2424 | 10560.00 | 0.00 | 0.00 | 1.00 | $62,830 | $0 |
Roll Value History
| 2025 | N/A | N/A | N/A | N/A | N/A |
| 2024 | $146,800 | $77,300 | $0 | $224,100 | $224,100 |
| 2023 | $158,050 | $62,830 | $0 | $220,880 | $220,880 |
| 2022 | $158,050 | $62,830 | $0 | $220,880 | $220,880 |
| 2021 | $63,220 | $62,830 | $0 | $126,050 | $126,050 |
| 2020 | $48,630 | $62,830 | $0 | $111,460 | $111,460 |
| 2019 | $48,630 | $62,830 | $0 | $111,460 | $111,460 |
| 2018 | $46,320 | $62,830 | $0 | $109,150 | $109,150 |
| 2017 | $30,140 | $40,400 | $0 | $70,540 | $70,540 |
| 2016 | $28,700 | $40,400 | $0 | $69,100 | $69,100 |
| 2015 | $28,700 | $40,400 | $0 | $69,100 | $69,100 |
| 2014 | $28,700 | $40,400 | $0 | $69,100 | $69,100 |
| 2013 | $28,700 | $40,400 | $0 | $69,100 | $69,100 |
| 2012 | $28,700 | $40,400 | $0 | $0 | $0 |
| 2011 | $28,700 | $40,400 | $0 | $0 | $0 |
| 2010 | $28,700 | $40,400 | $0 | $0 | $0 |
| 2009 | $28,700 | $40,400 | $0 | $0 | $0 |
| 2008 | $28,700 | $40,400 | $0 | $0 | $0 |
| 2007 | $28,700 | $40,400 | $0 | $0 | $0 |
| 2006 | $42,900 | $20,200 | $0 | $0 | $0 |
Deed and Sales History
| 1 | 01/06/2021 | DPR | DEED OF PERSONAL REPRESENTATIVE | HAWKS PAUL FLOYD & IRMA KAREN | HAWKS IRMA KAREN | | | $0.00 | 140695 | 2021-00304 |
| 2 | 02/16/2018 | FUL | FULFILLMENT DEED | FLUOR IRWIN | HAWKS PAUL FLOYD & IRMA KAREN | | | | 0 | 2018-01323 |
| 3 | 06/02/2008 | WARRANTY D | WARRANTY DEED | FLUOR, IRWIN | HAWKS, PAUL FLOYD & IRMA KAREN | | | $66,000.00 | 115111 | 2008-05538 |
| 4 | 01/01/1951 | WARRANTY D | WARRANTY DEED | | | | | $0.00 | 0 | 2530-342005 |
Payout Agreement
| No payout information available.. |