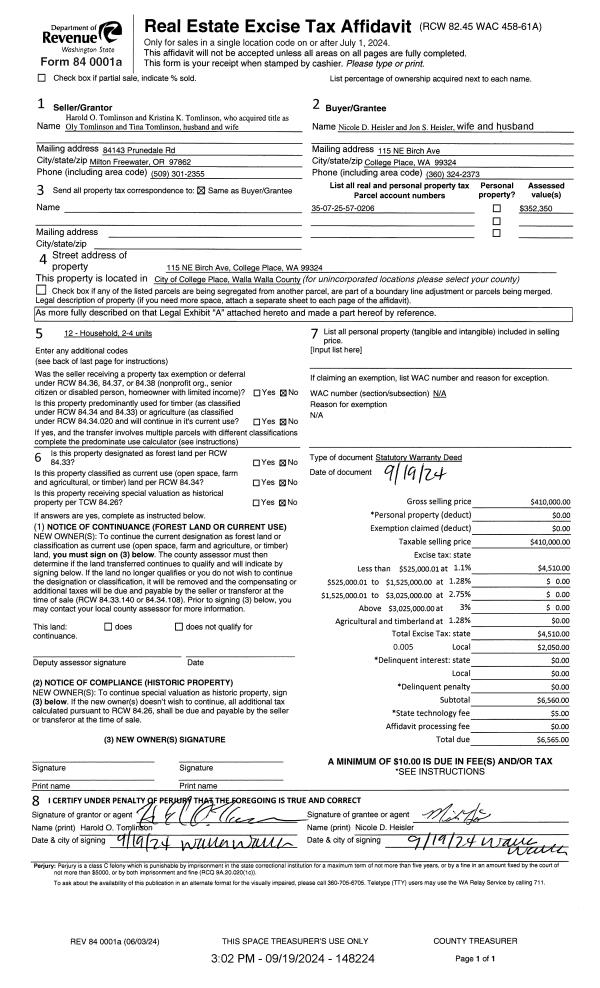
Property
Account |
| Property ID: | 22924 | Abbreviated Legal Description: | PARK ST GARDENS LOT 8 BLK 4 |
| Parcel Number: | 360728650408 | Agent Code: | |
| Type: | Real | | |
| Tax Area: | 1 - OL-140-F | Land Use Code | 11 |
| Open Space: | N | DFL | N |
| Historic Property: | N | Remodel Property: | N |
| Multi-Family Redevelopment: | N | | |
| Township: | 7 | Section: | 28 |
| Range: | 36 |
Location |
| Address: | 638 E CHESTNUT ST WA 99362 | Mapsco: | |
| Neighborhood: | A Res | Map ID: | |
| Neighborhood CD: | 613011 |
Owner |
| Name: | CHRISTOPHER DANIELLE L | Owner ID: | 64088 |
| Mailing Address: | JAMES B REMMEY JR 638 E CHESTNUT ST WALLA WALLA, WA 99362 | % Ownership: | 100.0000000000% |
| | | Exemptions: | |
Taxes and Assessment Details
Values
| (+) Improvement Homesite Value: | + | $0 | |
| (+) Improvement Non-Homesite Value: | + | $221,390 | |
| (+) Land Homesite Value: | + | $0 | |
| (+) Land Non-Homesite Value: | + | $70,000 | |
| (+) Curr Use (HS): | + | $0 | $0 |
| (+) Curr Use (NHS): | + | $0 | $0 |
| | | -------------------------- | |
| (=) Market Value: | = | $291,390 | |
| (–) Productivity Loss: | – | $0 | |
| | | -------------------------- | |
| (=) Subtotal: | = | $291,390 | |
| (+) Senior Appraised Value: | + | $0 | |
| (+) Non-Senior Appraised Value: | + | $291,390 | |
| | | -------------------------- | |
| (=) Total Appraised Value: | = | $291,390 | |
| (–) Senior Exemption Loss: | – | $0 | |
| (–) Exemption Loss: | – | $0 | |
| | | -------------------------- | |
| (=) Taxable Value: | = | $291,390 | |
Taxing Jurisdiction
| Owner: | CHRISTOPHER DANIELLE L | | |
| % Ownership: | 100.0000000000% | | |
| Total Value: | $291,390 | | |
| Tax Area: | 1 - OL-140-F |
| CERFD | CURRENT EXPENSE REFUND 010 | 0.0000000000 | $291,390 | $291,390 | $0.00 | | |
| CURREXP | CURRENT EXPENSE 010 | 1.0175366760 | $291,390 | $291,390 | $296.50 | | |
| HUMNSERV | HUMAN SERVICES 119 | 0.0250000000 | $291,390 | $291,390 | $7.28 | | |
| SLDREL | SOLDIERS RELIEF 121 | 0.0155990005 | $291,390 | $291,390 | $4.55 | | |
| EMERGSER | EMS 147 | 0.3792580840 | $291,390 | $291,390 | $110.51 | | |
| EMSRFD | EMS REFUND 147 | 0.0000000000 | $291,390 | $291,390 | $0.00 | | |
| PORTRFD | PORT REFUND 640 | 0.0000000000 | $291,390 | $291,390 | $0.00 | | |
| PORTWWGEN | PORT OF WW 640 | 0.2460186015 | $291,390 | $291,390 | $71.69 | | |
| SD140BOND | SD #140 BOND 764 | 0.8342371393 | $291,390 | $291,390 | $243.09 | | |
| SD140GEN | SD #140 GENERAL 760 | 2.0646500647 | $291,390 | $291,390 | $601.62 | | |
| ST2 | STATE SCHOOL PART 2 600 | 0.8131451643 | $291,390 | $291,390 | $236.94 | | |
| STATESCHL | STATE SCHOOL 600 | 1.5158548041 | $291,390 | $291,390 | $441.70 | | |
| STREFUND | STATE REFUND LEVY 603 | 0.0000000000 | $291,390 | $291,390 | $0.00 | | |
| CWWBOND | C OF WW BOND 643 | 0.2760494372 | $291,390 | $291,390 | $80.44 | | |
| CWWGEN | CITY OF WW 631 | 1.6100204973 | $291,390 | $291,390 | $469.14 | | |
| CWWRFD | CITY OF WALLA WALLA REFUND 631 | 0.0000000000 | $291,390 | $291,390 | $0.00 | | |
| | Total Tax Rate: | 8.7973694689 | | | | | |
| | | | | Taxes w/Current Exemptions: | $2,563.46 | | |
| | | | | Taxes w/o Exemptions: | $2,563.46 | | |
Improvement / Building
| Improvement #1: | RESIDENTIAL | State Code: | 11 | 652.0 sqft | Value: | $221,390 |
| Exterior Wall: | VINYL | Heating/Cooling: | WARM & COOLED AIR | | Number of Bathrooms: | 1 | Number of Bedrooms: | 4 | | Plumbing: | 7 | Roof Covering: | COMP SHINGLE |
|
| | Type | Description | Class CD | Sub Class CD | Year Built | Area |
| | MA | Main Area | 1 | 30 | 1942 | 652.0 |
| | SI1 | SITE IMPROVEMENT | 1 | 30 | 1942 | 1.5 |
| | BASE | BASEMENT | 1 | 30 | 1942 | 652.0 |
| | BPF | BASEMENT -PARTITIONED FINISH | 1 | 30 | 1942 | 652.0 |
| | RPS | PORCH W/STEPS,ROOF | 1 | 30 | 1942 | 35.0 |
| | CPC | COVERED CARPORT/PATIO | 1 | 30 | 1942 | 140.0 |
| | DTG | Detached Garage | 1 | 30 | 1942 | 308.0 |
Sketch
Property Image
Land
| 1 | RES 1 | Converted: Residential | 0.1377 | 6000.00 | 0.00 | 0.00 | 1.00 | $70,000 | $0 |
Roll Value History
| 2025 | N/A | N/A | N/A | N/A | N/A |
| 2024 | $221,390 | $70,000 | $0 | $291,390 | $291,390 |
| 2023 | $221,390 | $70,000 | $0 | $291,390 | $291,390 |
| 2022 | $210,840 | $55,000 | $0 | $265,840 | $265,840 |
| 2021 | $175,700 | $55,000 | $0 | $230,700 | $230,700 |
| 2020 | $159,730 | $55,000 | $0 | $214,730 | $214,730 |
| 2019 | $159,730 | $55,000 | $0 | $214,730 | $214,730 |
| 2018 | $125,200 | $36,000 | $0 | $161,200 | $161,200 |
| 2017 | $125,200 | $36,000 | $0 | $161,200 | $161,200 |
| 2016 | $119,240 | $36,000 | $0 | $155,240 | $155,240 |
| 2015 | $119,240 | $36,000 | $0 | $155,240 | $155,240 |
| 2014 | $108,400 | $36,000 | $0 | $144,400 | $144,400 |
| 2013 | $108,400 | $36,000 | $0 | $144,400 | $144,400 |
| 2012 | $108,400 | $36,000 | $0 | $0 | $0 |
| 2011 | $108,400 | $36,000 | $0 | $0 | $0 |
| 2010 | $95,300 | $36,000 | $0 | $0 | $0 |
| 2009 | $95,300 | $36,000 | $0 | $0 | $0 |
| 2008 | $95,300 | $36,000 | $0 | $0 | $0 |
| 2007 | $59,000 | $18,000 | $0 | $0 | $0 |
| 2006 | $59,000 | $18,000 | $0 | $0 | $0 |
Deed and Sales History
| 1 | 10/19/2018 | SWD | STATUTORY WARRANTY DEED | RODENBERG RICK R & JEANNE R | CHRISTOPHER DANIELLE L | | | $225,000.00 | 135766 | 2018-08675 |
| 2 | 06/06/2008 | WARRANTY D | WARRANTY DEED | BROWN, MICHAEL D | RODENBERG, RICK R & JEANNE R | | | $168,000.00 | 115147 | 2008-05810 |
| 3 | 09/27/2004 | WARRANTY D | WARRANTY DEED | KIBLER, VICKIE J | BROWN, MICHAEL D | | | $125,000.00 | 105817 | 2004-11150 |
| 4 | 07/22/2002 | WARRANTY D | WARRANTY DEED | | | | | $79,500.00 | 99988 | 2002-0008230 |
Payout Agreement
| No payout information available.. |