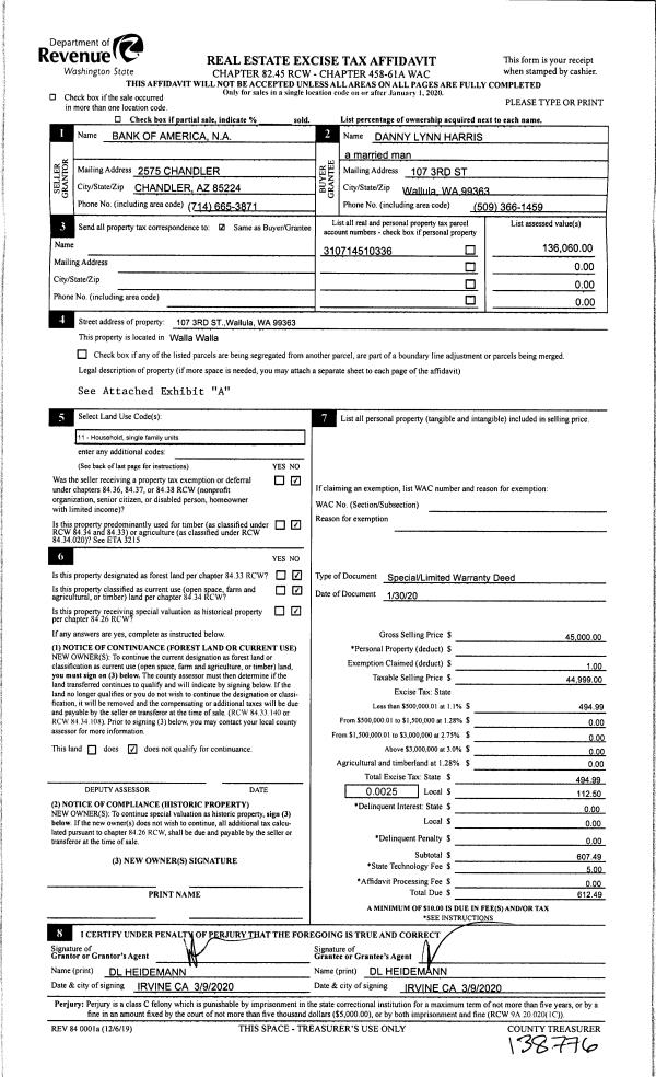
Property
Account |
| Property ID: | 22882 | Abbreviated Legal Description: | DIXIE LOTS 1 AND 2 BLK 29 LOTS 11 AND 12 BLK 29 PLUS PTN VAC RD |
| Parcel Number: | 370826512901 | Agent Code: | |
| Type: | Real | | |
| Tax Area: | 310 - 101-8 | Land Use Code | 11 |
| Open Space: | N | DFL | N |
| Historic Property: | N | Remodel Property: | N |
| Multi-Family Redevelopment: | N | | |
| Township: | 8 | Section: | 26 |
| Range: | 37 |
Location |
| Address: | 471 SECOND ST WA 99329 | Mapsco: | |
| Neighborhood: | Cycle 4 Dixie (SF) | Map ID: | |
| Neighborhood CD: | 413511 |
Owner |
| Name: | BURIANI MARY | Owner ID: | 67264 |
| Mailing Address: | ERIC RALLS PO BOX 84 DIXIE, WA 99329 | % Ownership: | 100.0000000000% |
| | | Exemptions: | |
Taxes and Assessment Details
Values
| (+) Improvement Homesite Value: | + | $0 | |
| (+) Improvement Non-Homesite Value: | + | $108,070 | |
| (+) Land Homesite Value: | + | $0 | |
| (+) Land Non-Homesite Value: | + | $46,900 | |
| (+) Curr Use (HS): | + | $0 | $0 |
| (+) Curr Use (NHS): | + | $0 | $0 |
| | | -------------------------- | |
| (=) Market Value: | = | $154,970 | |
| (–) Productivity Loss: | – | $0 | |
| | | -------------------------- | |
| (=) Subtotal: | = | $154,970 | |
| (+) Senior Appraised Value: | + | $0 | |
| (+) Non-Senior Appraised Value: | + | $154,970 | |
| | | -------------------------- | |
| (=) Total Appraised Value: | = | $154,970 | |
| (–) Senior Exemption Loss: | – | $0 | |
| (–) Exemption Loss: | – | $0 | |
| | | -------------------------- | |
| (=) Taxable Value: | = | $154,970 | |
Taxing Jurisdiction
| Owner: | BURIANI MARY | | |
| % Ownership: | 100.0000000000% | | |
| Total Value: | $154,970 | | |
| Tax Area: | 310 - 101-8 |
| CERFD | CURRENT EXPENSE REFUND 010 | 0.0000000000 | $154,970 | $154,970 | $0.00 | | |
| CURREXP | CURRENT EXPENSE 010 | 1.0175366760 | $154,970 | $154,970 | $157.69 | | |
| HUMNSERV | HUMAN SERVICES 119 | 0.0250000000 | $154,970 | $154,970 | $3.87 | | |
| SLDREL | SOLDIERS RELIEF 121 | 0.0155990005 | $154,970 | $154,970 | $2.42 | | |
| EMERGSER | EMS 147 | 0.3792580840 | $154,970 | $154,970 | $58.77 | | |
| EMSRFD | EMS REFUND 147 | 0.0000000000 | $154,970 | $154,970 | $0.00 | | |
| FD8EXP | FD #8 EXPENSE 697 | 0.6647992540 | $154,970 | $154,970 | $103.02 | | |
| RLBRFD | RURAL LIBRARY REFUND 623 | 0.0000000000 | $154,970 | $154,970 | $0.00 | | |
| RURALLIB | RURAL LIBRARY 623 | 0.3710609029 | $154,970 | $154,970 | $57.50 | | |
| PORTRFD | PORT REFUND 640 | 0.0000000000 | $154,970 | $154,970 | $0.00 | | |
| PORTWWGEN | PORT OF WW 640 | 0.2460186015 | $154,970 | $154,970 | $38.13 | | |
| SD101CAP | SD #101 CAP 752 | 0.5894423472 | $154,970 | $154,970 | $91.35 | | |
| SD101GEN | SD #101 GENERAL 750 | 0.7455117868 | $154,970 | $154,970 | $115.53 | | |
| ST2 | STATE SCHOOL PART 2 600 | 0.8131451643 | $154,970 | $154,970 | $126.01 | | |
| STATESCHL | STATE SCHOOL 600 | 1.5158548041 | $154,970 | $154,970 | $234.91 | | |
| STREFUND | STATE REFUND LEVY 603 | 0.0000000000 | $154,970 | $154,970 | $0.00 | | |
| COROAD | COUNTY ROAD 115 | 1.6549953990 | $154,970 | $154,970 | $256.47 | | |
| CRPRD | COUNTY ROAD REFUND 115 | 0.0000000000 | $154,970 | $154,970 | $0.00 | | |
| | Total Tax Rate: | 8.0382220203 | | | | | |
| | | | | Taxes w/Current Exemptions: | $1,245.67 | | |
| | | | | Taxes w/o Exemptions: | $1,245.67 | | |
Improvement / Building
| Improvement #1: | RESIDENTIAL | State Code: | 11 | 680.0 sqft | Value: | $108,070 |
| Exterior Wall: | PLYWOOD | Foundation: | POST & PIER | | Heating/Cooling: | BASEBOARD ELECTRIC | Number of Bathrooms: | 1 | | Number of Bedrooms: | 2 | Plumbing: | 6 | | Roof Covering: | COMP SHINGLE |   |   |
|
| | Type | Description | Class CD | Sub Class CD | Year Built | Area |
| | MA | Main Area | 1 | 20 | 1900 | 680.0 |
| | SI1 | SITE IMPROVEMENT | 1 | 20 | 1900 | 1.0 |
Sketch
Property Image
Land
| 1 | RES 1 | Converted: Residential | 0.7215 | 31428.00 | 0.00 | 0.00 | 1.00 | $46,900 | $0 |
Roll Value History
| 2025 | N/A | N/A | N/A | N/A | N/A |
| 2024 | $108,070 | $46,900 | $0 | $154,970 | $154,970 |
| 2023 | $108,070 | $46,900 | $0 | $154,970 | $154,970 |
| 2022 | $116,680 | $34,000 | $0 | $150,680 | $150,680 |
| 2021 | $101,460 | $34,000 | $0 | $135,460 | $135,460 |
| 2020 | $25,370 | $34,000 | $0 | $59,370 | $59,370 |
| 2019 | $25,370 | $34,000 | $0 | $59,370 | $59,370 |
| 2018 | $23,060 | $34,000 | $0 | $57,060 | $57,060 |
| 2017 | $23,060 | $34,000 | $0 | $57,060 | $57,060 |
| 2016 | $14,100 | $34,000 | $0 | $48,100 | $48,100 |
| 2015 | $14,100 | $34,000 | $0 | $48,100 | $48,100 |
| 2014 | $14,100 | $34,000 | $0 | $48,100 | $48,100 |
| 2013 | $14,100 | $34,000 | $0 | $48,100 | $48,100 |
| 2012 | $14,100 | $34,000 | $0 | $0 | $0 |
| 2011 | $20,200 | $34,000 | $0 | $0 | $0 |
| 2010 | $20,200 | $34,000 | $0 | $0 | $0 |
| 2009 | $32,600 | $21,600 | $0 | $0 | $0 |
| 2008 | $20,100 | $21,600 | $0 | $0 | $0 |
| 2007 | $20,100 | $21,600 | $0 | $0 | $0 |
| 2006 | $20,100 | $21,600 | $0 | $0 | $0 |
Deed and Sales History
| 1 | 06/03/2020 | SWD | STATUTORY WARRANTY DEED | LAMMERS JOHN L & ROSALIE | BURIANI MARY | | 2-PARCLES | $157,000.00 | 139208 | 2020-04944 |
|   | |
| 2 | 10/01/1995 | WARRANTY D | WARRANTY DEED | | | | | $27,500.00 | 85008 | 2359-510529 |
|   | |
Payout Agreement
| No payout information available.. |