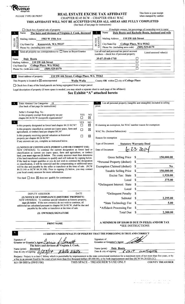
Property
Account |
| Property ID: | 22845 | Abbreviated Legal Description: | CARVER ADDITION LOT 2 |
| Parcel Number: | 350725720002 | Agent Code: | |
| Type: | Real | | |
| Tax Area: | 77 - CP-250-F | Land Use Code | 11 |
| Open Space: | N | DFL | N |
| Historic Property: | N | Remodel Property: | N |
| Multi-Family Redevelopment: | N | | |
| Township: | 7 | Section: | 25 |
| Range: | 35 |
Location |
| Address: | 817 NE BUNKY LN WA 99324 | Mapsco: | |
| Neighborhood: | G SFR | Map ID: | |
| Neighborhood CD: | 114011 |
Owner |
| Name: | SPENCER MICHELE J | Owner ID: | 56421 |
| Mailing Address: | 817 NE BUNKY LN COLLEGE PLACE, WA 99324 | % Ownership: | 100.0000000000% |
| | | Exemptions: | |
Taxes and Assessment Details
Values
| (+) Improvement Homesite Value: | + | $0 | |
| (+) Improvement Non-Homesite Value: | + | $342,130 | |
| (+) Land Homesite Value: | + | $0 | |
| (+) Land Non-Homesite Value: | + | $85,000 | |
| (+) Curr Use (HS): | + | $0 | $0 |
| (+) Curr Use (NHS): | + | $0 | $0 |
| | | -------------------------- | |
| (=) Market Value: | = | $427,130 | |
| (–) Productivity Loss: | – | $0 | |
| | | -------------------------- | |
| (=) Subtotal: | = | $427,130 | |
| (+) Senior Appraised Value: | + | $0 | |
| (+) Non-Senior Appraised Value: | + | $427,130 | |
| | | -------------------------- | |
| (=) Total Appraised Value: | = | $427,130 | |
| (–) Senior Exemption Loss: | – | $0 | |
| (–) Exemption Loss: | – | $0 | |
| | | -------------------------- | |
| (=) Taxable Value: | = | $427,130 | |
Taxing Jurisdiction
| Owner: | SPENCER MICHELE J | | |
| % Ownership: | 100.0000000000% | | |
| Total Value: | $427,130 | | |
| Tax Area: | 77 - CP-250-F |
| CERFD | CURRENT EXPENSE REFUND 010 | 0.0000000000 | $427,130 | $427,130 | $0.00 | | |
| CURREXP | CURRENT EXPENSE 010 | 1.0175366760 | $427,130 | $427,130 | $434.62 | | |
| HUMNSERV | HUMAN SERVICES 119 | 0.0250000000 | $427,130 | $427,130 | $10.68 | | |
| SLDREL | SOLDIERS RELIEF 121 | 0.0155990005 | $427,130 | $427,130 | $6.66 | | |
| COLLPLBOND | C OF CP BOND 644 | 0.4374241808 | $427,130 | $427,130 | $186.84 | | |
| COLLPLGEN | CITY OF CP 632 | 1.4453819216 | $427,130 | $427,130 | $617.37 | | |
| EMERGSER | EMS 147 | 0.3792580840 | $427,130 | $427,130 | $161.99 | | |
| EMSRFD | EMS REFUND 147 | 0.0000000000 | $427,130 | $427,130 | $0.00 | | |
| RURALLIB | RURAL LIBRARY 623 | 0.3710609029 | $427,130 | $427,130 | $158.49 | | |
| PORTRFD | PORT REFUND 640 | 0.0000000000 | $427,130 | $427,130 | $0.00 | | |
| PORTWWGEN | PORT OF WW 640 | 0.2460186015 | $427,130 | $427,130 | $105.08 | | |
| SD250BOND | SD #250 BOND 773 | 1.4560608159 | $427,130 | $427,130 | $621.93 | | |
| SD250GEN | SD #250 GENERAL 770 | 2.3880724087 | $427,130 | $427,130 | $1,020.02 | | |
| ST2 | STATE SCHOOL PART 2 600 | 0.8131451643 | $427,130 | $427,130 | $347.32 | | |
| STATESCHL | STATE SCHOOL 600 | 1.5158548041 | $427,130 | $427,130 | $647.47 | | |
| STREFUND | STATE REFUND LEVY 603 | 0.0000000000 | $427,130 | $427,130 | $0.00 | | |
| | Total Tax Rate: | 10.1104125603 | | | | | |
| | | | | Taxes w/Current Exemptions: | $4,318.47 | | |
| | | | | Taxes w/o Exemptions: | $4,318.47 | | |
Improvement / Building
| Improvement #1: | RESIDENTIAL | State Code: | 11 | 1690.0 sqft | Value: | $342,130 |
| Exterior Wall: | STUCCO | Heating/Cooling: | WARM & COOLED AIR | | Number of Bathrooms: | 2 | Number of Bedrooms: | 3 | | Plumbing: | 10 | Roof Covering: | COMP SHINGLE |
|
| | Type | Description | Class CD | Sub Class CD | Year Built | Area |
| | MA | Main Area | 1 | 35 | 2014 | 1690.0 |
| | ATG | Attached Garage | 1 | 35 | 2014 | 506.0 |
| | SI1 | SITE IMPROVEMENT | 1 | 35 | 2014 | 2.0 |
| | GFP | GAS FIREPLACE | 1 | 35 | 2014 | 1.0 |
| | RPC | OPEN PORCH W/ROOF , CEILED | 1 | 35 | 2014 | 220.0 |
| | RPC | OPEN PORCH W/ROOF , CEILED | 1 | 35 | 2014 | 50.0 |
Sketch
Property Image
Land
| 1 | RES 1 | Converted: Residential | 0.1732 | 7545.00 | 0.00 | 0.00 | 1.00 | $85,000 | $0 |
Roll Value History
| 2025 | N/A | N/A | N/A | N/A | N/A |
| 2024 | $376,350 | $85,000 | $0 | $461,350 | $461,350 |
| 2023 | $342,130 | $85,000 | $0 | $427,130 | $427,130 |
| 2022 | $285,110 | $85,000 | $0 | $370,110 | $370,110 |
| 2021 | $285,110 | $85,000 | $0 | $370,110 | $370,110 |
| 2020 | $203,650 | $85,000 | $0 | $288,650 | $288,650 |
| 2019 | $223,650 | $65,000 | $0 | $288,650 | $288,650 |
| 2018 | $186,380 | $65,000 | $0 | $251,380 | $251,380 |
| 2017 | $186,380 | $65,000 | $0 | $251,380 | $251,380 |
| 2016 | $177,500 | $65,000 | $0 | $242,500 | $242,500 |
| 2015 | $177,500 | $65,000 | $0 | $242,500 | $242,500 |
| 2014 | $92,800 | $65,000 | $0 | $157,800 | $157,800 |
| 2013 | $0 | $65,000 | $0 | $65,000 | $65,000 |
| 2012 | $0 | $65,000 | $0 | $0 | $0 |
| 2011 | $0 | $65,000 | $0 | $0 | $0 |
| 2010 | $0 | $65,000 | $0 | $0 | $0 |
| 2009 | $0 | $65,000 | $0 | $0 | $0 |
| 2008 | $0 | $4,700 | $0 | $0 | $0 |
| 2007 | $0 | $65,000 | $0 | $0 | $0 |
Deed and Sales History
| 1 | 04/14/2015 | SWD | STATUTORY WARRANTY DEED | REYES MARIO | SPENCER MICHELE J | | | $258,000.00 | 127775 | 2015-03020 |
| 2 | 01/11/2010 | QCD | QUIT CLAIM DEED | REYES, SANTIAGO | REYES, MARIO | | | | 117938 | 2010-00196 |
| 3 | 04/25/2007 | WARRANTY D | WARRANTY DEED | CARVER, KRIS E & ZANA A | REYES, SANTIAGO | | | $60,000.00 | 112689 | 2007-04589 |
Payout Agreement
| No payout information available.. |