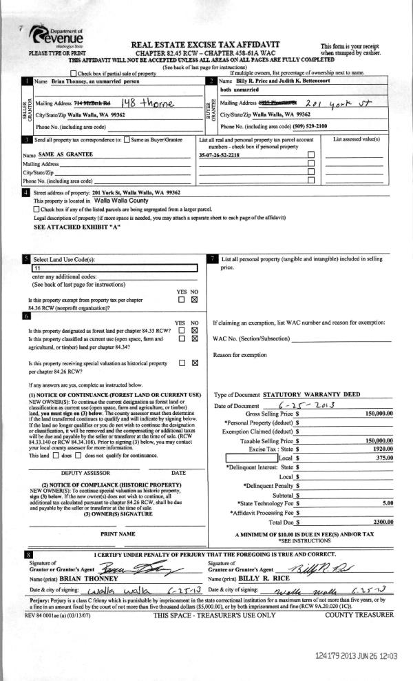
Property
Account |
| Property ID: | 22703 | Abbreviated Legal Description: | BRYANTS LOT 4 BLK 1 |
| Parcel Number: | 360728530104 | Agent Code: | |
| Type: | Real | | |
| Tax Area: | 1 - OL-140-F | Land Use Code | 11 |
| Open Space: | N | DFL | N |
| Historic Property: | N | Remodel Property: | N |
| Multi-Family Redevelopment: | N | | |
| Township: | 7 | Section: | 28 |
| Range: | 36 |
Location |
| Address: | 518 PLEASANT ST WA 99362 | Mapsco: | |
| Neighborhood: | A Res | Map ID: | |
| Neighborhood CD: | 613011 |
Owner |
| Name: | PAULL JONATHAN J & ANGELIQUE N | Owner ID: | 57656 |
| Mailing Address: | 518 PLEASANT ST WALLA WALLA, WA 99362 | % Ownership: | 100.0000000000% |
| | | Exemptions: | |
Taxes and Assessment Details
Values
| (+) Improvement Homesite Value: | + | $0 | |
| (+) Improvement Non-Homesite Value: | + | $305,520 | |
| (+) Land Homesite Value: | + | $0 | |
| (+) Land Non-Homesite Value: | + | $70,000 | |
| (+) Curr Use (HS): | + | $0 | $0 |
| (+) Curr Use (NHS): | + | $0 | $0 |
| | | -------------------------- | |
| (=) Market Value: | = | $375,520 | |
| (–) Productivity Loss: | – | $0 | |
| | | -------------------------- | |
| (=) Subtotal: | = | $375,520 | |
| (+) Senior Appraised Value: | + | $0 | |
| (+) Non-Senior Appraised Value: | + | $375,520 | |
| | | -------------------------- | |
| (=) Total Appraised Value: | = | $375,520 | |
| (–) Senior Exemption Loss: | – | $0 | |
| (–) Exemption Loss: | – | $0 | |
| | | -------------------------- | |
| (=) Taxable Value: | = | $375,520 | |
Taxing Jurisdiction
| Owner: | PAULL JONATHAN J & ANGELIQUE N | | |
| % Ownership: | 100.0000000000% | | |
| Total Value: | $375,520 | | |
| Tax Area: | 1 - OL-140-F |
| CERFD | CURRENT EXPENSE REFUND 010 | 0.0000000000 | $375,520 | $375,520 | $0.00 | | |
| CURREXP | CURRENT EXPENSE 010 | 1.0175366760 | $375,520 | $375,520 | $382.11 | | |
| HUMNSERV | HUMAN SERVICES 119 | 0.0250000000 | $375,520 | $375,520 | $9.39 | | |
| SLDREL | SOLDIERS RELIEF 121 | 0.0155990005 | $375,520 | $375,520 | $5.86 | | |
| EMERGSER | EMS 147 | 0.3792580840 | $375,520 | $375,520 | $142.42 | | |
| EMSRFD | EMS REFUND 147 | 0.0000000000 | $375,520 | $375,520 | $0.00 | | |
| PORTRFD | PORT REFUND 640 | 0.0000000000 | $375,520 | $375,520 | $0.00 | | |
| PORTWWGEN | PORT OF WW 640 | 0.2460186015 | $375,520 | $375,520 | $92.38 | | |
| SD140BOND | SD #140 BOND 764 | 0.8342371393 | $375,520 | $375,520 | $313.27 | | |
| SD140GEN | SD #140 GENERAL 760 | 2.0646500647 | $375,520 | $375,520 | $775.32 | | |
| ST2 | STATE SCHOOL PART 2 600 | 0.8131451643 | $375,520 | $375,520 | $305.35 | | |
| STATESCHL | STATE SCHOOL 600 | 1.5158548041 | $375,520 | $375,520 | $569.23 | | |
| STREFUND | STATE REFUND LEVY 603 | 0.0000000000 | $375,520 | $375,520 | $0.00 | | |
| CWWBOND | C OF WW BOND 643 | 0.2760494372 | $375,520 | $375,520 | $103.66 | | |
| CWWGEN | CITY OF WW 631 | 1.6100204973 | $375,520 | $375,520 | $604.59 | | |
| CWWRFD | CITY OF WALLA WALLA REFUND 631 | 0.0000000000 | $375,520 | $375,520 | $0.00 | | |
| | Total Tax Rate: | 8.7973694689 | | | | | |
| | | | | Taxes w/Current Exemptions: | $3,303.58 | | |
| | | | | Taxes w/o Exemptions: | $3,303.58 | | |
Improvement / Building
| Improvement #1: | RESIDENTIAL | State Code: | 11 | 1363.0 sqft | Value: | $305,520 |
| Exterior Wall: | HARDBOARD | Heating/Cooling: | FORCED AIR | | Number of Bathrooms: | 2 | Number of Bedrooms: | 5 | | Plumbing: | 9 | Roof Covering: | COMP SHINGLE |
|
| | Type | Description | Class CD | Sub Class CD | Year Built | Area |
| | MA | Main Area | 4 | 30 | 1922 | 1363.0 |
| | UPFL | Upper Floor (included in main area) | 4 | 30 | 1922 | 322.0 |
| | SI1 | SITE IMPROVEMENT | 4 | 30 | 1922 | 1.5 |
| | BASE | BASEMENT | 4 | 30 | 1922 | 550.0 |
| | BPF | BASEMENT -PARTITIONED FINISH | 4 | 30 | 1922 | 550.0 |
| | S1F | Single One Story Fireplace | 4 | 30 | 1922 | 1.0 |
| | RCD | WOOD DECK W/ROOF, CEILED | 4 | 30 | 1922 | 25.0 |
| | RCD | WOOD DECK W/ROOF, CEILED | 4 | 30 | 1922 | 130.0 |
Sketch
Property Image
Land
| 1 | RES 1 | Converted: Residential | 0.1377 | 6000.00 | 0.00 | 0.00 | 1.00 | $70,000 | $0 |
Roll Value History
| 2025 | N/A | N/A | N/A | N/A | N/A |
| 2024 | $305,520 | $70,000 | $0 | $375,520 | $375,520 |
| 2023 | $305,520 | $70,000 | $0 | $375,520 | $375,520 |
| 2022 | $305,520 | $55,000 | $0 | $360,520 | $360,520 |
| 2021 | $203,680 | $55,000 | $0 | $258,680 | $258,680 |
| 2020 | $177,110 | $55,000 | $0 | $232,110 | $232,110 |
| 2019 | $177,110 | $55,000 | $0 | $232,110 | $232,110 |
| 2018 | $184,280 | $36,000 | $0 | $220,280 | $220,280 |
| 2017 | $175,510 | $36,000 | $0 | $211,510 | $211,510 |
| 2016 | $159,550 | $36,000 | $0 | $195,550 | $195,550 |
| 2015 | $132,960 | $36,000 | $0 | $168,960 | $168,960 |
| 2014 | $110,800 | $36,000 | $0 | $146,800 | $146,800 |
| 2013 | $110,800 | $36,000 | $0 | $146,800 | $146,800 |
| 2012 | $113,400 | $36,000 | $0 | $0 | $0 |
| 2011 | $99,800 | $36,000 | $0 | $0 | $0 |
| 2010 | $99,800 | $36,000 | $0 | $0 | $0 |
| 2009 | $114,900 | $36,000 | $0 | $0 | $0 |
| 2008 | $114,900 | $36,000 | $0 | $0 | $0 |
| 2007 | $86,700 | $18,000 | $0 | $0 | $0 |
| 2006 | $86,700 | $18,000 | $0 | $0 | $0 |
Deed and Sales History
| 1 | 10/22/2015 | SWD | STATUTORY WARRANTY DEED | KARAS DANIEL J & JENNIFER | PAULL JONATHAN J & ANGELIQUE N | | | $210,000.00 | 129061 | 2015-09254 |
| 2 | 04/30/2008 | WARRANTY D | WARRANTY DEED | VOTH, RICK & TERI | KARAS, DANIEL J & JENNIFER | | | $153,000.00 | 114938 | 2008-04299 |
| 3 | 07/19/2001 | WARRANTY D | WARRANTY DEED | | | | | $61,500.00 | 97629 | 3160-107671 |
Payout Agreement
| No payout information available.. |