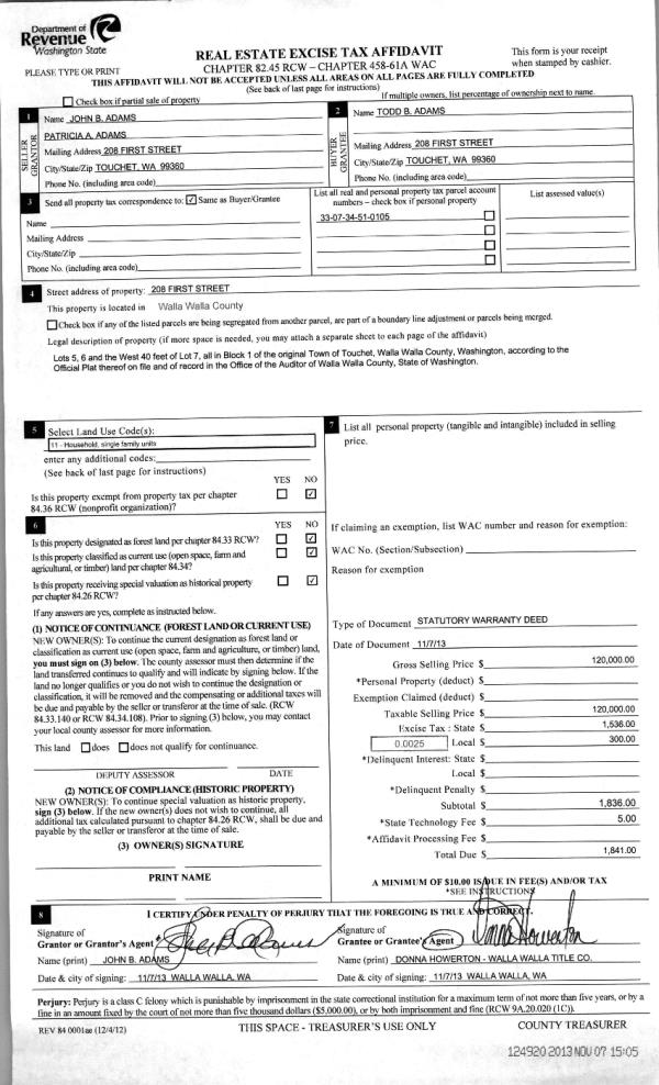
Property
Account |
| Property ID: | 22701 | Abbreviated Legal Description: | WAINWRIGHT LOT 1 BLK 2 |
| Parcel Number: | 360734510201 | Agent Code: | |
| Type: | Real | | |
| Tax Area: | 101 - 140-4 | Land Use Code | 11 |
| Open Space: | N | DFL | N |
| Historic Property: | N | Remodel Property: | N |
| Multi-Family Redevelopment: | N | | |
| Township: | 7 | Section: | 34 |
| Range: | 36 |
Location |
| Address: | 1813 PIKE PL WA 99362 | Mapsco: | |
| Neighborhood: | VG Res Rural/City Inf | Map ID: | |
| Neighborhood CD: | 415012 |
Owner |
| Name: | YENNEY KATHLEEN F | Owner ID: | 5317 |
| Mailing Address: | 1813 PIKE PLACE WALLA WALLA, WA 99362 | % Ownership: | 100.0000000000% |
| | | Exemptions: | |
Taxes and Assessment Details
Values
| (+) Improvement Homesite Value: | + | $0 | |
| (+) Improvement Non-Homesite Value: | + | $409,430 | |
| (+) Land Homesite Value: | + | $0 | |
| (+) Land Non-Homesite Value: | + | $135,000 | |
| (+) Curr Use (HS): | + | $0 | $0 |
| (+) Curr Use (NHS): | + | $0 | $0 |
| | | -------------------------- | |
| (=) Market Value: | = | $544,430 | |
| (–) Productivity Loss: | – | $0 | |
| | | -------------------------- | |
| (=) Subtotal: | = | $544,430 | |
| (+) Senior Appraised Value: | + | $0 | |
| (+) Non-Senior Appraised Value: | + | $544,430 | |
| | | -------------------------- | |
| (=) Total Appraised Value: | = | $544,430 | |
| (–) Senior Exemption Loss: | – | $0 | |
| (–) Exemption Loss: | – | $0 | |
| | | -------------------------- | |
| (=) Taxable Value: | = | $544,430 | |
Taxing Jurisdiction
| Owner: | YENNEY KATHLEEN F | | |
| % Ownership: | 100.0000000000% | | |
| Total Value: | $544,430 | | |
| Tax Area: | 101 - 140-4 |
| CERFD | CURRENT EXPENSE REFUND 010 | 0.0000000000 | $544,430 | $544,430 | $0.00 | | |
| CURREXP | CURRENT EXPENSE 010 | 1.0175366760 | $544,430 | $544,430 | $553.98 | | |
| HUMNSERV | HUMAN SERVICES 119 | 0.0250000000 | $544,430 | $544,430 | $13.61 | | |
| SLDREL | SOLDIERS RELIEF 121 | 0.0155990005 | $544,430 | $544,430 | $8.49 | | |
| EMERGSER | EMS 147 | 0.3792580840 | $544,430 | $544,430 | $206.48 | | |
| EMSRFD | EMS REFUND 147 | 0.0000000000 | $544,430 | $544,430 | $0.00 | | |
| FD4EXP | FD #4 EXPENSE 686 | 0.8836993059 | $544,430 | $544,430 | $481.11 | | |
| RLBRFD | RURAL LIBRARY REFUND 623 | 0.0000000000 | $544,430 | $544,430 | $0.00 | | |
| RURALLIB | RURAL LIBRARY 623 | 0.3710609029 | $544,430 | $544,430 | $202.02 | | |
| PORTRFD | PORT REFUND 640 | 0.0000000000 | $544,430 | $544,430 | $0.00 | | |
| PORTWWGEN | PORT OF WW 640 | 0.2460186015 | $544,430 | $544,430 | $133.94 | | |
| SD140BOND | SD #140 BOND 764 | 0.8342371393 | $544,430 | $544,430 | $454.18 | | |
| SD140GEN | SD #140 GENERAL 760 | 2.0646500647 | $544,430 | $544,430 | $1,124.06 | | |
| ST2 | STATE SCHOOL PART 2 600 | 0.8131451643 | $544,430 | $544,430 | $442.70 | | |
| STATESCHL | STATE SCHOOL 600 | 1.5158548041 | $544,430 | $544,430 | $825.28 | | |
| STREFUND | STATE REFUND LEVY 603 | 0.0000000000 | $544,430 | $544,430 | $0.00 | | |
| COROAD | COUNTY ROAD 115 | 1.6549953990 | $544,430 | $544,430 | $901.03 | | |
| CRPRD | COUNTY ROAD REFUND 115 | 0.0000000000 | $544,430 | $544,430 | $0.00 | | |
| | Total Tax Rate: | 9.8210551422 | | | | | |
| | | | | Taxes w/Current Exemptions: | $5,346.88 | | |
| | | | | Taxes w/o Exemptions: | $5,346.88 | | |
Improvement / Building
| Improvement #1: | RESIDENTIAL | State Code: | 11 | 1641.0 sqft | Value: | $409,430 |
| Exterior Wall: | PLYWOOD | Heating/Cooling: | HEAT PUMP | | Number of Bathrooms: | 2 | Number of Bedrooms: | 3 | | Plumbing: | 10 | Roof Covering: | COMP SHINGLE |
|
| | Type | Description | Class CD | Sub Class CD | Year Built | Area |
| | MA | Main Area | 1 | 35 | 1964 | 1641.0 |
| | SI1 | SITE IMPROVEMENT | 1 | 35 | 1964 | 3.0 |
| | S1F | Single One Story Fireplace | 1 | 35 | 1964 | 1.0 |
| | RPO | OPEN PORCH W/ROOF | 1 | 35 | 1964 | 63.0 |
| | CPCG | CARPORT/ GABLE ROOF | 1 | 35 | 1964 | 396.0 |
| | BRW | BREEZEWAY | 1 | 35 | 1964 | 428.0 |
| | DTG | Detached Garage | 1 | 35 | 1964 | 736.0 |
| | GIF | GARAGE INTERIOR FINISH | 1 | 35 | 2022 | 230.0 |
| | CPC | COVERED CARPORT/PATIO | 1 | 35 | 2022 | 224.0 |
Sketch
Property Image
Land
| 1 | RES 1 | Converted: Residential | 0.4591 | 20000.00 | 0.00 | 0.00 | 1.00 | $135,000 | $0 |
Roll Value History
| 2025 | N/A | N/A | N/A | N/A | N/A |
| 2024 | $409,430 | $135,000 | $0 | $544,430 | $544,430 |
| 2023 | $409,430 | $135,000 | $0 | $544,430 | $544,430 |
| 2022 | $341,190 | $65,600 | $0 | $406,790 | $406,790 |
| 2021 | $262,450 | $65,600 | $0 | $328,050 | $328,050 |
| 2020 | $218,710 | $65,600 | $0 | $284,310 | $284,310 |
| 2019 | $218,710 | $65,600 | $0 | $284,310 | $284,310 |
| 2018 | $198,830 | $65,600 | $0 | $264,430 | $264,430 |
| 2017 | $165,690 | $65,600 | $0 | $231,290 | $231,290 |
| 2016 | $165,690 | $55,600 | $0 | $221,290 | $221,290 |
| 2015 | $157,800 | $55,600 | $0 | $213,400 | $213,400 |
| 2014 | $157,800 | $55,600 | $0 | $213,400 | $213,400 |
| 2013 | $157,800 | $55,600 | $0 | $213,400 | $213,400 |
| 2012 | $157,800 | $55,600 | $0 | $0 | $0 |
| 2011 | $159,100 | $55,600 | $0 | $0 | $0 |
| 2010 | $159,100 | $55,600 | $0 | $0 | $0 |
| 2009 | $183,000 | $55,600 | $0 | $0 | $0 |
| 2008 | $183,000 | $55,600 | $0 | $0 | $0 |
| 2007 | $121,400 | $33,100 | $0 | $0 | $0 |
| 2006 | $121,400 | $33,100 | $0 | $0 | $0 |
Deed and Sales History
| 1 | 01/17/2017 | SWD | STATUTORY WARRANTY DEED | DUTTON ERIC SCOTT & WHITNEY ELISE | YENNEY KATHLEEN F | | | $287,500.00 | 131777 | 2017-00437 |
| 2 | 04/01/2015 | SWD | STATUTORY WARRANTY DEED | ROMINE FRED M | DUTTON ERIC SCOTT & WHITNEY ELISE | | | $224,500.00 | 127718 | 2015-02684 |
| 3 | 09/04/2014 | QCD | QUIT CLAIM DEED | ROMINE FRED M & JERRILYNN | ROMINE FRED M | | | | 126577 | 2014-06501 |
| 4 | 05/02/2008 | WARRANTY D | WARRANTY DEED | MYERS, JANE E | ROMINE, FRED M & JERRILYNN | | | $219,900.00 | 114962 | 2008-04422 |
| 5 | 12/01/1964 | WARRANTY D | WARRANTY DEED | | | | | $22,500.00 | 0 | 3120-462596 |
Payout Agreement
| No payout information available.. |