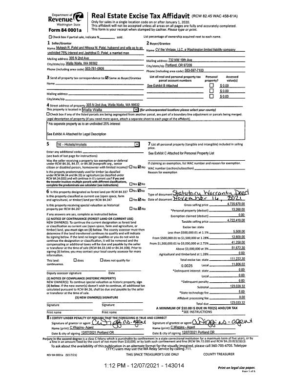
Property
Account |
| Property ID: | 22681 | Abbreviated Legal Description: | LT 12 BLK 4 SUN BAR ADDN |
| Parcel Number: | 360722570412 | Agent Code: | |
| Type: | Real | | |
| Tax Area: | 1 - OL-140-F | Land Use Code | 11 |
| Open Space: | N | DFL | N |
| Historic Property: | N | Remodel Property: | N |
| Multi-Family Redevelopment: | N | | |
| Township: | 7 | Section: | 22 |
| Range: | 36 |
Location |
| Address: | 1955 WHITMAN ST WA 99362 | Mapsco: | |
| Neighborhood: | A SFR | Map ID: | |
| Neighborhood CD: | 413011 |
Owner |
| Name: | JOHNSON LOUISE RUTH & ROBERT L JTWROS | Owner ID: | 70455 |
| Mailing Address: | 1847 LOUBECK ST WALLA WALLA, WA 99362 | % Ownership: | 100.0000000000% |
| | | Exemptions: | |
Taxes and Assessment Details
Values
| (+) Improvement Homesite Value: | + | $0 | |
| (+) Improvement Non-Homesite Value: | + | $306,140 | |
| (+) Land Homesite Value: | + | $0 | |
| (+) Land Non-Homesite Value: | + | $77,420 | |
| (+) Curr Use (HS): | + | $0 | $0 |
| (+) Curr Use (NHS): | + | $0 | $0 |
| | | -------------------------- | |
| (=) Market Value: | = | $383,560 | |
| (–) Productivity Loss: | – | $0 | |
| | | -------------------------- | |
| (=) Subtotal: | = | $383,560 | |
| (+) Senior Appraised Value: | + | $0 | |
| (+) Non-Senior Appraised Value: | + | $383,560 | |
| | | -------------------------- | |
| (=) Total Appraised Value: | = | $383,560 | |
| (–) Senior Exemption Loss: | – | $0 | |
| (–) Exemption Loss: | – | $0 | |
| | | -------------------------- | |
| (=) Taxable Value: | = | $383,560 | |
Taxing Jurisdiction
| Owner: | JOHNSON LOUISE RUTH & ROBERT L JTWROS | | |
| % Ownership: | 100.0000000000% | | |
| Total Value: | $383,560 | | |
| Tax Area: | 1 - OL-140-F |
| CERFD | CURRENT EXPENSE REFUND 010 | 0.0000000000 | $383,560 | $383,560 | $0.00 | | |
| CURREXP | CURRENT EXPENSE 010 | 1.0175366760 | $383,560 | $383,560 | $390.29 | | |
| HUMNSERV | HUMAN SERVICES 119 | 0.0250000000 | $383,560 | $383,560 | $9.59 | | |
| SLDREL | SOLDIERS RELIEF 121 | 0.0155990005 | $383,560 | $383,560 | $5.98 | | |
| EMERGSER | EMS 147 | 0.3792580840 | $383,560 | $383,560 | $145.47 | | |
| EMSRFD | EMS REFUND 147 | 0.0000000000 | $383,560 | $383,560 | $0.00 | | |
| PORTRFD | PORT REFUND 640 | 0.0000000000 | $383,560 | $383,560 | $0.00 | | |
| PORTWWGEN | PORT OF WW 640 | 0.2460186015 | $383,560 | $383,560 | $94.36 | | |
| SD140BOND | SD #140 BOND 764 | 0.8342371393 | $383,560 | $383,560 | $319.98 | | |
| SD140GEN | SD #140 GENERAL 760 | 2.0646500647 | $383,560 | $383,560 | $791.92 | | |
| ST2 | STATE SCHOOL PART 2 600 | 0.8131451643 | $383,560 | $383,560 | $311.89 | | |
| STATESCHL | STATE SCHOOL 600 | 1.5158548041 | $383,560 | $383,560 | $581.42 | | |
| STREFUND | STATE REFUND LEVY 603 | 0.0000000000 | $383,560 | $383,560 | $0.00 | | |
| CWWBOND | C OF WW BOND 643 | 0.2760494372 | $383,560 | $383,560 | $105.88 | | |
| CWWGEN | CITY OF WW 631 | 1.6100204973 | $383,560 | $383,560 | $617.54 | | |
| CWWRFD | CITY OF WALLA WALLA REFUND 631 | 0.0000000000 | $383,560 | $383,560 | $0.00 | | |
| | Total Tax Rate: | 8.7973694689 | | | | | |
| | | | | Taxes w/Current Exemptions: | $3,374.32 | | |
| | | | | Taxes w/o Exemptions: | $3,374.32 | | |
Improvement / Building
| Improvement #1: | RESIDENTIAL | State Code: | 11 | 1670.0 sqft | Value: | $306,140 |
| Exterior Wall: | VINYL | Heating/Cooling: | HEAT PUMP | | Number of Bathrooms: | 2 | Number of Bedrooms: | 4 | | Plumbing: | 9 | Roof Covering: | COMP SHINGLE |
|
| | Type | Description | Class CD | Sub Class CD | Year Built | Area |
| | MA | Main Area | 1 | 35 | 1984 | 1670.0 |
| | CPC | COVERED CARPORT/PATIO | 1 | 35 | 0 | 168.0 |
| | SI1 | SITE IMPROVEMENT | 1 | 35 | 0 | 3.0 |
| | ATG | Attached Garage | 1 | 35 | 1984 | 484.0 |
| | RPO | OPEN PORCH W/ROOF | 1 | 35 | 1984 | 24.0 |
| | S1F | Single One Story Fireplace | 1 | 35 | 1984 | 1.0 |
| | UTST | Utility Storage Shed | 1 | 35 | 1984 | 140.0 |
| | EQUIPSHED | EQUIPMENT SHED | 1 | 30 | 1984 | 168.0 |
Sketch
Property Image
Land
| 1 | RES 1 | Converted: Residential | 0.2222 | 9678.00 | 0.00 | 0.00 | 1.00 | $77,420 | $0 |
Roll Value History
| 2025 | N/A | N/A | N/A | N/A | N/A |
| 2024 | $306,140 | $77,420 | $0 | $383,560 | $383,560 |
| 2023 | $306,140 | $77,420 | $0 | $383,560 | $383,560 |
| 2022 | $274,700 | $50,810 | $0 | $325,510 | $325,510 |
| 2021 | $249,730 | $50,810 | $0 | $300,540 | $300,540 |
| 2020 | $156,080 | $50,810 | $0 | $206,890 | $206,890 |
| 2019 | $156,080 | $50,810 | $0 | $206,890 | $206,890 |
| 2018 | $141,890 | $50,810 | $0 | $192,700 | $192,700 |
| 2017 | $141,890 | $50,810 | $0 | $192,700 | $192,700 |
| 2016 | $144,980 | $38,700 | $0 | $183,680 | $183,680 |
| 2015 | $138,080 | $38,700 | $0 | $176,780 | $176,780 |
| 2014 | $131,500 | $38,700 | $0 | $170,200 | $170,200 |
| 2013 | $131,500 | $38,700 | $0 | $170,200 | $170,200 |
| 2012 | $131,500 | $38,700 | $0 | $0 | $0 |
| 2011 | $135,600 | $38,700 | $0 | $0 | $0 |
| 2010 | $135,600 | $38,700 | $0 | $0 | $0 |
| 2009 | $155,000 | $38,700 | $0 | $0 | $0 |
| 2008 | $155,000 | $38,700 | $0 | $0 | $0 |
| 2007 | $155,000 | $38,700 | $0 | $0 | $0 |
| 2006 | $120,200 | $19,000 | $0 | $0 | $0 |
Deed and Sales History
| 1 | 10/15/2021 | QCD | QUIT CLAIM DEED | JOHNSON LOUISE RUTH | JOHNSON LOUISE RUTH & ROBERT L JTWROS | | | $0.00 | 142689 | 2021-12608 |
| 2 | 05/01/2008 | QCD | QUIT CLAIM DEED | PETTERSON, HARLAN D | JOHNSON, LOUISE RUTH | | | | 114955 | 2008-04361 |
| 3 | 04/22/2003 | QCD | QUIT CLAIM DEED | PETTERSON, HARLAN D | PETTERSON, HARLAN D | | | | 101896 | 2003-05678 |
| 4 | 08/27/2001 | WARRANTY D | WARRANTY DEED | | | | | $140,000.00 | 97903 | 3180-109334 |
Payout Agreement
| No payout information available.. |