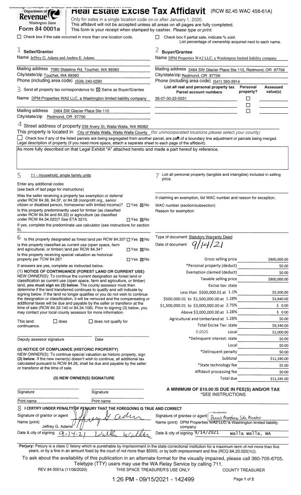
Property
Account |
| Property ID: | 22634 | Abbreviated Legal Description: | MELODY PARK TERRACE WEST LOT 2 BLK 2 PARCEL 8 LOT 2 PLUS W 3' OFLOT 1 |
| Parcel Number: | 360716600208 | Agent Code: | |
| Type: | Real | | |
| Tax Area: | 5 - OL-140 | Land Use Code | 11 |
| Open Space: | N | DFL | N |
| Historic Property: | N | Remodel Property: | N |
| Multi-Family Redevelopment: | N | | |
| Township: | 7 | Section: | 16 |
| Range: | 36 |
Location |
| Address: | 2031 GLEN ERIN DR WA 99362 | Mapsco: | |
| Neighborhood: | A-SFR | Map ID: | |
| Neighborhood CD: | 313011 |
Owner |
| Name: | TKATCHEV SERGEY | Owner ID: | 71752 |
| Mailing Address: | 2031 GLEN ERIN DR WALLA WALLA, WA 99362 | % Ownership: | 100.0000000000% |
| | | Exemptions: | |
Taxes and Assessment Details
Values
| (+) Improvement Homesite Value: | + | $0 | |
| (+) Improvement Non-Homesite Value: | + | $213,510 | |
| (+) Land Homesite Value: | + | $0 | |
| (+) Land Non-Homesite Value: | + | $90,000 | |
| (+) Curr Use (HS): | + | $0 | $0 |
| (+) Curr Use (NHS): | + | $0 | $0 |
| | | -------------------------- | |
| (=) Market Value: | = | $303,510 | |
| (–) Productivity Loss: | – | $0 | |
| | | -------------------------- | |
| (=) Subtotal: | = | $303,510 | |
| (+) Senior Appraised Value: | + | $0 | |
| (+) Non-Senior Appraised Value: | + | $303,510 | |
| | | -------------------------- | |
| (=) Total Appraised Value: | = | $303,510 | |
| (–) Senior Exemption Loss: | – | $0 | |
| (–) Exemption Loss: | – | $0 | |
| | | -------------------------- | |
| (=) Taxable Value: | = | $303,510 | |
Taxing Jurisdiction
| Owner: | TKATCHEV SERGEY | | |
| % Ownership: | 100.0000000000% | | |
| Total Value: | $303,510 | | |
| Tax Area: | 5 - OL-140 |
| CERFD | CURRENT EXPENSE REFUND 010 | 0.0000000000 | $303,510 | $303,510 | $0.00 | | |
| CURREXP | CURRENT EXPENSE 010 | 1.0175366760 | $303,510 | $303,510 | $308.83 | | |
| HUMNSERV | HUMAN SERVICES 119 | 0.0250000000 | $303,510 | $303,510 | $7.59 | | |
| SLDREL | SOLDIERS RELIEF 121 | 0.0155990005 | $303,510 | $303,510 | $4.73 | | |
| EMERGSER | EMS 147 | 0.3792580840 | $303,510 | $303,510 | $115.11 | | |
| EMSRFD | EMS REFUND 147 | 0.0000000000 | $303,510 | $303,510 | $0.00 | | |
| PORTRFD | PORT REFUND 640 | 0.0000000000 | $303,510 | $303,510 | $0.00 | | |
| PORTWWGEN | PORT OF WW 640 | 0.2460186015 | $303,510 | $303,510 | $74.67 | | |
| SD140BOND | SD #140 BOND 764 | 0.8342371393 | $303,510 | $303,510 | $253.20 | | |
| SD140GEN | SD #140 GENERAL 760 | 2.0646500647 | $303,510 | $303,510 | $626.64 | | |
| ST2 | STATE SCHOOL PART 2 600 | 0.8131451643 | $303,510 | $303,510 | $246.80 | | |
| STATESCHL | STATE SCHOOL 600 | 1.5158548041 | $303,510 | $303,510 | $460.08 | | |
| STREFUND | STATE REFUND LEVY 603 | 0.0000000000 | $303,510 | $303,510 | $0.00 | | |
| CWWBOND | C OF WW BOND 643 | 0.2760494372 | $303,510 | $303,510 | $83.78 | | |
| CWWGEN | CITY OF WW 631 | 1.6100204973 | $303,510 | $303,510 | $488.66 | | |
| CWWRFD | CITY OF WALLA WALLA REFUND 631 | 0.0000000000 | $303,510 | $303,510 | $0.00 | | |
| | Total Tax Rate: | 8.7973694689 | | | | | |
| | | | | Taxes w/Current Exemptions: | $2,670.09 | | |
| | | | | Taxes w/o Exemptions: | $2,670.09 | | |
Improvement / Building
| Improvement #1: | RESIDENTIAL | State Code: | 11 | 1160.0 sqft | Value: | $213,510 |
| Exterior Wall: | PLYWOOD | Heating/Cooling: | WARM & COOLED AIR | | Number of Bathrooms: | 1 | Number of Bedrooms: | 2 | | Plumbing: | 6 | Roof Covering: | COMP SHINGLE |
|
| | Type | Description | Class CD | Sub Class CD | Year Built | Area |
| | MA | Main Area | 1 | 30 | 1976 | 1160.0 |
| | SI1 | SITE IMPROVEMENT | 1 | 30 | 1976 | 1.5 |
| | ATG | Attached Garage | 1 | 30 | 1976 | 440.0 |
| | RPO | OPEN PORCH W/ROOF | 1 | 30 | 1976 | 110.0 |
| | S1F | Single One Story Fireplace | 1 | 30 | 1976 | 1.0 |
| | CPC | COVERED CARPORT/PATIO | 1 | 30 | 1976 | 336.0 |
Sketch
Property Image
Land
| 1 | RES 1 | Converted: Residential | 0.1535 | 6688.00 | 0.00 | 0.00 | 1.00 | $90,000 | $0 |
Roll Value History
| 2025 | N/A | N/A | N/A | N/A | N/A |
| 2024 | $213,510 | $90,000 | $0 | $303,510 | $303,510 |
| 2023 | $213,510 | $90,000 | $0 | $303,510 | $303,510 |
| 2022 | $213,510 | $90,000 | $0 | $303,510 | $303,510 |
| 2021 | $155,960 | $55,000 | $0 | $210,960 | $210,960 |
| 2020 | $107,560 | $55,000 | $0 | $162,560 | $162,560 |
| 2019 | $107,560 | $55,000 | $0 | $162,560 | $162,560 |
| 2018 | $93,530 | $55,000 | $0 | $148,530 | $148,530 |
| 2017 | $93,530 | $55,000 | $0 | $148,530 | $148,530 |
| 2016 | $93,530 | $55,000 | $0 | $148,530 | $148,530 |
| 2015 | $95,860 | $55,000 | $0 | $150,860 | $150,860 |
| 2014 | $100,900 | $55,000 | $0 | $155,900 | $155,900 |
| 2013 | $100,900 | $55,000 | $0 | $155,900 | $155,900 |
| 2012 | $80,600 | $55,000 | $0 | $0 | $0 |
| 2011 | $95,700 | $55,000 | $0 | $0 | $0 |
| 2010 | $96,600 | $40,000 | $0 | $0 | $0 |
| 2009 | $111,800 | $40,000 | $0 | $0 | $0 |
| 2008 | $92,000 | $40,000 | $0 | $0 | $0 |
| 2007 | $92,000 | $40,000 | $0 | $0 | $0 |
| 2006 | $71,400 | $25,000 | $0 | $0 | $0 |
Deed and Sales History
| 1 | 06/03/2022 | SWD | STATUTORY WARRANTY DEED | MENARD JOHANNA C | TKATCHEV SERGEY | | | $320,000.00 | 144082 | 2022-04759 |
| 2 | 08/09/2019 | SWD | STATUTORY WARRANTY DEED | KLASSEN AUSTIN | MENARD JOHANNA C | | | $223,000.00 | 137450 | 2019-05967 |
| 3 | 10/14/2015 | SWD | STATUTORY WARRANTY DEED | ALLISON HOMES LLC | KLASSEN AUSTIN | | | $150,000.00 | 129004 | 2015-09024 |
| 4 | 03/10/2015 | SWD | STATUTORY WARRANTY DEED | CARIVEAU CRYSTAL | ALLISON HOMES LLC | | | $145,000.00 | 127552 | 2015-01998 |
| 5 | 06/29/2012 | QCD | QUIT CLAIM DEED | GONZALEZ, PEDRO P | GONZALEZ, CRYSTAL | | | $0.00 | 122273 | 2012-05485 |
| 6 | 08/06/2008 | WARRANTY D | WARRANTY DEED | EAGON, HONEY LOU LIFE ESTATE | CARIVEAU, CRYSTAL | | | $165,000.00 | 115450 | 2008-08116 |
| 7 | 05/09/2008 | QCD | QUIT CLAIM DEED | EAGON, THOMAS D | EAGON, PAUL C | | | | 114990 | 2008-04733 |
| 8 | 06/03/2003 | QCD | QUIT CLAIM DEED | EAGON, HONEY LOU | EAGON, HONEY LOU LIFE ESTATE | | | | 102253 | 2003-08205 |
| 9 | 01/24/1977 | WARRANTY D | WARRANTY DEED | | | | | $34,800.00 | 0 | 5405-61462 |
Payout Agreement
| No payout information available.. |