Property
Account |
| Property ID: | 1996 | Abbreviated Legal Description: | LT 1 STONE CREEK PUD, PHASE 1 |
| Parcel Number: | 360732630001 | Agent Code: | |
| Type: | Real | | |
| Tax Area: | 1 - OL-140-F | Land Use Code | 11 |
| Open Space: | N | DFL | N |
| Historic Property: | N | Remodel Property: | N |
| Multi-Family Redevelopment: | N | | |
| Township: | 7 | Section: | 32 |
| Range: | 36 |
Location |
| Address: | 2275 GRANITE DR WA 99362 | Mapsco: | |
| Neighborhood: | G Res | Map ID: | |
| Neighborhood CD: | 614011 |
Owner |
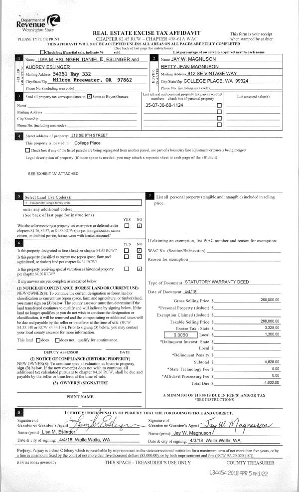
| Name: | DIAZ SALVADOR M | Owner ID: | 63341 |
| Mailing Address: | 2275 GRANITE DR WALLA WALLA, WA 99362 | % Ownership: | 100.0000000000% |
| | | Exemptions: | |
Taxes and Assessment Details
Values
| (+) Improvement Homesite Value: | + | $0 | |
| (+) Improvement Non-Homesite Value: | + | $257,080 | |
| (+) Land Homesite Value: | + | $0 | |
| (+) Land Non-Homesite Value: | + | $104,130 | |
| (+) Curr Use (HS): | + | $0 | $0 |
| (+) Curr Use (NHS): | + | $0 | $0 |
| | | -------------------------- | |
| (=) Market Value: | = | $361,210 | |
| (–) Productivity Loss: | – | $0 | |
| | | -------------------------- | |
| (=) Subtotal: | = | $361,210 | |
| (+) Senior Appraised Value: | + | $0 | |
| (+) Non-Senior Appraised Value: | + | $361,210 | |
| | | -------------------------- | |
| (=) Total Appraised Value: | = | $361,210 | |
| (–) Senior Exemption Loss: | – | $0 | |
| (–) Exemption Loss: | – | $0 | |
| | | -------------------------- | |
| (=) Taxable Value: | = | $361,210 | |
Taxing Jurisdiction
| Owner: | DIAZ SALVADOR M | | |
| % Ownership: | 100.0000000000% | | |
| Total Value: | $361,210 | | |
| Tax Area: | 1 - OL-140-F |
| CERFD | CURRENT EXPENSE REFUND 010 | 0.0000000000 | $361,210 | $361,210 | $0.00 | | |
| CURREXP | CURRENT EXPENSE 010 | 1.0175366760 | $361,210 | $361,210 | $367.54 | | |
| HUMNSERV | HUMAN SERVICES 119 | 0.0250000000 | $361,210 | $361,210 | $9.03 | | |
| SLDREL | SOLDIERS RELIEF 121 | 0.0155990005 | $361,210 | $361,210 | $5.63 | | |
| EMERGSER | EMS 147 | 0.3792580840 | $361,210 | $361,210 | $136.99 | | |
| EMSRFD | EMS REFUND 147 | 0.0000000000 | $361,210 | $361,210 | $0.00 | | |
| PORTRFD | PORT REFUND 640 | 0.0000000000 | $361,210 | $361,210 | $0.00 | | |
| PORTWWGEN | PORT OF WW 640 | 0.2460186015 | $361,210 | $361,210 | $88.86 | | |
| SD140BOND | SD #140 BOND 764 | 0.8342371393 | $361,210 | $361,210 | $301.33 | | |
| SD140GEN | SD #140 GENERAL 760 | 2.0646500647 | $361,210 | $361,210 | $745.77 | | |
| ST2 | STATE SCHOOL PART 2 600 | 0.8131451643 | $361,210 | $361,210 | $293.72 | | |
| STATESCHL | STATE SCHOOL 600 | 1.5158548041 | $361,210 | $361,210 | $547.54 | | |
| STREFUND | STATE REFUND LEVY 603 | 0.0000000000 | $361,210 | $361,210 | $0.00 | | |
| CWWBOND | C OF WW BOND 643 | 0.2760494372 | $361,210 | $361,210 | $99.71 | | |
| CWWGEN | CITY OF WW 631 | 1.6100204973 | $361,210 | $361,210 | $581.56 | | |
| CWWRFD | CITY OF WALLA WALLA REFUND 631 | 0.0000000000 | $361,210 | $361,210 | $0.00 | | |
| | Total Tax Rate: | 8.7973694689 | | | | | |
| | | | | Taxes w/Current Exemptions: | $3,177.68 | | |
| | | | | Taxes w/o Exemptions: | $3,177.68 | | |
Improvement / Building
| Improvement #1: | RESIDENTIAL | State Code: | 11 | 1040.0 sqft | Value: | $257,080 |
| Exterior Wall: | PLYWOOD | Heating/Cooling: | WARM & COOLED AIR | | Number of Bathrooms: | 2 | Number of Bedrooms: | 4 | | Plumbing: | 9 | Roof Covering: | COMP SHINGLE |
|
| | Type | Description | Class CD | Sub Class CD | Year Built | Area |
| | MA | Main Area | 11 | 30 | 1977 | 1040.0 |
| | SI1 | SITE IMPROVEMENT | 11 | 30 | 1977 | 2.0 |
| | BASE | BASEMENT | 11 | 30 | 1977 | 1025.0 |
| | BPF | BASEMENT -PARTITIONED FINISH | 11 | 30 | 1977 | 1025.0 |
| | ATG | Attached Garage | 11 | 30 | 1977 | 651.0 |
| | RPO | OPEN PORCH W/ROOF | 11 | 30 | 1977 | 49.0 |
| | D2F | Double 2 Story Fireplace | 11 | 30 | 1977 | 1.0 |
| | WOD | Wood Deck | 11 | 30 | 1977 | 140.0 |
Sketch
Property Image
Land
| 1 | RES 1 | Converted: Residential | 0.2390 | 10413.00 | 0.00 | 0.00 | 1.00 | $104,130 | $0 |
Roll Value History
| 2025 | N/A | N/A | N/A | N/A | N/A |
| 2024 | $295,640 | $104,130 | $0 | $399,770 | $399,770 |
| 2023 | $257,080 | $104,130 | $0 | $361,210 | $361,210 |
| 2022 | $257,080 | $72,800 | $0 | $329,880 | $329,880 |
| 2021 | $197,750 | $72,800 | $0 | $270,550 | $270,550 |
| 2020 | $158,200 | $72,800 | $0 | $231,000 | $231,000 |
| 2019 | $158,200 | $72,800 | $0 | $231,000 | $231,000 |
| 2018 | $153,270 | $47,500 | $0 | $200,770 | $200,770 |
| 2017 | $139,340 | $47,500 | $0 | $186,840 | $186,840 |
| 2016 | $139,340 | $47,500 | $0 | $186,840 | $186,840 |
| 2015 | $139,340 | $47,500 | $0 | $186,840 | $186,840 |
| 2014 | $132,700 | $47,500 | $0 | $180,200 | $180,200 |
| 2013 | $132,700 | $47,500 | $0 | $180,200 | $180,200 |
| 2012 | $168,500 | $47,500 | $0 | $0 | $0 |
| 2011 | $168,500 | $47,500 | $0 | $0 | $0 |
| 2010 | $148,900 | $47,500 | $0 | $0 | $0 |
| 2009 | $168,200 | $50,000 | $0 | $0 | $0 |
| 2008 | $168,200 | $50,000 | $0 | $0 | $0 |
| 2007 | $117,700 | $30,000 | $0 | $0 | $0 |
| 2006 | $117,700 | $30,000 | $0 | $0 | $0 |
Deed and Sales History
| 1 | 06/12/2018 | SWD | STATUTORY WARRANTY DEED | NICHOLSON FRANCIS L | DIAZ SALVADOR M | | | $260,000.00 | 134900 | 2018-04716 |
| 2 | 05/13/2003 | QCD | QUIT CLAIM DEED | NICHOLSON, FRANCIS L | NICHOLSON, FRANCIS L | | | | 102066 | 2003-06989 |
| 3 | 12/14/1998 | WARRANTY D | WARRANTY DEED | | | | | $137,000.00 | 91811 | 2779-814409 |
Payout Agreement
| No payout information available.. |