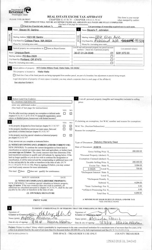
Property
Account |
| Property ID: | 1988 | Abbreviated Legal Description: | LT 5 BLK 8 BRYANT'S ADDN |
| Parcel Number: | 360728530805 | Agent Code: | |
| Type: | Real | | |
| Tax Area: | 1 - OL-140-F | Land Use Code | 11 |
| Open Space: | N | DFL | N |
| Historic Property: | N | Remodel Property: | N |
| Multi-Family Redevelopment: | N | | |
| Township: | 7 | Section: | 28 |
| Range: | 36 |
Location |
| Address: | 624 LOCUST ST WA 99362 | Mapsco: | |
| Neighborhood: | A Res | Map ID: | |
| Neighborhood CD: | 613011 |
Owner |
| Name: | LOPEZ ADRIAN TELLO | Owner ID: | 67589 |
| Mailing Address: | 624 LOCUST ST WALLA WALLA, WA 99362 | % Ownership: | 100.0000000000% |
| | | Exemptions: | |
Taxes and Assessment Details
Values
| (+) Improvement Homesite Value: | + | $0 | |
| (+) Improvement Non-Homesite Value: | + | $301,880 | |
| (+) Land Homesite Value: | + | $0 | |
| (+) Land Non-Homesite Value: | + | $70,000 | |
| (+) Curr Use (HS): | + | $0 | $0 |
| (+) Curr Use (NHS): | + | $0 | $0 |
| | | -------------------------- | |
| (=) Market Value: | = | $371,880 | |
| (–) Productivity Loss: | – | $0 | |
| | | -------------------------- | |
| (=) Subtotal: | = | $371,880 | |
| (+) Senior Appraised Value: | + | $0 | |
| (+) Non-Senior Appraised Value: | + | $371,880 | |
| | | -------------------------- | |
| (=) Total Appraised Value: | = | $371,880 | |
| (–) Senior Exemption Loss: | – | $0 | |
| (–) Exemption Loss: | – | $0 | |
| | | -------------------------- | |
| (=) Taxable Value: | = | $371,880 | |
Taxing Jurisdiction
| Owner: | LOPEZ ADRIAN TELLO | | |
| % Ownership: | 100.0000000000% | | |
| Total Value: | $371,880 | | |
| Tax Area: | 1 - OL-140-F |
| CERFD | CURRENT EXPENSE REFUND 010 | 0.0000000000 | $371,880 | $371,880 | $0.00 | | |
| CURREXP | CURRENT EXPENSE 010 | 1.0175366760 | $371,880 | $371,880 | $378.40 | | |
| HUMNSERV | HUMAN SERVICES 119 | 0.0250000000 | $371,880 | $371,880 | $9.30 | | |
| SLDREL | SOLDIERS RELIEF 121 | 0.0155990005 | $371,880 | $371,880 | $5.80 | | |
| EMERGSER | EMS 147 | 0.3792580840 | $371,880 | $371,880 | $141.04 | | |
| EMSRFD | EMS REFUND 147 | 0.0000000000 | $371,880 | $371,880 | $0.00 | | |
| PORTRFD | PORT REFUND 640 | 0.0000000000 | $371,880 | $371,880 | $0.00 | | |
| PORTWWGEN | PORT OF WW 640 | 0.2460186015 | $371,880 | $371,880 | $91.49 | | |
| SD140BOND | SD #140 BOND 764 | 0.8342371393 | $371,880 | $371,880 | $310.24 | | |
| SD140GEN | SD #140 GENERAL 760 | 2.0646500647 | $371,880 | $371,880 | $767.80 | | |
| ST2 | STATE SCHOOL PART 2 600 | 0.8131451643 | $371,880 | $371,880 | $302.39 | | |
| STATESCHL | STATE SCHOOL 600 | 1.5158548041 | $371,880 | $371,880 | $563.72 | | |
| STREFUND | STATE REFUND LEVY 603 | 0.0000000000 | $371,880 | $371,880 | $0.00 | | |
| CWWBOND | C OF WW BOND 643 | 0.2760494372 | $371,880 | $371,880 | $102.66 | | |
| CWWGEN | CITY OF WW 631 | 1.6100204973 | $371,880 | $371,880 | $598.73 | | |
| CWWRFD | CITY OF WALLA WALLA REFUND 631 | 0.0000000000 | $371,880 | $371,880 | $0.00 | | |
| | Total Tax Rate: | 8.7973694689 | | | | | |
| | | | | Taxes w/Current Exemptions: | $3,271.57 | | |
| | | | | Taxes w/o Exemptions: | $3,271.57 | | |
Improvement / Building
| Improvement #1: | RESIDENTIAL | State Code: | 11 | 1724.0 sqft | Value: | $301,880 |
| Exterior Wall: | SHINGLE | Heating/Cooling: | WARM & COOLED AIR | | Number of Bathrooms: | 2 | Number of Bedrooms: | 3 | | Plumbing: | 9 | Roof Covering: | COMP SHINGLE |
|
| | Type | Description | Class CD | Sub Class CD | Year Built | Area |
| | MA | Main Area | 4 | 30 | 1901 | 1724.0 |
| | UPFL | Upper Floor (included in main area) | 4 | 30 | 1901 | 604.0 |
| | SI1 | SITE IMPROVEMENT | 4 | 30 | 1901 | 1.0 |
| | BASE | BASEMENT | 4 | 30 | 1901 | 1008.0 |
| | BPF | BASEMENT -PARTITIONED FINISH | 4 | 30 | 1901 | 756.0 |
| | S1F | Single One Story Fireplace | 4 | 30 | 1901 | 1.0 |
| | RCD | WOOD DECK W/ROOF, CEILED | 4 | 30 | 1901 | 216.0 |
| | CPC | COVERED CARPORT/PATIO | 4 | 30 | 1901 | 260.0 |
| | DTG | Detached Garage | 4 | 30 | 1901 | 480.0 |
Sketch
Property Image
Land
| 1 | RES 1 | Converted: Residential | 0.1377 | 6000.00 | 0.00 | 0.00 | 1.00 | $70,000 | $0 |
Roll Value History
| 2025 | N/A | N/A | N/A | N/A | N/A |
| 2024 | $301,880 | $70,000 | $0 | $371,880 | $371,880 |
| 2023 | $301,880 | $70,000 | $0 | $371,880 | $371,880 |
| 2022 | $301,880 | $55,000 | $0 | $356,880 | $356,880 |
| 2021 | $208,200 | $55,000 | $0 | $263,200 | $263,200 |
| 2020 | $160,150 | $55,000 | $0 | $215,150 | $215,150 |
| 2019 | $160,150 | $55,000 | $0 | $215,150 | $215,150 |
| 2018 | $171,310 | $36,000 | $0 | $207,310 | $207,310 |
| 2017 | $171,310 | $36,000 | $0 | $207,310 | $207,310 |
| 2016 | $155,740 | $36,000 | $0 | $191,740 | $191,740 |
| 2015 | $155,740 | $36,000 | $0 | $191,740 | $191,740 |
| 2014 | $119,800 | $36,000 | $0 | $155,800 | $155,800 |
| 2013 | $119,800 | $36,000 | $0 | $155,800 | $155,800 |
| 2012 | $110,500 | $36,000 | $0 | $0 | $0 |
| 2011 | $110,500 | $36,000 | $0 | $0 | $0 |
| 2010 | $110,500 | $36,000 | $0 | $0 | $0 |
| 2009 | $126,800 | $36,000 | $0 | $0 | $0 |
| 2008 | $126,800 | $36,000 | $0 | $0 | $0 |
| 2007 | $108,600 | $18,000 | $0 | $0 | $0 |
| 2006 | $108,600 | $18,000 | $0 | $0 | $0 |
Deed and Sales History
| 1 | 06/06/2025 | QCD | QUIT CLAIM DEED | LOPEZ ADRIAN TELLO | LOPEZ ADRIAN TELLO & MARIA DEL CARMEN CORIA RUIZ | | | | 149495 | 2025-03174 |
| 2 | 07/20/2020 | SWD | STATUTORY WARRANTY DEED | HOWELL HUNTER R | LOPEZ ADRIAN TELLO | | | $267,400.00 | 139533 | 2020-07000 |
| 3 | 10/13/2017 | SWD | STATUTORY WARRANTY DEED | WHITE BRIENNE L | HOWELL HUNTER R | | | $198,000.00 | 133416 | 2017-08168 |
| 4 | 09/17/2008 | QCD | QUIT CLAIM DEED | WHITE, MATTHEW A | WHITE, BRIENNE L | | | | 115658 | 2008-09588 |
| 5 | 05/16/2003 | WARRANTY D | WARRANTY DEED | CONNER, CLARENCE E ETAL | WHITE, MATTHEW A & BRIENNE L | | | $127,250.00 | 102102 | 2003-07220 |
| 6 | 01/01/1946 | WARRANTY D | WARRANTY DEED | | | | | $0.00 | 0 | 2240-294816 |
Payout Agreement
| No payout information available.. |