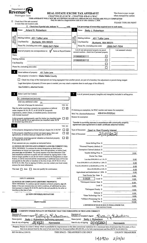
Property
Account |
| Property ID: | 1898 | Abbreviated Legal Description: | WESTBOURNE ACRES LOT 2 BLK 2 |
| Parcel Number: | 310817540202 | Agent Code: | |
| Type: | Real | | |
| Tax Area: | 328 - 400-M-5 | Land Use Code | 11 |
| Open Space: | N | DFL | N |
| Historic Property: | N | Remodel Property: | N |
| Multi-Family Redevelopment: | N | | |
| Township: | 8 | Section: | 17 |
| Range: | 31 |
Location |
| Address: | 60 WESTBOURNE LOOP WA 99323 | Mapsco: | |
| Neighborhood: | G BURBANK SFR | Map ID: | |
| Neighborhood CD: | 214711 |
Owner |
| Name: | MILTON DAVID WAYNE & LYNETTE | Owner ID: | 61340 |
| Mailing Address: | 60 WESTBOURNE LOOP BURBANK, WA 99323 | % Ownership: | 100.0000000000% |
| | | Exemptions: | |
Taxes and Assessment Details
Values
| (+) Improvement Homesite Value: | + | $0 | |
| (+) Improvement Non-Homesite Value: | + | $326,090 | |
| (+) Land Homesite Value: | + | $0 | |
| (+) Land Non-Homesite Value: | + | $80,230 | |
| (+) Curr Use (HS): | + | $0 | $0 |
| (+) Curr Use (NHS): | + | $0 | $0 |
| | | -------------------------- | |
| (=) Market Value: | = | $406,320 | |
| (–) Productivity Loss: | – | $0 | |
| | | -------------------------- | |
| (=) Subtotal: | = | $406,320 | |
| (+) Senior Appraised Value: | + | $0 | |
| (+) Non-Senior Appraised Value: | + | $406,320 | |
| | | -------------------------- | |
| (=) Total Appraised Value: | = | $406,320 | |
| (–) Senior Exemption Loss: | – | $0 | |
| (–) Exemption Loss: | – | $0 | |
| | | -------------------------- | |
| (=) Taxable Value: | = | $406,320 | |
Taxing Jurisdiction
| Owner: | MILTON DAVID WAYNE & LYNETTE | | |
| % Ownership: | 100.0000000000% | | |
| Total Value: | $406,320 | | |
| Tax Area: | 328 - 400-M-5 |
| CERFD | CURRENT EXPENSE REFUND 010 | 0.0000000000 | $406,320 | $406,320 | $0.00 | | |
| CURREXP | CURRENT EXPENSE 010 | 1.0175366760 | $406,320 | $406,320 | $413.45 | | |
| HUMNSERV | HUMAN SERVICES 119 | 0.0250000000 | $406,320 | $406,320 | $10.16 | | |
| SLDREL | SOLDIERS RELIEF 121 | 0.0155990005 | $406,320 | $406,320 | $6.34 | | |
| EMERGSER | EMS 147 | 0.3792580840 | $406,320 | $406,320 | $154.10 | | |
| EMSRFD | EMS REFUND 147 | 0.0000000000 | $406,320 | $406,320 | $0.00 | | |
| FD5EXP | FD #5 EXPENSE 689 | 1.2045331840 | $406,320 | $406,320 | $489.43 | | |
| RLBRFD | RURAL LIBRARY REFUND 623 | 0.0000000000 | $406,320 | $406,320 | $0.00 | | |
| RURALLIB | RURAL LIBRARY 623 | 0.3710609029 | $406,320 | $406,320 | $150.77 | | |
| PORTRFD | PORT REFUND 640 | 0.0000000000 | $406,320 | $406,320 | $0.00 | | |
| PORTWWGEN | PORT OF WW 640 | 0.2460186015 | $406,320 | $406,320 | $99.96 | | |
| SD400BOND | SD #400 BOND 793 | 0.0000000000 | $406,320 | $406,320 | $0.00 | | |
| SD400CAP | SD #400 CP 792 | 0.3443722657 | $406,320 | $406,320 | $139.93 | | |
| SD400GEN | SD #400 GENERAL 790 | 1.9278469916 | $406,320 | $406,320 | $783.32 | | |
| ST2 | STATE SCHOOL PART 2 600 | 0.8131451643 | $406,320 | $406,320 | $330.40 | | |
| STATESCHL | STATE SCHOOL 600 | 1.5158548041 | $406,320 | $406,320 | $615.92 | | |
| STREFUND | STATE REFUND LEVY 603 | 0.0000000000 | $406,320 | $406,320 | $0.00 | | |
| COROAD | COUNTY ROAD 115 | 1.6549953990 | $406,320 | $406,320 | $672.46 | | |
| CRPRD | COUNTY ROAD REFUND 115 | 0.0000000000 | $406,320 | $406,320 | $0.00 | | |
| | Total Tax Rate: | 9.5152210736 | | | | | |
| | | | | Taxes w/Current Exemptions: | $3,866.24 | | |
| | | | | Taxes w/o Exemptions: | $3,866.24 | | |
Improvement / Building
| Improvement #1: | RESIDENTIAL | State Code: | 11 | 1655.0 sqft | Value: | $326,090 |
| Exterior Wall: | SIDING | Heating/Cooling: | HEAT PUMP | | Number of Bathrooms: | 2 | Number of Bedrooms: | 3 | | Plumbing: | 9 | Roof Covering: | COMP SHINGLE |
|
| | Type | Description | Class CD | Sub Class CD | Year Built | Area |
| | MA | Main Area | 1 | 30 | 1978 | 1655.0 |
| | SI1 | SITE IMPROVEMENT | 1 | 30 | 1978 | 2.0 |
| | ATG | Attached Garage | 1 | 30 | 1978 | 483.0 |
| | S1F | Single One Story Fireplace | 1 | 30 | 1978 | 1.0 |
| | RPO | OPEN PORCH W/ROOF | 1 | 30 | 1978 | 78.0 |
| | POL2 | POLE BUILDING-CONCRETE | 1 | 30 | 2014 | 1200.0 |
Sketch
Property Image
Land
| 1 | RES 1 | Converted: Residential | 1.0100 | 43952.00 | 0.00 | 0.00 | 1.00 | $80,230 | $0 |
Roll Value History
| 2025 | N/A | N/A | N/A | N/A | N/A |
| 2024 | $326,090 | $80,230 | $0 | $406,320 | $406,320 |
| 2023 | $326,090 | $80,230 | $0 | $406,320 | $406,320 |
| 2022 | $283,560 | $80,230 | $0 | $363,790 | $363,790 |
| 2021 | $257,780 | $80,230 | $0 | $338,010 | $338,010 |
| 2020 | $229,750 | $60,100 | $0 | $289,850 | $289,850 |
| 2019 | $229,750 | $60,100 | $0 | $289,850 | $289,850 |
| 2018 | $176,730 | $60,100 | $0 | $236,830 | $236,830 |
| 2017 | $168,320 | $60,100 | $0 | $228,420 | $228,420 |
| 2016 | $168,320 | $60,100 | $0 | $228,420 | $228,420 |
| 2015 | $160,300 | $60,100 | $0 | $220,400 | $220,400 |
| 2014 | $141,200 | $60,100 | $0 | $201,300 | $201,300 |
| 2013 | $141,200 | $60,100 | $0 | $201,300 | $201,300 |
| 2012 | $131,600 | $60,100 | $0 | $0 | $0 |
| 2011 | $131,600 | $60,100 | $0 | $0 | $0 |
| 2010 | $131,600 | $60,100 | $0 | $0 | $0 |
| 2009 | $190,100 | $35,000 | $0 | $0 | $0 |
| 2008 | $125,800 | $35,000 | $0 | $0 | $0 |
| 2007 | $125,800 | $35,000 | $0 | $0 | $0 |
| 2006 | $125,800 | $35,000 | $0 | $0 | $0 |
Deed and Sales History
| 1 | 07/13/2017 | SWD | STATUTORY WARRANTY DEED | RYCKMAN JAMES & LAURI | MILTON DAVID WAYNE & LYNETTE | | | $298,400.00 | 132772 | 2017-05372 |
| 2 | 03/18/2005 | WARRANTY D | WARRANTY DEED | NIBLOCK, MICHAEL D & LISA L | RYCKMAN, JAMES & LAURI | | | $166,900.00 | 107020 | 2005-03044 |
| 3 | 03/10/1995 | WARRANTY D | WARRANTY DEED | | | | | $114,000.00 | 83647 | 2289-502249 |
Payout Agreement
| No payout information available.. |