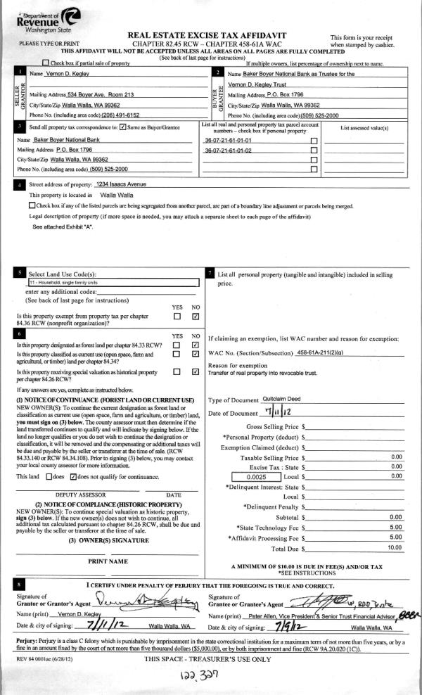
Property
Account |
| Property ID: | 18840 | Abbreviated Legal Description: | DIXIE LOTS 1-4; LOTS 9-12 BLK 48; PLUS ELY PTN OF BLK 107; PLUS BLK T; LESS NP R/W |
| Parcel Number: | 370826514806 | Agent Code: | |
| Type: | Real | | |
| Tax Area: | 310 - 101-8 | Land Use Code | 11 |
| Open Space: | N | DFL | N |
| Historic Property: | N | Remodel Property: | N |
| Multi-Family Redevelopment: | N | | |
| Township: | 8 | Section: | 26 |
| Range: | 37 |
Location |
| Address: | 322 THIRD ST WA 99329 | Mapsco: | |
| Neighborhood: | Cycle 4 Dixie (SF) | Map ID: | |
| Neighborhood CD: | 413511 |
Owner |
| Name: | MYERS MICHAEL & REGINA | Owner ID: | 63540 |
| Mailing Address: | PO BOX 154 DIXIE, WA 99329 | % Ownership: | 100.0000000000% |
| | | Exemptions: | |
Taxes and Assessment Details
Values
| (+) Improvement Homesite Value: | + | $0 | |
| (+) Improvement Non-Homesite Value: | + | $294,890 | |
| (+) Land Homesite Value: | + | $0 | |
| (+) Land Non-Homesite Value: | + | $68,610 | |
| (+) Curr Use (HS): | + | $0 | $0 |
| (+) Curr Use (NHS): | + | $0 | $0 |
| | | -------------------------- | |
| (=) Market Value: | = | $363,500 | |
| (–) Productivity Loss: | – | $0 | |
| | | -------------------------- | |
| (=) Subtotal: | = | $363,500 | |
| (+) Senior Appraised Value: | + | $0 | |
| (+) Non-Senior Appraised Value: | + | $363,500 | |
| | | -------------------------- | |
| (=) Total Appraised Value: | = | $363,500 | |
| (–) Senior Exemption Loss: | – | $0 | |
| (–) Exemption Loss: | – | $0 | |
| | | -------------------------- | |
| (=) Taxable Value: | = | $363,500 | |
Taxing Jurisdiction
| Owner: | MYERS MICHAEL & REGINA | | |
| % Ownership: | 100.0000000000% | | |
| Total Value: | $363,500 | | |
| Tax Area: | 310 - 101-8 |
| CERFD | CURRENT EXPENSE REFUND 010 | 0.0000000000 | $363,500 | $363,500 | $0.00 | | |
| CURREXP | CURRENT EXPENSE 010 | 1.0175366760 | $363,500 | $363,500 | $369.87 | | |
| HUMNSERV | HUMAN SERVICES 119 | 0.0250000000 | $363,500 | $363,500 | $9.09 | | |
| SLDREL | SOLDIERS RELIEF 121 | 0.0155990005 | $363,500 | $363,500 | $5.67 | | |
| EMERGSER | EMS 147 | 0.3792580840 | $363,500 | $363,500 | $137.86 | | |
| EMSRFD | EMS REFUND 147 | 0.0000000000 | $363,500 | $363,500 | $0.00 | | |
| FD8EXP | FD #8 EXPENSE 697 | 0.6647992540 | $363,500 | $363,500 | $241.65 | | |
| RLBRFD | RURAL LIBRARY REFUND 623 | 0.0000000000 | $363,500 | $363,500 | $0.00 | | |
| RURALLIB | RURAL LIBRARY 623 | 0.3710609029 | $363,500 | $363,500 | $134.88 | | |
| PORTRFD | PORT REFUND 640 | 0.0000000000 | $363,500 | $363,500 | $0.00 | | |
| PORTWWGEN | PORT OF WW 640 | 0.2460186015 | $363,500 | $363,500 | $89.43 | | |
| SD101CAP | SD #101 CAP 752 | 0.5894423472 | $363,500 | $363,500 | $214.26 | | |
| SD101GEN | SD #101 GENERAL 750 | 0.7455117868 | $363,500 | $363,500 | $270.99 | | |
| ST2 | STATE SCHOOL PART 2 600 | 0.8131451643 | $363,500 | $363,500 | $295.58 | | |
| STATESCHL | STATE SCHOOL 600 | 1.5158548041 | $363,500 | $363,500 | $551.01 | | |
| STREFUND | STATE REFUND LEVY 603 | 0.0000000000 | $363,500 | $363,500 | $0.00 | | |
| COROAD | COUNTY ROAD 115 | 1.6549953990 | $363,500 | $363,500 | $601.59 | | |
| CRPRD | COUNTY ROAD REFUND 115 | 0.0000000000 | $363,500 | $363,500 | $0.00 | | |
| | Total Tax Rate: | 8.0382220203 | | | | | |
| | | | | Taxes w/Current Exemptions: | $2,921.88 | | |
| | | | | Taxes w/o Exemptions: | $2,921.88 | | |
Improvement / Building
| Improvement #1: | RESIDENTIAL | State Code: | 11 | 1156.0 sqft | Value: | $294,890 |
| Exterior Wall: | SIDING | Heating/Cooling: | HEAT PUMP | | Number of Bathrooms: | 1 | Number of Bedrooms: | 3 | | Plumbing: | 7 | Roof Covering: | COMP SHINGLE |
|
| | Type | Description | Class CD | Sub Class CD | Year Built | Area |
| | MA | Main Area | 1 | 30 | 1953 | 1156.0 |
| | SI1 | SITE IMPROVEMENT | 1 | 30 | 1953 | 1.5 |
| | BASE | BASEMENT | 1 | 30 | 1953 | 1060.0 |
| | BRF | BASEMENT - REC FINISH | 1 | 30 | 1953 | 300.0 |
| | S1F | Single One Story Fireplace | 1 | 30 | 1953 | 1.0 |
| | WOD | Wood Deck | 1 | 30 | 1953 | 208.0 |
| | WDR | WOOD DECK W/ROOF | 1 | 30 | 1953 | 256.0 |
| | CPCD | CARPORT/DIRT FLOOR | 1 | 30 | 1953 | 486.0 |
| | UTST | Utility Storage Shed | 1 | 30 | 1953 | 180.0 |
| | UTST | Utility Storage Shed | 1 | 30 | 1953 | 280.0 |
| | DTG | Detached Garage | 1 | 30 | 1953 | 390.0 |
| | POL3 | POLE BUILDING-CON,ELEC,INSU | 1 | 30 | 2018 | 1760.0 |
Sketch
Property Image
Land
| 1 | RES 1 | Converted: Residential | 1.8400 | 0.00 | 0.00 | 0.00 | 1.00 | $68,610 | $0 |
Roll Value History
| 2025 | N/A | N/A | N/A | N/A | N/A |
| 2024 | $294,890 | $68,610 | $0 | $363,500 | $363,500 |
| 2023 | $294,890 | $68,610 | $0 | $363,500 | $363,500 |
| 2022 | $285,710 | $41,600 | $0 | $327,310 | $327,310 |
| 2021 | $238,090 | $41,600 | $0 | $279,690 | $279,690 |
| 2020 | $198,410 | $41,600 | $0 | $240,010 | $240,010 |
| 2019 | $198,410 | $41,600 | $0 | $240,010 | $240,010 |
| 2018 | $180,370 | $41,600 | $0 | $221,970 | $221,970 |
| 2017 | $143,880 | $41,600 | $0 | $185,480 | $185,480 |
| 2016 | $142,380 | $41,600 | $0 | $183,980 | $183,980 |
| 2015 | $142,380 | $41,600 | $0 | $183,980 | $183,980 |
| 2014 | $135,600 | $41,600 | $0 | $177,200 | $177,200 |
| 2013 | $135,600 | $41,600 | $0 | $177,200 | $177,200 |
| 2012 | $80,600 | $41,600 | $0 | $0 | $0 |
| 2011 | $64,400 | $41,600 | $0 | $0 | $0 |
| 2010 | $64,400 | $41,600 | $0 | $0 | $0 |
| 2009 | $81,500 | $24,500 | $0 | $0 | $0 |
| 2008 | $81,500 | $24,500 | $0 | $0 | $0 |
| 2007 | $81,500 | $24,500 | $0 | $0 | $0 |
| 2006 | $81,500 | $24,500 | $0 | $0 | $0 |
Deed and Sales History
| 1 | 07/25/2018 | QCD | QUIT CLAIM DEED | EILERTSON REGINA | MYERS MICHAEL & REGINA | | | $0.00 | 135198 | 2018-06067 |
| 2 | 01/06/2017 | COURT CASE | COURT CASE | REED REGINA | EILERTSON REGINA | | | | 0 | |
| 3 | 01/31/2012 | WARRANTY D | WARRANTY DEED | TONN, RICK & SANDY | REED, REGINA | | | $180,000.00 | 121350 | 2012-00888 |
| 4 | 08/26/2010 | WARRANTY D | WARRANTY DEED | LAMB, EVA LIFE EST | TONN, RICK & SANDY | | | $126,000.00 | 118919 | 2010-06618 |
| 5 | 01/19/1950 | WARRANTY D | WARRANTY DEED | | | | | $0.00 | 0 | 2490-333773 |
Payout Agreement
| No payout information available.. |