Property
Account |
| Property ID: | 18705 | Abbreviated Legal Description: | BRYANTS LOT 7 BLK 2 |
| Parcel Number: | 360728530207 | Agent Code: | |
| Type: | Real | | |
| Tax Area: | 1 - OL-140-F | Land Use Code | 91 |
| Open Space: | N | DFL | N |
| Historic Property: | N | Remodel Property: | N |
| Multi-Family Redevelopment: | N | | |
| Township: | 7 | Section: | 28 |
| Range: | 36 |
Location |
| Address: | 636 PLEASANT ST WA 99362 | Mapsco: | |
| Neighborhood: | A Res Land Contig | Map ID: | |
| Neighborhood CD: | 613097 |
Owner |
| Name: | DUCKWORTH ROBERT | Owner ID: | 64782 |
| Mailing Address: | 638 PLEASANT ST WALLA WALLA, WA 99362 | % Ownership: | 100.0000000000% |
| | | Exemptions: | |
Taxes and Assessment Details
Values
| (+) Improvement Homesite Value: | + | $0 | |
| (+) Improvement Non-Homesite Value: | + | $0 | |
| (+) Land Homesite Value: | + | $0 | |
| (+) Land Non-Homesite Value: | + | $37,430 | |
| (+) Curr Use (HS): | + | $0 | $0 |
| (+) Curr Use (NHS): | + | $0 | $0 |
| | | -------------------------- | |
| (=) Market Value: | = | $37,430 | |
| (–) Productivity Loss: | – | $0 | |
| | | -------------------------- | |
| (=) Subtotal: | = | $37,430 | |
| (+) Senior Appraised Value: | + | $0 | |
| (+) Non-Senior Appraised Value: | + | $37,430 | |
| | | -------------------------- | |
| (=) Total Appraised Value: | = | $37,430 | |
| (–) Senior Exemption Loss: | – | $0 | |
| (–) Exemption Loss: | – | $0 | |
| | | -------------------------- | |
| (=) Taxable Value: | = | $37,430 | |
Taxing Jurisdiction
| Owner: | DUCKWORTH ROBERT | | |
| % Ownership: | 100.0000000000% | | |
| Total Value: | $37,430 | | |
| Tax Area: | 1 - OL-140-F |
| CERFD | CURRENT EXPENSE REFUND 010 | 0.0000000000 | $37,430 | $37,430 | $0.00 | | |
| CURREXP | CURRENT EXPENSE 010 | 1.0175366760 | $37,430 | $37,430 | $38.09 | | |
| HUMNSERV | HUMAN SERVICES 119 | 0.0250000000 | $37,430 | $37,430 | $0.94 | | |
| SLDREL | SOLDIERS RELIEF 121 | 0.0155990005 | $37,430 | $37,430 | $0.58 | | |
| EMERGSER | EMS 147 | 0.3792580840 | $37,430 | $37,430 | $14.20 | | |
| EMSRFD | EMS REFUND 147 | 0.0000000000 | $37,430 | $37,430 | $0.00 | | |
| PORTRFD | PORT REFUND 640 | 0.0000000000 | $37,430 | $37,430 | $0.00 | | |
| PORTWWGEN | PORT OF WW 640 | 0.2460186015 | $37,430 | $37,430 | $9.21 | | |
| SD140BOND | SD #140 BOND 764 | 0.8342371393 | $37,430 | $37,430 | $31.23 | | |
| SD140GEN | SD #140 GENERAL 760 | 2.0646500647 | $37,430 | $37,430 | $77.28 | | |
| ST2 | STATE SCHOOL PART 2 600 | 0.8131451643 | $37,430 | $37,430 | $30.44 | | |
| STATESCHL | STATE SCHOOL 600 | 1.5158548041 | $37,430 | $37,430 | $56.74 | | |
| STREFUND | STATE REFUND LEVY 603 | 0.0000000000 | $37,430 | $37,430 | $0.00 | | |
| CWWBOND | C OF WW BOND 643 | 0.2760494372 | $37,430 | $37,430 | $10.33 | | |
| CWWGEN | CITY OF WW 631 | 1.6100204973 | $37,430 | $37,430 | $60.26 | | |
| CWWRFD | CITY OF WALLA WALLA REFUND 631 | 0.0000000000 | $37,430 | $37,430 | $0.00 | | |
| | Total Tax Rate: | 8.7973694689 | | | | | |
| | | | | Taxes w/Current Exemptions: | $329.30 | | |
| | | | | Taxes w/o Exemptions: | $329.30 | | |
Improvement / Building
Sketch
| No sketches available for this property. |
Property Image
Land
| 1 | RES 1 | Converted: Residential | 0.1377 | 6000.00 | 0.00 | 0.00 | 1.00 | $37,430 | $0 |
Roll Value History
| 2025 | N/A | N/A | N/A | N/A | N/A |
| 2024 | $0 | $37,430 | $0 | $37,430 | $37,430 |
| 2023 | $0 | $37,430 | $0 | $37,430 | $37,430 |
| 2022 | $0 | $30,060 | $0 | $30,060 | $30,060 |
| 2021 | $0 | $30,060 | $0 | $30,060 | $30,060 |
| 2020 | $0 | $30,060 | $0 | $30,060 | $30,060 |
| 2019 | $0 | $30,060 | $0 | $30,060 | $30,060 |
| 2018 | $0 | $36,000 | $0 | $36,000 | $36,000 |
| 2017 | $0 | $36,000 | $0 | $36,000 | $36,000 |
| 2016 | $0 | $36,000 | $0 | $36,000 | $36,000 |
| 2015 | $0 | $36,000 | $0 | $36,000 | $36,000 |
| 2014 | $0 | $36,000 | $0 | $36,000 | $36,000 |
| 2013 | $0 | $36,000 | $0 | $36,000 | $36,000 |
| 2012 | $0 | $36,000 | $0 | $0 | $0 |
| 2011 | $0 | $36,000 | $0 | $0 | $0 |
| 2010 | $0 | $36,000 | $0 | $0 | $0 |
| 2009 | $0 | $36,000 | $0 | $0 | $0 |
| 2008 | $17,500 | $36,000 | $0 | $0 | $0 |
| 2007 | $21,300 | $18,000 | $0 | $0 | $0 |
| 2006 | $21,300 | $18,000 | $0 | $0 | $0 |
Deed and Sales History
| 1 | 02/25/2019 | QCD | QUIT CLAIM DEED | LAVOIPIERRE FREDERIQUE | DUCKWORTH ROBERT | | 2-PARCELS | | 136433 | 2019-01240 |
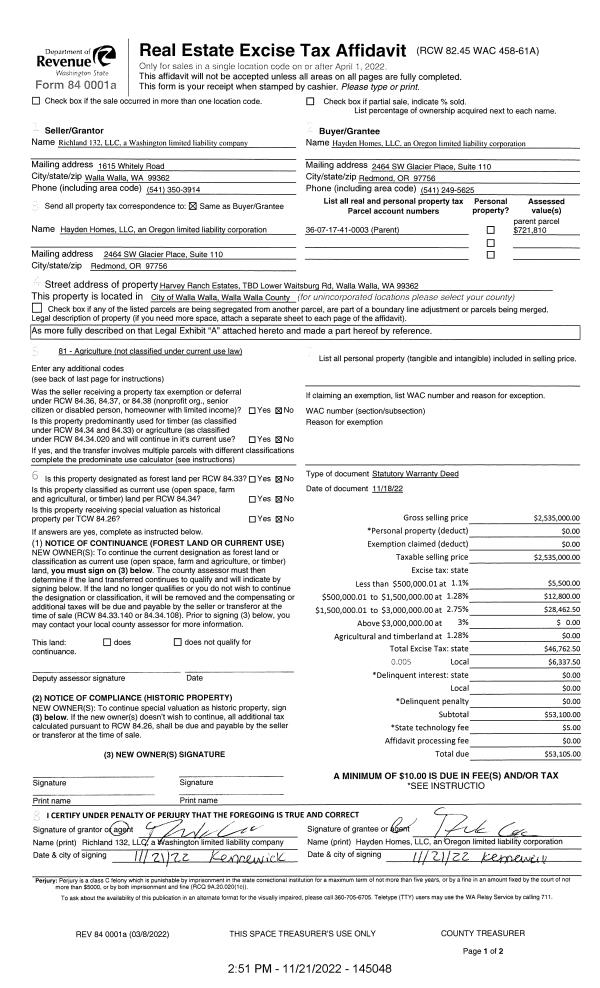
| 2 | 02/21/2019 | SWD | STATUTORY WARRANTY DEED | VERKIST DANIEL C & NICOLE R | DUCKWORTH ROBERT | | 2-PARCELS | $215,000.00 | 136432 | 2019-01239 |
|   | |
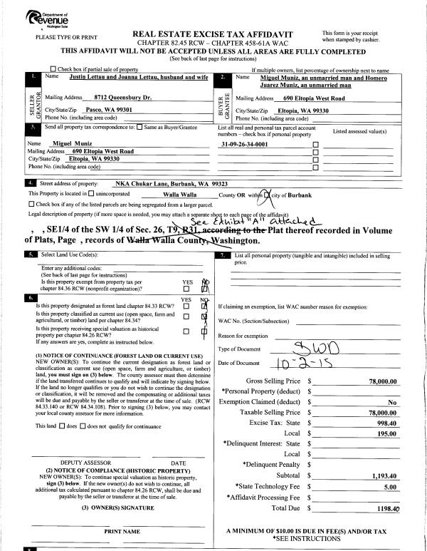
| 3 | 11/05/2014 | SWD | STATUTORY WARRANTY DEED | ORTIZ MIGUEL A | VERKIST DANIEL C & NICOLE R | | | $52,500.00 | 126899 | 2014-08096 |
| 4 | 01/04/2013 | QCD | QUIT CLAIM DEED | CUMMINS, ANDY & MICHELLE | ORTIZ, MIGUEL A | | | $0.00 | 123293 | 2013-00132 |
| 5 | 12/10/2012 | QCD | QUIT CLAIM DEED | CUMMINS, ANDREW & MICHELLE | ORTIZ, MIGUEL A | | | $0.00 | 123133 | 2012-11033 |
| 6 | 02/08/2008 | WARRANTY D | WARRANTY DEED | REYES, SANTIAGO | CUMMINS, ANDY & MICHELLE | | | $15,766.00 | 114493 | 2008-01173 |
| 7 | 03/23/2007 | WARRANTY D | WARRANTY DEED | GRAHAM, LISA M | REYES, SANTIAGO | | | $53,000.00 | 112449 | 2007-03229 |
| 8 | 08/08/1983 | WARRANTY D | WARRANTY DEED | | | | | $4,750.00 | 41380 | 1398-305586 |
Payout Agreement
| No payout information available.. |