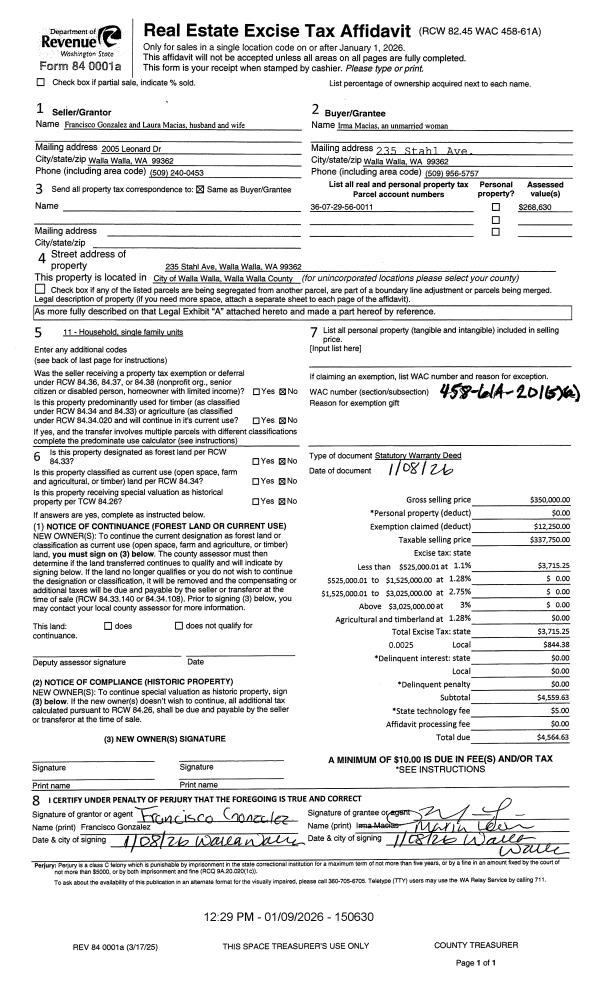
Property
Account |
| Property ID: | 18633 | Abbreviated Legal Description: | CAINS WLY 10' LT 3 BLK 25 & ELY 50' LT 4 BLK 25 |
| Parcel Number: | 360720572504 | Agent Code: | |
| Type: | Real | | |
| Tax Area: | 1 - OL-140-F | Land Use Code | 11 |
| Open Space: | N | DFL | N |
| Historic Property: | N | Remodel Property: | N |
| Multi-Family Redevelopment: | N | | |
| Township: | 7 | Section: | 20 |
| Range: | 36 |
Location |
| Address: | 310 E OAK ST WA 99362 | Mapsco: | |
| Neighborhood: | F SFR | Map ID: | |
| Neighborhood CD: | 512011 |
Owner |
| Name: | HANDLEY JENNIFER LYNN & DANIEL | Owner ID: | 69866 |
| Mailing Address: | 310 E OAK ST WALLA WALLA, WA 99362 | % Ownership: | 100.0000000000% |
| | | Exemptions: | |
Taxes and Assessment Details
Values
| (+) Improvement Homesite Value: | + | $0 | |
| (+) Improvement Non-Homesite Value: | + | $236,780 | |
| (+) Land Homesite Value: | + | $0 | |
| (+) Land Non-Homesite Value: | + | $37,800 | |
| (+) Curr Use (HS): | + | $0 | $0 |
| (+) Curr Use (NHS): | + | $0 | $0 |
| | | -------------------------- | |
| (=) Market Value: | = | $274,580 | |
| (–) Productivity Loss: | – | $0 | |
| | | -------------------------- | |
| (=) Subtotal: | = | $274,580 | |
| (+) Senior Appraised Value: | + | $0 | |
| (+) Non-Senior Appraised Value: | + | $274,580 | |
| | | -------------------------- | |
| (=) Total Appraised Value: | = | $274,580 | |
| (–) Senior Exemption Loss: | – | $0 | |
| (–) Exemption Loss: | – | $0 | |
| | | -------------------------- | |
| (=) Taxable Value: | = | $274,580 | |
Taxing Jurisdiction
| Owner: | HANDLEY JENNIFER LYNN & DANIEL | | |
| % Ownership: | 100.0000000000% | | |
| Total Value: | $274,580 | | |
| Tax Area: | 1 - OL-140-F |
| CERFD | CURRENT EXPENSE REFUND 010 | 0.0000000000 | $274,580 | $274,580 | $0.00 | | |
| CURREXP | CURRENT EXPENSE 010 | 1.0175366760 | $274,580 | $274,580 | $279.40 | | |
| HUMNSERV | HUMAN SERVICES 119 | 0.0250000000 | $274,580 | $274,580 | $6.86 | | |
| SLDREL | SOLDIERS RELIEF 121 | 0.0155990005 | $274,580 | $274,580 | $4.28 | | |
| EMERGSER | EMS 147 | 0.3792580840 | $274,580 | $274,580 | $104.14 | | |
| EMSRFD | EMS REFUND 147 | 0.0000000000 | $274,580 | $274,580 | $0.00 | | |
| PORTRFD | PORT REFUND 640 | 0.0000000000 | $274,580 | $274,580 | $0.00 | | |
| PORTWWGEN | PORT OF WW 640 | 0.2460186015 | $274,580 | $274,580 | $67.55 | | |
| SD140BOND | SD #140 BOND 764 | 0.8342371393 | $274,580 | $274,580 | $229.06 | | |
| SD140GEN | SD #140 GENERAL 760 | 2.0646500647 | $274,580 | $274,580 | $566.91 | | |
| ST2 | STATE SCHOOL PART 2 600 | 0.8131451643 | $274,580 | $274,580 | $223.27 | | |
| STATESCHL | STATE SCHOOL 600 | 1.5158548041 | $274,580 | $274,580 | $416.22 | | |
| STREFUND | STATE REFUND LEVY 603 | 0.0000000000 | $274,580 | $274,580 | $0.00 | | |
| CWWBOND | C OF WW BOND 643 | 0.2760494372 | $274,580 | $274,580 | $75.80 | | |
| CWWGEN | CITY OF WW 631 | 1.6100204973 | $274,580 | $274,580 | $442.08 | | |
| CWWRFD | CITY OF WALLA WALLA REFUND 631 | 0.0000000000 | $274,580 | $274,580 | $0.00 | | |
| | Total Tax Rate: | 8.7973694689 | | | | | |
| | | | | Taxes w/Current Exemptions: | $2,415.57 | | |
| | | | | Taxes w/o Exemptions: | $2,415.57 | | |
Improvement / Building
| Improvement #1: | RESIDENTIAL | State Code: | 11 | 884.0 sqft | Value: | $236,780 |
| Exterior Wall: | VINYL | Heating/Cooling: | WARM & COOLED AIR | | Number of Bathrooms: | 2 | Number of Bedrooms: | 2 | | Plumbing: | 9 | Roof Covering: | COMP SHINGLE |
|
| | Type | Description | Class CD | Sub Class CD | Year Built | Area |
| | MA | Main Area | 1 | 20 | 1895 | 884.0 |
| | SI1 | SITE IMPROVEMENT | 1 | 20 | 1895 | 1.0 |
| | BASE | BASEMENT | 1 | 20 | 1895 | 884.0 |
| | BRF | BASEMENT - REC FINISH | 1 | 20 | 1895 | 884.0 |
| | WOD | Wood Deck | 1 | 20 | 1895 | 80.0 |
| | RPC | OPEN PORCH W/ROOF , CEILED | 1 | 20 | 1895 | 126.0 |
Sketch
Property Image
Land
| 1 | RES 1 | Converted: Residential | 0.1653 | 7200.00 | 0.00 | 0.00 | 1.00 | $37,800 | $0 |
Roll Value History
| 2025 | N/A | N/A | N/A | N/A | N/A |
| 2024 | $172,100 | $64,800 | $0 | $236,900 | $236,900 |
| 2023 | $236,780 | $37,800 | $0 | $274,580 | $274,580 |
| 2022 | $225,500 | $37,800 | $0 | $263,300 | $263,300 |
| 2021 | $150,340 | $37,800 | $0 | $188,140 | $188,140 |
| 2020 | $125,280 | $37,800 | $0 | $163,080 | $163,080 |
| 2019 | $125,280 | $37,800 | $0 | $163,080 | $163,080 |
| 2018 | $104,400 | $37,800 | $0 | $142,200 | $142,200 |
| 2017 | $120,580 | $21,600 | $0 | $142,180 | $142,180 |
| 2016 | $109,620 | $21,600 | $0 | $131,220 | $131,220 |
| 2015 | $109,620 | $21,600 | $0 | $131,220 | $131,220 |
| 2014 | $104,400 | $21,600 | $0 | $126,000 | $126,000 |
| 2013 | $104,400 | $21,600 | $0 | $126,000 | $126,000 |
| 2012 | $104,400 | $21,600 | $0 | $0 | $0 |
| 2011 | $104,400 | $21,600 | $0 | $0 | $0 |
| 2010 | $104,400 | $21,600 | $0 | $0 | $0 |
| 2009 | $118,400 | $21,600 | $0 | $0 | $0 |
| 2008 | $66,200 | $21,600 | $0 | $0 | $0 |
| 2007 | $66,200 | $21,600 | $0 | $0 | $0 |
| 2006 | $51,200 | $14,400 | $0 | $0 | $0 |
Deed and Sales History
| 1 | 07/15/2021 | SWD | STATUTORY WARRANTY DEED | METREK INC | HANDLEY JENNIFER LYNN & DANIEL | | | $275,000.00 | 142047 | 2021-08627 |
| 2 | 01/15/2008 | WARRANTY D | WARRANTY DEED | HSBC BANK | METREK INC | | | $72,900.00 | 114384 | 2008-00401 |
| 3 | 10/18/2007 | WARRANTY D | WARRANTY DEED | HERRES, DAVID & KATHY | HSBC BANK | | | $98,840.00 | 113905 | 2007-12139 |
| 4 | 08/29/2002 | WARRANTY D | WARRANTY DEED | BELL, WILLIAM IV | HERRES, DAVID & KATHY | | | $67,500.00 | 100265 | 2002-09711 |
| 5 | 10/27/1997 | WARRANTY D | WARRANTY DEED | | | | | $29,900.00 | 89215 | 2589-710432 |
Payout Agreement
| No payout information available.. |