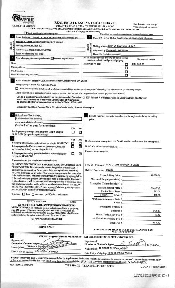
Property
Account |
| Property ID: | 18589 | Abbreviated Legal Description: | WHITMAN P.U.D. PHASE IV LOT 18 BLOCK 2 |
| Parcel Number: | 350736480218 | Agent Code: | |
| Type: | Real | | |
| Tax Area: | 75 - CP 250 | Land Use Code | 11 |
| Open Space: | N | DFL | N |
| Historic Property: | N | Remodel Property: | N |
| Multi-Family Redevelopment: | N | | |
| Township: | | Section: | |
| Range: | |
Location |
| Address: | 619 SE KIWANIS DR WA 99324 | Mapsco: | |
| Neighborhood: | G SFR | Map ID: | |
| Neighborhood CD: | 114011 |
Owner |
| Name: | SMITH MEGAN | Owner ID: | 69824 |
| Mailing Address: | 619 SE KIWANIS DR COLLEGE PLACE, WA 99324 | % Ownership: | 100.0000000000% |
| | | Exemptions: | |
Taxes and Assessment Details
Values
| (+) Improvement Homesite Value: | + | $0 | |
| (+) Improvement Non-Homesite Value: | + | $324,580 | |
| (+) Land Homesite Value: | + | $0 | |
| (+) Land Non-Homesite Value: | + | $70,000 | |
| (+) Curr Use (HS): | + | $0 | $0 |
| (+) Curr Use (NHS): | + | $0 | $0 |
| | | -------------------------- | |
| (=) Market Value: | = | $394,580 | |
| (–) Productivity Loss: | – | $0 | |
| | | -------------------------- | |
| (=) Subtotal: | = | $394,580 | |
| (+) Senior Appraised Value: | + | $0 | |
| (+) Non-Senior Appraised Value: | + | $394,580 | |
| | | -------------------------- | |
| (=) Total Appraised Value: | = | $394,580 | |
| (–) Senior Exemption Loss: | – | $0 | |
| (–) Exemption Loss: | – | $0 | |
| | | -------------------------- | |
| (=) Taxable Value: | = | $394,580 | |
Taxing Jurisdiction
| Owner: | SMITH MEGAN | | |
| % Ownership: | 100.0000000000% | | |
| Total Value: | $394,580 | | |
| Tax Area: | 75 - CP 250 |
| CERFD | CURRENT EXPENSE REFUND 010 | 0.0000000000 | $394,580 | $394,580 | $0.00 | | |
| CURREXP | CURRENT EXPENSE 010 | 1.0175366760 | $394,580 | $394,580 | $401.50 | | |
| HUMNSERV | HUMAN SERVICES 119 | 0.0250000000 | $394,580 | $394,580 | $9.86 | | |
| SLDREL | SOLDIERS RELIEF 121 | 0.0155990005 | $394,580 | $394,580 | $6.16 | | |
| COLLPLBOND | C OF CP BOND 644 | 0.4374241808 | $394,580 | $394,580 | $172.60 | | |
| COLLPLGEN | CITY OF CP 632 | 1.4453819216 | $394,580 | $394,580 | $570.32 | | |
| EMERGSER | EMS 147 | 0.3792580840 | $394,580 | $394,580 | $149.65 | | |
| EMSRFD | EMS REFUND 147 | 0.0000000000 | $394,580 | $394,580 | $0.00 | | |
| RURALLIB | RURAL LIBRARY 623 | 0.3710609029 | $394,580 | $394,580 | $146.41 | | |
| PORTRFD | PORT REFUND 640 | 0.0000000000 | $394,580 | $394,580 | $0.00 | | |
| PORTWWGEN | PORT OF WW 640 | 0.2460186015 | $394,580 | $394,580 | $97.07 | | |
| SD250BOND | SD #250 BOND 773 | 1.4560608159 | $394,580 | $394,580 | $574.53 | | |
| SD250GEN | SD #250 GENERAL 770 | 2.3880724087 | $394,580 | $394,580 | $942.29 | | |
| ST2 | STATE SCHOOL PART 2 600 | 0.8131451643 | $394,580 | $394,580 | $320.85 | | |
| STATESCHL | STATE SCHOOL 600 | 1.5158548041 | $394,580 | $394,580 | $598.13 | | |
| STREFUND | STATE REFUND LEVY 603 | 0.0000000000 | $394,580 | $394,580 | $0.00 | | |
| | Total Tax Rate: | 10.1104125603 | | | | | |
| | | | | Taxes w/Current Exemptions: | $3,989.37 | | |
| | | | | Taxes w/o Exemptions: | $3,989.37 | | |
Improvement / Building
| Improvement #1: | RESIDENTIAL | State Code: | 11 | 1496.0 sqft | Value: | $324,580 |
| Exterior Wall: | HARDBOARD | Heating/Cooling: | WARM & COOLED AIR | | Number of Bathrooms: | 2 | Number of Bedrooms: | 3 | | Plumbing: | 10 | Roof Covering: | COMP SHINGLE |
|
| | Type | Description | Class CD | Sub Class CD | Year Built | Area |
| | MA | Main Area | 1 | 35 | 2007 | 1496.0 |
| | SI1 | SITE IMPROVEMENT | 1 | 35 | 2007 | 2.0 |
| | ATG | Attached Garage | 1 | 35 | 2007 | 420.0 |
| | RPC | OPEN PORCH W/ROOF , CEILED | 1 | 35 | 2007 | 64.0 |
| | GFP | GAS FIREPLACE | 1 | 35 | 2007 | 1.0 |
Sketch
Property Image
Land
| 1 | RES 1 | Converted: Residential | 0.1230 | 5358.00 | 0.00 | 0.00 | 1.00 | $70,000 | $0 |
Roll Value History
| 2025 | N/A | N/A | N/A | N/A | N/A |
| 2024 | $324,580 | $70,000 | $0 | $394,580 | $394,580 |
| 2023 | $324,580 | $70,000 | $0 | $394,580 | $394,580 |
| 2022 | $309,130 | $70,000 | $0 | $379,130 | $379,130 |
| 2021 | $257,610 | $70,000 | $0 | $327,610 | $327,610 |
| 2020 | $190,820 | $70,000 | $0 | $260,820 | $260,820 |
| 2019 | $215,820 | $45,000 | $0 | $260,820 | $260,820 |
| 2018 | $187,670 | $45,000 | $0 | $232,670 | $232,670 |
| 2017 | $163,190 | $45,000 | $0 | $208,190 | $208,190 |
| 2016 | $155,420 | $45,000 | $0 | $200,420 | $200,420 |
| 2015 | $155,420 | $45,000 | $0 | $200,420 | $200,420 |
| 2014 | $163,600 | $45,000 | $0 | $208,600 | $208,600 |
| 2013 | $163,600 | $45,000 | $0 | $208,600 | $208,600 |
| 2012 | $150,100 | $65,000 | $0 | $0 | $0 |
| 2011 | $150,100 | $65,000 | $0 | $0 | $0 |
| 2010 | $150,100 | $65,000 | $0 | $0 | $0 |
| 2009 | $161,400 | $65,000 | $0 | $0 | $0 |
| 2008 | $192,700 | $30,000 | $0 | $0 | $0 |
| 2007 | $0 | $2,400 | $0 | $0 | $0 |
| 2006 | $0 | $2,400 | $0 | $0 | $0 |
Deed and Sales History
| 1 | 07/09/2021 | SWD | STATUTORY WARRANTY DEED | OLD INLAND PROPERTIES LLC | SMITH MEGAN | | | $388,000.00 | 142013 | 2021-08331 |
| 2 | 04/13/2015 | SWD | STATUTORY WARRANTY DEED | BREN JON S & WENDYE S | OLD INLAND PROPERTIES LLC | | | $0.00 | 127792 | 2015-03083 |
| 3 | 04/13/2015 | SWD | STATUTORY WARRANTY DEED | BREN JON S | BREN JON S & WENDYE S | 2 PARCELS | | $0.00 | 127791 | 2015-03082 |
| 4 | 03/21/2014 | SWD | STATUTORY WARRANTY DEED | PALOUSE FALLS INVESTOR GROUP LLC | BREN JON S | | | $212,500.00 | 125595 | 2014-01913 |
| 5 | 11/30/2007 | WARRANTY D | WARRANTY DEED | ROFF HOMES INC | PALOUSE FALLS INVESTOR GROUP LLC | | | $408,000.00 | 114172 | 2007-13695 |
|   | |
| 6 | 01/31/2007 | WARRANTY D | WARRANTY DEED | WHITMAN DEVELOPMENT CORP | ROFF HOMES INC | | | $291,500.00 | 112167 | 2007-01240 |
|   | |
Payout Agreement
| No payout information available.. |