Property
Account |
| Property ID: | 18511 | Abbreviated Legal Description: | BROWNS LOT 1 BLK 5 |
| Parcel Number: | 360721520501 | Agent Code: | |
| Type: | Real | | |
| Tax Area: | 1 - OL-140-F | Land Use Code | 11 |
| Open Space: | N | DFL | N |
| Historic Property: | N | Remodel Property: | N |
| Multi-Family Redevelopment: | N | | |
| Township: | 7 | Section: | 21 |
| Range: | 36 |
Location |
| Address: | 1122 UNIVERSITY ST WA 99362 | Mapsco: | |
| Neighborhood: | A-SFR | Map ID: | |
| Neighborhood CD: | 513011 |
Owner |
| Name: | DASHIELL DENNIS R & JEANNETTE L | Owner ID: | 58252 |
| Mailing Address: | 3035 TOAD LAKE RD BELLINGHAM, WA 98226 | % Ownership: | 100.0000000000% |
| | | Exemptions: | |
Taxes and Assessment Details
Values
| (+) Improvement Homesite Value: | + | $0 | |
| (+) Improvement Non-Homesite Value: | + | $251,200 | |
| (+) Land Homesite Value: | + | $0 | |
| (+) Land Non-Homesite Value: | + | $39,000 | |
| (+) Curr Use (HS): | + | $0 | $0 |
| (+) Curr Use (NHS): | + | $0 | $0 |
| | | -------------------------- | |
| (=) Market Value: | = | $290,200 | |
| (–) Productivity Loss: | – | $0 | |
| | | -------------------------- | |
| (=) Subtotal: | = | $290,200 | |
| (+) Senior Appraised Value: | + | $0 | |
| (+) Non-Senior Appraised Value: | + | $290,200 | |
| | | -------------------------- | |
| (=) Total Appraised Value: | = | $290,200 | |
| (–) Senior Exemption Loss: | – | $0 | |
| (–) Exemption Loss: | – | $0 | |
| | | -------------------------- | |
| (=) Taxable Value: | = | $290,200 | |
Taxing Jurisdiction
| Owner: | DASHIELL DENNIS R & JEANNETTE L | | |
| % Ownership: | 100.0000000000% | | |
| Total Value: | $290,200 | | |
| Tax Area: | 1 - OL-140-F |
| CERFD | CURRENT EXPENSE REFUND 010 | 0.0000000000 | $290,200 | $290,200 | $0.00 | | |
| CURREXP | CURRENT EXPENSE 010 | 1.0175366760 | $290,200 | $290,200 | $295.29 | | |
| HUMNSERV | HUMAN SERVICES 119 | 0.0250000000 | $290,200 | $290,200 | $7.26 | | |
| SLDREL | SOLDIERS RELIEF 121 | 0.0155990005 | $290,200 | $290,200 | $4.53 | | |
| EMERGSER | EMS 147 | 0.3792580840 | $290,200 | $290,200 | $110.06 | | |
| EMSRFD | EMS REFUND 147 | 0.0000000000 | $290,200 | $290,200 | $0.00 | | |
| PORTRFD | PORT REFUND 640 | 0.0000000000 | $290,200 | $290,200 | $0.00 | | |
| PORTWWGEN | PORT OF WW 640 | 0.2460186015 | $290,200 | $290,200 | $71.39 | | |
| SD140BOND | SD #140 BOND 764 | 0.8342371393 | $290,200 | $290,200 | $242.10 | | |
| SD140GEN | SD #140 GENERAL 760 | 2.0646500647 | $290,200 | $290,200 | $599.16 | | |
| ST2 | STATE SCHOOL PART 2 600 | 0.8131451643 | $290,200 | $290,200 | $235.97 | | |
| STATESCHL | STATE SCHOOL 600 | 1.5158548041 | $290,200 | $290,200 | $439.90 | | |
| STREFUND | STATE REFUND LEVY 603 | 0.0000000000 | $290,200 | $290,200 | $0.00 | | |
| CWWBOND | C OF WW BOND 643 | 0.2760494372 | $290,200 | $290,200 | $80.11 | | |
| CWWGEN | CITY OF WW 631 | 1.6100204973 | $290,200 | $290,200 | $467.23 | | |
| CWWRFD | CITY OF WALLA WALLA REFUND 631 | 0.0000000000 | $290,200 | $290,200 | $0.00 | | |
| | Total Tax Rate: | 8.7973694689 | | | | | |
| | | | | Taxes w/Current Exemptions: | $2,553.00 | | |
| | | | | Taxes w/o Exemptions: | $2,553.00 | | |
Improvement / Building
| Improvement #1: | RESIDENTIAL | State Code: | 11 | 945.0 sqft | Value: | $251,200 |
| Exterior Wall: | SIDING | Heating/Cooling: | WARM & COOLED AIR | | Number of Bathrooms: | 2 | Number of Bedrooms: | 2 | | Plumbing: | 8 | Roof Covering: | COMP SHINGLE |
|
| | Type | Description | Class CD | Sub Class CD | Year Built | Area |
| | MA | Main Area | 1 | 30 | 1920 | 945.0 |
| | RCD | WOOD DECK W/ROOF, CEILED | 1 | 30 | 0 | 154.0 |
| | SI1 | SITE IMPROVEMENT | 1 | 30 | 0 | 1.5 |
| | BASE | BASEMENT | 1 | 30 | 1920 | 945.0 |
| | BPF | BASEMENT -PARTITIONED FINISH | 1 | 30 | 1920 | 239.0 |
| | DTG | Detached Garage | 1 | 30 | 1920 | 216.0 |
| | S1F | Single One Story Fireplace | 1 | 30 | 1920 | 1.0 |
Sketch
Property Image
Land
| 1 | RES 1 | Converted: Residential | 0.1433 | 6240.00 | 0.00 | 0.00 | 1.00 | $39,000 | $0 |
Roll Value History
| 2025 | N/A | N/A | N/A | N/A | N/A |
| 2024 | $235,910 | $62,400 | $0 | $298,310 | $298,310 |
| 2023 | $251,200 | $39,000 | $0 | $290,200 | $290,200 |
| 2022 | $218,440 | $39,000 | $0 | $257,440 | $257,440 |
| 2021 | $174,750 | $39,000 | $0 | $213,750 | $213,750 |
| 2020 | $139,800 | $39,000 | $0 | $178,800 | $178,800 |
| 2019 | $139,800 | $39,000 | $0 | $178,800 | $178,800 |
| 2018 | $139,800 | $39,000 | $0 | $178,800 | $178,800 |
| 2017 | $151,390 | $25,000 | $0 | $176,390 | $176,390 |
| 2016 | $144,180 | $25,000 | $0 | $169,180 | $169,180 |
| 2015 | $131,080 | $25,000 | $0 | $156,080 | $156,080 |
| 2014 | $122,500 | $25,000 | $0 | $147,500 | $147,500 |
| 2013 | $122,500 | $25,000 | $0 | $147,500 | $147,500 |
| 2012 | $143,600 | $25,000 | $0 | $0 | $0 |
| 2011 | $143,600 | $25,000 | $0 | $0 | $0 |
| 2010 | $135,600 | $25,000 | $0 | $0 | $0 |
| 2009 | $153,400 | $25,000 | $0 | $0 | $0 |
| 2008 | $130,100 | $25,000 | $0 | $0 | $0 |
| 2007 | $130,100 | $25,000 | $0 | $0 | $0 |
| 2006 | $71,700 | $12,500 | $0 | $0 | $0 |
Deed and Sales History
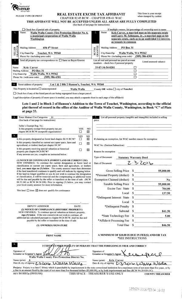
| 1 | 02/09/2016 | SWD | STATUTORY WARRANTY DEED | KACKMAN SHARON R ESTATE OF | DASHIELL DENNIS R & JEANNETTE L | | | $165,000.00 | 129652 | 2016-01001 |
| 2 | 06/17/1983 | WARRANTY D | WARRANTY DEED | | | | | $42,600.00 | 0 | 1388-304243 |
Payout Agreement
| No payout information available.. |