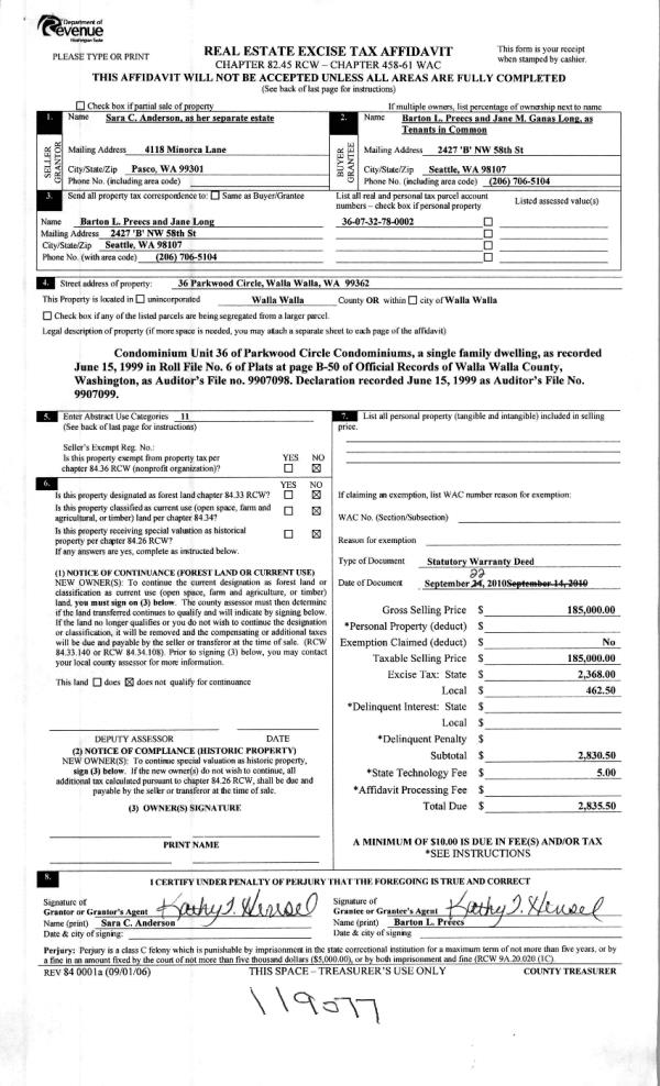
Property
Account |
| Property ID: | 18504 | Abbreviated Legal Description: | STUBBLEFIELD SUB DVN LOT 13 BLK 3 |
| Parcel Number: | 360728740313 | Agent Code: | |
| Type: | Real | | |
| Tax Area: | 1 - OL-140-F | Land Use Code | 11 |
| Open Space: | N | DFL | N |
| Historic Property: | N | Remodel Property: | N |
| Multi-Family Redevelopment: | N | | |
| Township: | 7 | Section: | 28 |
| Range: | 36 |
Location |
| Address: | 1866 HOME AVE WA 99362 | Mapsco: | |
| Neighborhood: | G Res | Map ID: | |
| Neighborhood CD: | 614011 |
Owner |
| Name: | EK LANCE MICHAEL & NATASIA | Owner ID: | 71806 |
| Mailing Address: | 1866 HOME AVE WALLA WALLA, WA 99362 | % Ownership: | 100.0000000000% |
| | | Exemptions: | |
Taxes and Assessment Details
Values
| (+) Improvement Homesite Value: | + | $0 | |
| (+) Improvement Non-Homesite Value: | + | $361,010 | |
| (+) Land Homesite Value: | + | $0 | |
| (+) Land Non-Homesite Value: | + | $120,000 | |
| (+) Curr Use (HS): | + | $0 | $0 |
| (+) Curr Use (NHS): | + | $0 | $0 |
| | | -------------------------- | |
| (=) Market Value: | = | $481,010 | |
| (–) Productivity Loss: | – | $0 | |
| | | -------------------------- | |
| (=) Subtotal: | = | $481,010 | |
| (+) Senior Appraised Value: | + | $0 | |
| (+) Non-Senior Appraised Value: | + | $481,010 | |
| | | -------------------------- | |
| (=) Total Appraised Value: | = | $481,010 | |
| (–) Senior Exemption Loss: | – | $0 | |
| (–) Exemption Loss: | – | $0 | |
| | | -------------------------- | |
| (=) Taxable Value: | = | $481,010 | |
Taxing Jurisdiction
| Owner: | EK LANCE MICHAEL & NATASIA | | |
| % Ownership: | 100.0000000000% | | |
| Total Value: | $481,010 | | |
| Tax Area: | 1 - OL-140-F |
| CERFD | CURRENT EXPENSE REFUND 010 | 0.0000000000 | $481,010 | $481,010 | $0.00 | | |
| CURREXP | CURRENT EXPENSE 010 | 1.0175366760 | $481,010 | $481,010 | $489.45 | | |
| HUMNSERV | HUMAN SERVICES 119 | 0.0250000000 | $481,010 | $481,010 | $12.03 | | |
| SLDREL | SOLDIERS RELIEF 121 | 0.0155990005 | $481,010 | $481,010 | $7.50 | | |
| EMERGSER | EMS 147 | 0.3792580840 | $481,010 | $481,010 | $182.43 | | |
| EMSRFD | EMS REFUND 147 | 0.0000000000 | $481,010 | $481,010 | $0.00 | | |
| PORTRFD | PORT REFUND 640 | 0.0000000000 | $481,010 | $481,010 | $0.00 | | |
| PORTWWGEN | PORT OF WW 640 | 0.2460186015 | $481,010 | $481,010 | $118.34 | | |
| SD140BOND | SD #140 BOND 764 | 0.8342371393 | $481,010 | $481,010 | $401.28 | | |
| SD140GEN | SD #140 GENERAL 760 | 2.0646500647 | $481,010 | $481,010 | $993.12 | | |
| ST2 | STATE SCHOOL PART 2 600 | 0.8131451643 | $481,010 | $481,010 | $391.13 | | |
| STATESCHL | STATE SCHOOL 600 | 1.5158548041 | $481,010 | $481,010 | $729.14 | | |
| STREFUND | STATE REFUND LEVY 603 | 0.0000000000 | $481,010 | $481,010 | $0.00 | | |
| CWWBOND | C OF WW BOND 643 | 0.2760494372 | $481,010 | $481,010 | $132.78 | | |
| CWWGEN | CITY OF WW 631 | 1.6100204973 | $481,010 | $481,010 | $774.44 | | |
| CWWRFD | CITY OF WALLA WALLA REFUND 631 | 0.0000000000 | $481,010 | $481,010 | $0.00 | | |
| | Total Tax Rate: | 8.7973694689 | | | | | |
| | | | | Taxes w/Current Exemptions: | $4,231.64 | | |
| | | | | Taxes w/o Exemptions: | $4,231.64 | | |
Improvement / Building
| Improvement #1: | RESIDENTIAL | State Code: | 11 | 1799.0 sqft | Value: | $361,010 |
| Exterior Wall: | PLYWOOD | Heating/Cooling: | HEAT PUMP | | Number of Bathrooms: | 4 | Number of Bedrooms: | 3 | | Plumbing: | 13 | Roof Covering: | COMP SHINGLE |
|
| | Type | Description | Class CD | Sub Class CD | Year Built | Area |
| | MA | Main Area | 1 | 35 | 1975 | 1799.0 |
| | SI1 | SITE IMPROVEMENT | 1 | 35 | 1975 | 4.0 |
| | BASE | BASEMENT | 1 | 35 | 1975 | 1581.0 |
| | BPF | BASEMENT -PARTITIONED FINISH | 1 | 35 | 1975 | 420.0 |
| | ATG | Attached Garage | 1 | 35 | 1975 | 506.0 |
| | WOD | Wood Deck | 1 | 35 | 1975 | 168.0 |
| | D2F | Double 2 Story Fireplace | 1 | 35 | 1975 | 1.0 |
| | RPC | OPEN PORCH W/ROOF , CEILED | 1 | 35 | 1975 | 57.0 |
Sketch
Property Image
Land
| 1 | RES 1 | Converted: Residential | 0.2755 | 12000.00 | 0.00 | 0.00 | 1.00 | $120,000 | $0 |
Roll Value History
| 2025 | N/A | N/A | N/A | N/A | N/A |
| 2024 | $361,010 | $120,000 | $0 | $481,010 | $481,010 |
| 2023 | $361,010 | $120,000 | $0 | $481,010 | $481,010 |
| 2022 | $343,820 | $85,000 | $0 | $428,820 | $428,820 |
| 2021 | $327,450 | $85,000 | $0 | $412,450 | $412,450 |
| 2020 | $233,890 | $85,000 | $0 | $318,890 | $318,890 |
| 2019 | $233,890 | $85,000 | $0 | $318,890 | $318,890 |
| 2018 | $263,550 | $50,000 | $0 | $313,550 | $313,550 |
| 2017 | $239,590 | $50,000 | $0 | $289,590 | $289,590 |
| 2016 | $239,590 | $50,000 | $0 | $289,590 | $289,590 |
| 2015 | $239,590 | $50,000 | $0 | $289,590 | $289,590 |
| 2014 | $184,300 | $50,000 | $0 | $234,300 | $234,300 |
| 2013 | $184,300 | $50,000 | $0 | $234,300 | $234,300 |
| 2012 | $187,400 | $50,000 | $0 | $0 | $0 |
| 2011 | $187,400 | $50,000 | $0 | $0 | $0 |
| 2010 | $187,400 | $50,000 | $0 | $0 | $0 |
| 2009 | $213,800 | $50,000 | $0 | $0 | $0 |
| 2008 | $213,800 | $50,000 | $0 | $0 | $0 |
| 2007 | $142,100 | $30,000 | $0 | $0 | $0 |
| 2006 | $142,100 | $30,000 | $0 | $0 | $0 |
Deed and Sales History
| 1 | 06/14/2022 | SWD | STATUTORY WARRANTY DEED | ROQUET BETTY JEAN | EK LANCE MICHAEL & NATASIA | | | $479,000.00 | 144138 | 2022-05050 |
| 2 | 04/09/2022 | COMMUNITY | COMMUNITY PROPERTY AGREEMENT | ROQUET PAUL E | ROQUET BETTY JEAN | | | $0.00 | 143763 | 2022-03136 |
| 3 | 06/19/1978 | WARRANTY D | WARRANTY DEED | | | | | $80,000.00 | 0 | 8478-05507 |
Payout Agreement
| No payout information available.. |