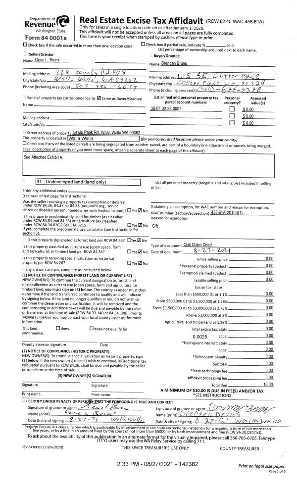
Property
Account |
| Property ID: | 1832 | Abbreviated Legal Description: | ARLENES #3 LOT 8 BLK 3 |
| Parcel Number: | 310807560308 | Agent Code: | |
| Type: | Real | | |
| Tax Area: | 328 - 400-M-5 | Land Use Code | 11 |
| Open Space: | N | DFL | N |
| Historic Property: | N | Remodel Property: | N |
| Multi-Family Redevelopment: | N | | |
| Township: | 8 | Section: | 7 |
| Range: | 31 |
Location |
| Address: | 389 EDITH ST WA 99323 | Mapsco: | |
| Neighborhood: | G BURBANK SFR | Map ID: | |
| Neighborhood CD: | 214711 |
Owner |
| Name: | DODSON LISA | Owner ID: | 56656 |
| Mailing Address: | 389 EDITH ST BURBANK, WA 99323 | % Ownership: | 100.0000000000% |
| | | Exemptions: | |
Taxes and Assessment Details
Values
| (+) Improvement Homesite Value: | + | $0 | |
| (+) Improvement Non-Homesite Value: | + | $403,770 | |
| (+) Land Homesite Value: | + | $0 | |
| (+) Land Non-Homesite Value: | + | $75,000 | |
| (+) Curr Use (HS): | + | $0 | $0 |
| (+) Curr Use (NHS): | + | $0 | $0 |
| | | -------------------------- | |
| (=) Market Value: | = | $478,770 | |
| (–) Productivity Loss: | – | $0 | |
| | | -------------------------- | |
| (=) Subtotal: | = | $478,770 | |
| (+) Senior Appraised Value: | + | $0 | |
| (+) Non-Senior Appraised Value: | + | $478,770 | |
| | | -------------------------- | |
| (=) Total Appraised Value: | = | $478,770 | |
| (–) Senior Exemption Loss: | – | $0 | |
| (–) Exemption Loss: | – | $0 | |
| | | -------------------------- | |
| (=) Taxable Value: | = | $478,770 | |
Taxing Jurisdiction
| Owner: | DODSON LISA | | |
| % Ownership: | 100.0000000000% | | |
| Total Value: | $478,770 | | |
| Tax Area: | 328 - 400-M-5 |
| CERFD | CURRENT EXPENSE REFUND 010 | 0.0000000000 | $478,770 | $478,770 | $0.00 | | |
| CURREXP | CURRENT EXPENSE 010 | 1.0175366760 | $478,770 | $478,770 | $487.17 | | |
| HUMNSERV | HUMAN SERVICES 119 | 0.0250000000 | $478,770 | $478,770 | $11.97 | | |
| SLDREL | SOLDIERS RELIEF 121 | 0.0155990005 | $478,770 | $478,770 | $7.47 | | |
| EMERGSER | EMS 147 | 0.3792580840 | $478,770 | $478,770 | $181.58 | | |
| EMSRFD | EMS REFUND 147 | 0.0000000000 | $478,770 | $478,770 | $0.00 | | |
| FD5EXP | FD #5 EXPENSE 689 | 1.2045331840 | $478,770 | $478,770 | $576.69 | | |
| RLBRFD | RURAL LIBRARY REFUND 623 | 0.0000000000 | $478,770 | $478,770 | $0.00 | | |
| RURALLIB | RURAL LIBRARY 623 | 0.3710609029 | $478,770 | $478,770 | $177.65 | | |
| PORTRFD | PORT REFUND 640 | 0.0000000000 | $478,770 | $478,770 | $0.00 | | |
| PORTWWGEN | PORT OF WW 640 | 0.2460186015 | $478,770 | $478,770 | $117.79 | | |
| SD400BOND | SD #400 BOND 793 | 0.0000000000 | $478,770 | $478,770 | $0.00 | | |
| SD400CAP | SD #400 CP 792 | 0.3443722657 | $478,770 | $478,770 | $164.88 | | |
| SD400GEN | SD #400 GENERAL 790 | 1.9278469916 | $478,770 | $478,770 | $923.00 | | |
| ST2 | STATE SCHOOL PART 2 600 | 0.8131451643 | $478,770 | $478,770 | $389.31 | | |
| STATESCHL | STATE SCHOOL 600 | 1.5158548041 | $478,770 | $478,770 | $725.75 | | |
| STREFUND | STATE REFUND LEVY 603 | 0.0000000000 | $478,770 | $478,770 | $0.00 | | |
| COROAD | COUNTY ROAD 115 | 1.6549953990 | $478,770 | $478,770 | $792.36 | | |
| CRPRD | COUNTY ROAD REFUND 115 | 0.0000000000 | $478,770 | $478,770 | $0.00 | | |
| | Total Tax Rate: | 9.5152210736 | | | | | |
| | | | | Taxes w/Current Exemptions: | $4,555.62 | | |
| | | | | Taxes w/o Exemptions: | $4,555.62 | | |
Improvement / Building
| Improvement #1: | RESIDENTIAL | State Code: | 11 | 2336.0 sqft | Value: | $403,770 |
| Exterior Wall: | PLYWOOD | Heating/Cooling: | WARM & COOLED AIR | | Number of Bathrooms: | 2 | Number of Bedrooms: | 3 | | Plumbing: | 12 | Roof Covering: | COMP SHINGLE |
|
| | Type | Description | Class CD | Sub Class CD | Year Built | Area |
| | MA | Main Area | 1 | 35 | 1995 | 2336.0 |
| | SI1 | SITE IMPROVEMENT | 1 | 35 | 1995 | 3.0 |
| | ATG | Attached Garage | 1 | 35 | 1995 | 724.0 |
| | RPO | OPEN PORCH W/ROOF | 1 | 35 | 1995 | 48.0 |
| | S1F | Single One Story Fireplace | 1 | 35 | 1995 | 1.0 |
| | SMP | SWIMMING POOL | 1 | 35 | 1995 | 1.0 |
| | HBAT | HALF BATH | 1 | 35 | 1995 | 1.0 |
| | CAB | REC CABIN | 1 | 35 | 1995 | 504.0 |
Sketch
Property Image
Land
| 1 | RES 1 | Converted: Residential | 0.8035 | 35000.00 | 0.00 | 0.00 | 1.00 | $75,000 | $0 |
Roll Value History
| 2025 | N/A | N/A | N/A | N/A | N/A |
| 2024 | $403,770 | $75,000 | $0 | $478,770 | $478,770 |
| 2023 | $403,770 | $75,000 | $0 | $478,770 | $478,770 |
| 2022 | $351,110 | $75,000 | $0 | $426,110 | $426,110 |
| 2021 | $305,310 | $75,000 | $0 | $380,310 | $380,310 |
| 2020 | $249,710 | $35,000 | $0 | $284,710 | $284,710 |
| 2019 | $249,710 | $35,000 | $0 | $284,710 | $284,710 |
| 2018 | $237,820 | $35,000 | $0 | $272,820 | $272,820 |
| 2017 | $237,820 | $35,000 | $0 | $272,820 | $272,820 |
| 2016 | $237,820 | $35,000 | $0 | $272,820 | $272,820 |
| 2015 | $237,820 | $35,000 | $0 | $272,820 | $272,820 |
| 2014 | $216,200 | $35,000 | $0 | $251,200 | $251,200 |
| 2013 | $216,200 | $35,000 | $0 | $251,200 | $251,200 |
| 2012 | $204,200 | $35,000 | $0 | $0 | $0 |
| 2011 | $204,200 | $35,000 | $0 | $0 | $0 |
| 2010 | $204,200 | $35,000 | $0 | $0 | $0 |
| 2009 | $214,200 | $25,000 | $0 | $0 | $0 |
| 2008 | $174,300 | $25,000 | $0 | $0 | $0 |
| 2007 | $174,300 | $25,000 | $0 | $0 | $0 |
| 2006 | $174,300 | $25,000 | $0 | $0 | $0 |
Deed and Sales History
| 1 | 05/26/2015 | SWD | STATUTORY WARRANTY DEED | RADA DEBY D | DODSON LISA | | | $285,000.00 | 128037 | 2015-04440 |
| 2 | 04/29/1992 | WARRANTY D | WARRANTY DEED | | | | | $8,000.00 | 76748 | 1969-203787 |
Payout Agreement
| No payout information available.. |