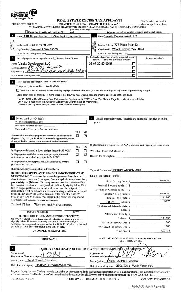
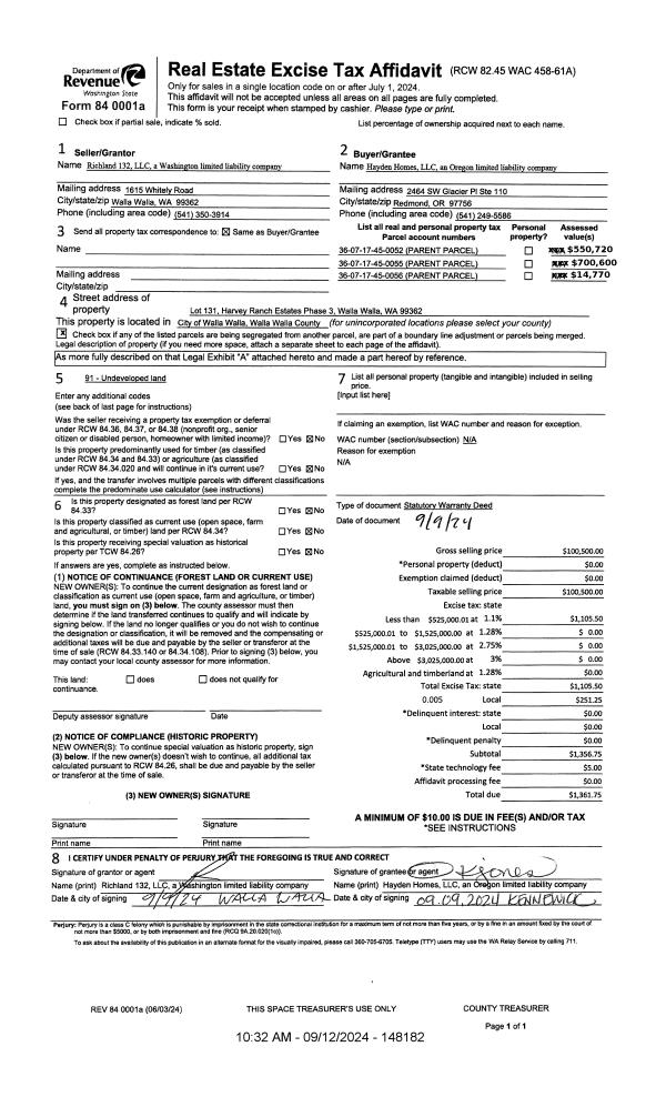
Property
Account |
| Property ID: | 18157 | Abbreviated Legal Description: | 29-7-36 TAX 68F |
| Parcel Number: | 360729340008 | Agent Code: | |
| Type: | Real | | |
| Tax Area: | 1 - OL-140-F | Land Use Code | 11 |
| Open Space: | N | DFL | N |
| Historic Property: | N | Remodel Property: | N |
| Multi-Family Redevelopment: | N | | |
| Township: | 7 | Section: | 29 |
| Range: | 36 |
Location |
| Address: | 1417 S 4TH AVE WA 99362 | Mapsco: | |
| Neighborhood: | Fair Res | Map ID: | |
| Neighborhood CD: | 612011 |
Owner |
| Name: | WALDRON DOROTHY L | Owner ID: | 11886 |
| Mailing Address: | 81086 ALPINE DR HERMISTON, OR 97838 | % Ownership: | 100.0000000000% |
| | | Exemptions: | |
Taxes and Assessment Details
Values
| (+) Improvement Homesite Value: | + | $0 | |
| (+) Improvement Non-Homesite Value: | + | $43,470 | |
| (+) Land Homesite Value: | + | $0 | |
| (+) Land Non-Homesite Value: | + | $40,000 | |
| (+) Curr Use (HS): | + | $0 | $0 |
| (+) Curr Use (NHS): | + | $0 | $0 |
| | | -------------------------- | |
| (=) Market Value: | = | $83,470 | |
| (–) Productivity Loss: | – | $0 | |
| | | -------------------------- | |
| (=) Subtotal: | = | $83,470 | |
| (+) Senior Appraised Value: | + | $0 | |
| (+) Non-Senior Appraised Value: | + | $83,470 | |
| | | -------------------------- | |
| (=) Total Appraised Value: | = | $83,470 | |
| (–) Senior Exemption Loss: | – | $0 | |
| (–) Exemption Loss: | – | $0 | |
| | | -------------------------- | |
| (=) Taxable Value: | = | $83,470 | |
Taxing Jurisdiction
| Owner: | WALDRON DOROTHY L | | |
| % Ownership: | 100.0000000000% | | |
| Total Value: | $83,470 | | |
| Tax Area: | 1 - OL-140-F |
| CERFD | CURRENT EXPENSE REFUND 010 | 0.0000000000 | $83,470 | $83,470 | $0.00 | | |
| CURREXP | CURRENT EXPENSE 010 | 1.0175366760 | $83,470 | $83,470 | $84.93 | | |
| HUMNSERV | HUMAN SERVICES 119 | 0.0250000000 | $83,470 | $83,470 | $2.09 | | |
| SLDREL | SOLDIERS RELIEF 121 | 0.0155990005 | $83,470 | $83,470 | $1.30 | | |
| EMERGSER | EMS 147 | 0.3792580840 | $83,470 | $83,470 | $31.66 | | |
| EMSRFD | EMS REFUND 147 | 0.0000000000 | $83,470 | $83,470 | $0.00 | | |
| PORTRFD | PORT REFUND 640 | 0.0000000000 | $83,470 | $83,470 | $0.00 | | |
| PORTWWGEN | PORT OF WW 640 | 0.2460186015 | $83,470 | $83,470 | $20.54 | | |
| SD140BOND | SD #140 BOND 764 | 0.8342371393 | $83,470 | $83,470 | $69.63 | | |
| SD140GEN | SD #140 GENERAL 760 | 2.0646500647 | $83,470 | $83,470 | $172.34 | | |
| ST2 | STATE SCHOOL PART 2 600 | 0.8131451643 | $83,470 | $83,470 | $67.87 | | |
| STATESCHL | STATE SCHOOL 600 | 1.5158548041 | $83,470 | $83,470 | $126.53 | | |
| STREFUND | STATE REFUND LEVY 603 | 0.0000000000 | $83,470 | $83,470 | $0.00 | | |
| CWWBOND | C OF WW BOND 643 | 0.2760494372 | $83,470 | $83,470 | $23.04 | | |
| CWWGEN | CITY OF WW 631 | 1.6100204973 | $83,470 | $83,470 | $134.39 | | |
| CWWRFD | CITY OF WALLA WALLA REFUND 631 | 0.0000000000 | $83,470 | $83,470 | $0.00 | | |
| | Total Tax Rate: | 8.7973694689 | | | | | |
| | | | | Taxes w/Current Exemptions: | $734.32 | | |
| | | | | Taxes w/o Exemptions: | $734.32 | | |
Improvement / Building
| Improvement #1: | RESIDENTIAL | State Code: | 11 | 520.0 sqft | Value: | $43,470 |
| Exterior Wall: | PLYWOOD | Foundation: | POST & PIER | | Heating/Cooling: | STOVE-NO HEAT | Number of Bathrooms: | 1 | | Number of Bedrooms: | 1 | Plumbing: | 7 | | Roof Covering: | COMP SHINGLE |   |   |
|
| | Type | Description | Class CD | Sub Class CD | Year Built | Area |
| | MA | Main Area | 1 | 15 | 1915 | 520.0 |
| | SI1 | SITE IMPROVEMENT | 1 | 15 | 1915 | 1.0 |
| | RPO | OPEN PORCH W/ROOF | 1 | 15 | 1915 | 42.0 |
Sketch
Property Image
Land
| 1 | RES 1 | Converted: Residential | 0.1148 | 5000.00 | 0.00 | 0.00 | 1.00 | $40,000 | $0 |
Roll Value History
| 2025 | N/A | N/A | N/A | N/A | N/A |
| 2024 | $43,470 | $40,000 | $0 | $83,470 | $83,470 |
| 2023 | $43,470 | $40,000 | $0 | $83,470 | $83,470 |
| 2022 | $43,470 | $31,250 | $0 | $74,720 | $74,720 |
| 2021 | $28,980 | $31,250 | $0 | $60,230 | $60,230 |
| 2020 | $24,150 | $31,250 | $0 | $55,400 | $55,400 |
| 2019 | $24,150 | $31,250 | $0 | $55,400 | $55,400 |
| 2018 | $32,890 | $30,000 | $0 | $62,890 | $62,890 |
| 2017 | $32,890 | $30,000 | $0 | $62,890 | $62,890 |
| 2016 | $32,890 | $30,000 | $0 | $62,890 | $62,890 |
| 2015 | $29,900 | $30,000 | $0 | $59,900 | $59,900 |
| 2014 | $29,900 | $30,000 | $0 | $59,900 | $59,900 |
| 2013 | $29,900 | $30,000 | $0 | $59,900 | $59,900 |
| 2012 | $29,900 | $30,000 | $0 | $0 | $0 |
| 2011 | $29,900 | $30,000 | $0 | $0 | $0 |
| 2010 | $29,900 | $30,000 | $0 | $0 | $0 |
| 2009 | $38,600 | $30,000 | $0 | $0 | $0 |
| 2008 | $38,600 | $30,000 | $0 | $0 | $0 |
| 2007 | $27,200 | $10,000 | $0 | $0 | $0 |
| 2006 | $27,200 | $10,000 | $0 | $0 | $0 |
Deed and Sales History
| 1 | 12/09/1983 | QCD | QUIT CLAIM DEED | | WALDRON DOROTHY L | | | $0.00 | 0 | 1418-308808 |
Payout Agreement
| No payout information available.. |