Property
Account |
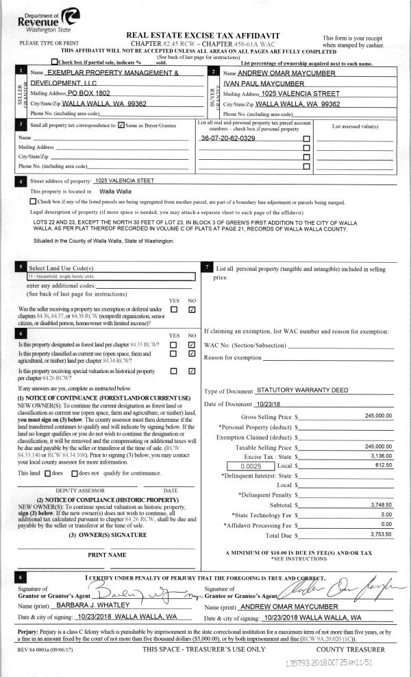
| Property ID: | 18070 | Abbreviated Legal Description: | EASTLAWN LOT 10 & W 1/2 OF LOT 11 BLK 3 |
| Parcel Number: | 360721530310 | Agent Code: | |
| Type: | Real | | |
| Tax Area: | 1 - OL-140-F | Land Use Code | 91 |
| Open Space: | N | DFL | N |
| Historic Property: | N | Remodel Property: | N |
| Multi-Family Redevelopment: | N | | |
| Township: | 7 | Section: | 21 |
| Range: | 36 |
Location |
| Address: | 1543 HOBSON ST WA 99362 | Mapsco: | |
| Neighborhood: | A Land Only | Map ID: | |
| Neighborhood CD: | 513091 |
Owner |
| Name: | MAJERUS DOUGLAS & CHRISTINA M | Owner ID: | 3225 |
| Mailing Address: | 2049 WALLACE ST WALLA WALLA, WA 99362 | % Ownership: | 100.0000000000% |
| | | Exemptions: | |
Taxes and Assessment Details
Values
| (+) Improvement Homesite Value: | + | $0 | |
| (+) Improvement Non-Homesite Value: | + | $0 | |
| (+) Land Homesite Value: | + | $0 | |
| (+) Land Non-Homesite Value: | + | $49,500 | |
| (+) Curr Use (HS): | + | $0 | $0 |
| (+) Curr Use (NHS): | + | $0 | $0 |
| | | -------------------------- | |
| (=) Market Value: | = | $49,500 | |
| (–) Productivity Loss: | – | $0 | |
| | | -------------------------- | |
| (=) Subtotal: | = | $49,500 | |
| (+) Senior Appraised Value: | + | $0 | |
| (+) Non-Senior Appraised Value: | + | $49,500 | |
| | | -------------------------- | |
| (=) Total Appraised Value: | = | $49,500 | |
| (–) Senior Exemption Loss: | – | $0 | |
| (–) Exemption Loss: | – | $0 | |
| | | -------------------------- | |
| (=) Taxable Value: | = | $49,500 | |
Taxing Jurisdiction
| Owner: | MAJERUS DOUGLAS & CHRISTINA M | | |
| % Ownership: | 100.0000000000% | | |
| Total Value: | $49,500 | | |
| Tax Area: | 1 - OL-140-F |
| CERFD | CURRENT EXPENSE REFUND 010 | 0.0000000000 | $49,500 | $49,500 | $0.00 | | |
| CURREXP | CURRENT EXPENSE 010 | 1.0175366760 | $49,500 | $49,500 | $50.37 | | |
| HUMNSERV | HUMAN SERVICES 119 | 0.0250000000 | $49,500 | $49,500 | $1.24 | | |
| SLDREL | SOLDIERS RELIEF 121 | 0.0155990005 | $49,500 | $49,500 | $0.77 | | |
| EMERGSER | EMS 147 | 0.3792580840 | $49,500 | $49,500 | $18.77 | | |
| EMSRFD | EMS REFUND 147 | 0.0000000000 | $49,500 | $49,500 | $0.00 | | |
| PORTRFD | PORT REFUND 640 | 0.0000000000 | $49,500 | $49,500 | $0.00 | | |
| PORTWWGEN | PORT OF WW 640 | 0.2460186015 | $49,500 | $49,500 | $12.18 | | |
| SD140BOND | SD #140 BOND 764 | 0.8342371393 | $49,500 | $49,500 | $41.29 | | |
| SD140GEN | SD #140 GENERAL 760 | 2.0646500647 | $49,500 | $49,500 | $102.20 | | |
| ST2 | STATE SCHOOL PART 2 600 | 0.8131451643 | $49,500 | $49,500 | $40.25 | | |
| STATESCHL | STATE SCHOOL 600 | 1.5158548041 | $49,500 | $49,500 | $75.03 | | |
| STREFUND | STATE REFUND LEVY 603 | 0.0000000000 | $49,500 | $49,500 | $0.00 | | |
| CWWBOND | C OF WW BOND 643 | 0.2760494372 | $49,500 | $49,500 | $13.66 | | |
| CWWGEN | CITY OF WW 631 | 1.6100204973 | $49,500 | $49,500 | $79.70 | | |
| CWWRFD | CITY OF WALLA WALLA REFUND 631 | 0.0000000000 | $49,500 | $49,500 | $0.00 | | |
| | Total Tax Rate: | 8.7973694689 | | | | | |
| | | | | Taxes w/Current Exemptions: | $435.46 | | |
| | | | | Taxes w/o Exemptions: | $435.46 | | |
Improvement / Building
Sketch
| No sketches available for this property. |
Property Image
Land
| 1 | RES 1 | Converted: Residential | 0.1818 | 7920.00 | 0.00 | 0.00 | 1.00 | $49,500 | $0 |
Roll Value History
| 2025 | N/A | N/A | N/A | N/A | N/A |
| 2024 | $0 | $79,200 | $0 | $79,200 | $79,200 |
| 2023 | $0 | $49,500 | $0 | $49,500 | $49,500 |
| 2022 | $0 | $49,500 | $0 | $49,500 | $49,500 |
| 2021 | $0 | $49,500 | $0 | $49,500 | $49,500 |
| 2020 | $0 | $49,500 | $0 | $49,500 | $49,500 |
| 2019 | $8,290 | $49,500 | $0 | $57,790 | $57,790 |
| 2018 | $8,290 | $49,500 | $0 | $57,790 | $57,790 |
| 2017 | $21,530 | $31,700 | $0 | $53,230 | $53,230 |
| 2016 | $20,500 | $31,700 | $0 | $52,200 | $52,200 |
| 2015 | $20,500 | $31,700 | $0 | $52,200 | $52,200 |
| 2014 | $20,500 | $31,700 | $0 | $52,200 | $52,200 |
| 2013 | $20,500 | $31,700 | $0 | $52,200 | $52,200 |
| 2012 | $33,500 | $31,700 | $0 | $0 | $0 |
| 2011 | $33,500 | $31,700 | $0 | $0 | $0 |
| 2010 | $33,500 | $31,700 | $0 | $0 | $0 |
| 2009 | $40,700 | $31,700 | $0 | $0 | $0 |
| 2008 | $40,700 | $31,700 | $0 | $0 | $0 |
| 2007 | $40,700 | $31,700 | $0 | $0 | $0 |
| 2006 | $37,900 | $15,800 | $0 | $0 | $0 |
Deed and Sales History
| 1 | 03/15/2019 | BARGAIN & | BARGAIN & SALE DEED | FEDERAL NATIONAL MORTGAGE ASSOC | MAJERUS DOUGLAS & CHRISTINA M | | | $49,000.00 | 136526 | 2019-01686 |
| 2 | 10/14/2016 | TRUSTEES D | TRUSTEE'S DEED | MC NEW JACK C & RESSIE M | FEDERAL NATIONAL MORTGAGE ASSOC | | | $106,000.00 | 131251 | 2016-08507 |
| 3 | 01/17/1991 | WARRANTY D | WARRANTY DEED | | | | | $15,000.00 | 0 | 1879-100318 |
Payout Agreement
| No payout information available.. |