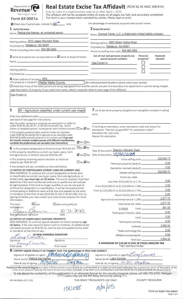
Property
Account |
| Property ID: | 18057 | Abbreviated Legal Description: | CP #2 TAX 23 LOT 4 BLK 12 |
| Parcel Number: | 350736601226 | Agent Code: | |
| Type: | Real | | |
| Tax Area: | 75 - CP 250 | Land Use Code | 11 |
| Open Space: | N | DFL | N |
| Historic Property: | N | Remodel Property: | N |
| Multi-Family Redevelopment: | N | | |
| Township: | 7 | Section: | 36 |
| Range: | 35 |
Location |
| Address: | 920 SE BIRCH AVE WA 99324 | Mapsco: | |
| Neighborhood: | A SFR | Map ID: | |
| Neighborhood CD: | 113011 |
Owner |
| Name: | GARCIA GUILLERMO F | Owner ID: | 65728 |
| Mailing Address: | 920 SE BIRCH AVE COLLEGE PLACE, WA 99324 | % Ownership: | 100.0000000000% |
| | | Exemptions: | SNR/DSBL |
Taxes and Assessment Details
Values
| (+) Improvement Homesite Value: | + | $38,900 | |
| (+) Improvement Non-Homesite Value: | + | $0 | |
| (+) Land Homesite Value: | + | $62,770 | |
| (+) Land Non-Homesite Value: | + | $0 | |
| (+) Curr Use (HS): | + | $0 | $0 |
| (+) Curr Use (NHS): | + | $0 | $0 |
| | | -------------------------- | |
| (=) Market Value: | = | $101,670 | |
| (–) Productivity Loss: | – | $0 | |
| | | -------------------------- | |
| (=) Subtotal: | = | $101,670 | |
| (+) Senior Appraised Value: | + | $101,670 | |
| (+) Non-Senior Appraised Value: | + | $0 | |
| | | -------------------------- | |
| (=) Total Appraised Value: | = | $101,670 | |
| (–) Senior Exemption Loss: | – | $61,002 | |
| (–) Exemption Loss: | – | $0 | |
| | | -------------------------- | |
| (=) Taxable Value: | = | $40,668 | |
Taxing Jurisdiction
| Owner: | GARCIA GUILLERMO F | | |
| % Ownership: | 100.0000000000% | | |
| Total Value: | $101,670 | | |
| Tax Area: | 75 - CP 250 |
| CERFD | CURRENT EXPENSE REFUND 010 | 0.0000000000 | $101,670 | $40,668 | $0.00 | | |
| CURREXP | CURRENT EXPENSE 010 | 1.0175366760 | $101,670 | $40,668 | $41.38 | | |
| HUMNSERV | HUMAN SERVICES 119 | 0.0250000000 | $101,670 | $40,668 | $1.02 | | |
| SLDREL | SOLDIERS RELIEF 121 | 0.0155990005 | $101,670 | $40,668 | $0.63 | | |
| COLLPLBOND | C OF CP BOND 644 | 0.0000000000 | $101,670 | $0 | $0.00 | | |
| COLLPLGEN | CITY OF CP 632 | 1.4453819216 | $101,670 | $40,668 | $58.78 | | |
| EMERGSER | EMS 147 | 0.3792580840 | $101,670 | $40,668 | $15.42 | | |
| EMSRFD | EMS REFUND 147 | 0.0000000000 | $101,670 | $40,668 | $0.00 | | |
| RURALLIB | RURAL LIBRARY 623 | 0.3710609029 | $101,670 | $40,668 | $15.09 | | |
| PORTRFD | PORT REFUND 640 | 0.0000000000 | $101,670 | $40,668 | $0.00 | | |
| PORTWWGEN | PORT OF WW 640 | 0.2460186015 | $101,670 | $40,668 | $10.01 | | |
| SD250BOND | SD #250 BOND 773 | 0.0000000000 | $101,670 | $0 | $0.00 | | |
| SD250GEN | SD #250 GENERAL 770 | 0.0000000000 | $101,670 | $0 | $0.00 | | |
| ST2 | STATE SCHOOL PART 2 600 | 0.0000000000 | $101,670 | $0 | $0.00 | | |
| STATESCHL | STATE SCHOOL 600 | 1.5158548041 | $101,670 | $40,668 | $61.65 | | |
| STREFUND | STATE REFUND LEVY 603 | 0.0000000000 | $101,670 | $40,668 | $0.00 | | |
| | Total Tax Rate: | 5.0157099906 | | | | | |
| | | | | Taxes w/Current Exemptions: | $203.98 | | |
| | | | | Taxes w/o Exemptions: | $1,027.93 | | |
Improvement / Building
| Improvement #1: | RESIDENTIAL | State Code: | 11 | 1584.0 sqft | Value: | $38,900 |
| Exterior Wall: | SHINGLE | Heating/Cooling: | WARM & COOLED AIR | | Number of Bathrooms: | 2 | Number of Bedrooms: | 3 | | Plumbing: | 10 | Roof Covering: | COMP SHINGLE |
|
| | Type | Description | Class CD | Sub Class CD | Year Built | Area |
| | MA | Main Area | 4 | 20 | 1944 | 1584.0 |
| | UPFL | Upper Floor (included in main area) | 4 | 20 | 1944 | 594.0 |
| | SI1 | SITE IMPROVEMENT | 4 | 20 | 1944 | 1.0 |
| | BASE | BASEMENT | 4 | 20 | 1944 | 990.0 |
| | BPF | BASEMENT -PARTITIONED FINISH | 4 | 20 | 1944 | 1002.0 |
| | DTG | Detached Garage | 4 | 20 | 1944 | 864.0 |
| | RPS | PORCH W/STEPS,ROOF | 4 | 20 | 1944 | 54.0 |
Sketch
Property Image
Land
| 1 | RES 1 | Converted: Residential | 0.2888 | 12580.00 | 0.00 | 0.00 | 1.00 | $62,770 | $0 |
Roll Value History
| 2025 | N/A | N/A | N/A | N/A | N/A |
| 2024 | $38,900 | $62,770 | $0 | $101,670 | $40,668 |
| 2023 | $38,900 | $62,770 | $0 | $101,670 | $40,668 |
| 2022 | $38,900 | $62,770 | $0 | $101,670 | $101,670 |
| 2021 | $38,900 | $62,770 | $0 | $101,670 | $101,670 |
| 2020 | $38,900 | $62,770 | $0 | $101,670 | $101,670 |
| 2019 | $94,500 | $49,300 | $0 | $143,800 | $143,800 |
| 2018 | $82,170 | $49,300 | $0 | $131,470 | $131,470 |
| 2017 | $82,170 | $49,300 | $0 | $131,470 | $13,400 |
| 2016 | $74,700 | $49,300 | $0 | $124,000 | $13,400 |
| 2015 | $74,700 | $49,300 | $0 | $124,000 | $13,400 |
| 2014 | $74,700 | $49,300 | $0 | $124,000 | $13,400 |
| 2013 | $74,700 | $49,300 | $0 | $124,000 | $13,400 |
| 2012 | $74,700 | $49,300 | $0 | $0 | $0 |
| 2011 | $74,700 | $49,300 | $0 | $0 | $0 |
| 2010 | $74,700 | $49,300 | $0 | $0 | $0 |
| 2009 | $88,500 | $49,300 | $0 | $0 | $0 |
| 2008 | $75,700 | $27,000 | $0 | $0 | $0 |
| 2007 | $75,700 | $27,000 | $0 | $0 | $0 |
| 2006 | $75,700 | $27,000 | $0 | $0 | $0 |
Deed and Sales History
| 1 | 07/30/2019 | DPR | DEED OF PERSONAL REPRESENTATIVE | SMITH MILDRED I | GARCIA GUILLERMO F | | | $0.00 | 137466 | 2019-06034 |
| 2 | 02/04/1974 | QCD | QUIT CLAIM DEED | | | | | $0.00 | 0 | 1889-102231 |
Payout Agreement
| No payout information available.. |