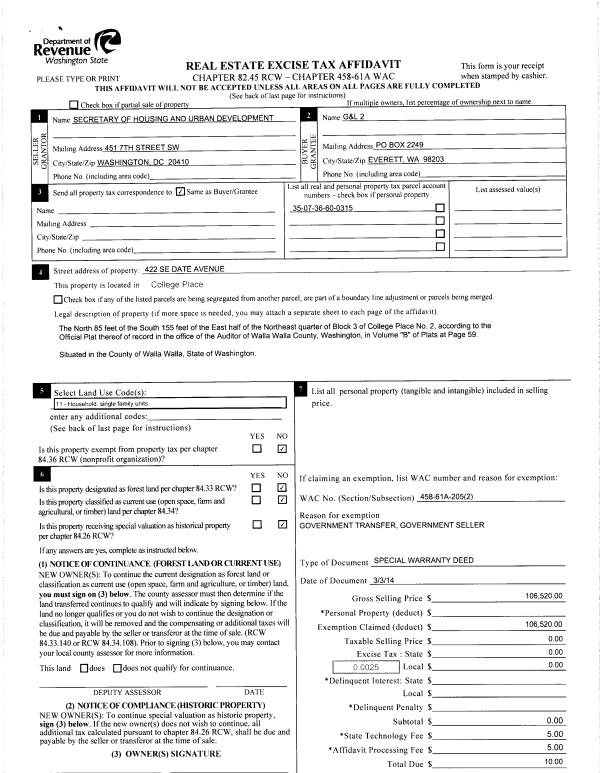
Property
Account |
| Property ID: | 17979 | Abbreviated Legal Description: | EDAIR VISTAS LOT 1 BLK 5 LESS FREEWAY |
| Parcel Number: | 360715500501 | Agent Code: | |
| Type: | Real | | |
| Tax Area: | 5 - OL-140 | Land Use Code | 11 |
| Open Space: | N | DFL | N |
| Historic Property: | N | Remodel Property: | N |
| Multi-Family Redevelopment: | N | | |
| Township: | 7 | Section: | 15 |
| Range: | 36 |
Location |
| Address: | 2354 FRAZIER DR WA 99362 | Mapsco: | |
| Neighborhood: | A-SFR | Map ID: | |
| Neighborhood CD: | 313011 |
Owner |
| Name: | MENDOZA TIFFANY | Owner ID: | 72533 |
| Mailing Address: | 2354 FRAZIER DR WALLA WALLA, WA 99362 | % Ownership: | 100.0000000000% |
| | | Exemptions: | |
Taxes and Assessment Details
Values
| (+) Improvement Homesite Value: | + | $0 | |
| (+) Improvement Non-Homesite Value: | + | $298,720 | |
| (+) Land Homesite Value: | + | $0 | |
| (+) Land Non-Homesite Value: | + | $90,000 | |
| (+) Curr Use (HS): | + | $0 | $0 |
| (+) Curr Use (NHS): | + | $0 | $0 |
| | | -------------------------- | |
| (=) Market Value: | = | $388,720 | |
| (–) Productivity Loss: | – | $0 | |
| | | -------------------------- | |
| (=) Subtotal: | = | $388,720 | |
| (+) Senior Appraised Value: | + | $0 | |
| (+) Non-Senior Appraised Value: | + | $388,720 | |
| | | -------------------------- | |
| (=) Total Appraised Value: | = | $388,720 | |
| (–) Senior Exemption Loss: | – | $0 | |
| (–) Exemption Loss: | – | $0 | |
| | | -------------------------- | |
| (=) Taxable Value: | = | $388,720 | |
Taxing Jurisdiction
| Owner: | MENDOZA TIFFANY | | |
| % Ownership: | 100.0000000000% | | |
| Total Value: | $388,720 | | |
| Tax Area: | 5 - OL-140 |
| CERFD | CURRENT EXPENSE REFUND 010 | 0.0000000000 | $388,720 | $388,720 | $0.00 | | |
| CURREXP | CURRENT EXPENSE 010 | 1.0175366760 | $388,720 | $388,720 | $395.54 | | |
| HUMNSERV | HUMAN SERVICES 119 | 0.0250000000 | $388,720 | $388,720 | $9.72 | | |
| SLDREL | SOLDIERS RELIEF 121 | 0.0155990005 | $388,720 | $388,720 | $6.06 | | |
| EMERGSER | EMS 147 | 0.3792580840 | $388,720 | $388,720 | $147.43 | | |
| EMSRFD | EMS REFUND 147 | 0.0000000000 | $388,720 | $388,720 | $0.00 | | |
| PORTRFD | PORT REFUND 640 | 0.0000000000 | $388,720 | $388,720 | $0.00 | | |
| PORTWWGEN | PORT OF WW 640 | 0.2460186015 | $388,720 | $388,720 | $95.63 | | |
| SD140BOND | SD #140 BOND 764 | 0.8342371393 | $388,720 | $388,720 | $324.28 | | |
| SD140GEN | SD #140 GENERAL 760 | 2.0646500647 | $388,720 | $388,720 | $802.57 | | |
| ST2 | STATE SCHOOL PART 2 600 | 0.8131451643 | $388,720 | $388,720 | $316.09 | | |
| STATESCHL | STATE SCHOOL 600 | 1.5158548041 | $388,720 | $388,720 | $589.24 | | |
| STREFUND | STATE REFUND LEVY 603 | 0.0000000000 | $388,720 | $388,720 | $0.00 | | |
| CWWBOND | C OF WW BOND 643 | 0.2760494372 | $388,720 | $388,720 | $107.31 | | |
| CWWGEN | CITY OF WW 631 | 1.6100204973 | $388,720 | $388,720 | $625.85 | | |
| CWWRFD | CITY OF WALLA WALLA REFUND 631 | 0.0000000000 | $388,720 | $388,720 | $0.00 | | |
| | Total Tax Rate: | 8.7973694689 | | | | | |
| | | | | Taxes w/Current Exemptions: | $3,419.72 | | |
| | | | | Taxes w/o Exemptions: | $3,419.72 | | |
Improvement / Building
| Improvement #1: | RESIDENTIAL | State Code: | 11 | 2144.0 sqft | Value: | $298,720 |
| Exterior Wall: | SIDING | Heating/Cooling: | WARM & COOLED AIR | | Number of Bathrooms: | 3 | Number of Bedrooms: | 4 | | Plumbing: | 12 | Roof Covering: | COMP SHINGLE |
|
| | Type | Description | Class CD | Sub Class CD | Year Built | Area |
| | MA | Main Area | 1 | 30 | 1956 | 2144.0 |
| | SI1 | SITE IMPROVEMENT | 1 | 30 | 1956 | 1.5 |
| | BASE | BASEMENT | 1 | 30 | 1956 | 780.0 |
| | BPF | BASEMENT -PARTITIONED FINISH | 1 | 30 | 1956 | 780.0 |
| | S1F | Single One Story Fireplace | 1 | 30 | 1956 | 1.0 |
| | UTST | Utility Storage Shed | 1 | 30 | 1956 | 120.0 |
| | CPC | COVERED CARPORT/PATIO | 1 | 30 | 1956 | 232.0 |
| | OPS | OPEN PORCH W/STEPS | 1 | 30 | 1956 | 42.0 |
Sketch
Property Image
Land
| 1 | RES 1 | Converted: Residential | 0.5073 | 22100.00 | 0.00 | 0.00 | 1.00 | $90,000 | $0 |
Roll Value History
| 2025 | N/A | N/A | N/A | N/A | N/A |
| 2024 | $298,720 | $90,000 | $0 | $388,720 | $388,720 |
| 2023 | $298,720 | $90,000 | $0 | $388,720 | $388,720 |
| 2022 | $298,720 | $90,000 | $0 | $388,720 | $388,720 |
| 2021 | $258,680 | $55,000 | $0 | $313,680 | $313,680 |
| 2020 | $215,570 | $55,000 | $0 | $270,570 | $270,570 |
| 2019 | $215,570 | $55,000 | $0 | $270,570 | $270,570 |
| 2018 | $195,970 | $55,000 | $0 | $250,970 | $250,970 |
| 2017 | $186,640 | $55,000 | $0 | $241,640 | $241,640 |
| 2016 | $169,670 | $55,000 | $0 | $224,670 | $224,670 |
| 2015 | $146,630 | $55,000 | $0 | $201,630 | $201,630 |
| 2014 | $147,000 | $55,000 | $0 | $202,000 | $202,000 |
| 2013 | $147,000 | $55,000 | $0 | $202,000 | $202,000 |
| 2012 | $138,300 | $55,000 | $0 | $0 | $0 |
| 2011 | $138,300 | $55,000 | $0 | $0 | $0 |
| 2010 | $117,400 | $40,000 | $0 | $0 | $0 |
| 2009 | $134,900 | $40,000 | $0 | $0 | $0 |
| 2008 | $119,000 | $40,000 | $0 | $0 | $0 |
| 2007 | $119,000 | $40,000 | $0 | $0 | $0 |
| 2006 | $99,200 | $25,000 | $0 | $0 | $0 |
Deed and Sales History
| 1 | 09/22/2022 | QCD | QUIT CLAIM DEED | VALADEZ DIEGO MENDOZA & TIFFANY | MENDOZA TIFFANY | | | $0.00 | 144759 | 2022-08035 |
| 2 | 04/28/2017 | SWD | STATUTORY WARRANTY DEED | NUNES DEARL N | VALADEZ DIEGO MENDOZA & TIFFANY | | | $255,000.00 | 132289 | 2017-03202 |
| 3 | 12/22/2009 | WARRANTY D | WARRANTY DEED | PERRY, KYLA MARIE | NUNES, DEARL N | | | $80,000.00 | 117854 | 2009-12263 |
| 4 | 11/23/2009 | QCD | QUIT CLAIM DEED | PERRY, KYLA M | NUNES, DEARL N | | | | 117715 | 2009-11485 |
| 5 | 02/23/2007 | QCD | QUIT CLAIM DEED | FOWLER, WALTER | FOWLER, KYLA | | | | 112290 | 2007-02115 |
| 6 | 09/13/2006 | WARRANTY D | WARRANTY DEED | PHILLIPS, ZONNIE W & CHERIE D | FOWLER, WALTER | | | $168,000.00 | 111196 | 2006-11054 |
| 7 | 07/25/1997 | WARRANTY D | WARRANTY DEED | | | | | $115,000.00 | 88586 | 2549-706755 |
Payout Agreement
| No payout information available.. |