Property
Account |
| Property ID: | 17810 | Abbreviated Legal Description: | ABBOTT ACRE TRACTS LOT 9-C OF REVISED SHORT PLAT (SLY PTN TR 4,LESS MOST SWLY PTN & LESS TAX 1) |
| Parcel Number: | 360733510166 | Agent Code: | |
| Type: | Real | | |
| Tax Area: | 1 - OL-140-F | Land Use Code | 11 |
| Open Space: | N | DFL | N |
| Historic Property: | N | Remodel Property: | N |
| Multi-Family Redevelopment: | N | | |
| Township: | 7 | Section: | 33 |
| Range: | 36 |
Location |
| Address: | 847 WALLOWA DR WA 99362 | Mapsco: | |
| Neighborhood: | G Res | Map ID: | |
| Neighborhood CD: | 614011 |
Owner |
| Name: | SANDERS JAMES B | Owner ID: | 66253 |
| Mailing Address: | 847 WALLOWA DR WALLA WALLA, WA 99362 | % Ownership: | 100.0000000000% |
| | | Exemptions: | |
Taxes and Assessment Details
Values
| (+) Improvement Homesite Value: | + | $0 | |
| (+) Improvement Non-Homesite Value: | + | $404,690 | |
| (+) Land Homesite Value: | + | $0 | |
| (+) Land Non-Homesite Value: | + | $105,710 | |
| (+) Curr Use (HS): | + | $0 | $0 |
| (+) Curr Use (NHS): | + | $0 | $0 |
| | | -------------------------- | |
| (=) Market Value: | = | $510,400 | |
| (–) Productivity Loss: | – | $0 | |
| | | -------------------------- | |
| (=) Subtotal: | = | $510,400 | |
| (+) Senior Appraised Value: | + | $0 | |
| (+) Non-Senior Appraised Value: | + | $510,400 | |
| | | -------------------------- | |
| (=) Total Appraised Value: | = | $510,400 | |
| (–) Senior Exemption Loss: | – | $0 | |
| (–) Exemption Loss: | – | $0 | |
| | | -------------------------- | |
| (=) Taxable Value: | = | $510,400 | |
Taxing Jurisdiction
| Owner: | SANDERS JAMES B | | |
| % Ownership: | 100.0000000000% | | |
| Total Value: | $510,400 | | |
| Tax Area: | 1 - OL-140-F |
| CERFD | CURRENT EXPENSE REFUND 010 | 0.0000000000 | $510,400 | $510,400 | $0.00 | | |
| CURREXP | CURRENT EXPENSE 010 | 1.0175366760 | $510,400 | $510,400 | $519.35 | | |
| HUMNSERV | HUMAN SERVICES 119 | 0.0250000000 | $510,400 | $510,400 | $12.76 | | |
| SLDREL | SOLDIERS RELIEF 121 | 0.0155990005 | $510,400 | $510,400 | $7.96 | | |
| EMERGSER | EMS 147 | 0.3792580840 | $510,400 | $510,400 | $193.57 | | |
| EMSRFD | EMS REFUND 147 | 0.0000000000 | $510,400 | $510,400 | $0.00 | | |
| PORTRFD | PORT REFUND 640 | 0.0000000000 | $510,400 | $510,400 | $0.00 | | |
| PORTWWGEN | PORT OF WW 640 | 0.2460186015 | $510,400 | $510,400 | $125.57 | | |
| SD140BOND | SD #140 BOND 764 | 0.8342371393 | $510,400 | $510,400 | $425.79 | | |
| SD140GEN | SD #140 GENERAL 760 | 2.0646500647 | $510,400 | $510,400 | $1,053.80 | | |
| ST2 | STATE SCHOOL PART 2 600 | 0.8131451643 | $510,400 | $510,400 | $415.03 | | |
| STATESCHL | STATE SCHOOL 600 | 1.5158548041 | $510,400 | $510,400 | $773.69 | | |
| STREFUND | STATE REFUND LEVY 603 | 0.0000000000 | $510,400 | $510,400 | $0.00 | | |
| CWWBOND | C OF WW BOND 643 | 0.2760494372 | $510,400 | $510,400 | $140.90 | | |
| CWWGEN | CITY OF WW 631 | 1.6100204973 | $510,400 | $510,400 | $821.75 | | |
| CWWRFD | CITY OF WALLA WALLA REFUND 631 | 0.0000000000 | $510,400 | $510,400 | $0.00 | | |
| | Total Tax Rate: | 8.7973694689 | | | | | |
| | | | | Taxes w/Current Exemptions: | $4,490.17 | | |
| | | | | Taxes w/o Exemptions: | $4,490.17 | | |
Improvement / Building
| Improvement #1: | RESIDENTIAL | State Code: | 11 | 1829.0 sqft | Value: | $404,690 |
| Exterior Wall: | SIDING | Heating/Cooling: | WARM & COOLED AIR | | Number of Bathrooms: | 2 | Number of Bedrooms: | 3 | | Plumbing: | 11 | Roof Covering: | COMP SHINGLE |
|
| | Type | Description | Class CD | Sub Class CD | Year Built | Area |
| | MA | Main Area | 1 | 40 | 2006 | 1829.0 |
| | SI1 | SITE IMPROVEMENT | 1 | 40 | 2006 | 3.5 |
| | ATG | Attached Garage | 1 | 40 | 2006 | 616.0 |
| | RPC | OPEN PORCH W/ROOF , CEILED | 1 | 40 | 2006 | 40.0 |
| | CPC | COVERED CARPORT/PATIO | 1 | 40 | 2006 | 75.0 |
| | GFP | GAS FIREPLACE | 1 | 40 | 2006 | 1.0 |
Sketch
Property Image
Land
| 1 | RES 1 | Converted: Residential | 0.2427 | 10571.00 | 0.00 | 0.00 | 1.00 | $105,710 | $0 |
Roll Value History
| 2025 | N/A | N/A | N/A | N/A | N/A |
| 2024 | $404,690 | $105,710 | $0 | $510,400 | $510,400 |
| 2023 | $404,690 | $105,710 | $0 | $510,400 | $510,400 |
| 2022 | $385,420 | $87,210 | $0 | $472,630 | $472,630 |
| 2021 | $335,150 | $87,210 | $0 | $422,360 | $422,360 |
| 2020 | $239,390 | $87,210 | $0 | $326,600 | $326,600 |
| 2019 | $239,390 | $87,210 | $0 | $326,600 | $326,600 |
| 2018 | $213,640 | $60,000 | $0 | $273,640 | $273,640 |
| 2017 | $203,460 | $60,000 | $0 | $263,460 | $263,460 |
| 2016 | $203,460 | $60,000 | $0 | $263,460 | $263,460 |
| 2015 | $214,170 | $60,000 | $0 | $274,170 | $274,170 |
| 2014 | $194,700 | $60,000 | $0 | $254,700 | $254,700 |
| 2013 | $194,700 | $60,000 | $0 | $254,700 | $254,700 |
| 2012 | $199,100 | $60,000 | $0 | $0 | $0 |
| 2011 | $199,100 | $60,000 | $0 | $0 | $0 |
| 2010 | $199,100 | $60,000 | $0 | $0 | $0 |
| 2009 | $227,900 | $60,000 | $0 | $0 | $0 |
| 2008 | $227,900 | $60,000 | $0 | $0 | $0 |
| 2007 | $0 | $1,300 | $0 | $0 | $0 |
| 2006 | $0 | $1,300 | $0 | $0 | $0 |
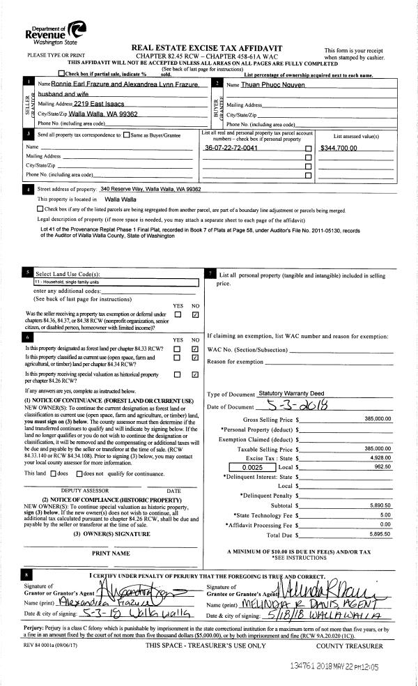
Deed and Sales History
| 1 | 11/12/2019 | SWD | STATUTORY WARRANTY DEED | WILLIAMS BRENDA | SANDERS JAMES B | | | $379,900.00 | 138060 | 2019-09296 |
| 2 | 09/10/2019 | QCD | QUIT CLAIM DEED | WILLIAMS SCOTT R & BRENDA | WILLIAMS BRENDA | | | $0.00 | 137674 | 2019-07113 |
| 3 | 06/23/2006 | WARRANTY D | WARRANTY DEED | WATTS, TRAVIS L | WILLIAMS, SCOTT R & BRENDA | | | $65,000.00 | 110586 | 2006-07394 |
| 4 | 05/16/2005 | QCD | QUIT CLAIM DEED | GARNICA, OSCAR & LAURA | WATTS, TRAVIS L | | | | 107492 | 2005-05841 |
Payout Agreement
| No payout information available.. |