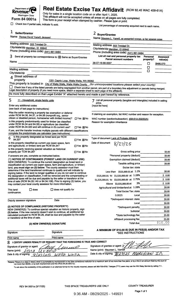
Property
Account |
| Property ID: | 17767 | Abbreviated Legal Description: | 28-7-36 TAX 116A |
| Parcel Number: | 360728210033 | Agent Code: | |
| Type: | Real | | |
| Tax Area: | 1 - OL-140-F | Land Use Code | 11 |
| Open Space: | N | DFL | N |
| Historic Property: | N | Remodel Property: | N |
| Multi-Family Redevelopment: | N | | |
| Township: | 7 | Section: | 28 |
| Range: | 36 |
Location |
| Address: | 960 WHITMAN ST WA 99362 | Mapsco: | |
| Neighborhood: | G Res | Map ID: | |
| Neighborhood CD: | 614011 |
Owner |
| Name: | ALEXANDER RANDALL P II & DENISE YVONNE | Owner ID: | 68153 |
| Mailing Address: | 960 WHITMAN ST WALLA WALLA, WA 99362 | % Ownership: | 100.0000000000% |
| | | Exemptions: | |
Taxes and Assessment Details
Values
| (+) Improvement Homesite Value: | + | $0 | |
| (+) Improvement Non-Homesite Value: | + | $332,840 | |
| (+) Land Homesite Value: | + | $0 | |
| (+) Land Non-Homesite Value: | + | $60,980 | |
| (+) Curr Use (HS): | + | $0 | $0 |
| (+) Curr Use (NHS): | + | $0 | $0 |
| | | -------------------------- | |
| (=) Market Value: | = | $393,820 | |
| (–) Productivity Loss: | – | $0 | |
| | | -------------------------- | |
| (=) Subtotal: | = | $393,820 | |
| (+) Senior Appraised Value: | + | $0 | |
| (+) Non-Senior Appraised Value: | + | $393,820 | |
| | | -------------------------- | |
| (=) Total Appraised Value: | = | $393,820 | |
| (–) Senior Exemption Loss: | – | $0 | |
| (–) Exemption Loss: | – | $0 | |
| | | -------------------------- | |
| (=) Taxable Value: | = | $393,820 | |
Taxing Jurisdiction
| Owner: | ALEXANDER RANDALL P II & DENISE YVONNE | | |
| % Ownership: | 100.0000000000% | | |
| Total Value: | $393,820 | | |
| Tax Area: | 1 - OL-140-F |
| CERFD | CURRENT EXPENSE REFUND 010 | 0.0000000000 | $393,820 | $393,820 | $0.00 | | |
| CURREXP | CURRENT EXPENSE 010 | 1.0175366760 | $393,820 | $393,820 | $400.73 | | |
| HUMNSERV | HUMAN SERVICES 119 | 0.0250000000 | $393,820 | $393,820 | $9.85 | | |
| SLDREL | SOLDIERS RELIEF 121 | 0.0155990005 | $393,820 | $393,820 | $6.14 | | |
| EMERGSER | EMS 147 | 0.3792580840 | $393,820 | $393,820 | $149.36 | | |
| EMSRFD | EMS REFUND 147 | 0.0000000000 | $393,820 | $393,820 | $0.00 | | |
| PORTRFD | PORT REFUND 640 | 0.0000000000 | $393,820 | $393,820 | $0.00 | | |
| PORTWWGEN | PORT OF WW 640 | 0.2460186015 | $393,820 | $393,820 | $96.89 | | |
| SD140BOND | SD #140 BOND 764 | 0.8342371393 | $393,820 | $393,820 | $328.54 | | |
| SD140GEN | SD #140 GENERAL 760 | 2.0646500647 | $393,820 | $393,820 | $813.10 | | |
| ST2 | STATE SCHOOL PART 2 600 | 0.8131451643 | $393,820 | $393,820 | $320.23 | | |
| STATESCHL | STATE SCHOOL 600 | 1.5158548041 | $393,820 | $393,820 | $596.97 | | |
| STREFUND | STATE REFUND LEVY 603 | 0.0000000000 | $393,820 | $393,820 | $0.00 | | |
| CWWBOND | C OF WW BOND 643 | 0.2760494372 | $393,820 | $393,820 | $108.71 | | |
| CWWGEN | CITY OF WW 631 | 1.6100204973 | $393,820 | $393,820 | $634.06 | | |
| CWWRFD | CITY OF WALLA WALLA REFUND 631 | 0.0000000000 | $393,820 | $393,820 | $0.00 | | |
| | Total Tax Rate: | 8.7973694689 | | | | | |
| | | | | Taxes w/Current Exemptions: | $3,464.58 | | |
| | | | | Taxes w/o Exemptions: | $3,464.58 | | |
Improvement / Building
| Improvement #1: | RESIDENTIAL | State Code: | 11 | 1635.0 sqft | Value: | $332,840 |
| Exterior Wall: | STUCCO | Heating/Cooling: | FLOOR RADIANT | | Number of Bathrooms: | 2 | Number of Bedrooms: | 3 | | Plumbing: | 10 | Roof Covering: | COMP SHINGLE |
|
| | Type | Description | Class CD | Sub Class CD | Year Built | Area |
| | MA | Main Area | 1 | 30 | 1950 | 1635.0 |
| | SI1 | SITE IMPROVEMENT | 1 | 30 | 1950 | 1.5 |
| | S1F | Single One Story Fireplace | 1 | 30 | 1950 | 1.0 |
| | BRW | BREEZEWAY | 1 | 30 | 1950 | 63.0 |
| | WOD | Wood Deck | 1 | 30 | 1950 | 171.0 |
| | WOD | Wood Deck | 1 | 30 | 1950 | 563.0 |
| | DTG | Detached Garage | 1 | 30 | 1950 | 462.0 |
| | SHOP | SHOP BUILDING | 1 | 30 | 1950 | 1040.0 |
Sketch
Property Image
Land
| 1 | RES 1 | Converted: Residential | 0.1400 | 6098.40 | 0.00 | 0.00 | 1.00 | $60,980 | $0 |
Roll Value History
| 2025 | N/A | N/A | N/A | N/A | N/A |
| 2024 | $332,840 | $60,980 | $0 | $393,820 | $393,820 |
| 2023 | $332,840 | $60,980 | $0 | $393,820 | $393,820 |
| 2022 | $316,990 | $50,310 | $0 | $367,300 | $367,300 |
| 2021 | $243,840 | $50,310 | $0 | $294,150 | $294,150 |
| 2020 | $174,170 | $50,310 | $0 | $224,480 | $224,480 |
| 2019 | $174,170 | $50,310 | $0 | $224,480 | $224,480 |
| 2018 | $170,740 | $36,600 | $0 | $207,340 | $207,340 |
| 2017 | $148,470 | $36,600 | $0 | $185,070 | $185,070 |
| 2016 | $141,400 | $36,600 | $0 | $178,000 | $178,000 |
| 2015 | $141,400 | $36,600 | $0 | $178,000 | $178,000 |
| 2014 | $141,400 | $36,600 | $0 | $178,000 | $178,000 |
| 2013 | $141,400 | $36,600 | $0 | $178,000 | $178,000 |
| 2012 | $141,400 | $36,600 | $0 | $0 | $0 |
| 2011 | $141,400 | $36,600 | $0 | $0 | $0 |
| 2010 | $126,700 | $36,600 | $0 | $0 | $0 |
| 2009 | $144,800 | $36,600 | $0 | $0 | $0 |
| 2008 | $97,700 | $36,600 | $0 | $0 | $0 |
| 2007 | $54,900 | $18,300 | $0 | $0 | $0 |
| 2006 | $54,900 | $18,300 | $0 | $0 | $0 |
Deed and Sales History
| 1 | 10/23/2020 | QCD | QUIT CLAIM DEED | ALEXANDER RANDALL P II | ALEXANDER RANDALL P II & DENISE YVONNE | | | | 140174 | 2020-11044 |
| 2 | 09/08/2017 | QCD | QUIT CLAIM DEED | ALEXANDER DENISE Y | ALEXANDER RANDALL P II | | 3-PARCELS | | 133178 | 2017-07063 |
| 3 | 09/08/2017 | SWD | STATUTORY WARRANTY DEED | ELSEY JOE T | ALEXANDER RANDALL P II | | 3-PARCELS | $210,000.00 | 133177 | 2017-07062 |
|   | |
| 4 | 12/04/2009 | QCD | QUIT CLAIM DEED | ELSEY JOE T & EMILY A | ELSEY JOE T | | | | 117771 | 2009-11766 |
| 5 | 08/22/2007 | QCD | QUIT CLAIM DEED | ELSEY JOE T | ELSEY JOE T & EMILY A | | | | 113577 | 2007-09962 |
| 6 | 07/26/2005 | WARRANTY D | WARRANTY DEED | POPE LEONARD J & TRACI J | ELSEY JOE T | | | $144,000.00 | 108039 | 2005-09110 |
|   | |
| 7 | 07/26/2005 | QCD | QUIT CLAIM DEED | ELSEY, EMILY | ELSEY, JOE T | | | | 108040 | 2005-09111 |
| 8 | 06/04/2002 | WARRANTY D | WARRANTY DEED | | | | | $85,000.00 | 99648 | 2002-0006490 |
|   | |
Payout Agreement
| No payout information available.. |