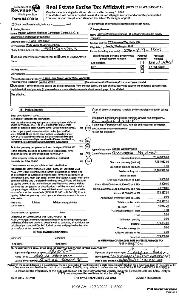
Property
Account |
| Property ID: | 17618 | Abbreviated Legal Description: | YELLOWHAWK CREEK SUBD PHASE 2 LOT 7 BLK 3 |
| Parcel Number: | 360722620307 | Agent Code: | |
| Type: | Real | | |
| Tax Area: | 1 - OL-140-F | Land Use Code | 11 |
| Open Space: | N | DFL | N |
| Historic Property: | N | Remodel Property: | N |
| Multi-Family Redevelopment: | N | | |
| Township: | 7 | Section: | 22 |
| Range: | 36 |
Location |
| Address: | 45 TALON LOOP WA 99362 | Mapsco: | |
| Neighborhood: | A-Superior SFR | Map ID: | |
| Neighborhood CD: | 413211 |
Owner |
| Name: | LEIGHTY DANIEL J & LINDA K | Owner ID: | 44515 |
| Mailing Address: | 761 VILLAGE WAY WALLA WALLA, WA 99362 | % Ownership: | 100.0000000000% |
| | | Exemptions: | |
Taxes and Assessment Details
Values
| (+) Improvement Homesite Value: | + | $0 | |
| (+) Improvement Non-Homesite Value: | + | $358,990 | |
| (+) Land Homesite Value: | + | $0 | |
| (+) Land Non-Homesite Value: | + | $80,000 | |
| (+) Curr Use (HS): | + | $0 | $0 |
| (+) Curr Use (NHS): | + | $0 | $0 |
| | | -------------------------- | |
| (=) Market Value: | = | $438,990 | |
| (–) Productivity Loss: | – | $0 | |
| | | -------------------------- | |
| (=) Subtotal: | = | $438,990 | |
| (+) Senior Appraised Value: | + | $0 | |
| (+) Non-Senior Appraised Value: | + | $438,990 | |
| | | -------------------------- | |
| (=) Total Appraised Value: | = | $438,990 | |
| (–) Senior Exemption Loss: | – | $0 | |
| (–) Exemption Loss: | – | $0 | |
| | | -------------------------- | |
| (=) Taxable Value: | = | $438,990 | |
Taxing Jurisdiction
| Owner: | LEIGHTY DANIEL J & LINDA K | | |
| % Ownership: | 100.0000000000% | | |
| Total Value: | $438,990 | | |
| Tax Area: | 1 - OL-140-F |
| CERFD | CURRENT EXPENSE REFUND 010 | 0.0000000000 | $438,990 | $438,990 | $0.00 | | |
| CURREXP | CURRENT EXPENSE 010 | 1.0175366760 | $438,990 | $438,990 | $446.69 | | |
| HUMNSERV | HUMAN SERVICES 119 | 0.0250000000 | $438,990 | $438,990 | $10.97 | | |
| SLDREL | SOLDIERS RELIEF 121 | 0.0155990005 | $438,990 | $438,990 | $6.85 | | |
| EMERGSER | EMS 147 | 0.3792580840 | $438,990 | $438,990 | $166.49 | | |
| EMSRFD | EMS REFUND 147 | 0.0000000000 | $438,990 | $438,990 | $0.00 | | |
| PORTRFD | PORT REFUND 640 | 0.0000000000 | $438,990 | $438,990 | $0.00 | | |
| PORTWWGEN | PORT OF WW 640 | 0.2460186015 | $438,990 | $438,990 | $108.00 | | |
| SD140BOND | SD #140 BOND 764 | 0.8342371393 | $438,990 | $438,990 | $366.22 | | |
| SD140GEN | SD #140 GENERAL 760 | 2.0646500647 | $438,990 | $438,990 | $906.36 | | |
| ST2 | STATE SCHOOL PART 2 600 | 0.8131451643 | $438,990 | $438,990 | $356.96 | | |
| STATESCHL | STATE SCHOOL 600 | 1.5158548041 | $438,990 | $438,990 | $665.45 | | |
| STREFUND | STATE REFUND LEVY 603 | 0.0000000000 | $438,990 | $438,990 | $0.00 | | |
| CWWBOND | C OF WW BOND 643 | 0.2760494372 | $438,990 | $438,990 | $121.18 | | |
| CWWGEN | CITY OF WW 631 | 1.6100204973 | $438,990 | $438,990 | $706.78 | | |
| CWWRFD | CITY OF WALLA WALLA REFUND 631 | 0.0000000000 | $438,990 | $438,990 | $0.00 | | |
| | Total Tax Rate: | 8.7973694689 | | | | | |
| | | | | Taxes w/Current Exemptions: | $3,861.95 | | |
| | | | | Taxes w/o Exemptions: | $3,861.95 | | |
Improvement / Building
| Improvement #1: | RESIDENTIAL | State Code: | 11 | 2016.0 sqft | Value: | $358,990 |
| Exterior Wall: | PLYWOOD | Heating/Cooling: | WARM & COOLED AIR | | Number of Bathrooms: | 3 | Number of Bedrooms: | 4 | | Plumbing: | 12 | Roof Covering: | COMP SHINGLE |
|
| | Type | Description | Class CD | Sub Class CD | Year Built | Area |
| | MA | Main Area | 2 | 35 | 2001 | 2016.0 |
| | SI1 | SITE IMPROVEMENT | 2 | 35 | 0 | 4.0 |
| | UPFL | Upper Floor (included in main area) | 2 | 35 | 2001 | 1008.0 |
| | ATG | Attached Garage | 1 | 35 | 2001 | 680.0 |
| | RPO | OPEN PORCH W/ROOF | 2 | 35 | 2001 | 216.0 |
Sketch
Property Image
Land
| 1 | RES 1 | Converted: Residential | 0.1919 | 8360.00 | 0.00 | 0.00 | 1.00 | $80,000 | $0 |
Roll Value History
| 2025 | N/A | N/A | N/A | N/A | N/A |
| 2024 | $358,990 | $80,000 | $0 | $438,990 | $438,990 |
| 2023 | $358,990 | $80,000 | $0 | $438,990 | $438,990 |
| 2022 | $362,500 | $50,000 | $0 | $412,500 | $412,500 |
| 2021 | $278,840 | $50,000 | $0 | $328,840 | $328,840 |
| 2020 | $228,560 | $50,000 | $0 | $278,560 | $278,560 |
| 2019 | $228,560 | $50,000 | $0 | $278,560 | $278,560 |
| 2018 | $211,630 | $50,000 | $0 | $261,630 | $261,630 |
| 2017 | $192,390 | $50,000 | $0 | $242,390 | $242,390 |
| 2016 | $192,390 | $40,000 | $0 | $232,390 | $232,390 |
| 2015 | $192,390 | $40,000 | $0 | $232,390 | $232,390 |
| 2014 | $174,900 | $40,000 | $0 | $214,900 | $214,900 |
| 2013 | $174,900 | $40,000 | $0 | $214,900 | $214,900 |
| 2012 | $174,900 | $40,000 | $0 | $0 | $0 |
| 2011 | $195,800 | $40,000 | $0 | $0 | $0 |
| 2010 | $184,600 | $40,000 | $0 | $0 | $0 |
| 2009 | $209,600 | $40,000 | $0 | $0 | $0 |
| 2008 | $168,000 | $40,000 | $0 | $0 | $0 |
| 2007 | $168,000 | $40,000 | $0 | $0 | $0 |
| 2006 | $126,800 | $20,900 | $0 | $0 | $0 |
Deed and Sales History
| 1 | 08/03/2007 | WARRANTY D | WARRANTY DEED | NICHOLS, DENNIS G & CINDY | LEIGHTY, DANIEL J & LINDA K | | | $259,500.00 | 113440 | 2007-09014 |
| 2 | 08/08/2001 | WARRANTY D | WARRANTY DEED | | | | | $157,999.00 | 97790 | 3170-108569 |
Payout Agreement
| No payout information available.. |