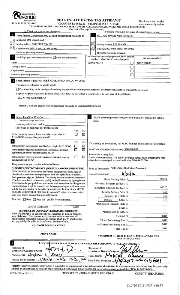
Property
Account |
| Property ID: | 17585 | Abbreviated Legal Description: | 11-7-38 NW1/4NE1/4; LESS N 330'; PLUS N 330' OF SW1/4 NE1/4 |
| Parcel Number: | 380711120004 | Agent Code: | |
| Type: | Real | | |
| Tax Area: | 309 - 101 | Land Use Code | 88 |
| Open Space: | N | DFL | Y |
| Historic Property: | N | Remodel Property: | N |
| Multi-Family Redevelopment: | N | | |
| Township: | 7 | Section: | 11 |
| Range: | 38 |
Location |
| Address: | WA 99329 | Mapsco: | |
| Neighborhood: | 0 Farm | Map ID: | |
| Neighborhood CD: | 5250 |
Owner |
| Name: | VIXIE MATTHEW GARY & TERESA JEAN | Owner ID: | 65954 |
| Mailing Address: | 11845 E HWY 124 PRESCOTT, WA 99348 | % Ownership: | 100.0000000000% |
| | | Exemptions: | |
Taxes and Assessment Details
Values
| (+) Improvement Homesite Value: | + | $0 | |
| (+) Improvement Non-Homesite Value: | + | $0 | |
| (+) Land Homesite Value: | + | $0 | |
| (+) Land Non-Homesite Value: | + | $20,000 | |
| (+) Curr Use (HS): | + | $0 | $0 |
| (+) Curr Use (NHS): | + | $28,500 | $5,430 |
| | | -------------------------- | |
| (=) Market Value: | = | $48,500 | |
| (–) Productivity Loss: | – | $23,070 | |
| | | -------------------------- | |
| (=) Subtotal: | = | $25,430 | |
| (+) Senior Appraised Value: | + | $0 | |
| (+) Non-Senior Appraised Value: | + | $25,430 | |
| | | -------------------------- | |
| (=) Total Appraised Value: | = | $25,430 | |
| (–) Senior Exemption Loss: | – | $0 | |
| (–) Exemption Loss: | – | $0 | |
| | | -------------------------- | |
| (=) Taxable Value: | = | $25,430 | |
Taxing Jurisdiction
| Owner: | VIXIE MATTHEW GARY & TERESA JEAN | | |
| % Ownership: | 100.0000000000% | | |
| Total Value: | $48,500 | | |
| Tax Area: | 309 - 101 |
| CERFD | CURRENT EXPENSE REFUND 010 | 0.0000000000 | $25,430 | $25,430 | $0.00 | | |
| CURREXP | CURRENT EXPENSE 010 | 1.0175366760 | $25,430 | $25,430 | $25.88 | | |
| HUMNSERV | HUMAN SERVICES 119 | 0.0250000000 | $25,430 | $25,430 | $0.64 | | |
| SLDREL | SOLDIERS RELIEF 121 | 0.0155990005 | $25,430 | $25,430 | $0.40 | | |
| EMERGSER | EMS 147 | 0.3792580840 | $25,430 | $25,430 | $9.64 | | |
| EMSRFD | EMS REFUND 147 | 0.0000000000 | $25,430 | $25,430 | $0.00 | | |
| RLBRFD | RURAL LIBRARY REFUND 623 | 0.0000000000 | $25,430 | $25,430 | $0.00 | | |
| RURALLIB | RURAL LIBRARY 623 | 0.3710609029 | $25,430 | $25,430 | $9.44 | | |
| PORTRFD | PORT REFUND 640 | 0.0000000000 | $25,430 | $25,430 | $0.00 | | |
| PORTWWGEN | PORT OF WW 640 | 0.2460186015 | $25,430 | $25,430 | $6.26 | | |
| SD101CAP | SD #101 CAP 752 | 0.5894423472 | $25,430 | $25,430 | $14.99 | | |
| SD101GEN | SD #101 GENERAL 750 | 0.7455117868 | $25,430 | $25,430 | $18.96 | | |
| ST2 | STATE SCHOOL PART 2 600 | 0.8131451643 | $25,430 | $25,430 | $20.68 | | |
| STATESCHL | STATE SCHOOL 600 | 1.5158548041 | $25,430 | $25,430 | $38.55 | | |
| STREFUND | STATE REFUND LEVY 603 | 0.0000000000 | $25,430 | $25,430 | $0.00 | | |
| COROAD | COUNTY ROAD 115 | 1.6549953990 | $25,430 | $25,430 | $42.09 | | |
| CRPRD | COUNTY ROAD REFUND 115 | 0.0000000000 | $25,430 | $25,430 | $0.00 | | |
| | Total Tax Rate: | 7.3734227663 | | | | | |
| | | | | Taxes w/Current Exemptions: | $187.53 | | |
| | | | | Taxes w/o Exemptions: | $187.53 | | |
Improvement / Building
Sketch
| No sketches available for this property. |
Property Image
Land
| 1 | 20,000-CS | CABIN SITE @ 20,000 | 1.0000 | 43560.00 | 0.00 | 0.00 | 1.00 | $20,000 | $0 |
| 2 | 2-TBR | Timber | 14.5000 | 631620.00 | 0.00 | 0.00 | 1.00 | $7,250 | $970 |
| 3 | 6-MTN | Mountain | 6.5000 | 283140.00 | 0.00 | 0.00 | 1.00 | $3,250 | $3,250 |
| 4 | 4-TBR | Timber | 18.0000 | 784080.00 | 0.00 | 0.00 | 1.00 | $18,000 | $1,210 |
Roll Value History
| 2025 | N/A | N/A | N/A | N/A | N/A |
| 2024 | $0 | $96,500 | $7,410 | $42,410 | $42,410 |
| 2023 | $0 | $48,500 | $5,430 | $25,430 | $25,430 |
| 2022 | $0 | $48,500 | $5,400 | $25,400 | $25,400 |
| 2021 | $0 | $48,500 | $5,400 | $25,400 | $25,400 |
| 2020 | $0 | $48,500 | $5,400 | $25,400 | $25,400 |
| 2019 | $0 | $48,500 | $5,290 | $25,290 | $25,290 |
| 2018 | $0 | $48,500 | $5,270 | $25,270 | $25,270 |
| 2017 | $0 | $20,000 | $5,770 | $5,770 | $5,770 |
| 2016 | $0 | $20,000 | $5,730 | $5,730 | $5,730 |
| 2015 | $0 | $20,000 | $5,640 | $5,640 | $5,640 |
| 2014 | $0 | $20,000 | $5,570 | $5,570 | $5,570 |
| 2013 | $0 | $20,000 | $5,600 | $5,600 | $5,600 |
| 2012 | $0 | $5,700 | $0 | $0 | $0 |
| 2011 | $0 | $5,800 | $0 | $0 | $0 |
| 2010 | $0 | $5,800 | $0 | $0 | $0 |
| 2009 | $0 | $5,700 | $0 | $0 | $0 |
| 2008 | $0 | $7,900 | $0 | $0 | $0 |
| 2007 | $0 | $12,200 | $0 | $0 | $0 |
| 2006 | $0 | $12,200 | $0 | $0 | $0 |
Deed and Sales History
| 1 | 02/01/2021 | SWD | STATUTORY WARRANTY DEED | GALES GREG G | VIXIE MATTHEW GARY & TERESA JEAN | | | $115,500.00 | 140835 | 2021-01214 |
| 2 | 10/19/2017 | SWD | STATUTORY WARRANTY DEED | JOHNSON JOSEPH D & DENISE W | GALES GREG G | | | $0.00 | 133444 | 2017-08345 |
| 3 | 05/01/2014 | SWD | STATUTORY WARRANTY DEED | ELMGREN ERIK THOMAS & KATHLEEN MARIE | JOHNSON JOSEPH D & DENISE W | | | $63,500.00 | 125811 | 2014-02978 |
| 4 | 06/29/2007 | WARRANTY D | WARRANTY DEED | REMUS, DUANE E & BETTY J | ELMGREN, ERIK THOMAS & KATHLEE | | | $58,000.00 | 113172 | 2007-07531 |
| 5 | 05/15/1987 | WARRANTY D | WARRANTY DEED | | | | | $15,000.00 | 0 | 1648-703784 |
Payout Agreement
| No payout information available.. |