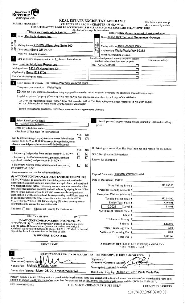
Property
Account |
| Property ID: | 17558 | Abbreviated Legal Description: | LT 12 BLK 6 MILBROOKE PARK |
| Parcel Number: | 360721650612 | Agent Code: | |
| Type: | Real | | |
| Tax Area: | 1 - OL-140-F | Land Use Code | 11 |
| Open Space: | N | DFL | N |
| Historic Property: | N | Remodel Property: | N |
| Multi-Family Redevelopment: | N | | |
| Township: | 7 | Section: | 21 |
| Range: | 36 |
Location |
| Address: | 1422 BOYER AVE WA 99362 | Mapsco: | |
| Neighborhood: | A-Superior SFR | Map ID: | |
| Neighborhood CD: | 513211 |
Owner |
| Name: | WARD JOSIAH A & CHRISTINA I | Owner ID: | 68411 |
| Mailing Address: | 1422 BOYER AVE WALLA WALLA, WA 99362 | % Ownership: | 100.0000000000% |
| | | Exemptions: | |
Taxes and Assessment Details
Values
| (+) Improvement Homesite Value: | + | $0 | |
| (+) Improvement Non-Homesite Value: | + | $200,690 | |
| (+) Land Homesite Value: | + | $0 | |
| (+) Land Non-Homesite Value: | + | $45,380 | |
| (+) Curr Use (HS): | + | $0 | $0 |
| (+) Curr Use (NHS): | + | $0 | $0 |
| | | -------------------------- | |
| (=) Market Value: | = | $246,070 | |
| (–) Productivity Loss: | – | $0 | |
| | | -------------------------- | |
| (=) Subtotal: | = | $246,070 | |
| (+) Senior Appraised Value: | + | $0 | |
| (+) Non-Senior Appraised Value: | + | $246,070 | |
| | | -------------------------- | |
| (=) Total Appraised Value: | = | $246,070 | |
| (–) Senior Exemption Loss: | – | $0 | |
| (–) Exemption Loss: | – | $0 | |
| | | -------------------------- | |
| (=) Taxable Value: | = | $246,070 | |
Taxing Jurisdiction
| Owner: | WARD JOSIAH A & CHRISTINA I | | |
| % Ownership: | 100.0000000000% | | |
| Total Value: | $246,070 | | |
| Tax Area: | 1 - OL-140-F |
| CERFD | CURRENT EXPENSE REFUND 010 | 0.0000000000 | $246,070 | $246,070 | $0.00 | | |
| CURREXP | CURRENT EXPENSE 010 | 1.0175366760 | $246,070 | $246,070 | $250.39 | | |
| HUMNSERV | HUMAN SERVICES 119 | 0.0250000000 | $246,070 | $246,070 | $6.15 | | |
| SLDREL | SOLDIERS RELIEF 121 | 0.0155990005 | $246,070 | $246,070 | $3.84 | | |
| EMERGSER | EMS 147 | 0.3792580840 | $246,070 | $246,070 | $93.32 | | |
| EMSRFD | EMS REFUND 147 | 0.0000000000 | $246,070 | $246,070 | $0.00 | | |
| PORTRFD | PORT REFUND 640 | 0.0000000000 | $246,070 | $246,070 | $0.00 | | |
| PORTWWGEN | PORT OF WW 640 | 0.2460186015 | $246,070 | $246,070 | $60.54 | | |
| SD140BOND | SD #140 BOND 764 | 0.8342371393 | $246,070 | $246,070 | $205.28 | | |
| SD140GEN | SD #140 GENERAL 760 | 2.0646500647 | $246,070 | $246,070 | $508.05 | | |
| ST2 | STATE SCHOOL PART 2 600 | 0.8131451643 | $246,070 | $246,070 | $200.09 | | |
| STATESCHL | STATE SCHOOL 600 | 1.5158548041 | $246,070 | $246,070 | $373.01 | | |
| STREFUND | STATE REFUND LEVY 603 | 0.0000000000 | $246,070 | $246,070 | $0.00 | | |
| CWWBOND | C OF WW BOND 643 | 0.2760494372 | $246,070 | $246,070 | $67.93 | | |
| CWWGEN | CITY OF WW 631 | 1.6100204973 | $246,070 | $246,070 | $396.18 | | |
| CWWRFD | CITY OF WALLA WALLA REFUND 631 | 0.0000000000 | $246,070 | $246,070 | $0.00 | | |
| | Total Tax Rate: | 8.7973694689 | | | | | |
| | | | | Taxes w/Current Exemptions: | $2,164.78 | | |
| | | | | Taxes w/o Exemptions: | $2,164.78 | | |
Improvement / Building
| Improvement #1: | RESIDENTIAL | State Code: | 11 | 816.0 sqft | Value: | $200,690 |
| Exterior Wall: | STUCCO | Heating/Cooling: | MINI-SPLIT HP SYSTEM | | Number of Bathrooms: | 1 | Number of Bedrooms: | 2 | | Plumbing: | 6 | Roof Covering: | COMP SHINGLE |
|
| | Type | Description | Class CD | Sub Class CD | Year Built | Area |
| | MA | Main Area | 1 | 30 | 1949 | 816.0 |
| | SI1 | SITE IMPROVEMENT | 1 | 30 | 1949 | 1.5 |
| | DTG | Detached Garage | 1 | 30 | 1949 | 308.0 |
| | RPO | OPEN PORCH W/ROOF | 1 | 30 | 1949 | 25.0 |
| | CPC | COVERED CARPORT/PATIO | 1 | 30 | 1949 | 288.0 |
| | CPC | COVERED CARPORT/PATIO | 1 | 30 | 1949 | 168.0 |
| | S1F | Single One Story Fireplace | 1 | 30 | 1949 | 1.0 |
Sketch
Property Image
Land
| 1 | RES 1 | Converted: Residential | 0.1667 | 7260.00 | 0.00 | 0.00 | 1.00 | $45,380 | $0 |
Roll Value History
| 2025 | N/A | N/A | N/A | N/A | N/A |
| 2024 | $197,530 | $72,600 | $0 | $270,130 | $270,130 |
| 2023 | $200,690 | $45,380 | $0 | $246,070 | $246,070 |
| 2022 | $200,690 | $45,380 | $0 | $246,070 | $246,070 |
| 2021 | $154,380 | $45,380 | $0 | $199,760 | $199,760 |
| 2020 | $118,750 | $45,380 | $0 | $164,130 | $164,130 |
| 2019 | $118,750 | $45,380 | $0 | $164,130 | $164,130 |
| 2018 | $95,000 | $45,380 | $0 | $140,380 | $140,380 |
| 2017 | $83,900 | $29,000 | $0 | $112,900 | $112,900 |
| 2016 | $83,900 | $29,000 | $0 | $112,900 | $112,900 |
| 2015 | $83,900 | $29,000 | $0 | $112,900 | $112,900 |
| 2014 | $83,900 | $29,000 | $0 | $112,900 | $112,900 |
| 2013 | $83,900 | $29,000 | $0 | $112,900 | $112,900 |
| 2012 | $81,900 | $29,000 | $0 | $0 | $0 |
| 2011 | $56,300 | $29,000 | $0 | $0 | $0 |
| 2010 | $52,200 | $29,000 | $0 | $0 | $0 |
| 2009 | $61,200 | $29,000 | $0 | $0 | $0 |
| 2008 | $61,200 | $29,000 | $0 | $0 | $0 |
| 2007 | $61,200 | $29,000 | $0 | $0 | $0 |
| 2006 | $45,000 | $14,500 | $0 | $0 | $0 |
Deed and Sales History
| 1 | 11/20/2024 | SWD | STATUTORY WARRANTY DEED | WARD JOSIAH A & CHRISTINA I | AUSTIN JACLYN | | | $295,000.00 | 148539 | 2024-06725 |
| 2 | 12/14/2020 | QCD | QUIT CLAIM DEED | WARD JOSIAH A | WARD JOSIAH A & CHRISTINA I | | | | 140546 | 2020-13238 |
| 3 | 07/10/2018 | SWD | STATUTORY WARRANTY DEED | WOLFRAM BENJAMIN S | WARD JOSIAH A | | | $165,000.00 | 135079 | 2018-05512 |
| 4 | 03/22/2018 | BARGAIN & | BARGAIN & SALE DEED | NATIONSTAR MORTGAGE LLC | WOLFRAM BENJAMIN S | | | $107,777.00 | 134358 | 2018-02224 |
| 5 | 01/24/2018 | TRUSTEES D | TRUSTEE'S DEED | HOLDER TAMMY | NATIONSTAR MORTGAGE LLC | | | $106,680.00 | 134042 | 2018-00689 |
| 6 | 10/27/2010 | QCD | QUIT CLAIM DEED | HOLDER, SHANNON R | HOLDER, TAMMY | | | | 119253 | 2010-08710 |
| 7 | 07/11/2007 | QCD | QUIT CLAIM DEED | HASKINS, TAMMY N | HOLDER, SHANNON R & TAMMY N | | | | 113248 | 2007-07966 |
| 8 | 04/04/2003 | WARRANTY D | WARRANTY DEED | DUNCAN, EUGENE & CHARLENE | HASKINS, TAMMY N | | | $83,000.00 | 101771 | 2003-04784 |
| 9 | 04/25/1994 | WARRANTY D | WARRANTY DEED | | | | | $53,900.00 | 81494 | 2189-404913 |
Payout Agreement
| No payout information available.. |