Property
Account |
| Property ID: | 17530 | Abbreviated Legal Description: | BABCOCKS TAX 1 LOT 14 BLK 1 |
| Parcel Number: | 360729510127 | Agent Code: | |
| Type: | Real | | |
| Tax Area: | 1 - OL-140-F | Land Use Code | 11 |
| Open Space: | N | DFL | N |
| Historic Property: | N | Remodel Property: | N |
| Multi-Family Redevelopment: | N | | |
| Township: | 7 | Section: | 29 |
| Range: | 36 |
Location |
| Address: | 373 S 4TH AVE WA 99362 | Mapsco: | |
| Neighborhood: | Fair Inferior Res | Map ID: | |
| Neighborhood CD: | 512111 |
Owner |
| Name: | SHORT ROCHELLE | Owner ID: | 67705 |
| Mailing Address: | 1865 LEONARD DR WALLA WALLA, WA 99362 | % Ownership: | 100.0000000000% |
| | | Exemptions: | |
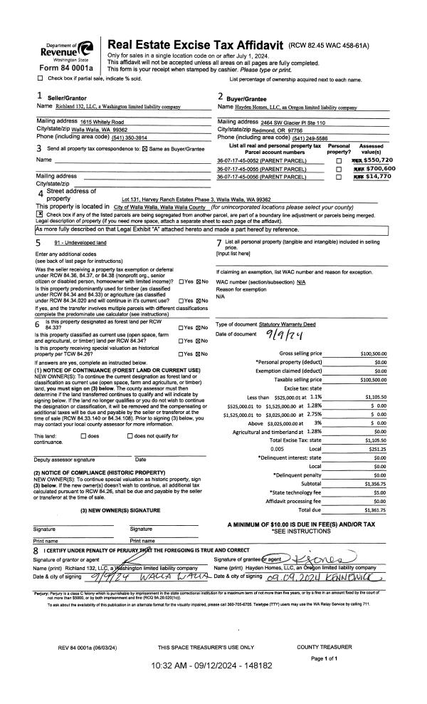
Taxes and Assessment Details
Values
| (+) Improvement Homesite Value: | + | $0 | |
| (+) Improvement Non-Homesite Value: | + | $208,640 | |
| (+) Land Homesite Value: | + | $0 | |
| (+) Land Non-Homesite Value: | + | $41,080 | |
| (+) Curr Use (HS): | + | $0 | $0 |
| (+) Curr Use (NHS): | + | $0 | $0 |
| | | -------------------------- | |
| (=) Market Value: | = | $249,720 | |
| (–) Productivity Loss: | – | $0 | |
| | | -------------------------- | |
| (=) Subtotal: | = | $249,720 | |
| (+) Senior Appraised Value: | + | $0 | |
| (+) Non-Senior Appraised Value: | + | $249,720 | |
| | | -------------------------- | |
| (=) Total Appraised Value: | = | $249,720 | |
| (–) Senior Exemption Loss: | – | $0 | |
| (–) Exemption Loss: | – | $0 | |
| | | -------------------------- | |
| (=) Taxable Value: | = | $249,720 | |
Taxing Jurisdiction
| Owner: | SHORT ROCHELLE | | |
| % Ownership: | 100.0000000000% | | |
| Total Value: | $249,720 | | |
| Tax Area: | 1 - OL-140-F |
| CERFD | CURRENT EXPENSE REFUND 010 | 0.0000000000 | $249,720 | $249,720 | $0.00 | | |
| CURREXP | CURRENT EXPENSE 010 | 1.0175366760 | $249,720 | $249,720 | $254.10 | | |
| HUMNSERV | HUMAN SERVICES 119 | 0.0250000000 | $249,720 | $249,720 | $6.24 | | |
| SLDREL | SOLDIERS RELIEF 121 | 0.0155990005 | $249,720 | $249,720 | $3.90 | | |
| EMERGSER | EMS 147 | 0.3792580840 | $249,720 | $249,720 | $94.71 | | |
| EMSRFD | EMS REFUND 147 | 0.0000000000 | $249,720 | $249,720 | $0.00 | | |
| PORTRFD | PORT REFUND 640 | 0.0000000000 | $249,720 | $249,720 | $0.00 | | |
| PORTWWGEN | PORT OF WW 640 | 0.2460186015 | $249,720 | $249,720 | $61.44 | | |
| SD140BOND | SD #140 BOND 764 | 0.8342371393 | $249,720 | $249,720 | $208.33 | | |
| SD140GEN | SD #140 GENERAL 760 | 2.0646500647 | $249,720 | $249,720 | $515.58 | | |
| ST2 | STATE SCHOOL PART 2 600 | 0.8131451643 | $249,720 | $249,720 | $203.06 | | |
| STATESCHL | STATE SCHOOL 600 | 1.5158548041 | $249,720 | $249,720 | $378.54 | | |
| STREFUND | STATE REFUND LEVY 603 | 0.0000000000 | $249,720 | $249,720 | $0.00 | | |
| CWWBOND | C OF WW BOND 643 | 0.2760494372 | $249,720 | $249,720 | $68.94 | | |
| CWWGEN | CITY OF WW 631 | 1.6100204973 | $249,720 | $249,720 | $402.05 | | |
| CWWRFD | CITY OF WALLA WALLA REFUND 631 | 0.0000000000 | $249,720 | $249,720 | $0.00 | | |
| | Total Tax Rate: | 8.7973694689 | | | | | |
| | | | | Taxes w/Current Exemptions: | $2,196.89 | | |
| | | | | Taxes w/o Exemptions: | $2,196.89 | | |
Improvement / Building
| Improvement #1: | RESIDENTIAL | State Code: | 11 | 1286.0 sqft | Value: | $208,640 |
| Exterior Wall: | VINYL | Heating/Cooling: | FORCED AIR | | Number of Bathrooms: | 2 | Number of Bedrooms: | 2 | | Plumbing: | 6 | Roof Covering: | COMP SHINGLE |
|
| | Type | Description | Class CD | Sub Class CD | Year Built | Area |
| | MA | Main Area | 1 | 30 | 1900 | 1286.0 |
| | SI1 | SITE IMPROVEMENT | 1 | 30 | 1900 | 1.0 |
| | SPO | SCREENED PORCH | 1 | 30 | 1900 | 35.0 |
| | SWP | Solid Wall Porch | 1 | 30 | 1900 | 49.0 |
| | WDR | WOOD DECK W/ROOF | 1 | 30 | 1900 | 318.0 |
Sketch
Property Image
Land
| 1 | RES 1 | Converted: Residential | 0.1796 | 7825.00 | 0.00 | 0.00 | 1.00 | $41,080 | $0 |
Roll Value History
| 2025 | N/A | N/A | N/A | N/A | N/A |
| 2024 | $215,950 | $70,430 | $0 | $286,380 | $286,380 |
| 2023 | $208,640 | $41,080 | $0 | $249,720 | $249,720 |
| 2022 | $208,640 | $41,080 | $0 | $249,720 | $249,720 |
| 2021 | $181,420 | $41,080 | $0 | $222,500 | $222,500 |
| 2020 | $113,390 | $41,080 | $0 | $154,470 | $154,470 |
| 2019 | $113,390 | $41,080 | $0 | $154,470 | $154,470 |
| 2018 | $113,390 | $41,080 | $0 | $154,470 | $154,470 |
| 2017 | $83,210 | $45,300 | $0 | $128,510 | $128,510 |
| 2016 | $75,650 | $45,300 | $0 | $120,950 | $120,950 |
| 2015 | $63,040 | $45,300 | $0 | $108,340 | $108,340 |
| 2014 | $78,800 | $45,300 | $0 | $124,100 | $124,100 |
| 2013 | $78,800 | $45,300 | $0 | $124,100 | $124,100 |
| 2012 | $78,800 | $45,300 | $0 | $0 | $0 |
| 2011 | $72,900 | $45,300 | $0 | $0 | $0 |
| 2010 | $72,900 | $45,300 | $0 | $0 | $0 |
| 2009 | $93,700 | $45,300 | $0 | $0 | $0 |
| 2008 | $93,700 | $45,300 | $0 | $0 | $0 |
| 2007 | $61,000 | $15,700 | $0 | $0 | $0 |
| 2006 | $61,000 | $15,700 | $0 | $0 | $0 |
Deed and Sales History
| 1 | 08/17/2020 | SWD | STATUTORY WARRANTY DEED | LYNCH DEBORAH | SHORT ROCHELLE | | | $232,500.00 | 139720 | 2020-08175 |
| 2 | 04/10/2020 | SWD | STATUTORY WARRANTY DEED | HANSEN LANCE & DAWN | LYNCH DEBORAH | | | $215,000.00 | 138910 | 2020-03078 |
| 3 | 04/26/2018 | SWD | STATUTORY WARRANTY DEED | CLEARMAN DAVID J & ELIZABETH W | HANSEN LANCE & DAWN | | | $155,000.00 | 134561 | 2018-03228 |
| 4 | 06/08/2007 | WARRANTY D | WARRANTY DEED | BOLAND, DENNIS | CLEARMAN, DAVID J & ELIZABETH | | | $139,000.00 | 113023 | 2007-06587 |
| 5 | 10/10/1986 | WARRANTY D | WARRANTY DEED | | | | | $15,000.00 | 0 | 1869-007908 |
Payout Agreement
| No payout information available.. |