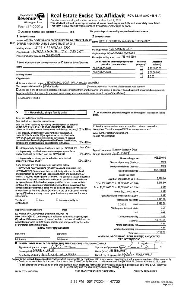
Property
Account |
| Property ID: | 17504 | Abbreviated Legal Description: | KREBS ADDN LOT 6 |
| Parcel Number: | 360728820006 | Agent Code: | |
| Type: | Real | | |
| Tax Area: | 105 - 140-F-4 | Land Use Code | 11 |
| Open Space: | N | DFL | N |
| Historic Property: | N | Remodel Property: | N |
| Multi-Family Redevelopment: | N | | |
| Township: | 7 | Section: | 28 |
| Range: | 36 |
Location |
| Address: | 1300 CRYSTAL CT WA 99362 | Mapsco: | |
| Neighborhood: | G Res | Map ID: | |
| Neighborhood CD: | 614011 |
Owner |
| Name: | PELZ ROSEMARY ALEXANDRA | Owner ID: | 66319 |
| Mailing Address: | 1300 CRYSTAL CT WALLA WALLA, WA 99362 | % Ownership: | 100.0000000000% |
| | | Exemptions: | |
Taxes and Assessment Details
Values
| (+) Improvement Homesite Value: | + | $0 | |
| (+) Improvement Non-Homesite Value: | + | $410,000 | |
| (+) Land Homesite Value: | + | $0 | |
| (+) Land Non-Homesite Value: | + | $120,000 | |
| (+) Curr Use (HS): | + | $0 | $0 |
| (+) Curr Use (NHS): | + | $0 | $0 |
| | | -------------------------- | |
| (=) Market Value: | = | $530,000 | |
| (–) Productivity Loss: | – | $0 | |
| | | -------------------------- | |
| (=) Subtotal: | = | $530,000 | |
| (+) Senior Appraised Value: | + | $0 | |
| (+) Non-Senior Appraised Value: | + | $530,000 | |
| | | -------------------------- | |
| (=) Total Appraised Value: | = | $530,000 | |
| (–) Senior Exemption Loss: | – | $0 | |
| (–) Exemption Loss: | – | $0 | |
| | | -------------------------- | |
| (=) Taxable Value: | = | $530,000 | |
Taxing Jurisdiction
| Owner: | PELZ ROSEMARY ALEXANDRA | | |
| % Ownership: | 100.0000000000% | | |
| Total Value: | $530,000 | | |
| Tax Area: | 105 - 140-F-4 |
| CERFD | CURRENT EXPENSE REFUND 010 | 0.0000000000 | $530,000 | $530,000 | $0.00 | | |
| CURREXP | CURRENT EXPENSE 010 | 1.0175366760 | $530,000 | $530,000 | $539.29 | | |
| HUMNSERV | HUMAN SERVICES 119 | 0.0250000000 | $530,000 | $530,000 | $13.25 | | |
| SLDREL | SOLDIERS RELIEF 121 | 0.0155990005 | $530,000 | $530,000 | $8.27 | | |
| EMERGSER | EMS 147 | 0.3792580840 | $530,000 | $530,000 | $201.01 | | |
| EMSRFD | EMS REFUND 147 | 0.0000000000 | $530,000 | $530,000 | $0.00 | | |
| FD4EXP | FD #4 EXPENSE 686 | 0.8836993059 | $530,000 | $530,000 | $468.36 | | |
| RLBRFD | RURAL LIBRARY REFUND 623 | 0.0000000000 | $530,000 | $530,000 | $0.00 | | |
| RURALLIB | RURAL LIBRARY 623 | 0.3710609029 | $530,000 | $530,000 | $196.66 | | |
| PORTRFD | PORT REFUND 640 | 0.0000000000 | $530,000 | $530,000 | $0.00 | | |
| PORTWWGEN | PORT OF WW 640 | 0.2460186015 | $530,000 | $530,000 | $130.39 | | |
| SD140BOND | SD #140 BOND 764 | 0.8342371393 | $530,000 | $530,000 | $442.15 | | |
| SD140GEN | SD #140 GENERAL 760 | 2.0646500647 | $530,000 | $530,000 | $1,094.26 | | |
| ST2 | STATE SCHOOL PART 2 600 | 0.8131451643 | $530,000 | $530,000 | $430.97 | | |
| STATESCHL | STATE SCHOOL 600 | 1.5158548041 | $530,000 | $530,000 | $803.40 | | |
| STREFUND | STATE REFUND LEVY 603 | 0.0000000000 | $530,000 | $530,000 | $0.00 | | |
| COROAD | COUNTY ROAD 115 | 1.6549953990 | $530,000 | $530,000 | $877.15 | | |
| CRPRD | COUNTY ROAD REFUND 115 | 0.0000000000 | $530,000 | $530,000 | $0.00 | | |
| | Total Tax Rate: | 9.8210551422 | | | | | |
| | | | | Taxes w/Current Exemptions: | $5,205.16 | | |
| | | | | Taxes w/o Exemptions: | $5,205.16 | | |
Improvement / Building
| Improvement #1: | RESIDENTIAL | State Code: | 11 | 2281.0 sqft | Value: | $410,000 |
| Exterior Wall: | SIDING | Heating/Cooling: | WARM & COOLED AIR | | Number of Bathrooms: | 3 | Number of Bedrooms: | 4 | | Plumbing: | 15 | Roof Covering: | COMP SHINGLE |
|
| | Type | Description | Class CD | Sub Class CD | Year Built | Area |
| | MA | Main Area | 4 | 40 | 2001 | 2281.0 |
| | UPFL | Upper Floor (included in main area) | 4 | 40 | 2001 | 846.0 |
| | SI1 | SITE IMPROVEMENT | 4 | 40 | 2001 | 3.0 |
| | RPC | OPEN PORCH W/ROOF , CEILED | 4 | 40 | 2001 | 65.0 |
| | RPC | OPEN PORCH W/ROOF , CEILED | 4 | 40 | 2001 | 160.0 |
| | ATG | Attached Garage | 4 | 40 | 2001 | 456.0 |
Sketch
Property Image
Land
| 1 | RES 1 | Converted: Residential | 0.2911 | 12681.00 | 0.00 | 0.00 | 1.00 | $120,000 | $0 |
Roll Value History
| 2025 | N/A | N/A | N/A | N/A | N/A |
| 2024 | $410,000 | $120,000 | $0 | $530,000 | $530,000 |
| 2023 | $410,000 | $120,000 | $0 | $530,000 | $530,000 |
| 2022 | $410,000 | $85,000 | $0 | $495,000 | $495,000 |
| 2021 | $328,000 | $85,000 | $0 | $413,000 | $413,000 |
| 2020 | $285,220 | $85,000 | $0 | $370,220 | $370,220 |
| 2019 | $285,220 | $85,000 | $0 | $370,220 | $370,220 |
| 2018 | $266,000 | $60,000 | $0 | $326,000 | $326,000 |
| 2017 | $266,000 | $60,000 | $0 | $326,000 | $326,000 |
| 2016 | $241,820 | $60,000 | $0 | $301,820 | $301,820 |
| 2015 | $241,820 | $60,000 | $0 | $301,820 | $301,820 |
| 2014 | $230,300 | $60,000 | $0 | $290,300 | $290,300 |
| 2013 | $230,300 | $60,000 | $0 | $290,300 | $290,300 |
| 2012 | $230,300 | $60,000 | $0 | $0 | $0 |
| 2011 | $230,300 | $60,000 | $0 | $0 | $0 |
| 2010 | $230,300 | $60,000 | $0 | $0 | $0 |
| 2009 | $262,500 | $60,000 | $0 | $0 | $0 |
| 2008 | $262,500 | $60,000 | $0 | $0 | $0 |
| 2007 | $199,800 | $35,000 | $0 | $0 | $0 |
| 2006 | $199,800 | $35,000 | $0 | $0 | $0 |
Deed and Sales History
| 1 | 11/22/2019 | SWD | STATUTORY WARRANTY DEED | ANDERSON TRACEE LYN | PELZ ROSEMARY ALEXANDRA | | | $410,000.00 | 138140 | 2019-09697 |
| 2 | 03/10/2003 | WARRANTY D | WARRANTY DEED | ROTHSTROM, ROBERT E & CASSIE J | SIMON, TRACEE A | | | $260,000.00 | 101549 | 2003-03190 |
| 3 | 12/15/2000 | WARRANTY D | WARRANTY DEED | | | | | $34,000.00 | 96322 | 3060-011865 |
Payout Agreement
| No payout information available.. |