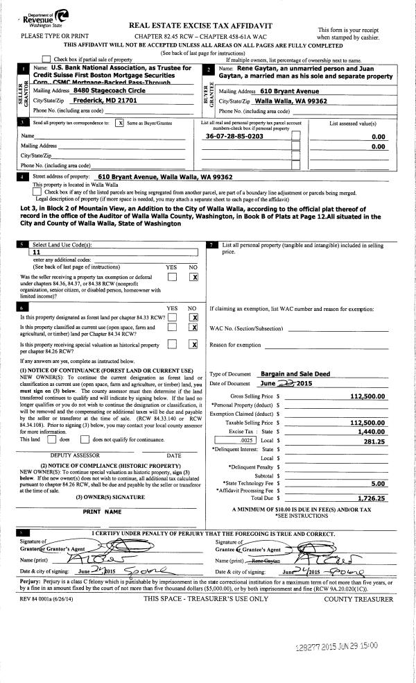
Property
Account |
| Property ID: | 17368 | Abbreviated Legal Description: | WHITMAN P.U.D. PHASE IV LOT 14 BLOCK 1 LESS ELY STRIP PLUS STRIPFROM LOT 15 |
| Parcel Number: | 350736480114 | Agent Code: | |
| Type: | Real | | |
| Tax Area: | 75 - CP 250 | Land Use Code | 11 |
| Open Space: | N | DFL | N |
| Historic Property: | N | Remodel Property: | N |
| Multi-Family Redevelopment: | N | | |
| Township: | | Section: | |
| Range: | |
Location |
| Address: | 734 SE BEDFORD LOOP WA 99324 | Mapsco: | |
| Neighborhood: | G SFR | Map ID: | |
| Neighborhood CD: | 114011 |
Owner |
| Name: | LOPEZ AMBER C | Owner ID: | 56271 |
| Mailing Address: | ARI M LOPEZ MUNOZ 734 SE BEDFORD LOOP COLLEGE PLACE, WA 99324 | % Ownership: | 100.0000000000% |
| | | Exemptions: | |
Taxes and Assessment Details
Values
| (+) Improvement Homesite Value: | + | $0 | |
| (+) Improvement Non-Homesite Value: | + | $333,320 | |
| (+) Land Homesite Value: | + | $0 | |
| (+) Land Non-Homesite Value: | + | $70,000 | |
| (+) Curr Use (HS): | + | $0 | $0 |
| (+) Curr Use (NHS): | + | $0 | $0 |
| | | -------------------------- | |
| (=) Market Value: | = | $403,320 | |
| (–) Productivity Loss: | – | $0 | |
| | | -------------------------- | |
| (=) Subtotal: | = | $403,320 | |
| (+) Senior Appraised Value: | + | $0 | |
| (+) Non-Senior Appraised Value: | + | $403,320 | |
| | | -------------------------- | |
| (=) Total Appraised Value: | = | $403,320 | |
| (–) Senior Exemption Loss: | – | $0 | |
| (–) Exemption Loss: | – | $0 | |
| | | -------------------------- | |
| (=) Taxable Value: | = | $403,320 | |
Taxing Jurisdiction
| Owner: | LOPEZ AMBER C | | |
| % Ownership: | 100.0000000000% | | |
| Total Value: | $403,320 | | |
| Tax Area: | 75 - CP 250 |
| CERFD | CURRENT EXPENSE REFUND 010 | 0.0000000000 | $403,320 | $403,320 | $0.00 | | |
| CURREXP | CURRENT EXPENSE 010 | 1.0175366760 | $403,320 | $403,320 | $410.39 | | |
| HUMNSERV | HUMAN SERVICES 119 | 0.0250000000 | $403,320 | $403,320 | $10.08 | | |
| SLDREL | SOLDIERS RELIEF 121 | 0.0155990005 | $403,320 | $403,320 | $6.29 | | |
| COLLPLBOND | C OF CP BOND 644 | 0.4374241808 | $403,320 | $403,320 | $176.42 | | |
| COLLPLGEN | CITY OF CP 632 | 1.4453819216 | $403,320 | $403,320 | $582.95 | | |
| EMERGSER | EMS 147 | 0.3792580840 | $403,320 | $403,320 | $152.96 | | |
| EMSRFD | EMS REFUND 147 | 0.0000000000 | $403,320 | $403,320 | $0.00 | | |
| RURALLIB | RURAL LIBRARY 623 | 0.3710609029 | $403,320 | $403,320 | $149.66 | | |
| PORTRFD | PORT REFUND 640 | 0.0000000000 | $403,320 | $403,320 | $0.00 | | |
| PORTWWGEN | PORT OF WW 640 | 0.2460186015 | $403,320 | $403,320 | $99.22 | | |
| SD250BOND | SD #250 BOND 773 | 1.4560608159 | $403,320 | $403,320 | $587.26 | | |
| SD250GEN | SD #250 GENERAL 770 | 2.3880724087 | $403,320 | $403,320 | $963.16 | | |
| ST2 | STATE SCHOOL PART 2 600 | 0.8131451643 | $403,320 | $403,320 | $327.96 | | |
| STATESCHL | STATE SCHOOL 600 | 1.5158548041 | $403,320 | $403,320 | $611.37 | | |
| STREFUND | STATE REFUND LEVY 603 | 0.0000000000 | $403,320 | $403,320 | $0.00 | | |
| | Total Tax Rate: | 10.1104125603 | | | | | |
| | | | | Taxes w/Current Exemptions: | $4,077.72 | | |
| | | | | Taxes w/o Exemptions: | $4,077.72 | | |
Improvement / Building
| Improvement #1: | RESIDENTIAL | State Code: | 11 | 1640.0 sqft | Value: | $333,320 |
| Exterior Wall: | HARDBOARD | Heating/Cooling: | WARM & COOLED AIR | | Number of Bathrooms: | 2 | Number of Bedrooms: | 3 | | Plumbing: | 10 | Roof Covering: | COMP SHINGLE |
|
| | Type | Description | Class CD | Sub Class CD | Year Built | Area |
| | MA | Main Area | 1 | 35 | 2013 | 1640.0 |
| | SI1 | SITE IMPROVEMENT | 1 | 35 | 2013 | 2.0 |
| | ATG | Attached Garage | 1 | 35 | 2013 | 483.0 |
| | RPC | OPEN PORCH W/ROOF , CEILED | 1 | 35 | 2013 | 50.0 |
| | RPC | OPEN PORCH W/ROOF , CEILED | 1 | 35 | 2013 | 28.0 |
Sketch
Property Image
Land
| 1 | RES 1 | Converted: Residential | 0.1212 | 5279.00 | 0.00 | 0.00 | 1.00 | $70,000 | $0 |
Roll Value History
| 2025 | N/A | N/A | N/A | N/A | N/A |
| 2024 | $333,320 | $70,000 | $0 | $403,320 | $403,320 |
| 2023 | $333,320 | $70,000 | $0 | $403,320 | $403,320 |
| 2022 | $317,450 | $70,000 | $0 | $387,450 | $387,450 |
| 2021 | $276,040 | $70,000 | $0 | $346,040 | $346,040 |
| 2020 | $206,000 | $70,000 | $0 | $276,000 | $276,000 |
| 2019 | $241,000 | $35,000 | $0 | $276,000 | $276,000 |
| 2018 | $200,830 | $35,000 | $0 | $235,830 | $235,830 |
| 2017 | $174,640 | $35,000 | $0 | $209,640 | $209,640 |
| 2016 | $166,320 | $35,000 | $0 | $201,320 | $201,320 |
| 2015 | $166,320 | $35,000 | $0 | $201,320 | $201,320 |
| 2014 | $184,800 | $35,000 | $0 | $219,800 | $219,800 |
| 2013 | $80,600 | $35,000 | $0 | $115,600 | $115,600 |
| 2012 | $0 | $65,000 | $0 | $0 | $0 |
| 2011 | $0 | $65,000 | $0 | $0 | $0 |
| 2010 | $0 | $65,000 | $0 | $0 | $0 |
| 2009 | $0 | $65,000 | $0 | $0 | $0 |
| 2008 | $0 | $2,300 | $0 | $0 | $0 |
| 2007 | $0 | $2,300 | $0 | $0 | $0 |
| 2006 | $0 | $2,300 | $0 | $0 | $0 |
Deed and Sales History
| 1 | 02/25/2015 | SWD | STATUTORY WARRANTY DEED | RODRIGUEZ BENJAMIN | LOPEZ AMBER C | | | $206,500.00 | 127484 | 2015-01673 |
| 2 | 06/29/2012 | WARRANTY D | WARRANTY DEED | WHITMAN DEVELOPMENT CORP | RODRIGUEZ, BENJAMIN | | | $33,700.00 | 122277 | 2012-05495 |
| 3 | 06/29/2012 | QCD | QUIT CLAIM DEED | RODRIGUEZ, SARITA | RODRIGUEZ, BENJAMIN | | | $0.00 | 122276 | 2012-05494 |
Payout Agreement
| No payout information available.. |