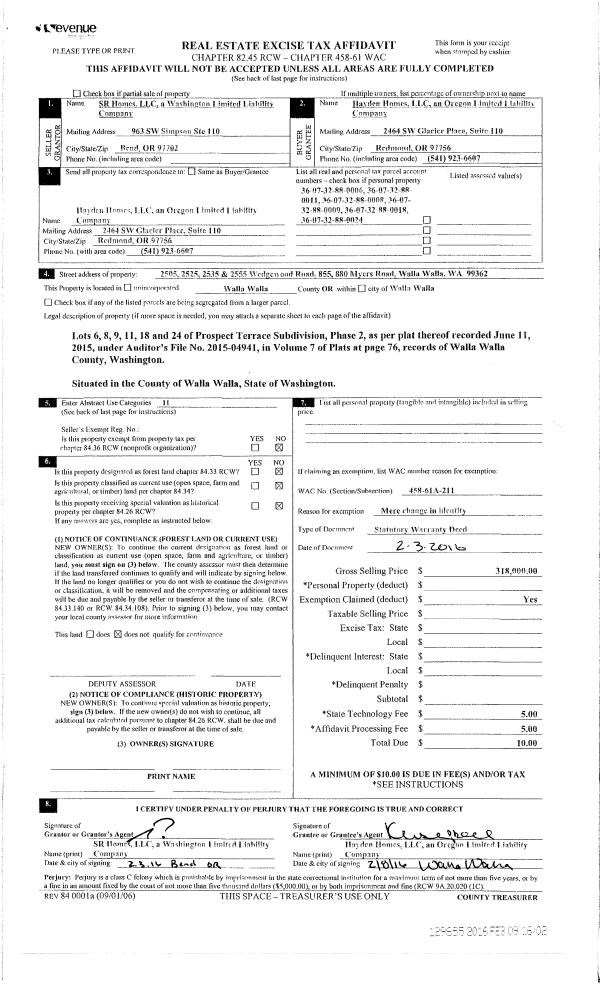
Property
Account |
| Property ID: | 17340 | Abbreviated Legal Description: | 34-8-36 PARCEL #4 |
| Parcel Number: | 360834110004 | Agent Code: | |
| Type: | Real | | |
| Tax Area: | 100 - 140-8 | Land Use Code | 83 |
| Open Space: | Y | DFL | N |
| Historic Property: | N | Remodel Property: | N |
| Multi-Family Redevelopment: | N | | |
| Township: | 8 | Section: | 34 |
| Range: | 36 |
Location |
| Address: | 4806 VALLEY GROVE RD WA 99362 | Mapsco: | |
| Neighborhood: | 0 Farm | Map ID: | |
| Neighborhood CD: | 3230 |
Owner |
| Name: | YOUNG STEPHEN C | Owner ID: | 60644 |
| Mailing Address: | 4806 VALLEY GROVE RD WALLA WALLA, WA 99362 | % Ownership: | 100.0000000000% |
| | | Exemptions: | |
Taxes and Assessment Details
Values
| (+) Improvement Homesite Value: | + | $0 | |
| (+) Improvement Non-Homesite Value: | + | $138,900 | |
| (+) Land Homesite Value: | + | $150,000 | |
| (+) Land Non-Homesite Value: | + | $0 | |
| (+) Curr Use (HS): | + | $0 | $0 |
| (+) Curr Use (NHS): | + | $45,000 | $6,340 |
| | | -------------------------- | |
| (=) Market Value: | = | $333,900 | |
| (–) Productivity Loss: | – | $38,660 | |
| | | -------------------------- | |
| (=) Subtotal: | = | $295,240 | |
| (+) Senior Appraised Value: | + | $0 | |
| (+) Non-Senior Appraised Value: | + | $295,240 | |
| | | -------------------------- | |
| (=) Total Appraised Value: | = | $295,240 | |
| (–) Senior Exemption Loss: | – | $0 | |
| (–) Exemption Loss: | – | $0 | |
| | | -------------------------- | |
| (=) Taxable Value: | = | $295,240 | |
Taxing Jurisdiction
| Owner: | YOUNG STEPHEN C | | |
| % Ownership: | 100.0000000000% | | |
| Total Value: | $333,900 | | |
| Tax Area: | 100 - 140-8 |
| CERFD | CURRENT EXPENSE REFUND 010 | 0.0000000000 | $295,240 | $295,240 | $0.00 | | |
| CURREXP | CURRENT EXPENSE 010 | 1.0175366760 | $295,240 | $295,240 | $300.42 | | |
| HUMNSERV | HUMAN SERVICES 119 | 0.0250000000 | $295,240 | $295,240 | $7.38 | | |
| SLDREL | SOLDIERS RELIEF 121 | 0.0155990005 | $295,240 | $295,240 | $4.61 | | |
| EMERGSER | EMS 147 | 0.3792580840 | $295,240 | $295,240 | $111.97 | | |
| EMSRFD | EMS REFUND 147 | 0.0000000000 | $295,240 | $295,240 | $0.00 | | |
| FD8EXP | FD #8 EXPENSE 697 | 0.6647992540 | $295,240 | $295,240 | $196.28 | | |
| RLBRFD | RURAL LIBRARY REFUND 623 | 0.0000000000 | $295,240 | $295,240 | $0.00 | | |
| RURALLIB | RURAL LIBRARY 623 | 0.3710609029 | $295,240 | $295,240 | $109.55 | | |
| PORTRFD | PORT REFUND 640 | 0.0000000000 | $295,240 | $295,240 | $0.00 | | |
| PORTWWGEN | PORT OF WW 640 | 0.2460186015 | $295,240 | $295,240 | $72.63 | | |
| SD140BOND | SD #140 BOND 764 | 0.8342371393 | $295,240 | $295,240 | $246.30 | | |
| SD140GEN | SD #140 GENERAL 760 | 2.0646500647 | $295,240 | $295,240 | $609.57 | | |
| ST2 | STATE SCHOOL PART 2 600 | 0.8131451643 | $295,240 | $295,240 | $240.07 | | |
| STATESCHL | STATE SCHOOL 600 | 1.5158548041 | $295,240 | $295,240 | $447.54 | | |
| STREFUND | STATE REFUND LEVY 603 | 0.0000000000 | $295,240 | $295,240 | $0.00 | | |
| COROAD | COUNTY ROAD 115 | 1.6549953990 | $295,240 | $295,240 | $488.62 | | |
| CRPRD | COUNTY ROAD REFUND 115 | 0.0000000000 | $295,240 | $295,240 | $0.00 | | |
| | Total Tax Rate: | 9.6021550903 | | | | | |
| | | | | Taxes w/Current Exemptions: | $2,834.94 | | |
| | | | | Taxes w/o Exemptions: | $2,834.94 | | |
Improvement / Building
| Improvement #1: | RESIDENTIAL | State Code: | 83 | 2024.0 sqft | Value: | $138,900 |
| Exterior Wall: | SIDING | Heating/Cooling: | HEAT PUMP | | Number of Bathrooms: | 1 | Number of Bedrooms: | 4 | | Plumbing: | 5 | Roof Covering: | COMP SHINGLE |
|
| | Type | Description | Class CD | Sub Class CD | Year Built | Area |
| | MA | Main Area | 4 | 30 | 1911 | 2024.0 |
| | LNTD | LEAN TO DIRT FLOOR | 1 | 10 | 1940 | 920.0 |
| | SI1 | SITE IMPROVEMENT | 4 | 30 | 1911 | 1.0 |
| | BASE | BASEMENT | 4 | 30 | 1911 | 168.0 |
| | S1F | Single One Story Fireplace | 4 | 30 | 1911 | 1.0 |
| | RPS | PORCH W/STEPS,ROOF | 4 | 30 | 1911 | 296.0 |
| | UTIL-STOR | UTILITY STORAGE | 1 | 20 | 1940 | 360.0 |
| | BARN | BARN-AVE | 1 | 20 | 1940 | 2300.0 |
| | BNV | BUILDING NO VALUE | 1 | 10 | 1911 | 3.0 |
| | UPFL | Upper Floor (included in main area) | 4 | 30 | 1911 | 574.0 |
Sketch
Property Image
Land
| 1 | HS-150,000 | Homesite 150,000 | 1.0000 | 0.00 | 0.00 | 0.00 | 1.00 | $150,000 | $0 |
| 2 | 70-4000 | Class 4 65 BU | 9.0000 | 0.00 | 0.00 | 0.00 | 1.00 | $45,000 | $6,340 |
Roll Value History
| 2025 | N/A | N/A | N/A | N/A | N/A |
| 2024 | $138,900 | $195,000 | $6,100 | $295,000 | $295,000 |
| 2023 | $138,900 | $195,000 | $6,340 | $295,240 | $295,240 |
| 2022 | $138,900 | $195,000 | $6,050 | $294,950 | $294,950 |
| 2021 | $83,400 | $111,000 | $6,050 | $164,450 | $164,450 |
| 2020 | $83,400 | $111,000 | $6,220 | $164,620 | $164,620 |
| 2019 | $83,400 | $111,000 | $6,370 | $164,770 | $164,770 |
| 2018 | $83,400 | $111,000 | $6,570 | $164,970 | $164,970 |
| 2017 | $83,400 | $111,000 | $6,670 | $165,070 | $165,070 |
| 2016 | $83,400 | $111,000 | $6,700 | $165,100 | $165,100 |
| 2015 | $83,400 | $111,000 | $6,010 | $164,410 | $164,410 |
| 2014 | $83,400 | $111,000 | $6,010 | $164,410 | $164,410 |
| 2013 | $83,400 | $111,000 | $4,897 | $163,300 | $163,300 |
| 2012 | $83,300 | $78,800 | $0 | $0 | $0 |
| 2011 | $83,900 | $78,900 | $0 | $0 | $0 |
| 2010 | $86,400 | $78,600 | $0 | $0 | $0 |
| 2009 | $91,000 | $78,700 | $0 | $0 | $0 |
| 2008 | $91,000 | $78,200 | $0 | $0 | $0 |
| 2007 | $65,800 | $39,900 | $0 | $0 | $0 |
| 2006 | $65,800 | $39,900 | $0 | $0 | $0 |
Deed and Sales History
| 1 | 04/04/2017 | DPR | DEED OF PERSONAL REPRESENTATIVE | YOUNG LAWRENCE C | YOUNG STEPHEN C | | | -$165,100.00 | 132155 | 2017-02543 |
| 2 | 11/05/1979 | WARRANTY D | WARRANTY DEED | | | | | $50,000.00 | 0 | 1198-001320 |
Payout Agreement
| No payout information available.. |