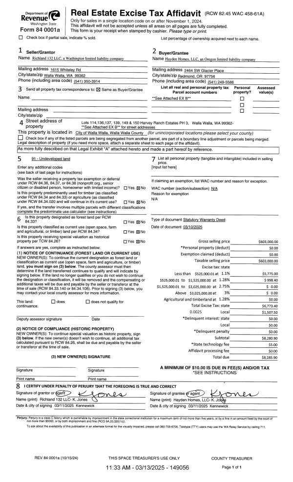
Property
Account |
| Property ID: | 17326 | Abbreviated Legal Description: | 18-8-36 TAX 1; S1/2SE1/4SE1/4 |
| Parcel Number: | 360818430001 | Agent Code: | |
| Type: | Real | | |
| Tax Area: | 123 - 140-7 | Land Use Code | 83 |
| Open Space: | Y | DFL | N |
| Historic Property: | N | Remodel Property: | N |
| Multi-Family Redevelopment: | N | | |
| Township: | 8 | Section: | 18 |
| Range: | 36 |
Location |
| Address: | 651 SPRING VALLEY RD WA 99362 | Mapsco: | |
| Neighborhood: | 0 Farm | Map ID: | |
| Neighborhood CD: | 3230 |
Owner |
| Name: | SMALL SUSAN JOY BROWN & | Owner ID: | 69122 |
| Mailing Address: | SHARON LOUISE BROWN HUDSON 290 BALDWIN RD WALLA WALLA, WA 99362 | % Ownership: | 100.0000000000% |
| | | Exemptions: | |
Taxes and Assessment Details
Values
| (+) Improvement Homesite Value: | + | $0 | |
| (+) Improvement Non-Homesite Value: | + | $129,030 | |
| (+) Land Homesite Value: | + | $0 | |
| (+) Land Non-Homesite Value: | + | $0 | |
| (+) Curr Use (HS): | + | $90,000 | $370 |
| (+) Curr Use (NHS): | + | $34,640 | $12,600 |
| | | -------------------------- | |
| (=) Market Value: | = | $253,670 | |
| (–) Productivity Loss: | – | $111,670 | |
| | | -------------------------- | |
| (=) Subtotal: | = | $142,000 | |
| (+) Senior Appraised Value: | + | $0 | |
| (+) Non-Senior Appraised Value: | + | $142,000 | |
| | | -------------------------- | |
| (=) Total Appraised Value: | = | $142,000 | |
| (–) Senior Exemption Loss: | – | $0 | |
| (–) Exemption Loss: | – | $0 | |
| | | -------------------------- | |
| (=) Taxable Value: | = | $142,000 | |
Taxing Jurisdiction
| Owner: | SMALL SUSAN JOY BROWN & | | |
| % Ownership: | 100.0000000000% | | |
| Total Value: | $253,670 | | |
| Tax Area: | 123 - 140-7 |
| CERFD | CURRENT EXPENSE REFUND 010 | 0.0000000000 | $142,000 | $142,000 | $0.00 | | |
| CURREXP | CURRENT EXPENSE 010 | 1.0175366760 | $142,000 | $142,000 | $144.49 | | |
| HUMNSERV | HUMAN SERVICES 119 | 0.0250000000 | $142,000 | $142,000 | $3.55 | | |
| SLDREL | SOLDIERS RELIEF 121 | 0.0155990005 | $142,000 | $142,000 | $2.22 | | |
| EMERGSER | EMS 147 | 0.3792580840 | $142,000 | $142,000 | $53.85 | | |
| EMSRFD | EMS REFUND 147 | 0.0000000000 | $142,000 | $142,000 | $0.00 | | |
| FD7EXP | FD #7 EXPENSE 695 | 0.6678024226 | $142,000 | $142,000 | $94.83 | | |
| RLBRFD | RURAL LIBRARY REFUND 623 | 0.0000000000 | $142,000 | $142,000 | $0.00 | | |
| RURALLIB | RURAL LIBRARY 623 | 0.3710609029 | $142,000 | $142,000 | $52.69 | | |
| PORTRFD | PORT REFUND 640 | 0.0000000000 | $142,000 | $142,000 | $0.00 | | |
| PORTWWGEN | PORT OF WW 640 | 0.2460186015 | $142,000 | $142,000 | $34.93 | | |
| SD140BOND | SD #140 BOND 764 | 0.8342371393 | $142,000 | $142,000 | $118.46 | | |
| SD140GEN | SD #140 GENERAL 760 | 2.0646500647 | $142,000 | $142,000 | $293.18 | | |
| ST2 | STATE SCHOOL PART 2 600 | 0.8131451643 | $142,000 | $142,000 | $115.47 | | |
| STATESCHL | STATE SCHOOL 600 | 1.5158548041 | $142,000 | $142,000 | $215.25 | | |
| STREFUND | STATE REFUND LEVY 603 | 0.0000000000 | $142,000 | $142,000 | $0.00 | | |
| COROAD | COUNTY ROAD 115 | 1.6549953990 | $142,000 | $142,000 | $235.01 | | |
| CRPRD | COUNTY ROAD REFUND 115 | 0.0000000000 | $142,000 | $142,000 | $0.00 | | |
| | Total Tax Rate: | 9.6051582589 | | | | | |
| | | | | Taxes w/Current Exemptions: | $1,363.93 | | |
| | | | | Taxes w/o Exemptions: | $1,363.93 | | |
Improvement / Building
| Improvement #1: | RESIDENTIAL | State Code: | 83 | 1534.0 sqft | Value: | $129,030 |
| Exterior Wall: | VINYL | Heating/Cooling: | WARM & COOLED AIR | | Number of Bathrooms: | 1 | Number of Bedrooms: | 1 | | Plumbing: | 6 | Roof Covering: | COMP SHINGLE |
|
| | Type | Description | Class CD | Sub Class CD | Year Built | Area |
| | MA | Main Area | 1 | 20 | 1900 | 1534.0 |
| | CPC | COVERED CARPORT/PATIO | 1 | 20 | 1900 | 185.0 |
| | SI1 | SITE IMPROVEMENT | 1 | 20 | 1900 | 1.0 |
| | BASE | BASEMENT | 1 | 20 | 1900 | 960.0 |
| | S1F | Single One Story Fireplace | 1 | 20 | 1900 | 1.0 |
| | DTG | Detached Garage | 1 | 20 | 1900 | 480.0 |
| | UTIL-STOR | UTILITY STORAGE | 1 | 10 | 1940 | 168.0 |
| | UTIL-STOR | UTILITY STORAGE | 1 | 10 | 1940 | 392.0 |
| | BARN | BARN-AVE | 1 | 10 | 1940 | 864.0 |
| | UTIL-STOR | UTILITY STORAGE | 1 | 10 | 1940 | 3136.0 |
| | BARN | BARN-AVE | 1 | 10 | 1940 | 1792.0 |
Sketch
Property Image
Land
| 1 | 90,000-HS2 | Homesite Use Value | 1.0000 | 0.00 | 0.00 | 0.00 | 1.00 | $90,000 | $370 |
| 2 | WASTE | Waste | 5.0000 | 0.00 | 0.00 | 0.00 | 1.00 | $0 | $0 |
| 3 | 65-C1 | Class 1 65 BU | 20.7300 | 0.00 | 0.00 | 0.00 | 1.00 | $34,640 | $12,600 |
Roll Value History
| 2025 | N/A | N/A | N/A | N/A | N/A |
| 2024 | $129,030 | $125,490 | $12,580 | $141,610 | $141,610 |
| 2023 | $129,030 | $124,640 | $12,970 | $142,000 | $142,000 |
| 2022 | $129,030 | $121,860 | $12,460 | $141,490 | $141,490 |
| 2021 | $89,200 | $59,170 | $12,410 | $101,610 | $101,610 |
| 2020 | $89,200 | $57,160 | $12,760 | $101,960 | $101,960 |
| 2019 | $89,200 | $56,020 | $13,090 | $102,290 | $102,290 |
| 2018 | $89,200 | $55,890 | $14,820 | $104,020 | $104,020 |
| 2017 | $89,200 | $54,790 | $15,030 | $104,230 | $104,230 |
| 2016 | $89,200 | $54,790 | $15,070 | $104,270 | $104,270 |
| 2015 | $89,200 | $54,590 | $13,370 | $102,570 | $102,570 |
| 2014 | $89,200 | $54,590 | $13,590 | $102,790 | $102,790 |
| 2013 | $89,200 | $53,200 | $11,100 | $100,300 | $100,300 |
| 2012 | $89,100 | $7,900 | $0 | $0 | $0 |
| 2011 | $88,600 | $8,600 | $0 | $0 | $0 |
| 2010 | $88,600 | $8,000 | $0 | $0 | $0 |
| 2009 | $92,300 | $8,100 | $0 | $0 | $0 |
| 2008 | $92,300 | $7,100 | $0 | $0 | $0 |
| 2007 | $58,900 | $37,100 | $0 | $0 | $0 |
| 2006 | $58,900 | $37,100 | $0 | $0 | $0 |
Deed and Sales History
| 1 | 01/24/2024 | BARGAIN & | BARGAIN & SALE DEED | SMALL SUSAN JOY BROWN & | SMALL SUSAN JOY BROWN & | | | | 147057 | 2024-00400 |
| 2 | 03/18/2021 | SWP | Special Warranty Deed | BROWN DONNA B | SMALL SUSAN JOY BROWN & | | 15 PARCELS | $0.00 | 141197 | 2021-03519 |
| 3 | 11/16/2010 | WARRANTY D | WARRANTY DEED | BROWN, RODNEY L ESTATE OF | BROWN DONNA B | | | | 119339 | 2010-09352 |
| 4 | 09/02/1980 | WARRANTY D | WARRANTY DEED | | | | | $0.00 | 0 | 1248-006933 |
Payout Agreement
| No payout information available.. |