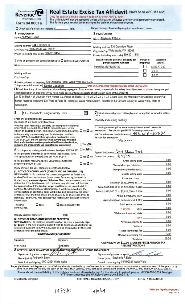
Property
Account |
| Property ID: | 17271 | Abbreviated Legal Description: | LANGFORDS LOT 13 BLK 32 |
| Parcel Number: | 360719593213 | Agent Code: | |
| Type: | Real | | |
| Tax Area: | 1 - OL-140-F | Land Use Code | 11 |
| Open Space: | N | DFL | N |
| Historic Property: | N | Remodel Property: | N |
| Multi-Family Redevelopment: | N | | |
| Township: | 7 | Section: | 19 |
| Range: | 36 |
Location |
| Address: | 520 N 6TH AVE WA 99362 | Mapsco: | |
| Neighborhood: | F SFR | Map ID: | |
| Neighborhood CD: | 512011 |
Owner |
| Name: | SYKES LINDY | Owner ID: | 67896 |
| Mailing Address: | 520 N 6TH AVE WALLA WALLA, WA 99362 | % Ownership: | 100.0000000000% |
| | | Exemptions: | |
Taxes and Assessment Details
Values
| (+) Improvement Homesite Value: | + | $0 | |
| (+) Improvement Non-Homesite Value: | + | $164,560 | |
| (+) Land Homesite Value: | + | $0 | |
| (+) Land Non-Homesite Value: | + | $33,810 | |
| (+) Curr Use (HS): | + | $0 | $0 |
| (+) Curr Use (NHS): | + | $0 | $0 |
| | | -------------------------- | |
| (=) Market Value: | = | $198,370 | |
| (–) Productivity Loss: | – | $0 | |
| | | -------------------------- | |
| (=) Subtotal: | = | $198,370 | |
| (+) Senior Appraised Value: | + | $0 | |
| (+) Non-Senior Appraised Value: | + | $198,370 | |
| | | -------------------------- | |
| (=) Total Appraised Value: | = | $198,370 | |
| (–) Senior Exemption Loss: | – | $0 | |
| (–) Exemption Loss: | – | $0 | |
| | | -------------------------- | |
| (=) Taxable Value: | = | $198,370 | |
Taxing Jurisdiction
| Owner: | SYKES LINDY | | |
| % Ownership: | 100.0000000000% | | |
| Total Value: | $198,370 | | |
| Tax Area: | 1 - OL-140-F |
| CERFD | CURRENT EXPENSE REFUND 010 | 0.0000000000 | $198,370 | $198,370 | $0.00 | | |
| CURREXP | CURRENT EXPENSE 010 | 1.0175366760 | $198,370 | $198,370 | $201.85 | | |
| HUMNSERV | HUMAN SERVICES 119 | 0.0250000000 | $198,370 | $198,370 | $4.96 | | |
| SLDREL | SOLDIERS RELIEF 121 | 0.0155990005 | $198,370 | $198,370 | $3.09 | | |
| EMERGSER | EMS 147 | 0.3792580840 | $198,370 | $198,370 | $75.23 | | |
| EMSRFD | EMS REFUND 147 | 0.0000000000 | $198,370 | $198,370 | $0.00 | | |
| PORTRFD | PORT REFUND 640 | 0.0000000000 | $198,370 | $198,370 | $0.00 | | |
| PORTWWGEN | PORT OF WW 640 | 0.2460186015 | $198,370 | $198,370 | $48.80 | | |
| SD140BOND | SD #140 BOND 764 | 0.8342371393 | $198,370 | $198,370 | $165.49 | | |
| SD140GEN | SD #140 GENERAL 760 | 2.0646500647 | $198,370 | $198,370 | $409.56 | | |
| ST2 | STATE SCHOOL PART 2 600 | 0.8131451643 | $198,370 | $198,370 | $161.30 | | |
| STATESCHL | STATE SCHOOL 600 | 1.5158548041 | $198,370 | $198,370 | $300.70 | | |
| STREFUND | STATE REFUND LEVY 603 | 0.0000000000 | $198,370 | $198,370 | $0.00 | | |
| CWWBOND | C OF WW BOND 643 | 0.2760494372 | $198,370 | $198,370 | $54.76 | | |
| CWWGEN | CITY OF WW 631 | 1.6100204973 | $198,370 | $198,370 | $319.38 | | |
| CWWRFD | CITY OF WALLA WALLA REFUND 631 | 0.0000000000 | $198,370 | $198,370 | $0.00 | | |
| | Total Tax Rate: | 8.7973694689 | | | | | |
| | | | | Taxes w/Current Exemptions: | $1,745.12 | | |
| | | | | Taxes w/o Exemptions: | $1,745.12 | | |
Improvement / Building
| Improvement #1: | RESIDENTIAL | State Code: | 11 | 816.0 sqft | Value: | $164,560 |
| Exterior Wall: | METAL/STEEL | Heating/Cooling: | HEAT PUMP | | Number of Bathrooms: | 1 | Number of Bedrooms: | 2 | | Plumbing: | 6 | Roof Covering: | COMP SHINGLE |
|
| | Type | Description | Class CD | Sub Class CD | Year Built | Area |
| | MA | Main Area | 1 | 20 | 1928 | 816.0 |
| | SI1 | SITE IMPROVEMENT | 1 | 20 | 1928 | 1.0 |
| | DTG | Detached Garage | 1 | 20 | 1928 | 364.0 |
| | RPO | OPEN PORCH W/ROOF | 1 | 20 | 1928 | 35.0 |
Sketch
Property Image
Land
| 1 | RES 1 | Converted: Residential | 0.1478 | 6440.00 | 0.00 | 0.00 | 1.00 | $33,810 | $0 |
Roll Value History
| 2025 | N/A | N/A | N/A | N/A | N/A |
| 2024 | $144,850 | $57,960 | $0 | $202,810 | $202,810 |
| 2023 | $164,560 | $33,810 | $0 | $198,370 | $198,370 |
| 2022 | $164,560 | $33,810 | $0 | $198,370 | $198,370 |
| 2021 | $131,650 | $33,810 | $0 | $165,460 | $165,460 |
| 2020 | $69,290 | $33,810 | $0 | $103,100 | $103,100 |
| 2019 | $69,290 | $33,810 | $0 | $103,100 | $103,100 |
| 2018 | $65,990 | $33,810 | $0 | $99,800 | $99,800 |
| 2017 | $73,720 | $19,300 | $0 | $93,020 | $93,020 |
| 2016 | $70,210 | $19,300 | $0 | $89,510 | $89,510 |
| 2015 | $70,210 | $19,300 | $0 | $89,510 | $89,510 |
| 2014 | $73,900 | $19,300 | $0 | $93,200 | $93,200 |
| 2013 | $73,900 | $19,300 | $0 | $93,200 | $93,200 |
| 2012 | $73,900 | $19,300 | $0 | $0 | $0 |
| 2011 | $73,900 | $19,300 | $0 | $0 | $0 |
| 2010 | $73,900 | $19,300 | $0 | $0 | $0 |
| 2009 | $84,200 | $19,300 | $0 | $0 | $0 |
| 2008 | $36,300 | $11,300 | $0 | $0 | $0 |
| 2007 | $36,300 | $11,300 | $0 | $0 | $0 |
| 2006 | $36,300 | $11,300 | $0 | $0 | $0 |
Deed and Sales History
| 1 | 08/12/2024 | SWD | STATUTORY WARRANTY DEED | SYKES LINDY | PETEREIT DEREK | | | $265,000.00 | 148014 | 2024-04429 |
| 2 | 09/04/2020 | SWD | STATUTORY WARRANTY DEED | MORALES FAUSTINO | SYKES LINDY | | | $175,000.00 | 139848 | 2020-08981 |
| 3 | 04/25/2007 | WARRANTY D | WARRANTY DEED | RESER, YANCEY & LAVONNE L | MORALES, FAUSTINO | | | $110,000.00 | 112685 | 2007-04578 |
| 4 | 02/10/1977 | WARRANTY D | WARRANTY DEED | | | | | $12,500.00 | 0 | 5405-61956 |
Payout Agreement
| No payout information available.. |