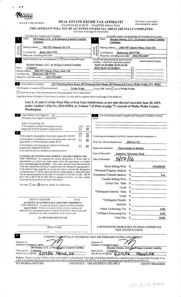
Property
Account |
| Property ID: | 17249 | Abbreviated Legal Description: | DIXIE LOTS 11 AND 12 BLK 33 |
| Parcel Number: | 370826513311 | Agent Code: | |
| Type: | Real | | |
| Tax Area: | 310 - 101-8 | Land Use Code | 11 |
| Open Space: | N | DFL | N |
| Historic Property: | N | Remodel Property: | N |
| Multi-Family Redevelopment: | N | | |
| Township: | 8 | Section: | 26 |
| Range: | 37 |
Location |
| Address: | 187 SECOND ST WA 99329 | Mapsco: | |
| Neighborhood: | Cycle 4 Dixie (SF) | Map ID: | |
| Neighborhood CD: | 413511 |
Owner |
| Name: | DAVIN NORA IRENE | Owner ID: | 69563 |
| Mailing Address: | 1703 CENTER ST WALLA WALLA, WA 99362 | % Ownership: | 100.0000000000% |
| | | Exemptions: | |
Taxes and Assessment Details
Values
| (+) Improvement Homesite Value: | + | $0 | |
| (+) Improvement Non-Homesite Value: | + | $23,110 | |
| (+) Land Homesite Value: | + | $0 | |
| (+) Land Non-Homesite Value: | + | $30,000 | |
| (+) Curr Use (HS): | + | $0 | $0 |
| (+) Curr Use (NHS): | + | $0 | $0 |
| | | -------------------------- | |
| (=) Market Value: | = | $53,110 | |
| (–) Productivity Loss: | – | $0 | |
| | | -------------------------- | |
| (=) Subtotal: | = | $53,110 | |
| (+) Senior Appraised Value: | + | $0 | |
| (+) Non-Senior Appraised Value: | + | $53,110 | |
| | | -------------------------- | |
| (=) Total Appraised Value: | = | $53,110 | |
| (–) Senior Exemption Loss: | – | $0 | |
| (–) Exemption Loss: | – | $0 | |
| | | -------------------------- | |
| (=) Taxable Value: | = | $53,110 | |
Taxing Jurisdiction
| Owner: | DAVIN NORA IRENE | | |
| % Ownership: | 100.0000000000% | | |
| Total Value: | $53,110 | | |
| Tax Area: | 310 - 101-8 |
| CERFD | CURRENT EXPENSE REFUND 010 | 0.0000000000 | $53,110 | $53,110 | $0.00 | | |
| CURREXP | CURRENT EXPENSE 010 | 1.0175366760 | $53,110 | $53,110 | $54.04 | | |
| HUMNSERV | HUMAN SERVICES 119 | 0.0250000000 | $53,110 | $53,110 | $1.33 | | |
| SLDREL | SOLDIERS RELIEF 121 | 0.0155990005 | $53,110 | $53,110 | $0.83 | | |
| EMERGSER | EMS 147 | 0.3792580840 | $53,110 | $53,110 | $20.14 | | |
| EMSRFD | EMS REFUND 147 | 0.0000000000 | $53,110 | $53,110 | $0.00 | | |
| FD8EXP | FD #8 EXPENSE 697 | 0.6647992540 | $53,110 | $53,110 | $35.31 | | |
| RLBRFD | RURAL LIBRARY REFUND 623 | 0.0000000000 | $53,110 | $53,110 | $0.00 | | |
| RURALLIB | RURAL LIBRARY 623 | 0.3710609029 | $53,110 | $53,110 | $19.71 | | |
| PORTRFD | PORT REFUND 640 | 0.0000000000 | $53,110 | $53,110 | $0.00 | | |
| PORTWWGEN | PORT OF WW 640 | 0.2460186015 | $53,110 | $53,110 | $13.07 | | |
| SD101CAP | SD #101 CAP 752 | 0.5894423472 | $53,110 | $53,110 | $31.31 | | |
| SD101GEN | SD #101 GENERAL 750 | 0.7455117868 | $53,110 | $53,110 | $39.59 | | |
| ST2 | STATE SCHOOL PART 2 600 | 0.8131451643 | $53,110 | $53,110 | $43.19 | | |
| STATESCHL | STATE SCHOOL 600 | 1.5158548041 | $53,110 | $53,110 | $80.51 | | |
| STREFUND | STATE REFUND LEVY 603 | 0.0000000000 | $53,110 | $53,110 | $0.00 | | |
| COROAD | COUNTY ROAD 115 | 1.6549953990 | $53,110 | $53,110 | $87.90 | | |
| CRPRD | COUNTY ROAD REFUND 115 | 0.0000000000 | $53,110 | $53,110 | $0.00 | | |
| | Total Tax Rate: | 8.0382220203 | | | | | |
| | | | | Taxes w/Current Exemptions: | $426.93 | | |
| | | | | Taxes w/o Exemptions: | $426.93 | | |
Improvement / Building
| Improvement #1: | RESIDENTIAL | State Code: | 11 | 618.0 sqft | Value: | $23,110 |
| Exterior Wall: | SIDING | Foundation: | POST & PIER | | Heating/Cooling: | STOVE-NO HEAT | Number of Bathrooms: | 1 | | Number of Bedrooms: | 2 | Plumbing: | 6 | | Roof Covering: | COMP ROLL |   |   |
|
| | Type | Description | Class CD | Sub Class CD | Year Built | Area |
| | MA | Main Area | 1 | 20 | 1913 | 618.0 |
| | SI1 | SITE IMPROVEMENT | 1 | 20 | 1913 | 1.0 |
Sketch
Property Image
Land
| 1 | RES 1 | Converted: Residential | 0.2296 | 10000.00 | 0.00 | 0.00 | 1.00 | $30,000 | $0 |
Roll Value History
| 2025 | N/A | N/A | N/A | N/A | N/A |
| 2024 | $23,110 | $30,000 | $0 | $53,110 | $53,110 |
| 2023 | $23,110 | $30,000 | $0 | $53,110 | $53,110 |
| 2022 | $22,240 | $25,000 | $0 | $47,240 | $47,240 |
| 2021 | $11,120 | $25,000 | $0 | $36,120 | $36,120 |
| 2020 | $7,940 | $25,000 | $0 | $32,940 | $32,940 |
| 2019 | $7,940 | $25,000 | $0 | $32,940 | $32,940 |
| 2018 | $7,940 | $25,000 | $0 | $32,940 | $32,940 |
| 2017 | $7,940 | $25,000 | $0 | $32,940 | $32,940 |
| 2016 | $9,800 | $25,000 | $0 | $34,800 | $34,800 |
| 2015 | $9,800 | $25,000 | $0 | $34,800 | $34,800 |
| 2014 | $9,800 | $25,000 | $0 | $34,800 | $34,800 |
| 2013 | $9,800 | $25,000 | $0 | $34,800 | $34,800 |
| 2012 | $9,800 | $25,000 | $0 | $0 | $0 |
| 2011 | $6,500 | $25,000 | $0 | $0 | $0 |
| 2010 | $6,500 | $25,000 | $0 | $0 | $0 |
| 2009 | $18,000 | $13,500 | $0 | $0 | $0 |
| 2008 | $10,700 | $13,500 | $0 | $0 | $0 |
| 2007 | $10,700 | $13,500 | $0 | $0 | $0 |
| 2006 | $10,700 | $13,500 | $0 | $0 | $0 |
Deed and Sales History
| 1 | 03/08/2023 | TODD | TRANSFER ON DEATH DEED | DAVIN NORA IRENE | DAVIN NORA IRENE | | | | 145484 | 2023-01192 |
| 2 | 06/08/2021 | TODD | TRANSFER ON DEATH DEED | DAVIS CORA MAY | DAVIN NORA IRENE | | | | 0 | 2021-06971 |
| 3 | 05/30/2017 | TODD | TRANSFER ON DEATH DEED | DAVIS TERRY L | DAVIS CORA MAY | | | $0.00 | 132489 | 2017-04125 |
| 4 | 12/05/2016 | DEED DEATH | DEED DEATH | DAVIS TERRY L | DAVIS CORA MAY | | | | 0 | 2016-09914 |
| 5 | 06/17/1970 | WARRANTY D | WARRANTY DEED | | | | | $1,166.00 | 0 | 3360-508451 |
Payout Agreement
| No payout information available.. |