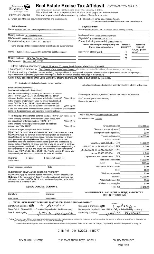
Property
Account |
| Property ID: | 17008 | Abbreviated Legal Description: | REEVES SUB OF BLA ORCH TRACT A LOT 3 BLK 21 LESS S 98' |
| Parcel Number: | 350726552113 | Agent Code: | |
| Type: | Real | | |
| Tax Area: | 311 - 250-4 | Land Use Code | 13 |
| Open Space: | N | DFL | N |
| Historic Property: | N | Remodel Property: | N |
| Multi-Family Redevelopment: | N | | |
| Township: | 7 | Section: | 26 |
| Range: | 35 |
Location |
| Address: | 583 NW EVANS AVE WA 99362 | Mapsco: | |
| Neighborhood: | COLLEGE PLACE | Map ID: | |
| Neighborhood CD: | 3130 |
Owner |
| Name: | HERNANDEZ SALVADOR | Owner ID: | 49055 |
| Mailing Address: | 1541 SE FREEDOM PL COLLEGE PLACE, WA 99324 | % Ownership: | 100.0000000000% |
| | | Exemptions: | |
Taxes and Assessment Details
Values
| (+) Improvement Homesite Value: | + | $0 | |
| (+) Improvement Non-Homesite Value: | + | $101,300 | |
| (+) Land Homesite Value: | + | $0 | |
| (+) Land Non-Homesite Value: | + | $32,700 | |
| (+) Curr Use (HS): | + | $0 | $0 |
| (+) Curr Use (NHS): | + | $0 | $0 |
| | | -------------------------- | |
| (=) Market Value: | = | $134,000 | |
| (–) Productivity Loss: | – | $0 | |
| | | -------------------------- | |
| (=) Subtotal: | = | $134,000 | |
| (+) Senior Appraised Value: | + | $0 | |
| (+) Non-Senior Appraised Value: | + | $134,000 | |
| | | -------------------------- | |
| (=) Total Appraised Value: | = | $134,000 | |
| (–) Senior Exemption Loss: | – | $0 | |
| (–) Exemption Loss: | – | $0 | |
| | | -------------------------- | |
| (=) Taxable Value: | = | $134,000 | |
Taxing Jurisdiction
| Owner: | HERNANDEZ SALVADOR | | |
| % Ownership: | 100.0000000000% | | |
| Total Value: | $134,000 | | |
| Tax Area: | 311 - 250-4 |
| CERFD | CURRENT EXPENSE REFUND 010 | 0.0000000000 | $134,000 | $134,000 | $0.00 | | |
| CURREXP | CURRENT EXPENSE 010 | 1.0175366760 | $134,000 | $134,000 | $136.35 | | |
| HUMNSERV | HUMAN SERVICES 119 | 0.0250000000 | $134,000 | $134,000 | $3.35 | | |
| SLDREL | SOLDIERS RELIEF 121 | 0.0155990005 | $134,000 | $134,000 | $2.09 | | |
| EMERGSER | EMS 147 | 0.3792580840 | $134,000 | $134,000 | $50.82 | | |
| EMSRFD | EMS REFUND 147 | 0.0000000000 | $134,000 | $134,000 | $0.00 | | |
| FD4EXP | FD #4 EXPENSE 686 | 0.8836993059 | $134,000 | $134,000 | $118.42 | | |
| RLBRFD | RURAL LIBRARY REFUND 623 | 0.0000000000 | $134,000 | $134,000 | $0.00 | | |
| RURALLIB | RURAL LIBRARY 623 | 0.3710609029 | $134,000 | $134,000 | $49.72 | | |
| PORTRFD | PORT REFUND 640 | 0.0000000000 | $134,000 | $134,000 | $0.00 | | |
| PORTWWGEN | PORT OF WW 640 | 0.2460186015 | $134,000 | $134,000 | $32.97 | | |
| SD250BOND | SD #250 BOND 773 | 1.4560608159 | $134,000 | $134,000 | $195.11 | | |
| SD250GEN | SD #250 GENERAL 770 | 2.3880724087 | $134,000 | $134,000 | $320.00 | | |
| ST2 | STATE SCHOOL PART 2 600 | 0.8131451643 | $134,000 | $134,000 | $108.96 | | |
| STATESCHL | STATE SCHOOL 600 | 1.5158548041 | $134,000 | $134,000 | $203.12 | | |
| STREFUND | STATE REFUND LEVY 603 | 0.0000000000 | $134,000 | $134,000 | $0.00 | | |
| COROAD | COUNTY ROAD 115 | 1.6549953990 | $134,000 | $134,000 | $221.77 | | |
| CRPRD | COUNTY ROAD REFUND 115 | 0.0000000000 | $134,000 | $134,000 | $0.00 | | |
| | Total Tax Rate: | 10.7663011628 | | | | | |
| | | | | Taxes w/Current Exemptions: | $1,442.68 | | |
| | | | | Taxes w/o Exemptions: | $1,442.68 | | |
Improvement / Building
| Improvement #1: | COMMERCIAL | State Code: | 13 | 2736.0 sqft | Value: | $101,300 |
| | Type | Description | Class CD | Sub Class CD | Year Built | Area |
| | MA | Main Area | D | * | 1948 | 2736.0 |
| | UTST | Utility Storage Shed | D | * | 1948 | 80.0 |
| | SI1 | SITE IMPROVEMENT | D | * | 1948 | 6.0 |
Sketch
Property Image
Land
| 1 | RES 1 | Converted: Residential | 0.3924 | 17094.00 | 0.00 | 0.00 | 1.00 | $32,700 | $0 |
Roll Value History
| 2025 | N/A | N/A | N/A | N/A | N/A |
| 2024 | $131,500 | $32,700 | $0 | $164,200 | $164,200 |
| 2023 | $101,300 | $32,700 | $0 | $134,000 | $134,000 |
| 2022 | $101,300 | $32,700 | $0 | $134,000 | $134,000 |
| 2021 | $91,670 | $31,000 | $0 | $122,670 | $122,670 |
| 2020 | $91,670 | $31,000 | $0 | $122,670 | $122,670 |
| 2019 | $91,670 | $31,000 | $0 | $122,670 | $122,670 |
| 2018 | $91,670 | $31,000 | $0 | $122,670 | $122,670 |
| 2017 | $91,670 | $31,000 | $0 | $122,670 | $122,670 |
| 2016 | $91,670 | $31,000 | $0 | $122,670 | $122,670 |
| 2015 | $71,300 | $53,200 | $0 | $124,500 | $124,500 |
| 2014 | $62,000 | $53,200 | $0 | $115,200 | $115,200 |
| 2013 | $62,000 | $53,200 | $0 | $115,200 | $115,200 |
| 2012 | $62,000 | $53,200 | $0 | $0 | $0 |
| 2011 | $62,000 | $53,200 | $0 | $0 | $0 |
| 2010 | $36,900 | $53,200 | $0 | $0 | $0 |
| 2009 | $59,100 | $31,000 | $0 | $0 | $0 |
| 2008 | $59,100 | $31,000 | $0 | $0 | $0 |
| 2007 | $59,100 | $31,000 | $0 | $0 | $0 |
| 2006 | $59,100 | $31,000 | $0 | $0 | $0 |
Deed and Sales History
| 1 | 10/04/2010 | QCD | QUIT CLAIM DEED | HERNANDEZ, DONNA | HERNANDEZ, SALVADOR | | | | 119119 | 2010-07899 |
| 2 | 07/21/1997 | WARRANTY D | WARRANTY DEED | | | | | $85,000.00 | 88543 | 2549-706581 |
Payout Agreement
| No payout information available.. |