16914 COLLEGE PLACE 17 ASSOCIATES LLC for Year 2023 - 2024

Click on a title bar to expand or collapse the information.

Property

Taxes and Assessment Details

Values

Taxing Jurisdiction

Improvement / Building

Sketch

Property Image

Land

Roll Value History

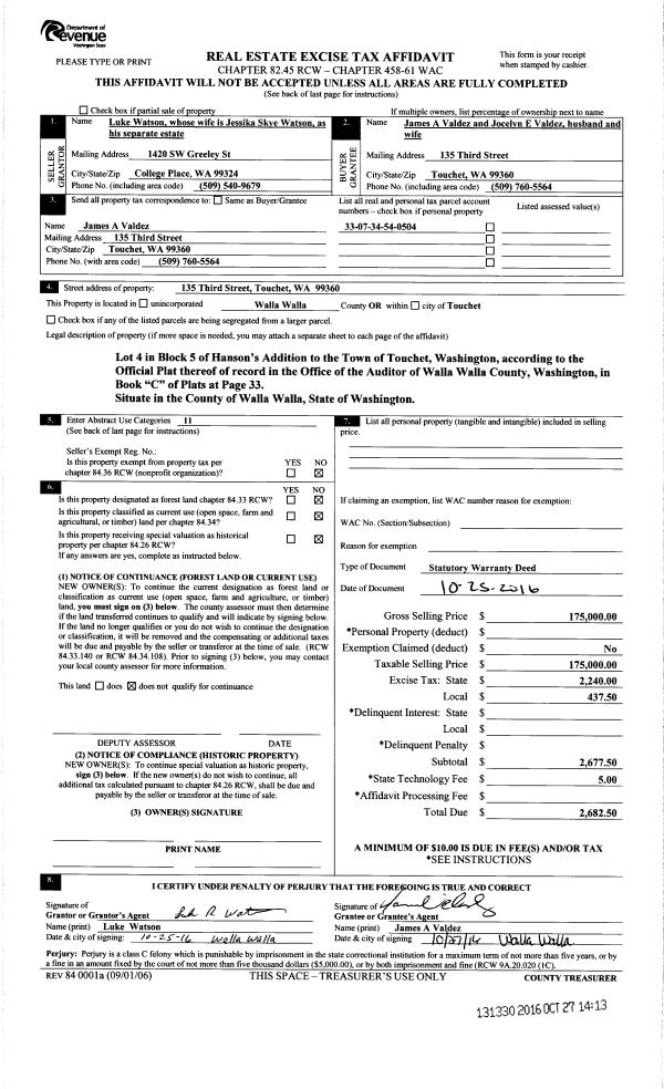
Deed and Sales History

Payout Agreement