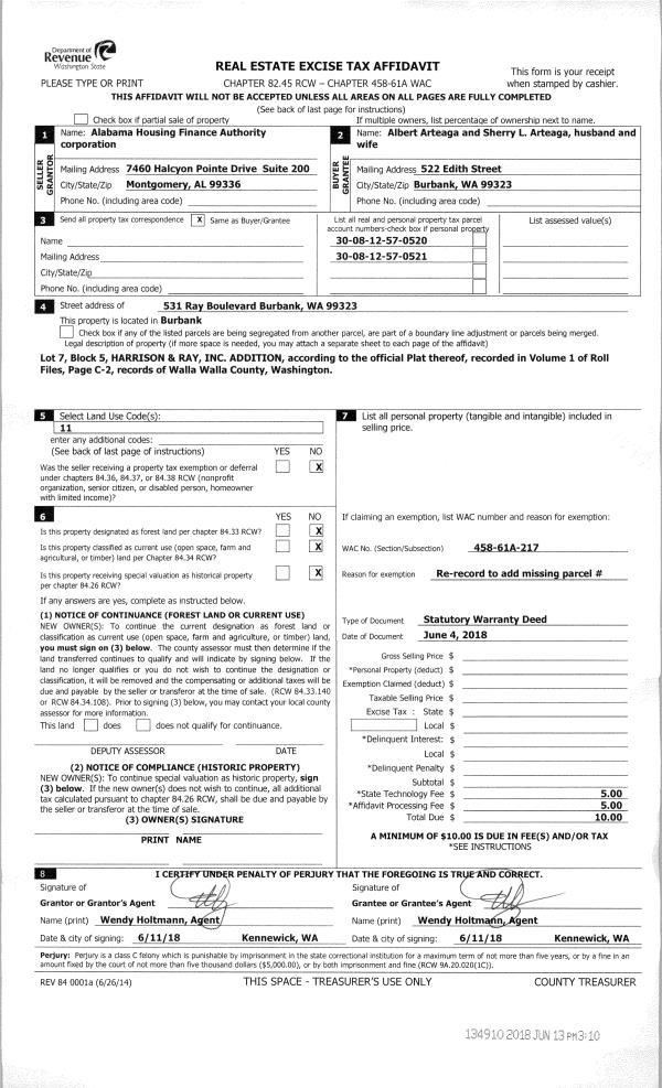
Property
Account |
| Property ID: | 16880 | Abbreviated Legal Description: | VAUGHNS SUB E 1/2 OF LOTS 9 AND 10 BLK 1 |
| Parcel Number: | 360721720117 | Agent Code: | |
| Type: | Real | | |
| Tax Area: | 1 - OL-140-F | Land Use Code | 11 |
| Open Space: | N | DFL | N |
| Historic Property: | N | Remodel Property: | N |
| Multi-Family Redevelopment: | N | | |
| Township: | 7 | Section: | 21 |
| Range: | 36 |
Location |
| Address: | 1109 UNIVERSITY ST WA 99362 | Mapsco: | |
| Neighborhood: | A-SFR | Map ID: | |
| Neighborhood CD: | 513011 |
Owner |
| Name: | HOCKERSMITH JOHN DAVID & PAIGE ALAYNE | Owner ID: | 68076 |
| Mailing Address: | 1109 UNIVERSITY ST WALLA WALLA, WA 99362 | % Ownership: | 100.0000000000% |
| | | Exemptions: | |
Taxes and Assessment Details
Values
| (+) Improvement Homesite Value: | + | $0 | |
| (+) Improvement Non-Homesite Value: | + | $384,440 | |
| (+) Land Homesite Value: | + | $0 | |
| (+) Land Non-Homesite Value: | + | $39,000 | |
| (+) Curr Use (HS): | + | $0 | $0 |
| (+) Curr Use (NHS): | + | $0 | $0 |
| | | -------------------------- | |
| (=) Market Value: | = | $423,440 | |
| (–) Productivity Loss: | – | $0 | |
| | | -------------------------- | |
| (=) Subtotal: | = | $423,440 | |
| (+) Senior Appraised Value: | + | $0 | |
| (+) Non-Senior Appraised Value: | + | $423,440 | |
| | | -------------------------- | |
| (=) Total Appraised Value: | = | $423,440 | |
| (–) Senior Exemption Loss: | – | $0 | |
| (–) Exemption Loss: | – | $0 | |
| | | -------------------------- | |
| (=) Taxable Value: | = | $423,440 | |
Taxing Jurisdiction
| Owner: | HOCKERSMITH JOHN DAVID & PAIGE ALAYNE | | |
| % Ownership: | 100.0000000000% | | |
| Total Value: | $423,440 | | |
| Tax Area: | 1 - OL-140-F |
| CERFD | CURRENT EXPENSE REFUND 010 | 0.0000000000 | $423,440 | $423,440 | $0.00 | | |
| CURREXP | CURRENT EXPENSE 010 | 1.0175366760 | $423,440 | $423,440 | $430.87 | | |
| HUMNSERV | HUMAN SERVICES 119 | 0.0250000000 | $423,440 | $423,440 | $10.59 | | |
| SLDREL | SOLDIERS RELIEF 121 | 0.0155990005 | $423,440 | $423,440 | $6.61 | | |
| EMERGSER | EMS 147 | 0.3792580840 | $423,440 | $423,440 | $160.59 | | |
| EMSRFD | EMS REFUND 147 | 0.0000000000 | $423,440 | $423,440 | $0.00 | | |
| PORTRFD | PORT REFUND 640 | 0.0000000000 | $423,440 | $423,440 | $0.00 | | |
| PORTWWGEN | PORT OF WW 640 | 0.2460186015 | $423,440 | $423,440 | $104.17 | | |
| SD140BOND | SD #140 BOND 764 | 0.8342371393 | $423,440 | $423,440 | $353.25 | | |
| SD140GEN | SD #140 GENERAL 760 | 2.0646500647 | $423,440 | $423,440 | $874.26 | | |
| ST2 | STATE SCHOOL PART 2 600 | 0.8131451643 | $423,440 | $423,440 | $344.32 | | |
| STATESCHL | STATE SCHOOL 600 | 1.5158548041 | $423,440 | $423,440 | $641.87 | | |
| STREFUND | STATE REFUND LEVY 603 | 0.0000000000 | $423,440 | $423,440 | $0.00 | | |
| CWWBOND | C OF WW BOND 643 | 0.2760494372 | $423,440 | $423,440 | $116.89 | | |
| CWWGEN | CITY OF WW 631 | 1.6100204973 | $423,440 | $423,440 | $681.75 | | |
| CWWRFD | CITY OF WALLA WALLA REFUND 631 | 0.0000000000 | $423,440 | $423,440 | $0.00 | | |
| | Total Tax Rate: | 8.7973694689 | | | | | |
| | | | | Taxes w/Current Exemptions: | $3,725.17 | | |
| | | | | Taxes w/o Exemptions: | $3,725.17 | | |
Improvement / Building
| Improvement #1: | RESIDENTIAL | State Code: | 11 | 1617.0 sqft | Value: | $384,440 |
| Exterior Wall: | HARDBOARD | Foundation: | SLAB FOUNDATION | | Heating/Cooling: | MINI-SPLIT HP SYSTEM | Number of Bathrooms: | 2 | | Number of Bedrooms: | 3 | Plumbing: | 10 | | Roof Covering: | COMP SHINGLE |   |   |
|
| | Type | Description | Class CD | Sub Class CD | Year Built | Area |
| | MA | Main Area | 1 | 35 | 1941 | 1617.0 |
| | SI1 | SITE IMPROVEMENT | 1 | 35 | 1941 | 3.0 |
| | S1F | Single One Story Fireplace | 1 | 35 | 1941 | 1.0 |
| | RPC | OPEN PORCH W/ROOF , CEILED | 1 | 35 | 1941 | 12.0 |
| | RPC | OPEN PORCH W/ROOF , CEILED | 1 | 35 | 1941 | 19.0 |
| | WOD | Wood Deck | 1 | 35 | 2019 | 95.0 |
| | WOD | Wood Deck | 1 | 35 | 2019 | 348.0 |
Sketch
Property Image
Land
| 1 | RES 1 | Converted: Residential | 0.1433 | 6240.00 | 0.00 | 0.00 | 1.00 | $39,000 | $0 |
Roll Value History
| 2025 | N/A | N/A | N/A | N/A | N/A |
| 2024 | $360,060 | $62,400 | $0 | $422,460 | $422,460 |
| 2023 | $384,440 | $39,000 | $0 | $423,440 | $423,440 |
| 2022 | $366,140 | $39,000 | $0 | $405,140 | $405,140 |
| 2021 | $292,910 | $39,000 | $0 | $331,910 | $331,910 |
| 2020 | $266,280 | $39,000 | $0 | $305,280 | $305,280 |
| 2019 | $145,380 | $39,000 | $0 | $184,380 | $184,380 |
| 2018 | $123,100 | $39,000 | $0 | $162,100 | $162,100 |
| 2017 | $134,620 | $25,000 | $0 | $159,620 | $159,620 |
| 2016 | $128,210 | $25,000 | $0 | $153,210 | $153,210 |
| 2015 | $128,210 | $25,000 | $0 | $153,210 | $153,210 |
| 2014 | $122,100 | $25,000 | $0 | $147,100 | $147,100 |
| 2013 | $122,100 | $25,000 | $0 | $147,100 | $147,100 |
| 2012 | $135,100 | $25,000 | $0 | $0 | $0 |
| 2011 | $135,100 | $25,000 | $0 | $0 | $0 |
| 2010 | $127,500 | $25,000 | $0 | $0 | $0 |
| 2009 | $144,400 | $25,000 | $0 | $0 | $0 |
| 2008 | $105,300 | $25,000 | $0 | $0 | $0 |
| 2007 | $105,300 | $25,000 | $0 | $0 | $0 |
| 2006 | $72,400 | $12,500 | $0 | $0 | $0 |
Deed and Sales History
| 1 | 10/09/2020 | SWD | STATUTORY WARRANTY DEED | BATES SHEENA LEA | HOCKERSMITH JOHN DAVID & PAIGE ALAYNE | | | $335,000.00 | 140070 | 2020-10444 |
| 2 | 03/15/2019 | QCD | QUIT CLAIM DEED | WESTERN KARIN E | BATES SHEENA LEA | | | $0.00 | 136541 | 2019-01771 |
| 3 | 02/05/2019 | QCD | QUIT CLAIM DEED | WESTERN KARIN E | BATES SHEENA LEA | | | $0.00 | 136353 | 2019-00795 |
| 4 | 02/04/2019 | QCD | QUIT CLAIM DEED | WESTERN KARIN E 2/3 | WESTERN KARIN E | | | $54,000.00 | 136352 | 2019-00794 |
| 5 | 06/19/2014 | QCD | QUIT CLAIM DEED | WESTERN KARIN-PAT WEILAND TRUST | WESTERN KARIN E 2/3 | | | $54,900.00 | 126100 | 2014-04240 |
| 6 | 01/05/2007 | QCD | QUIT CLAIM DEED | WEILAND, PATRICIA D | WEILAND, PATRICIA DARE TRUSTEE | | | | 112027 | 2007-00193 |
Payout Agreement
| No payout information available.. |