Property
Account |
| Property ID: | 16828 | Abbreviated Legal Description: | SEC 1 TWN 7 RNG 34 S1/2NE1/4SW1/4; SE1/4; TAX 1; TAX 3 |
| Parcel Number: | 340701410002 | Agent Code: | |
| Type: | Real | | |
| Tax Area: | 100 - 140-8 | Land Use Code | 83 |
| Open Space: | Y | DFL | N |
| Historic Property: | N | Remodel Property: | N |
| Multi-Family Redevelopment: | N | | |
| Township: | 7 | Section: | 1 |
| Range: | 34 |
Location |
| Address: | WA 99362 | Mapsco: | |
| Neighborhood: | 0 Farm | Map ID: | |
| Neighborhood CD: | 2220 |
Owner |
| Name: | JMH WALLA WALLA LLC | Owner ID: | 52241 |
| Mailing Address: | 3417 W CRESCENT RIM DR BOISE, ID 83706 | % Ownership: | 100.0000000000% |
| | | Exemptions: | |
Taxes and Assessment Details
Values
| (+) Improvement Homesite Value: | + | $0 | |
| (+) Improvement Non-Homesite Value: | + | $0 | |
| (+) Land Homesite Value: | + | $0 | |
| (+) Land Non-Homesite Value: | + | $0 | |
| (+) Curr Use (HS): | + | $0 | $0 |
| (+) Curr Use (NHS): | + | $226,580 | $75,390 |
| | | -------------------------- | |
| (=) Market Value: | = | $226,580 | |
| (–) Productivity Loss: | – | $151,190 | |
| | | -------------------------- | |
| (=) Subtotal: | = | $75,390 | |
| (+) Senior Appraised Value: | + | $0 | |
| (+) Non-Senior Appraised Value: | + | $75,390 | |
| | | -------------------------- | |
| (=) Total Appraised Value: | = | $75,390 | |
| (–) Senior Exemption Loss: | – | $0 | |
| (–) Exemption Loss: | – | $0 | |
| | | -------------------------- | |
| (=) Taxable Value: | = | $75,390 | |
Taxing Jurisdiction
| Owner: | JMH WALLA WALLA LLC | | |
| % Ownership: | 100.0000000000% | | |
| Total Value: | $226,580 | | |
| Tax Area: | 100 - 140-8 |
| CERFD | CURRENT EXPENSE REFUND 010 | 0.0000000000 | $75,390 | $75,390 | $0.00 | | |
| CURREXP | CURRENT EXPENSE 010 | 1.0175366760 | $75,390 | $75,390 | $76.71 | | |
| HUMNSERV | HUMAN SERVICES 119 | 0.0250000000 | $75,390 | $75,390 | $1.88 | | |
| SLDREL | SOLDIERS RELIEF 121 | 0.0155990005 | $75,390 | $75,390 | $1.18 | | |
| EMERGSER | EMS 147 | 0.3792580840 | $75,390 | $75,390 | $28.59 | | |
| EMSRFD | EMS REFUND 147 | 0.0000000000 | $75,390 | $75,390 | $0.00 | | |
| FD8EXP | FD #8 EXPENSE 697 | 0.6647992540 | $75,390 | $75,390 | $50.12 | | |
| RLBRFD | RURAL LIBRARY REFUND 623 | 0.0000000000 | $75,390 | $75,390 | $0.00 | | |
| RURALLIB | RURAL LIBRARY 623 | 0.3710609029 | $75,390 | $75,390 | $27.97 | | |
| PORTRFD | PORT REFUND 640 | 0.0000000000 | $75,390 | $75,390 | $0.00 | | |
| PORTWWGEN | PORT OF WW 640 | 0.2460186015 | $75,390 | $75,390 | $18.55 | | |
| SD140BOND | SD #140 BOND 764 | 0.8342371393 | $75,390 | $75,390 | $62.89 | | |
| SD140GEN | SD #140 GENERAL 760 | 2.0646500647 | $75,390 | $75,390 | $155.65 | | |
| ST2 | STATE SCHOOL PART 2 600 | 0.8131451643 | $75,390 | $75,390 | $61.30 | | |
| STATESCHL | STATE SCHOOL 600 | 1.5158548041 | $75,390 | $75,390 | $114.28 | | |
| STREFUND | STATE REFUND LEVY 603 | 0.0000000000 | $75,390 | $75,390 | $0.00 | | |
| COROAD | COUNTY ROAD 115 | 1.6549953990 | $75,390 | $75,390 | $124.77 | | |
| CRPRD | COUNTY ROAD REFUND 115 | 0.0000000000 | $75,390 | $75,390 | $0.00 | | |
| | Total Tax Rate: | 9.6021550903 | | | | | |
| | | | | Taxes w/Current Exemptions: | $723.89 | | |
| | | | | Taxes w/o Exemptions: | $723.89 | | |
Improvement / Building
Sketch
| No sketches available for this property. |
Property Image
Land
| 1 | WASTE | Waste | 11.6900 | 0.00 | 0.00 | 0.00 | 1.00 | $0 | $0 |
| 2 | 50-C2 | Class 2 50 BU | 205.4200 | 0.00 | 0.00 | 0.00 | 1.00 | $226,580 | $75,390 |
Roll Value History
| 2025 | N/A | N/A | N/A | N/A | N/A |
| 2024 | $0 | $232,130 | $72,510 | $72,510 | $72,510 |
| 2023 | $0 | $226,580 | $75,390 | $75,390 | $75,390 |
| 2022 | $0 | $203,370 | $72,510 | $72,510 | $72,510 |
| 2021 | $0 | $184,880 | $72,510 | $72,510 | $72,510 |
| 2020 | $0 | $171,120 | $74,360 | $74,360 | $74,360 |
| 2019 | $0 | $164,130 | $76,010 | $76,010 | $76,010 |
| 2018 | $0 | $163,100 | $86,690 | $86,690 | $86,690 |
| 2017 | $0 | $156,330 | $88,130 | $88,130 | $88,130 |
| 2016 | $0 | $156,330 | $88,330 | $88,330 | $88,330 |
| 2015 | $0 | $154,890 | $78,270 | $78,270 | $78,270 |
| 2014 | $0 | $154,890 | $78,880 | $78,880 | $78,880 |
| 2013 | $0 | $145,600 | $63,700 | $63,700 | $63,700 |
| 2012 | $0 | $41,700 | $0 | $0 | $0 |
| 2011 | $0 | $47,000 | $0 | $0 | $0 |
| 2010 | $0 | $43,300 | $0 | $0 | $0 |
| 2009 | $0 | $43,100 | $0 | $0 | $0 |
| 2008 | $0 | $36,200 | $0 | $0 | $0 |
| 2007 | $0 | $40,300 | $0 | $0 | $0 |
| 2006 | $0 | $40,300 | $0 | $0 | $0 |
Deed and Sales History
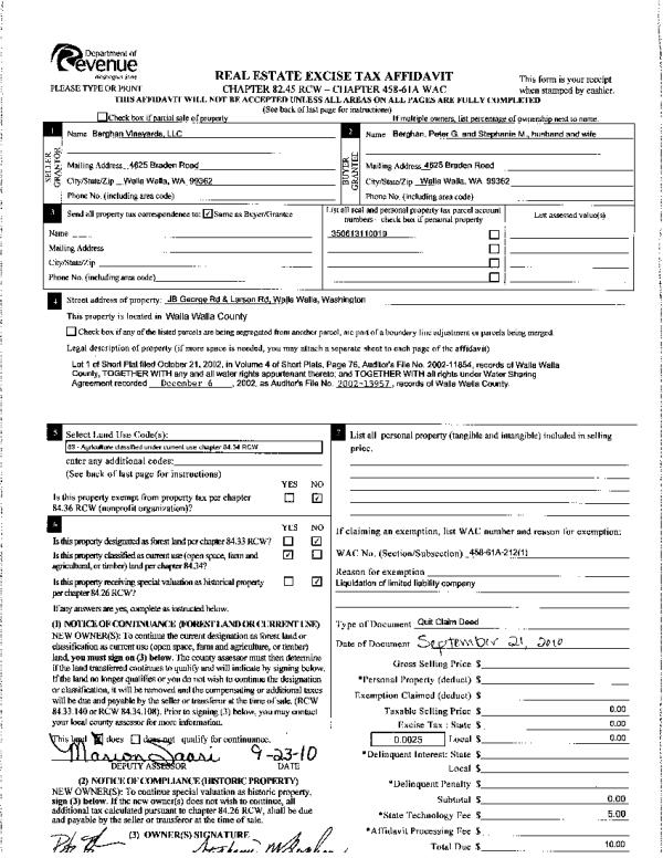
| 1 | 01/02/2013 | WARRANTY D | WARRANTY DEED | HAVLINA JOHN M JR AS TRUSTEE OF THE | JMH WALLA WALLA LLC | | | $0.00 | 123277 | 2013-00055 |
| 2 | 11/29/2006 | WARRANTY D | WARRANTY DEED | HAVLINA JOHN M JR | HAVLINA JOHN M JR AS TRUSTEE OF THE | | | | 111756 | 2006-14271 |
| 3 | 10/24/1975 | PACD | PURCHASER'S ASSG CONTRACT&DEED | | | | | $238,000.00 | 0 | 1849-006082 |
|   | |
Payout Agreement
| No payout information available.. |