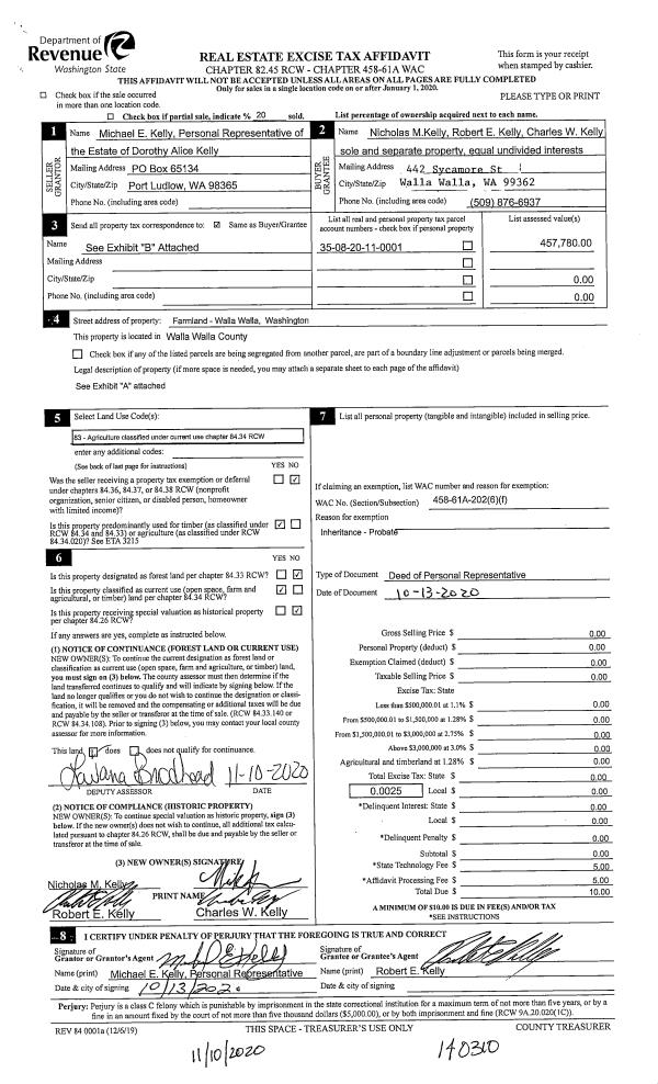
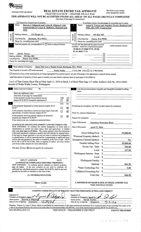
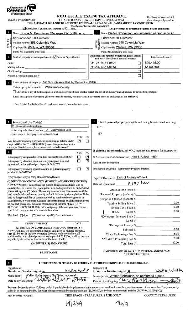
Property
Account |
| Property ID: | 16815 | Abbreviated Legal Description: | QUAIL RUN LOT 8 |
| Parcel Number: | 330734560008 | Agent Code: | |
| Type: | Real | | |
| Tax Area: | 318 - 300-6-TM | Land Use Code | 11 |
| Open Space: | N | DFL | N |
| Historic Property: | N | Remodel Property: | N |
| Multi-Family Redevelopment: | N | | |
| Township: | | Section: | |
| Range: | |
Location |
| Address: | 77 SIERRA LN WA 99360 | Mapsco: | |
| Neighborhood: | A Touchet/Lowden SFR | Map ID: | |
| Neighborhood CD: | 213611 |
Owner |
| Name: | DAVY MATTHEW & JENNIFER | Owner ID: | 65000 |
| Mailing Address: | 77 SIERRA LN TOUCHET, WA 99360 | % Ownership: | 100.0000000000% |
| | | Exemptions: | |
Taxes and Assessment Details
Values
| (+) Improvement Homesite Value: | + | $0 | |
| (+) Improvement Non-Homesite Value: | + | $389,810 | |
| (+) Land Homesite Value: | + | $0 | |
| (+) Land Non-Homesite Value: | + | $60,140 | |
| (+) Curr Use (HS): | + | $0 | $0 |
| (+) Curr Use (NHS): | + | $0 | $0 |
| | | -------------------------- | |
| (=) Market Value: | = | $449,950 | |
| (–) Productivity Loss: | – | $0 | |
| | | -------------------------- | |
| (=) Subtotal: | = | $449,950 | |
| (+) Senior Appraised Value: | + | $0 | |
| (+) Non-Senior Appraised Value: | + | $449,950 | |
| | | -------------------------- | |
| (=) Total Appraised Value: | = | $449,950 | |
| (–) Senior Exemption Loss: | – | $0 | |
| (–) Exemption Loss: | – | $0 | |
| | | -------------------------- | |
| (=) Taxable Value: | = | $449,950 | |
Taxing Jurisdiction
| Owner: | DAVY MATTHEW & JENNIFER | | |
| % Ownership: | 100.0000000000% | | |
| Total Value: | $449,950 | | |
| Tax Area: | 318 - 300-6-TM |
| CERFD | CURRENT EXPENSE REFUND 010 | 0.0000000000 | $449,950 | $449,950 | $0.00 | | |
| CURREXP | CURRENT EXPENSE 010 | 1.0175366760 | $449,950 | $449,950 | $457.84 | | |
| HUMNSERV | HUMAN SERVICES 119 | 0.0250000000 | $449,950 | $449,950 | $11.25 | | |
| SLDREL | SOLDIERS RELIEF 121 | 0.0155990005 | $449,950 | $449,950 | $7.02 | | |
| EMERGSER | EMS 147 | 0.3792580840 | $449,950 | $449,950 | $170.65 | | |
| EMSRFD | EMS REFUND 147 | 0.0000000000 | $449,950 | $449,950 | $0.00 | | |
| FD6EXP | FD #6 EXPENSE 693 | 0.6692985746 | $449,950 | $449,950 | $301.15 | | |
| RLBRFD | RURAL LIBRARY REFUND 623 | 0.0000000000 | $449,950 | $449,950 | $0.00 | | |
| RURALLIB | RURAL LIBRARY 623 | 0.3710609029 | $449,950 | $449,950 | $166.96 | | |
| PORTRFD | PORT REFUND 640 | 0.0000000000 | $449,950 | $449,950 | $0.00 | | |
| PORTWWGEN | PORT OF WW 640 | 0.2460186015 | $449,950 | $449,950 | $110.70 | | |
| SD300BOND | SD #300 BOND 783 | 1.8964951620 | $449,950 | $449,950 | $853.33 | | |
| SD300GEN | SD #300 GENERAL 780 | 2.1198322866 | $449,950 | $449,950 | $953.82 | | |
| ST2 | STATE SCHOOL PART 2 600 | 0.8131451643 | $449,950 | $449,950 | $365.87 | | |
| STATESCHL | STATE SCHOOL 600 | 1.5158548041 | $449,950 | $449,950 | $682.06 | | |
| STREFUND | STATE REFUND LEVY 603 | 0.0000000000 | $449,950 | $449,950 | $0.00 | | |
| COROAD | COUNTY ROAD 115 | 1.6549953990 | $449,950 | $449,950 | $744.67 | | |
| CRPRD | COUNTY ROAD REFUND 115 | 0.0000000000 | $449,950 | $449,950 | $0.00 | | |
| | Total Tax Rate: | 10.7240946555 | | | | | |
| | | | | Taxes w/Current Exemptions: | $4,825.32 | | |
| | | | | Taxes w/o Exemptions: | $4,825.32 | | |
Improvement / Building
| Improvement #1: | RESIDENTIAL | State Code: | 11 | 2160.0 sqft | Value: | $389,810 |
| Exterior Wall: | HARDBOARD | Heating/Cooling: | WARM & COOLED AIR | | Number of Bathrooms: | 2 | Number of Bedrooms: | 3 | | Plumbing: | 10 | Roof Covering: | COMP SHINGLE |
|
| | Type | Description | Class CD | Sub Class CD | Year Built | Area |
| | MA | Main Area | 1 | 35 | 2007 | 2160.0 |
| | SI1 | SITE IMPROVEMENT | 1 | 35 | 2007 | 2.0 |
| | ATG | Attached Garage | 1 | 35 | 2007 | 924.0 |
| | RPO | OPEN PORCH W/ROOF | 1 | 35 | 2007 | 96.0 |
Sketch
Property Image
Land
| 1 | RES 1 | Converted: Residential | 1.0100 | 0.00 | 0.00 | 0.00 | 1.00 | $60,140 | $0 |
Roll Value History
| 2025 | N/A | N/A | N/A | N/A | N/A |
| 2024 | $389,810 | $60,140 | $0 | $449,950 | $449,950 |
| 2023 | $389,810 | $60,140 | $0 | $449,950 | $449,950 |
| 2022 | $389,810 | $60,140 | $0 | $449,950 | $449,950 |
| 2021 | $259,870 | $60,140 | $0 | $320,010 | $320,010 |
| 2020 | $258,350 | $45,000 | $0 | $303,350 | $303,350 |
| 2019 | $258,350 | $45,000 | $0 | $303,350 | $303,350 |
| 2018 | $234,860 | $45,000 | $0 | $279,860 | $279,860 |
| 2017 | $223,680 | $45,000 | $0 | $268,680 | $268,680 |
| 2016 | $194,500 | $45,000 | $0 | $239,500 | $239,500 |
| 2015 | $194,500 | $45,000 | $0 | $239,500 | $239,500 |
| 2014 | $194,500 | $45,000 | $0 | $239,500 | $239,500 |
| 2013 | $194,500 | $45,000 | $0 | $239,500 | $239,500 |
| 2012 | $194,500 | $45,000 | $0 | $0 | $0 |
| 2011 | $194,500 | $45,000 | $0 | $0 | $0 |
| 2010 | $194,500 | $45,000 | $0 | $0 | $0 |
| 2009 | $206,000 | $35,000 | $0 | $0 | $0 |
| 2008 | $188,600 | $35,000 | $0 | $0 | $0 |
| 2007 | $0 | $35,000 | $0 | $0 | $0 |
| 2006 | $0 | $35,000 | $0 | $0 | $0 |
Deed and Sales History
| 1 | 04/26/2019 | SWD | STATUTORY WARRANTY DEED | BURR JAY RAYMOND | DAVY MATTHEW & JENNIFER | | | $340,000.00 | 136763 | 2019-02673 |
| 2 | 12/23/2016 | SWD | STATUTORY WARRANTY DEED | SOWERS JOSEPH JR | BURR JAY RAYMOND | | | $302,000.00 | 131656 | 2016-10564 |
| 3 | 11/17/2006 | WARRANTY D | WARRANTY DEED | JOHNSON, LORNA K | SOWERS, JOSEPH JR | | | $45,000.00 | 111685 | 2006-13832 |
Payout Agreement
| No payout information available.. |